Download PDF
ads:
UNIVERSIDADE FEDERAL DO RIO GRANDE DO SUL
FACULDADE DE ARQUITETURA
PROPAR – PROGRAMA DE PESQUISA E
PÓS-GRADUAÇÃO EM ARQUITETURA
A Arquitetura de Román Fresnedo Siri
(1938-1971)
Jamile Maria da Silva Weizenmann
Dissertação de mestrado apresentada como requisito
para a obtenção do título de Mestre em Arquitetura
Porto Alegre, dezembro de 2008.
ORIENTADOR
Prof. Arq. Cláudio Calovi Pereira, Ph.D.
ads:
Livros Grátis
http://www.livrosgratis.com.br
Milhares de livros grátis para download.
Nos deixou uma arquitetura
séria, responsável, de acordo com a
sua época, vasta, variada e valiosa. Em
geral podemos dizer que suas buscas
se orientaram para a criação de formas
plásticas através de volumes puros. [...]
usou como meios de expressão o vidro
e o concreto armado, dos quais soube
extrair belas combinações. Sem dúvida
sua arquitetura seguiu uma época, e
foi, entre nós, o pioneiro ao qual todos
devemos algo.
DANIEL LOUSTAU, 2004.
ads:
DEDICATÓRIA
Ao meu companheiro Tiago,
aos meus pais, Heitor e Rosaura,
ao meu irmão, Henrique.
AGRADECIMENTOS
Ao Programa de Pós-graduação em Arquitetura da Universidade Federal do Rio
Grande do Sul.
Ao Prof. Arq. Dr. Carlos Eduardo Dias Comas, o meu agradecimento e admiração pelo
trabalho como coordenador e professor, incentivando a pesquisa e a discussão sobre a
arquitetura, buscando sempre aprimorar a qualidade deste programa.
À Rosita, secretária do PROPAR e a todos os professores, especialmente ao Arq. Dr.
Rogério de Castro Oliveira, à Arq. Dr. Cláudia Piantá Costa Cabral, ao Arq. Ph.D. Edson
Mahfuz, ao Arq. Dr. Airton Cattani, ao Arq. Dr. Fernando Fuão e ao Arq. Ph.D. Renato Holmer
Fiore.
Ao professor e excelente orientador, Arq. Ph.D. Cláudio Calovi Pereira, a quem admiro
muito pela sabedoria e foi um companheiro neste trabalho, que soube conduzir de maneira
singular e inteligente este estudo, propondo idéias que contribuíram para o crescimento das
análises, transmitindo segurança e incentivando em todos os momentos.
À Adriana B. Lopes Ávila, pelo auxílio no Hipódromo do Cristal de Porto Alegre.
À Prefeitura de Montevidéu, ao Instituto de História de Arquitetura e à Biblioteca da
Faculdade de Arquitetura da Universidad de la República de Montevidéu por possibilitar a
consulta e a coleta de dados para esta investigação, em especial à Cristina Dias, bibliotecária
que intercedeu junto ao Instituto de História e às professoras Arq. Yolanda Boronat, Arq.
Cecília Ortiz e Arq. Alicia Torres.
À Noélia Aguirre, à Elena Mazzini, e a Takayoshi Imasato.
À família de Fresnedo Siri, Norah, Elena e Maria de las Nieves, pela recepção em
Montevidéu, pelas discussões, pelo material cedido e pelas entrevistas.
À Alessandra Szekut, à Luciane Massaro, a Alex Brino e aos demais amigos que de
alguma forma estiveram presentes ao longo desta jornada.
Finalmente, à minha família e ao meu esposo Tiago que me acompanharam nesta
trajetória, participando de muitos momentos ao longo da realização desta dissertação, o meu
eterno agradecimento.
ÍNDICE
04 Agradecimentos
06 Resumo
07 Abstract
08 INTRODUÇÃO
17 1. A FORMAÇÃO DE ROMÁN FRESNEDO SIRI E O CONTEXTO ARQUITETÔNICO (1920-1970)
31 1.1 Contextos de uma arquitetura
34 1.2 A nova arquitetura na América Latina
42 1.3 A arquitetura moderna no Uruguai
49 2. PROJETOS E OBRAS NO URUGUAI (1938-1946)
49 2.1 Residências
50 2.1.1 Residência Fresnedo Siri
59 2.1.2 Residência Barreira
60 2.1.3 Residência Mezzera
63 2.1.4 Residência Dighiero
71 2.1.5 Residência Fresnedo Albanell
73 2.2 Hipódromo de Maroñas
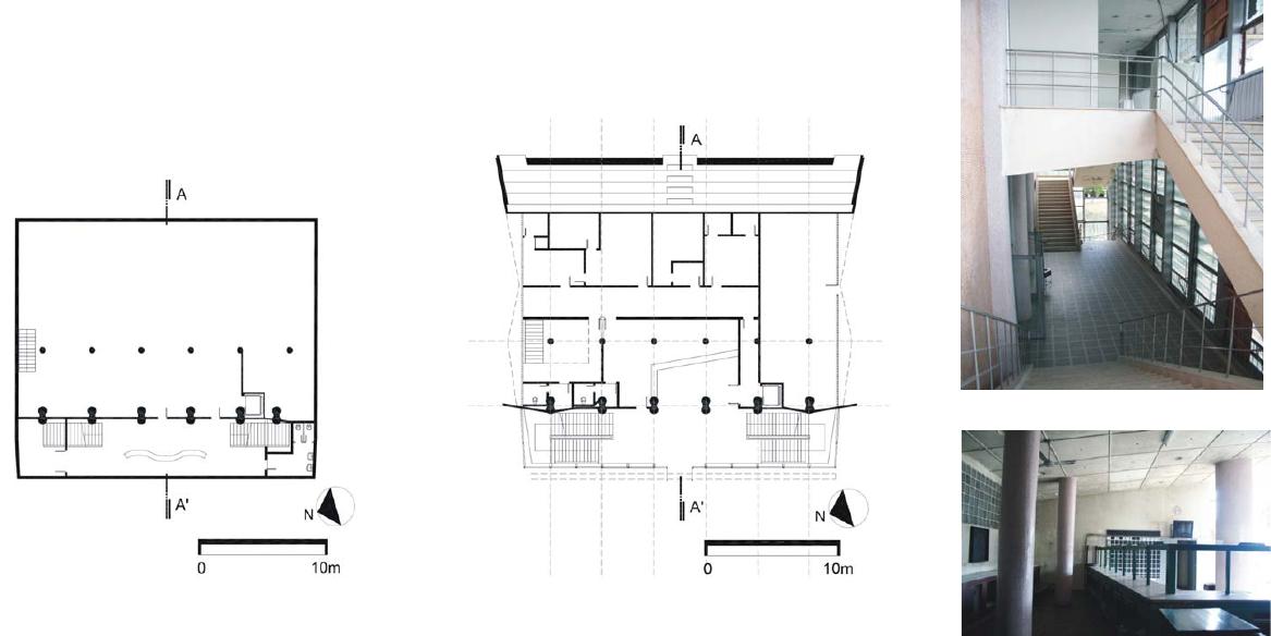
86 2.3 Faculdade de Arquitetura
104 2.4 Sede da Usina e Telefonia do Estado – UTE
123 2.5 Hospital Americano
138 3. PROJETOS E OBRAS EM PORTO ALEGRE (1951-1952)
138 3.1 Hipódromo do Cristal
176 3.2 Edifício Esplanada
198 4. PROJETOS E OBRAS NAS AMÉRICAS (1956-1971)
198 4.1 Urbanização Vila do Cerro
218 4.2 Hospital da Mooca
225 4.3 Edifício de escritórios da Comissão Honorária da Luta Antituberculose – CHLA
235 4.4 Organização Pan-americana da saúde de Washington – OPS
254 4.5 Organização Pan-americana da saúde de Brasília – OPS
265 Considerações finais
268 Referências Bibliográficas
276 Fontes
278 Lista de ilustrações
299 Créditos das ilustrações
RESUMO
Este trabalho pretende contribuir para o estudo da arquitetura moderna através da
análise interpretativa da obra do arquiteto uruguaio Román Fresnedo Siri. O recorte temporal
da investigação, de 1938 a 1971 delimita o período de obras de reconhecimento nacional e
internacional do arquiteto. Para isso, apresenta-se inicialmente a formação do arquiteto e o
contexto histórico latino-americano do período abordado. A primeira parte da análise dos
projetos envolve as obras datadas de 1938 e 1946 localizadas no Uruguai. Esta produção
marca a gênese da obra de Fresnedo, ainda vinculada ao Art Déco. O segundo momento
deste trabalho trata sobre a atuação do arquiteto em Porto Alegre, apresentando dois
exemplares de excelência executados na década de 1950. Esta fase afirma o auge da sua
produção arquitetônica vinculada às bases modernistas e à escola carioca brasileira. O
período final, de 1956 a 1971, define a fase de internacionalização do arquiteto abrangendo
projetos realizados em diversos países: Uruguai, Brasil e Estados Unidos. Fresnedo cria um
estilo próprio, no qual se encontram temas recorrentes que são identificados e explanados ao
longo do desenvolvimento do trabalho. Procura-se relacionar estas características à
arquitetura moderna, bem como às vertentes uruguaia e brasileira da época, buscando
comprovar a originalidade da obra Fresnedo dentro do quadro da arquitetura no século XX.
ABSTRACT
This dissertation analises modern architecture in southern Latin America through the
work of Román Fresnedo Siri, an uruguayan architect. The period covered (1938-1971)
corresponds to the national and later international acknowledgement of his works. Firstly, the
dissertation presents the education of the architect and his historical context. The examination
of works starts with the period from 1938 to 1946, comprising buildings and projects in
Uruguay. Such works reveal the beginnings of Fresnedo´s carreer, marked by Art Déco
influences. The second period (1947-1955) covers two important works done in Porto Alegre,
Brazil, which express the apex of the architect´s activity. In them, Fresnedo demonstrates his
commitment to modern architecture and his appreciation of Brazilian modernism. The final
period covers the years between 1956 to 1971, dealing with commissions in Uruguay, Brazil
and the United States. The dissertation demonstrates that Fresnedo defines a particular
approach to architecture, revealed in the analisis of individual buildings. The text intends to
relate these individual features with international modernism and also its Uruguayan and
Brazilian versions, in order to prove the originality of Fresnedo´s work in the context of XX
century architecture.
INTRODUÇÃO
As décadas de trinta e quarenta representaram um importante momento na história do
Uruguai no século XX. Neste período, o país tornou-se um grande exportador de produtos
pecuários juntamente com a Argentina. O incremento das exportações de carne, de lã e de
couro para os Estados Unidos e Europa promoveu um faturamento que alavancou o
crescimento econômico do Uruguai.
Este desenvolvimento econômico, por sua vez, implicou no crescimento do setor da
construção civil entre os anos 1940 e 1950. Por um lado, as reservas adquiridas das
exportações eram aplicadas em obras públicas do Estado, o que gerou muitos empregos. Por
outro lado, esses empregados investiram suas rendas e economias em obras privadas,
através de empréstimos bancários e financiamentos, formando uma dinâmica de mercado
interno que possibilitou o crescimento das cidades.
Dessa forma, a arquitetura nessas duas décadas foi constantemente valorizada.
Alguns arquitetos da frente modernista foram incorporados aos organismos estatais, como
Carlos Surraco e Juan Aubriot.
1
As contratações particulares para projetos de residências e
edifícios, ou mesmo os concursos para prédios públicos garantiram a cristalização da
arquitetura moderna no Uruguai, que se destacou no contexto da América Latina após a II
Guerra Mundial.
1
BROWNE, Enrique. Otra arquitectura en America Latina. Barcelona: Gustavo Gili, 1988, p.18.
INTRODUÇÃO
9
A afirmação da nova arquitetura também foi influenciada pelo contexto dos países
vizinhos. No Chile, o governo investiu na reconstrução das cidades após o terremoto de
Chillán (1939), incentivando a arquitetura moderna. Na Colômbia houve contratações de
arquitetos modernos nos anos 40, no setor de Obras Públicas, como Bruno Violi (italiano) e
Leopoldo Rother (alemão). Na Argentina o processo foi mais lento, sem um apoio inicial do
Estado. Arquitetos como Antonio Bonet, Alberto Prebisch, Eduardo Sacriste e outros
desenvolviam o seu trabalho com base no estilo internacional
2
.
A proximidade com o Brasil contribuiu para que este país se tornasse uma referência
na formação arquitetônica moderna do Uruguai
3
. O Brasil foi o pioneiro em termos da
consolidação de uma escola de arquitetura moderna que disseminou um estilo, através da
atuação de um grupo de arquitetos que se apropriou dos conceitos modernistas de Le
Corbusier, traduzindo-os em obras e buscando a síntese entre o moderno-internacional e as
condições locais. Esta afirmação manifestou-se especialmente nas décadas de 1930 e 1940
4
.
Tanto no Uruguai, como em outros países, a principal referência para a arquitetura
moderna foi Le Corbusier. O arquiteto visitou a América Latina em 1929 e 1936, promovendo
conferências e palestras que versavam sobre seus conceitos de arquitetura e a necessidade
2
Idem, ibidem.
3
Esta influência é abordada nos Guias ELARQA de Arquitectura, tomo II, na p. 43: Pontualmente é adicionado um
mezanino sobre o acesso formalmente autônomo, segura evocação da arquitetura renovadora do Brasil, de forte influência
sobre a arquitetura da região na década de 50”. E no tomo V, p. 27: “A herança corbusiana – assumida através da experiência
brasileira – se manifesta claramente nos critérios éticos e estéticos que determinam a resolução do programa, que apela a
clareza funcional e ao rigor da forma”. Também Henry-Russel Hitchcock cita a influência da “arquitetura renovadora do
Brasil”, quando apresenta o edifício Martí -La Goleta (1952), de Sichero, em seu Latin American Architecture since 1945,
p. 151.
4
A produção deste período revelou edifícios exemplares que alcançaram visibilidade nos cenários nacional e internacional,
como o edifício do MES (1936), de Costa, Reidy, Niemeyer e outros.
INTRODUÇÃO
10
de uma nova proposta arquitetônica
5
. A partir desse momento, diferentes expoentes
uruguaios se destacam na tarefa de encontrar um estilo próprio e original, conciliando à
arquitetura moderna de repercussão internacional os aspectos de representatividade local.
Nesta tentativa, nomes como Julio Vilamajó, Mauricio Cravotto e Juan Scasso tomaram a
frente do movimento no Uruguai, sucedidos por outros grupos de arquitetos engajados no
mesmo intuito
6
.
Nesse sentido, o objetivo desta investigação é proceder a análise da produção
arquitetônica do uruguaio Román Fresnedo Siri (1903-1975) no contexto da afirmação de
uma arquitetura moderna uruguaia vinculada às vanguardas européias e às manifestações
arquitetônicas brasileiras entre 1930 e 1970.
A importância do período abordado cobre a carreira de Fresnedo, cujo reconhecimento
ocorre a partir do concurso do Hipódromo de Maroñas, em 1938, e termina com o projeto da
sede da Organização Pan-americana da Saúde de Brasília (OPS), em 1971.
Dentre as obras que asseguram a Román Fresnedo Siri lugar de destaque na
arquitetura latino-americana podem ser citados a Residência Fresnedo Siri (1938) em Punta
Ballena, a Faculdade de Arquitetura de Montevidéu (1938), o Hipódromo do Cristal (1951) em
Porto Alegre, o Edifício Esplanada (1952) também em Porto Alegre e as sedes da OPS, em
Washington (1961) e Brasília (1971).
5
Sobre os depoimentos das viagens de Corbusier a Montevidéu, em 1929, cf. LE CORBISIER, Precisões: sobre um estado
presente da arquitetura e do urbanismo. São Paulo: Cosac & Naify, 2004.
6
É curioso que a arquitetura moderna uruguaia deste momento tem poucas ligações com a obra de Le Corbusier,
assemelhando-se com a obra de Perret e Garnier.
INTRODUÇÃO
11
A publicação que resume de forma mais completa a obra de Fresnedo é de Yolanda
Boronat e Marta Risso
7
, na qual existe um apanhado geral sobre a biografia do arquiteto,
desde a família e os estudos à carreira profissional. A questão biográfica e cronológica é rica
em detalhes e bastante completa, sendo que o contato com os familiares foi fundamental
neste aspecto. Há alguns registros fotográficos que se referem às pinturas e às obras
analisadas. O livro é a única publicação que permite uma visão geral sobre Fresnedo e sua
produção arquitetônica, porém as análises são superficiais, não entrando de forma detalhada
em cada projeto. Apesar de reunir um leque de projetos significativos, não existem
comparações entre as obras, e, tão pouco, uma busca pela compreensão formal ou alguma
maneira de organização do pensamento de Fresnedo ao conceber os seus projetos. O
capítulo que se destina às obras internacionais é limitado, com pouca ou quase nula análise
projetual.
O segundo referencial é a dissertação de Bernardes
8
, na qual o autor analisa o Edifício
Esplanada (1952), em Porto Alegre. Este é um estudo isolado, com uma tentativa de
comparações com a obra de Fresnedo, porém sem detalhes, uma vez que este não era o
foco dado ao trabalho. Uma segunda publicação, que se refere ao mesmo edifício, é de
autoria de Abreu
9
. O autor descreve o edifício Esplanda de forma detalhada, com fotos e
informações pertinentes para a compreensão do projeto, mais uma vez de forma individual.
7
BORONAT, Yolanda J.; RISSO, Marta R. Román Fresnedo Siri un arquitecto uruguayo. Montevidéu: Departamento de
Publicaciones Universidad de la Republica Ed, 1984.
8
BERNARDES, Dalton. Jaguaribe e Esplanada. O edifício de apartamentos modernista e um novo paradigma
habitacional em Porto Alegre. Dissertação de mestrado, PROPAR, 2003.
9
ABREU, Silvio. A esquina do moderno. Porto Alegre: UFRGS, Arqtexto 5, 2004, p. 82-97.
INTRODUÇÃO
12
A terceira publicação que traz como tema uma das obras exemplares do arquiteto é de
Comas, et al
10
, que é um estudo aprofundado do Hipódromo do Cristal em Porto Alegre.
Neste caso, há uma investigação sobre a concepção formal do hipódromo explorando as
questões referentes à implantação dos pavilhões e exemplificando estratégias através de
comparativos formais com a arquitetura moderna brasileira. Porém, a questão funcional dos
pavilhões, e o tema da experimentação espacial não foram aprofundados bem como as
relações com a obra anterior de Fresnedo, que revela conceitos da própria concepção formal
e estrutural adotada. Por fim, tem-se a tese e o artigo de Luccas
11
, sendo que a tese faz
um panorama da arquitetura moderna no Rio Grande do Sul, citando edifícios como o
Esplanada e o Hipódromo do Cristal e um dos capítulos trata sobre a contribuição uruguaia
para a arquitetura gaúcha. O artigo é um apanhado sobre a arquitetura moderna no cone sul
americano e traz uma breve análise, com poucas ilustrações, da Residência Fresnedo Siri
(1938) em Punta Ballena.
Dessa forma, existem muitas lacunas nas publicações que não permitem o
entendimento da lógica seqüencial existente na obra do arquiteto. Os projetos vistos
isoladamente não possibilitam relacionar elementos comuns entre uns e outros, e mesmo
reconhecer as características recorrentes de toda a obra. Além disso, é necessário um estudo
aprofundado das obras em termos de contexto, programa, arranjo compositivo, concepção
10
COMAS, Carlos E.; CANEZ, Ana Paula; BOHER, Glênio. Arquiteturas Cisplatinas: Román Fresnedo Siri e Eladio
Dieste em Porto Alegre. Porto Alegre: Uniritter Ed. 2004.
11
LUCCAS, Luís Enrique Haas. Arquitetura moderna brasileira em Porto Alegre: sob o mito do “gênio artístico
nacional”. Tese de doutorado, PROPAR/UFRGS, 2004, p.04. (versão digital).
______. Antonio Bonet e a arquitetura do cone sul: o exemplo de Punta Ballena. Arquitexto 087, agosto, 2007.
INTRODUÇÃO
13
formal, partido estrutural e experimentação do espaço, permitindo comparativos com a obra
anterior. Posto dessa maneira, o principal propósito da presente investigação é o de
preencher esta lacuna.
O primeiro momento da dissertação trata sobre a biografia e a formação de Fresnedo
Siri, além de apresentar um breve contexto arquitetônico da época, através do qual se
explicam as origens do pensamento do arquiteto. Em um segundo momento, são analisados
seus projetos, divididos em três grupos.
A primeira parte se refere às obras realizadas no Uruguai, de 1938 a 1946. São
analisadas diversas residências, as novas tribunas do Hipódromo de Maroñas (1938/1942/
1945), a Faculdade de Arquitetura (1938), o Palácio da Luz (1943) e o Hospital Americano
(1946).
A segunda parte envolve as obras de Fresnedo no Brasil, realizadas em Porto Alegre,
na década de 1950. Neste capítulo são explorados dois projetos: o Hipódromo do Cristal
(nova sede do Jockey Club do Rio Grande do Sul, 1951) e o edifício Esplanada (1952). Neste
momento, o arquiteto combina as suas experiências com as influências da arquitetura
moderna brasileira através da escola carioca, que se manifestava no local.
A terceira parte abarca os projetos posteriores à experiência de Fresnedo em Porto
Alegre, realizados nas Américas entre os anos de 1956 e 1971. São considerados os projetos
para a Vila do Cerro (Montevidéu, 1956), o Hospital da Mooca (São Paulo, 1957), o edifício de
escritórios para a Comissão Honorária da Luta Antituberculose, CHLA (Montevidéu, 1959), a
Organização Pan-americana da Saúde (Washington, Estados Unidos, 1961) e outra sede da
mesma instituição em Brasília (1971). O último momento deste estudo é dedicado às
INTRODUÇÃO
14
considerações finais onde se procura sintetizar os valores presentes na contribuição de
Fresnedo.
Em termos analíticos e interpretativos, esta dissertação segue a abordagem de Calovi
Pereira
12
, que integra um esforço coletivo de um grupo de trabalho do PROPAR-UFRGS,
composto por expoentes como Carlos Comas, Edson Mahfuz, Rogério Oliveira e outros. A
principal referência quanto à abordagem histórica e da arquitetura moderna uruguaia e latino-
americana baseou-se nas obras de Loustau
13
, Browne
14
e Gutierrez
15
, fazendo-se valer
também das obras já referidas de Boronat e Risso
16
, Bernardes
17
, Comas e outros
18
e
Abreu
19
. Além das publicações citadas, os artigos de Baroffio
20
, Cravotto
21
e Esteban
22
expostos na Revista Arquitectura, bem como os Anais da Faculdade de Arquitetura, da
Universidade da República, escritos por Carré
23
e Cravotto
24
, também são instrumentos de
análise do contexto histórico e arquitetônico uruguaio em que se insere Fresnedo.
12
CALOVI, 1993, 1998, 2002, 2005, 2007 (ver referências bibliograficas).
13
LOUSTAU, César J. Influencia de Francia en la arquitectura de Uruguay. Montevideo: TRILCE,1995.
14
BROWNE, 1988.
15
GUTIERREZ, Ramon. Arquitectura y urbanismo en Iberoamerica. Rio de Janeiro: Catedra, 2002.
16
BORONAT; RISSO, 1984.
17
BERNARDES, 2003.
18
COMAS, CANEZ, BOHER, 2004.
19
ABREU, 2004.
20
BAROFFIO, Eugenio P. El progreso arquitectonico y sus manifestaciones en Montevideo. SAU, Revista de
Arquitectura, 1933.
21
CRAVOTTO, Maurício. Faculdade de Arquitetura de Montevidéu. Anais parte I. Montevidéu, 1938, p.82-98.
22
ESTEBAN, F. García. Obras del arquitecto Román Fresnedo Siri. SAU, Revista de Arquitectura, nº242, Montevidéu,
1967, p. 02-31.
23
CARRÉ, José P. Faculdade de Arquitetura de Montevidéu. Anais parte I. Montevidéu, 1938, p.99-110.
24
CRAVOTTO, 1938.
INTRODUÇÃO
15
Com relação à história da arquitetura moderna brasileira as referências principais são
os textos de Bruand
25
, Comas
26
, e Segawa
27
. No contexto teórico e arquitetônico europeu e
americano tem-se o referencial nas obras de Le Corbusier
28
, Frampton
29
, Montaner
30
,
Giedion
31
, W. Curtis
32
, Hitchcock
33
, C. Rowe
34
e Colquhoun
35
. Procura-se identificar as
conexões da produção de Fresnedo com os demais desdobramentos da arquitetura moderna
uruguaia e brasileira, mencionando também alguns episódios no universo europeu e norte-
americano, com os quais o arquiteto teve contatos em alguns momentos. Além disso,
algumas questões relativas à economia e à política do Uruguai também são observadas.
Entretanto, a ênfase da investigação concentra-se no projeto arquitetônico, como explica
Calovi: “entendido em suas particularidades que representam uma interpretação própria dos
diversos condicionantes externos que atuam sobre o fazer arquitetônico”
36
.
25
BRUAND, Yves. Arquitetura contemporânea no Brasil. 3ª. ed. São Paulo: Perspectiva, 1997.
26
Ver referências bibliográficas.
27
SEGAWA, Hugo. Arquiteturas no Brasil 1900-1990. São Paulo: Edusp, 1999.
28
Ver referências bibliográficas.
29
FRAMPTON, Kenneth. Modern Architecture 1920-1945. Tokyo: A.D.A. Edita, 1983.
30
MONTANER, Josep. Depois do Movimento Moderno: arquitetura da segunda metade do século XX. Barcelona:
Gustavo Gili, 2001.
31
GIEDION, Sigfried. Espaço, tempo e arquitetura, o desenvolvimento de uma Nova Tradição. São Paulo: Martins Fontes,
2004.
32
CURTIS, William J.R. Modern architecture since 1900. London: Phaidon, 1999.
33
HITCHCOCK, Henry-Russell. Architecture : nineteenth and twentieth centuries. [5th ed.] New Haven: Yale
University, 1987.
34
Ver referências bibliográficas.
35
COLQUHOUN, Alan. Modernidade e tradição Clássica: ensaios sobre arquitetura. 1980-1987. São Paulo: Cosac y
Naify, 2004. p. 07-197.
36
Calovi, 1993.
INTRODUÇÃO
16
Assim sendo, as obras selecionadas dentro do recorte temporal estipulado, são
abordadas em termos descritivos, segundo os dados gráficos coletados como as plantas,
cortes, fachadas, croquis, perspectivas e demais elementos arquitetônicos a fim de aclarar os
projetos. Segue-se uma análise interpretativa dos projetos, no que diz respeito à concepção,
a forma e à funcionalidade dos mesmos. Através desse procedimento é possível uma
compreensão precedente à interpretação crítica. Por fim, realizada a descrição, identificam-se
as relações entre os projetos, a obra em geral e o contexto, o que possibilita uma visão
ordenada e abrangente da produção de Fresnedo Siri, que se destaca internacionalmente no
contexto da cultura arquitetônica do século XX.
A FORMAÇÃO DE ROMÁN FRESNEDO SIRI E O CONTEXTO ARQUITETÔNICO (1920-1970)
17
CAPÍTULO 1
1. A FORMAÇÃO DE ROMÁN FRESNEDO SIRI E O CONTEXTO ARQUITETÔNICO (1920-
1970)
O arquiteto Román Fresnedo Siri (fig.01) foi uma importante personalidade uruguaia
para a formação do quadro arquitetônico latino-americano, entre as décadas de 1940-1960,
comprovada pela realização de obras de grande destaque e de valor arquitetônico. Sua
carreira profissional é marcada pela atuação em seu próprio país, assim como no Brasil e nos
Estados Unidos.
Fresnedo Siri cursou a Faculdade de Arquitetura da Universidad de la República, entre
os anos de 1923 e 1930, em Montevidéu. No ano de 1930, recebeu o título de arquiteto e
começou a desenvolver sua prática profissional. A primeira viagem ao exterior foi realizada à
Europa, em 1937, onde esteve por mais outras duas vezes (1951 e 1956). Em 1941 e em
1956 viajou para os Estados Unidos. Esteve também em alguns países da América Latina, de
maneira especial no Brasil, país onde deixou obras significativas.
Fresnedo Siri nasceu em 04 de fevereiro de 1903, na cidade de Salto, no Uruguai. O
arquiteto permaneceu solteiro, não deixando descendência. Seu pai, Román Pio Fresnedo,
casou-se com Margarita Siri com a qual teve seis filhos: Fresnedo, Margarita, Santiago, Maria
01
01. Román Fresnedo Siri (1903-
1975)
A FORMAÇÃO DE ROMÁN FRESNEDO SIRI E O CONTEXTO ARQUITETÔNICO (1920-1970)
18
de los Angeles, Carlos e Maria de las Nieves
37
. Ainda quando criança, seus pais se mudaram
para o Paraguai, onde Fresnedo cursou o ensino fundamental e médio da escola. Quando
retornaram ao Uruguai, em Montevidéu, se inscreveu para o curso arquitetura no ano de
1923
38
.
02
37
FRESNEDO, Maria de las Nieves; ALBANELL FRESNEDO, Norah; ALBANELL FRESNEDO, Elena, Fresnedo Siri.
Montevidéu, 07 de fevereiro de 2008. Entrevista concedida a Jamile M. da Silva Weizenmann. Maria de las Nieves, irmã de
Fresnedo, de 94 anos, relatou parte da história da família descrita ao longo deste capítulo, junto com as filhas Norah e Elena.
As fotos referentes à biografia do arquiteto foram cedidas por Norah Albanell Fresnedo à autora.
38
LOUSTAU, Daniel; Román Fresnedo Siri: 20 años, Revista Relaciones, 240, 2004. p.02-03.
02. Fresnedo e a família. Recepção
na casa em Punta Ballena (s.d.).
A FORMAÇÃO DE ROMÁN FRESNEDO SIRI E O CONTEXTO ARQUITETÔNICO (1920-1970)
19
Os estudos sobre arquitetura, bem como a busca pelo aperfeiçoamento do
conhecimento das artes, garantiu um contato amplo com as diferentes áreas. Na música,
desde pequeno, era afeiçoado ao piano e teve aulas com um maestro alemão, Karl Friebig,
ainda no Paraguai. Para poucos, se revelou um talentoso pianista. Sua preferência era dada
à música de Bach e Beethoven.
Nas artes apreciava as pinturas de Monet, Picasso, Renoir e Van Gogh. O
envolvimento cultural e artístico de Fresnedo na sociedade fez dele também participante ativo
através de algumas associações de interesse cultural, como os Amigos da Arte e o Centro
Cultural da Música, em Montevidéu.
Fresnedo também era um hábil desenhista. A família mantém alguns dos croquis que
registram paisagens e monumentos observados nas viagens feitas ao exterior (fig. 05 a 10).
Além dos croquis a lápis, encontram-se desenhos e pinturas em carvão, giz pastel e lápis de
cor (fig.11-19).
05 06
03
04
03. Muro na casa de Punta Ballena.
Na foto, as sobrinhas de Fresnedo,
Norah e Elena.
04. Norah, Jamile, Maria de las
Nieves (irmã de Fresnedo) e Elena.
A FORMAÇÃO DE ROMÁN FRESNEDO SIRI E O CONTEXTO ARQUITETÔNICO (1920-1970)
20
07 08
09 10
05. Croqui, Fresnedo Siri, Egito, s.d.
06. Croqui, Fresnedo Siri, Egito, s.d.
07. Croqui, Fresnedo Siri, Egito, s.d.
08. Croqui, Fresnedo Siri, Catedral
de Pisa, s.d.
09. Croqui, Fresnedo Siri, Egito, s.d.
10. Croqui, Fresnedo Siri,
Arquitetura Gótica, s.d.
A FORMAÇÃO DE ROMÁN FRESNEDO SIRI E O CONTEXTO ARQUITETÔNICO (1920-1970)
21
11 12 13
14 15 16
11. Croqui tema de esportes,
Fresnedo Siri, s.d.
12. Croqui tema de esportes,
Fresnedo Siri, s.d.
13. Croqui, Fresnedo Siri, tema da
figura humana, s.d.
14. Croqui abstrato, Fresnedo Siri,
s.d.
15. Croqui abstrato, Fresnedo Siri,
s.d.
16. Croqui abstrato, Fresnedo Siri,
s.d.
A FORMAÇÃO DE ROMÁN FRESNEDO SIRI E O CONTEXTO ARQUITETÔNICO (1920-1970)
22
17 18 19
Além das artes e da música, Fresnedo apresentava o gosto pelos esportes náuticos,
em especial à navegação. A família tinha a posse de uma área de terras em Punta Ballena, a
140 km de Montevidéu, na qual ele projetou duas residências
39
e onde veraneavam por
quase três meses ao ano. O mar e a praia eram o refúgio de muitos membros da família. A
paixão por nadar, remar e navegar o levou a projetar e executar várias embarcações: Kid,
Realité, Astral I (fig.20-3), Catamarán I, Catamarán Rodas, Trimaran e Astral II. O
desenvolvimento dos projetos desses barcos era um desafio para Fresnedo, que gostava de
lidar com as dificuldades de pequenas embarcações, os tamanhos reduzidos e a técnica
precisa dos detalhamentos que envolvia essa temática.
39
Ver p.50 e 71.
17. Croqui abstrato, Fresnedo Siri,
s.d.
18. Croqui abstrato, Fresnedo Siri,
s.d.
19. Croqui tema da figura humana,
Fresnedo Siri, s.d.
A FORMAÇÃO DE ROMÁN FRESNEDO SIRI E O CONTEXTO ARQUITETÔNICO (1920-1970)
23
20 21
Permaneceu nas mentes dos conhecidos não apenas como arquiteto, mas também
como urbanista, fotógrafo, músico e pintor, além de deixar registros de desenhos de
mobiliário precisos e criativos, demonstrando o conhecimento do corpo humano e a afinidade
ao design.
Profissionalmente atuou na UTE – Usina de Telefonia do Estado, logo que se formou
arquiteto, atuando nesta empresa de 1932 a 1946. Neste período, fez duas viagens de estudo
aos Estados Unidos, nas quais buscou informações para futuros projetos, relacionados à
22
23
20. Projeto do barco, Fresnedo Siri,
s.d.
21. Projeto do barco, Fresnedo Siri,
s.d.
22. Pintura do barco, Fresnedo Siri,
s.d.
23. Construção do barco, Fresnedo
Siri, s.d.
A FORMAÇÃO DE ROMÁN FRESNEDO SIRI E O CONTEXTO ARQUITETÔNICO (1920-1970)
24
UTE. Entre os anos de 1954 e 1958 foi professor das disciplinas de Projeto de Arquitetura, na
Faculdade de Arquitetura, e de Construções Rurais, na Faculdade de Agronomia.
O trabalho que desenvolveu como arquiteto e professor, após 1930, estava baseado
nas doutrinas aprendidas ao longo do curso de arquitetura, principalmente pelo professor
José P. Carré
40
, uma figura de destaque no ensino da época, que influenciou a arquitetura da
geração egressa da faculdade nos anos 30 e 40. O pensamento de Carré estava vinculado às
idéias difundidas pela Escola de Belas Artes de Paris ligadas ao pensamento de Henri
Labrouste
41
.
As primeiras manifestações da arquitetura moderna têm sido interessantes, sinceras,
bem intencionadas porque constituem uma tentativa justa de associar as formas com as novas
exigências. Nasceu uma visão distinta, quase oposta à antiga, incompreensível no princípio para
a maioria dos arquitetos incrustados às formas antigas. Entretanto, esta visão encerrava em si
mesma uma verdade indiscutível, um anel de renovação, o princípio de uma era de liberdade e
independência. E não é de se estranhar, que os verdadeiros artistas, os que se sentiam capazes
de criar, adotaram o novo caminho que se oferecia às suas aspirações, já que encontraram o
espaço livre dos prejuízos acumulados nos séculos passados. [...] Ensinar não é dar fórmulas
boas ou más, antigas ou modernas. Com fórmulas não se faz arquitetura. Ensinar arquitetura é
ensinar a compor, estudar e expressar. [...] a originalidade consiste na tradução sincera do
programa, tendo em vista e analisando todas as particularidades nele contidas, expressando-as
bem e dando ao projeto um caráter próprio, com elementos criados com esse propósito, que lhe
proporcionarão um aspecto único e inconfundível. [...] A obra arquitetônica, como as outras
artes, deve ter qualidades de composição, deve estar formada por elementos cuja união não
pode ser arbitrária, deve existir entre eles relações íntimas e harmoniosas, valores relativos,
escala, proporção, ritmo, associações de formas, combinações de volumes, qualidades que
40
José P. Carré se formou na École de Beaux-Arts, na França, e veio para Montevidéu lecionar na Faculdade de Arquitetura
na década de 1920.
41
Arquiteto francês (1801-1875), se formou pela École de Beaux-Arts e criticou o ensino da Escola, entrando em conflito
contra a Academia principalmente a partir de 1830. Estava ligado à corrente racionalista da França e foi pioneiro no uso do
ferro através da Bibliothèque Saint-Genevieve (Paris, 1843-1850). cf. GIEDION, 2004, p.246.
A FORMAÇÃO DE ROMÁN FRESNEDO SIRI E O CONTEXTO ARQUITETÔNICO (1920-1970)
25
fazem inconfundível a obra de arte e cuja ausência não pode resultar senão em coisas sem
interesse artístico, frias, mortas.[...]Então onde está a verdade? Responderemos: a verdade
sempre existiu, a verdade é única. Encontraremo-la em todas as grandes épocas da história da
arquitetura. A verdade tinham os egípcios, os gregos. A verdade é a sinceridade, a adaptação às
necessidades de viver, a pureza formal, sua conformação com o sistema construtivo e com o
caráter do edifício.
42
Este tipo de doutrina está intimamente ligado ao pensamento de Julien Guadet,
principal expoente teórico da École des Beaux-Arts de Paris no final do século XIX e início do
século XX
43
. Os ensinamentos de Carré foram de suma importância para Fresnedo Siri, que
obteve uma formação arquitetônica de caráter racionalista combinada com as teorias Beaux-
Arts. Simultaneamente, surgiram correntes anti-historicistas em Montevidéu que chegavam
aos alunos por meio de publicações estrangeiras ou mesmo pela atuação de professores da
faculdade
44
. Aliado a este ensino estavam as idéias preconizadas por Le Corbusier, que se
reforçaram na América Latina após a sua visita em 1929
45
.
A formação intelectual de Fresnedo Siri, obtida através das diversas fontes e
experiências, se expressa em seus projetos. Sua arquitetura abarca elementos que
transcendem a técnica e a forma, invadindo o campo das artes, resquício de sua ampla
bagagem cultural. Durante todo o desenvolvimento profissional e pessoal se mostrou “capaz
42
CARRÉ, 1938, p.100-110.
43
CALOVI, 2005.
44
BORONAT, Yolanda. Fresnedo Siri. Montevidéu, 07 de fevereiro de 2008. Entrevista concedida a Jamile M. da Silva
Weizenmann. Segundo Boronat, as publicações de referência eram os periódicos Casabella, Summa e Revista Arquitectura.
45
LE CORBISIER, 2004.
A FORMAÇÃO DE ROMÁN FRESNEDO SIRI E O CONTEXTO ARQUITETÔNICO (1920-1970)
26
de abarcar disciplinas em escalas muito diferentes com a mesma sensibilidade e capacidade
técnica.”
46
Ao mesmo tempo em que esteve atuando na UTE ou também como professor na
Faculdade de Arquitetura, sua carreira se destacou pelas vitórias em concursos. Em 1938,
ganhou o primeiro lugar no concurso de anteprojetos para uma tribuna para 3500
espectadores no Hipódromo de Maroñas, em Montevidéu. Na ocasião, Fresnedo demonstrou
um surpreendente uso de estruturas de concreto e vidro
47
. Ainda em 1938, obteve em
parceria com o arquiteto Mario Muccinelli o primeiro prêmio para o anteprojeto da Faculdade
de Arquitetura
48
da Universidad de la República, também em Montevidéu. Neste mesmo ano,
projetou e construiu sua residência em Punta Ballena que mais tarde foi ampliada com a
construção de uma pequena casa para a família
49
.
A década de 1940 marcou de maneira especial a carreira do arquiteto no âmbito da
construção residencial, destacando-se casas como a do Sr. Barreira (1941) e a do Dr.
Dighiero (1946). Para o Hipódromo de Maroñas seguiu ganhando os primeiros prêmios dos
concursos realizados posteriormente: em 1942, o que teria como tema mais uma tribuna
especial e, em 1945, a tribuna do paddock. Também nesta década, o arquiteto projetou a
sede da UTE, conhecida também por Palácio da Luz (1943). Em 1946, a pedido do Dr,
Dighiero, projeta o Hospital Americano. Foi através deste hospital que Fresnedo teve o
46
ORTIZ, Cecília. Exposição Fresnedo Siri, Faculdade de arquitetura, Montevidéu, 2007.
47
Ver p.73.
48
Ver p.86.
49
Ver p.71.
A FORMAÇÃO DE ROMÁN FRESNEDO SIRI E O CONTEXTO ARQUITETÔNICO (1920-1970)
27
contato com o médico Nelson Líbero, do Brasil, que encomendou o projeto para o Hospital da
Mooca, em São Paulo, construído entre os anos de 1957 e 1961.
A arquitetura de Fresnedo se afirmou internacionalmente na década de 1950. Neste
período o arquiteto conciliou o domínio estrutural à maturidade na composição arquitetônica,
alcançada através de dois projetos significativos: o Hipódromo do Cristal
50
, o qual conquistou
o primeiro prêmio em concurso, juntamente com a construtora Azevedo Moura e Gertum
(1951) e o Edifício Esplanada
51
, encomendado pelos Irmãos Iochpe, que foi também
projetado e construído em parceria com a construtora Azevedo Moura e Gertum (1952). Em
1956, em Montevidéu, projetou a urbanização da Vila do Cerro
52
, conjunto que envolvia
edifícios de habitação coletiva e de serviços de apoio. Apenas um bloco residencial do
conjunto foi construído, impedindo a repercussão arquitetônica do projeto.
Os anos de 1960 a 1970 compreenderam as últimas obras do arquiteto, com ênfase
em dois projetos executados no exterior. Em 1961, mediante concurso, Fresnedo ganhou o
primeiro prêmio para a sede da Organização Pan-americana da Saúde (OPS) em
Washington, nos Estados Unidos. Em 1971, dez anos depois, o arquiteto é convidado a
projetar a sede da OPS em Brasília, devido à repercussão do projeto anterior nos Estados
Unidos. Román Fresnedo Siri faleceu em 27 de junho de 1975, quando retornava da cidade
de Washington para Montevidéu
53
.
50
Ver p. 138.
51
Ver p. 176.
52
Ver p. 198.
53
Segundo a irmã, Maria de las Nieves, Fresnedo sofreu dores de cabeça e faleceu de um possível acidente vascular cerebral
ainda no aeroporto de Washington, quando retornaria a Montevidéu.
A FORMAÇÃO DE ROMÁN FRESNEDO SIRI E O CONTEXTO ARQUITETÔNICO (1920-1970)
28
A trajetória de Román Fresnedo o distingue como um pioneiro da arquitetura moderna
uruguaia e uma figura importante para a construção e afirmação da arquitetura moderna da
América Latina, especialmente em relação às obras no sul do Brasil e no Uruguai. A sua
produção conta com projetos de caráter hospitalar, institucional e habitacional, segundo a
cronologia abaixo
54
:
1930- 2º Prêmio: Concurso Hospital de crianças para 1000 leitos.
1930- 2º Prêmio: Concurso Estádio para 1000 pessoas.
1930- Projeto para o clube Nacional de Regatas.
1930- Projeto para a Tienda Soler.
1932- 2º Prêmio: Concurso Plano da Avenida Agraciada.
1932- Ingressa como funcionário a UTE mediante concurso.
1934- 2º Prêmio: Concurso Universidade de Mulheres para 1200 alunas.
1935- Residência Sr. Nilo Berreta.
1936- 2º Prêmio: Concurso Bolsa Comércio.
1936- Estádio Clube Wanderers para 3000 pessoas.
1937- Trabalhos na exposição Retrospectiva da obra de Pedro Blanes Viale.
1938- Residência Arq. Fresnedo Siri- Punta Ballena.
1938- 5º Prêmio: Concurso Anteprojeto Palácio da Justiça
1938- 1º Prêmio: Concurso Tribuna Hipódromo de Maroñas
1938- 1º Prêmio: Concurso Faculdade de Arquitetura
1939- Integra o corpo de jurados do Concurso de Anteprojetos para a iluminação da Avenida
18 de Julho, no Carnaval de 1940.
1941- 1º Prêmio: Concurso Museu de arte moderna de Nova Iorque.
1941- Residência Sr. Barrera.
1942- 1º Prêmio: Concurso Tribuna popular do Hipódromo de Maronãs.
1942-44- Urbanização na zona Arroio Seco.
1943-48- Edifício da administração de UTE 30.000m2. (Usinas de Telefonia do Estado)
1944- Viaja para Argentina para realizar gratuitamente o projeto de uma Escola na cidade de
San Juan.
54
BORONAT; RISSO, 1984, p.120-121.
A FORMAÇÃO DE ROMÁN FRESNEDO SIRI E O CONTEXTO ARQUITETÔNICO (1920-1970)
29
1945- 1º Prêmio: Concurso para o Paddock no Hipódromo de Maroñas.
1946- Renuncia seu cargo de funcionário na UTE.
1946- Hospital Americano.
1946- Residência Dr. Juan C. Dighiero.
1947- Projeto Auditório SODRE Montevidéu.
1949- 2º Prêmio: Concurso Palácio Municipal em Maldonado.
1951- 1º Prêmio: Concurso Internacional para a Villa Hípica e Hipódromo de do Cristal, em
Porto Alegre.
1952- Urbanização Rincón Del Bonete.
1952- Edifício Esplanada, Porto Alegre.
1953- 3º Prêmio: Concurso Escola Eletrotécnica.
1954- Residência Sr. Dutra Pereira.
1956- Urbanização Vila do Cerro.
1956- Termas do Arapey. Centro de recreação e Turismo.
1951-61- Varias construções hospitalares:
Ampliação Hospital Britânico-100 leitos.
Pavilhão para doentes: 30 leitos.
Hospital Saint-Bois.
Hospital Sanatório de Colón. 640 leitos.
Hogar infantil: 120 leitos.
Fundação Hospital Psiquiátrico.
Fundação Nacional de Saúde e Bem-estar da criança
1959- Edifício para a Comissão Honorária para a Luta Antituberculose.
1961- 1º Prêmio: Concurso Internacional para o edifício Sede da Organização Pan-americana
da Saúde, Washington D.C.
1961- Residênca Sr. Ildefonso Florines.
1962- Oficinas para a Companhia Varig.
1964- Ampliação Cultural da Embaixada Uruguaia nos Estados Unidos.
1962- Oficinas para a Companhia Varig.
1966- Monumento a Luis Batlle Berres.
1971- Edifício para a Sede da organização Pan-americana da Saúde – Brasil.
1968- Residência Sr. B. Rossengurtt . (não foi construída).
1972- Edifício CEPIS, Lima, Peru.
1974- Edifício para o Hospital Militar.
S.d. – Residência Sr. O. Martirena.
A FORMAÇÃO DE ROMÁN FRESNEDO SIRI E O CONTEXTO ARQUITETÔNICO (1920-1970)
30
S.d- Residência Sr. C. de Ferrari.
S.d- Residência Sr. Mezzena Alvarez. (demolida)
S.d- Residência Sra. C. Olivera de Puimayen.
S.d- Residência Sra. M. Muñoz de Barani.
S.d- Residência Sr. Percopo la Banca.
S.d- Residência Dr. Julio Barani.
S.d- Residência Sra. M. Tafernaberry de Uría.
S.d- Residência Sr. Francisco Balbi.
S.d- Residência Sra. Fernández de Arabety.
S.d- Residência Sra. De Colombino.
S.d- Residência Sr. Angel Mega.
S.d-Residência coletiva Sr. Carlos M. Pintos.
S.d- Residência coletiva Sra. M. Méndez de García Capurro.
S.d-Residência coletiva Dr. E. Sánchez Varela.
A FORMAÇÃO DE ROMÁN FRESNEDO SIRI E O CONTEXTO ARQUITETÔNICO (1920-1970)
31
1.1 CONTEXTOS DE UMA ARQUITETURA
Para compreender o contexto no qual se insere a obra de Fresnedo, é importante um
breve retorno às bases da arquitetura moderna
55
, bem como a sua repercussão na América
Latina, mais precisamente no Uruguai
56
. O desenvolvimento da arquitetura moderna em
alguns países, como o Brasil e a Argentina, também contribuiu para o desenvolvimento da
arquitetura uruguaia, uma vez que algumas características estilísticas são encontradas
nesses países.
O início do século XX é balizado por um conjunto de movimentos culturais e artísticos,
que nasceu devido às transformações sociais, econômicas, tecnológicas e científicas que
pairavam sobre a Europa. Estes movimentos agitaram o velho mundo e tiveram seu ponto de
partida no final do século XIX.
As vanguardas artísticas que criaram a arte moderna acreditavam que as mudanças
sociais requeriam também uma alteração no âmbito artístico, seguindo a lógica das condições
culturais e do avanço técnico - científico da nova época. Entre seus pioneiros destacam-se
nomes como Moholy-Nagy, Kandinsky, Cézzane, Picasso, Mondrian e Van Gogh, na pintura;
Rodin na escultura; Mallarmé e Baudelaire na poesia; entre outros que organizaram
exposições e debates, nos quais manifestavam o anseio pela nova arte e pelo novo espírito.
As vertentes artísticas suscitadas na pintura, como o Cubismo de Picasso, o
Neoplasticismo de Mondrian, e o purismo de Ozenfant, foram decisivas na produção da
55
Cf. FRAMPTON, 1983 e GIEDION, 2004.
56
BROWNE, 1988.
A FORMAÇÃO DE ROMÁN FRESNEDO SIRI E O CONTEXTO ARQUITETÔNICO (1920-1970)
32
arquitetura moderna. Também foi importante para a arquitetura moderna a influência da
Bauhaus
57
, de Gropius, na qual atuaram Kandinsky e Moholy-Nagy.
Além das novas correntes artísticas, as inovações no campo tecnológico também se
relacionaram diretamente à arquitetura e à engenharia, nas quais as novas técnicas e
materiais trouxeram como conseqüência um novo modo de pensar a estrutura e a construção.
Desse modo, a ideologia maquinista tomava as mentes dos engenheiros. O concreto
armado
58
representaria o cerne da expressão arquitetônica moderna a partir de 1910, com
destaque para a produção dos arquitetos Le Corbusier, Walter Gropius e Mies van der Rohe,
que exerceram um papel decisivo na arquitetura da primeira metade do XX. Nos Estados
Unidos, Frank Lloyd Wright revelou-se como um dos pioneiros da arquitetura moderna.
Gropius e Mies também tiveram obras produzidas nos Estados Unidos, este último
principalmente em Chicago.
A discussão arquitetônica se manifestava contra os revivals estilísticos que não refletiriam
o espírito da época. Contudo, foi no discurso e na produção de Le Corbusier
59
, que a
arquitetura moderna se consolidou. O arquiteto desenvolveu o sistema Dom-inó
60
, em 1914, e
publicou, em 1926, os cinco pontos
61
para nova arquitetura, como uma normativa formal, em
conseqüência da própria estrutura independente gerada pelo sistema Dom-inó. A fachada
57
A Bauhaus foi uma escola de vanguarda, fundada por Walter Gropius (1883-1963), em 1919, na Alemanha, que buscou
unir a arte e o design à vida industrial, propondo diretrizes para uma arquitetura contemporânea válida. Funcionou entre
1919 e 1933. Sobre a Bauhaus e os representantes dessa escola, cf. GIEDION, 2004, p.519-546.
58
O concreto armado teve como grande representante na França François Hennebique (1842-1921), e, posteriormente foi
utilizado como base da arquitetura de August Perret (1875-1955) e Tony Garnier (1869-1948).
59
Ver referências bibliográficas.
60
LE CORBISIER, 2004.
61
Idem, 2006.
A FORMAÇÃO DE ROMÁN FRESNEDO SIRI E O CONTEXTO ARQUITETÔNICO (1920-1970)
33
livre, a planta livre, o pilotis, a janela em fita e o terraço jardim formam a sintaxe corbusiana,
representada nas “quatro composições”, introduzindo conceitos de uma teoria que influenciou
grande parte da arquitetura do século XX. A principal obra que traduziu esses conceitos e
marcou a fase inicial de Corbusier foi a Villa Savoye (1928-1930).
De acordo com a nova arquitetura e com os avanços tecnológicos, inaugurou-se o CIAM,
Congresso Internacional de Arquitetura Moderna, em 1928, como um meio de difundir e
discutir as teorias da arquitetura e do urbanismo moderno. Le Corbusier e Sigfried Giedion
foram teóricos expoentes desses congressos, que ocorreram em diversas cidades da Europa.
A FORMAÇÃO DE ROMÁN FRESNEDO SIRI E O CONTEXTO ARQUITETÔNICO (1920-1970)
34
1.2 A NOVA ARQUITETURA NA AMÉRICA LATINA
Na América Latina o processo de industrialização foi tardio em relação à Europa. O uso
de materiais e de técnicas modernas se concentrava em obras de infra-estrutura, como
pontes e ferrovias. O marco de mudanças artísticas também se demonstrou lento em relação
à Europa, iniciando somente por volta de 1920.
Além do atraso, as condições físicas e econômicas para a inserção da nova arquitetura
eram fatores consideráveis e limitavam a aceitação da arquitetura moderna. As condições
técnicas eram distintas da Europa e a realidade local impôs suas próprias condições para
seguir o modelo Europeu. O concreto armado, por exemplo, começou a ser produzido e
aplicado no Chile em 1930
62
. Além disso, a imagem arquitetônica ainda estava ligada aos
sistemas de eixos e a simetria do estilo neoclássico.
Durante a primeira metade do século XX, surgiram propostas de novos modelos formais
que tinham como objetivo a ruptura com as teorias acadêmicas tradicionais. O academicismo
mantinha a doutrina clássica e fornecia a individualidade de cada obra numa época de
predomínio do ecletismo. Browne descreve a situação deste momento como um ecletismo
generalizado, uma mescla de neoclassicismo e neo-renascimento, somado aos revivals
românticos
63
.
Propagaram-se, portanto, no início do século, algumas vertentes que tinham a intenção de
quebrar os paradigmas das teorias acadêmicas, entre elas o Art Nouveau e o Art Déco.
62
BROWNE, 1988, p.25.
63
Idem, p.15.
A FORMAÇÃO DE ROMÁN FRESNEDO SIRI E O CONTEXTO ARQUITETÔNICO (1920-1970)
35
Segundo Gutierrez
64
, o Art Nouveau, nascido das experiências modernistas na Europa,
foi desenvolvido na América Latina com algumas características particulares. Vinculava-se
também ao modernismo catalão e foi considerado uma das primeiras reações anti-
acadêmicas na América Latina. Porém, O Art Nouveau foi aplicado a diversas obras como
simples cópia do que se produzia na Europa, sem qualquer relação com o contexto. Para
muitos arquitetos, tornou-se uma alternativa aos demais estilos, principalmente ao ecletismo e
ao romantismo. De certa forma, este estilo esteve combinado aos demais, como por exemplo,
no Pavilhão do Paraguai na exposição do Centenário, em Buenos Aires, 1910 (fig. 24).
O Art Nouveau foi o primeiro passo na busca de uma arquitetura emancipada do
historicismo na América Latina, assim como na Europa. Em algumas obras estavam
presentes as soluções construtivas utilizando a técnica do concreto armado, como expressa o
Clube Espanhol (1916), de Francisco Roca, na Argentina. A tecnologia do ferro e do concreto
armado foi explorada de forma inédita neste estilo, que permitiu novas indagações em torno
da arquitetura na América Latina, rompendo com as teorias clássicas existentes na época.
Mario Palanti, arquiteto proveniente da Itália, destacou-se nessa corrente estilística
através de sua produção arquitetônica, principalmente na Argentina e no Uruguai. Sua obra,
inicialmente eclética, passou por transformações técnicas fundamentadas no uso de concreto
armado, proporcionando uma alternativa que vinculava tradição histórica e
contemporaneidade. Palanti se preocupava com questões sociais e culturais, além de ter uma
grande versatilidade. Entre suas obras mais significativas estão o Palácio Salvo, em
Montevidéu (1922, fig.25) e o Palácio Barolo (1922), em Buenos Aires.
64
GUTIÉRREZ, 2002.
24
25
24. Pavilhão do Paraguai, 1910,
Buenos Aires.
25. Palácio Salvo, Palanti, 1922,
Montevidéu.
A FORMAÇÃO DE ROMÁN FRESNEDO SIRI E O CONTEXTO ARQUITETÔNICO (1920-1970)
36
Paralelamente, havia esforços para criar uma arquitetura com caráter nacional na
América Latina. O discurso nacionalista teve como conseqüência mais importante o
surgimento de estilos nacionais vinculados à história de cada país, tal como o neocolonial.
Em 1925 surge o Art Déco, cristalizado na exposição Internacional de Arte Decorativa
e Industrial Moderna de Paris, vindo manifestar-se também em solo latino-americano. Em
1925, as notas sobre esta exposição foram publicadas na Revista Arquitectura, de
Montevidéu. O Art Déco possibilitou a inserção dos novos modelos europeus imbuídos do
ideal racionalista. Os antecedentes deste momento estão nas obras de Perret, Hoffman e
Garnier. A arquitetura passava a ser marcada pela geometria das formas e justaposições de
volumes. No ano de 1926 foi construído o Mercado de Flores, do arquiteto Juan Scasso, em
Montevidéu, que reuniu as principais características desse movimento. Segundo Gutiérrez:
A adoção do Art Déco expressa uma realidade contraditória enquanto significa por um
lado a incorporação das novas tecnologias: do concreto armado, ferro, superfícies envidraçadas,
estruturas independentes e uma geometria ordenadora que, às vezes, se dilui no ornamento
65
.
O Art Déco precedeu o advento das vanguardas arquitetônicas européias na América
Latina. Maurício Cravotto, importante arquiteto uruguaio, comentando a respeito da
exposição de 1925 em Paris, citou que o Art Déco contribuía para o início do Movimento
Moderno no sentido da valorização da geometria, das proporções e da ordenação dos
elementos. Ele enfatizou que esta arquitetura tinha valores fundamentais de simplicidade,
65
Idem, p.168.
A FORMAÇÃO DE ROMÁN FRESNEDO SIRI E O CONTEXTO ARQUITETÔNICO (1920-1970)
37
força, bom gosto e verdade
66
. Este estilo colocou de lado a ornamentação historicista. A
intenção era desenhar elementos decorativos originais, jogando com as reentrâncias e
saliências, produzindo efeitos inovadores. A idéia de justaposições e adaptações de novos
materiais era fundamental na expressividade das obras. A simplicidade formal gerou uma
alternativa ao neocolonial e ao academicismo. Durante alguns anos, o Art Déco tornou-se a
arquitetura oficial de muitas cidades da América Latina como Córdoba, Buenos Aires, São
Paulo, Montevidéu e Porto Alegre. Gutierrez descreve, nos seguintes termos, o contexto
arquitetônico latino-americano entre as guerras mundiais:
Ao preparar o advento do Movimento Moderno, “o carnaval de estilos” que mencionou
Pevsner, parecia quase completo: a paisagem urbana americana estava opaca e confusa […]
verdadeiras decorações de teatro em tonalidades medievais, renascimentos ou Andaluzias
hollywoodianas, que jamais haviam tido relação com a história do país [...] de haver conseguido
ser tudo ao mesmo tempo, na realidade já não eram nada.
67
Após a II Guerra Mundial, entre os anos de 1950 e 1970, é que se torna, enfim, possível
traçar um breve panorama da arquitetura moderna latino-americana. Enquanto os Estados
Unidos se firmavam como uma grande potência mundial e a Europa se ocupava com a
reconstrução, a América Latina, apesar de subdesenvolvida, apresentava um conjunto de
jovens nações favorável ao crescimento, que tomava proporções avançadas devido ao
desenvolvimento tecnológico. Esse panorama favoreceu a industrialização, acompanhada
pelo aumento da população nas principais cidades e capitais, entre elas a Cidade do México,
Buenos Aires, São Paulo e Rio de Janeiro.
66
CRAVOTTO, 1938.
67
GUTIÉRREZ, 2002, p. 572.
A FORMAÇÃO DE ROMÁN FRESNEDO SIRI E O CONTEXTO ARQUITETÔNICO (1920-1970)
38
Nesse contexto, a arquitetura moderna se inseriu como um símbolo de progresso e de
desenvolvimento, na busca por uma identidade que refletisse as mudanças culturais. Porém,
este processo ocorreu de modo diferente da Europa. Browne compara os contextos da
seguinte forma:
[...] se na Europa a preocupação era como modificar as instituições para adequá-las à
transformação experimentada pela sociedade, na América Latina a preocupação foi como alterar
a sociedade para adequá-la ao modelo imaginado de instituições modernizadas
68
.
A cultura, o clima, a sociedade e a situação política eram de fato distintas. Dessa forma,
surgiu a necessidade de equilibrar o espírito moderno com as condições locais, como
enfatizariam Lúcio Costa em seus discursos no Brasil e José Villagrán Garcia, no México.
Segundo Garcia, deveria se “produzir uma obra que pertencesse autenticamente ao seu
tempo, mas levando em consideração as condições de economia e idiossincrasia do país
[México]”
69
. Na Argentina, a manifestação chegou através das palavras de Ernesto Vautier e
Alberto Prebisch em 1924: “nossa situação excepcional de povo sem passado e sem tradição
nos permite considerar objetivamente as condições de vida atual e tratar de ver claro o
espírito da época”
70
. No Uruguai, a primeira atitude a favor da mudança se refletiu na criação
da Escola Experimental de Malvin, em 1928, de Juan A. Scasso (fig.26), na qual predominou
o estilo Art Déco. O ponto de discussão era, no momento, a busca pelo caráter local e
compatibilidade entre o estilo internacional e o meio no qual se introduzia.
68
BROWNE, 1988, p.12.
69
Idem, ibidem.
70
Idem, p. 14.
26
26. Escola Experimental Malvin,
Juan A. Scasso, 1928, Montevidéu.
A FORMAÇÃO DE ROMÁN FRESNEDO SIRI E O CONTEXTO ARQUITETÔNICO (1920-1970)
39
Os precursores das transformações da arquitetura na América Latina tiveram contato
direto com a Europa. Dentre eles estavam alguns emigrados como o russo Gregori
Warchavchik, que veio para São Paulo em 1923, Wladimiro Acosta, para Buenos Aires em
1928, o espanhol Antonio Bonet Castellana que chegou a Buenos Aires em 1938, e Manuel
Mujica, arquiteto espanhol, que chegou a Caracas em 1927. Outros pioneiros latino-
americanos estabeleceram contato com a Europa através de viagens para estudar ou
conhecer a arquitetura moderna pessoalmente, como Alberto Prebisch e Luís Barragán.
Arquitetos importantes se destacaram em seus países como Teodoro González de León,
José Villagrán Garcia e Feliz Candela no México, Emílio Duhart, no Chile, Germán Samper,
na Colômbia, Jorge Aguirre na Venezuela, Clorindo Testa e Antônio Vilar na Argentina, Júlio
Vilamajó no Uruguai, Lúcio Costa e Oscar Niemeyer no Brasil.
27
28
27. Residência, Gregori
Warchavchik, 1930, São Paulo.
28. Residência, Manuel Mujica,
1935, Caracas.
A FORMAÇÃO DE ROMÁN FRESNEDO SIRI E O CONTEXTO ARQUITETÔNICO (1920-1970)
40
29 30
31 32
29. Residência, Antônio U. Vilar,
1940, Bueno Aires.
30. Residência, Luís Barragán,
1947, México.
31. Residência, Julio Vilamajó,
1930, Montevidéu.
32. Residência, Alberto Prebish,
1937, Buenos Aires.
A FORMAÇÃO DE ROMÁN FRESNEDO SIRI E O CONTEXTO ARQUITETÔNICO (1920-1970)
41
33
34
35
36
33. Faculdade de Engenharia da
Universidad de la República de
Montevidéu, Júlio Vilamajó, 1938,
Montevidéu.
34. Pousada em Solana del Mar,
Bonet Castellana, 1946, Punta
Ballena.
35. Edificio Suipacha, Bonet
Castellana, 1939, Buenos Aires.
36. Edificio Suipacha, Bonet
Castellana, 1939, Buenos Aires.
A FORMAÇÃO DE ROMÁN FRESNEDO SIRI E O CONTEXTO ARQUITETÔNICO (1920-1970)
42
1.3 A ARQUITETURA MODERNA NO URUGUAI
A arquitetura no Uruguai alcançou níveis significativos de desenvolvimento durante as
décadas de 1940-1960, não somente em comparação com a evolução arquitetônica do
próprio território, como também em relação ao panorama latino-americano. Maurício Cravotto
e Julio Vilamajó foram importantes arquitetos no processo de introdução da arquitetura
moderna no Uruguai.
Em Montevidéu, dos anos 30 até os anos 50, percebeu-se o crescimento urbano da
cidade. O desenvolvimento de edifícios intensificou-se com a promulgação da Lei de 1946
71
que representou um marco importante para a concretização de muitos edifícios em altura na
cidade.
Em 1929, a visita de Le Corbusier a Montevidéu representou um novo passo para a
modernidade no Uruguai, quando se reforçaram as manifestações por uma nova arquitetura.
Os arquitetos uruguaios apresentavam-se entusiasmados com o processo de modernização e
encontravam-se imbuídos de ideais renovadores inspirados na arquitetura moderna européia.
Tais ideais se manifestaram em uma série de obras que combinavam novas tecnologias com
linguagem renovadora.
A linguagem arquitetônica uruguaia teve diversas expressões de estilos arquitetônicos.
Na primeira metade do século XX, a influência era diversa, marcada pelo expressionismo,
ecletismo, neoclassicismo e o Art Decó. Essa produção foi caracterizada pela forte presença
71
Lei nº10. 751 de 25 de junho de 1946, permitindo construções em altura. Fonte: ELARQA nº11, Montevidéu, Dos Puntos,
1996.
A FORMAÇÃO DE ROMÁN FRESNEDO SIRI E O CONTEXTO ARQUITETÔNICO (1920-1970)
43
da tradição acadêmica, resultado da formação desses profissionais. Pardo comenta sobre
este período:
Os que se formaram nessa época sofriam muito quando enfrentavam uma grande
resistência a esta nova mentalidade, inclusive por parte dos nossos próprios professores de
ateliê, que ao meu modo de ver, se aferraram ao Art Déco, pois não queriam renunciar a tudo
aquilo que vinham herdado do século passado -o neoclássico- mas que por outra parte queriam
entrar nas formas geométricas puras do racionalismo arquitetônico
72
.
Um dos primeiros exemplares deste intento inovador da arquitetura uruguaia foi o
Palácio Salvo (1922-28, fig. 37), mencionado anteriormente
73
, projeto do arquiteto Mario
Palanti, com o uso do concreto armado, considerado para a época como um elemento de alta
tecnologia. A partir deste ponto, pode-se traçar um esquema da arquitetura uruguaia entre as
décadas de 1930 a 1960 que se define por dois momentos. O primeiro deles ocorre entre
1930 e 1950, sendo caracterizado pelo surgimento de obras desvinculadas do Historicismo e
ligadas a correntes como o Art Nouveau, o Racionalismo Estrutural
74
, o Expressionismo e o
Art Déco.
Neste caso, destacam-se as obras de arquitetos como Júlio Vilamajó, Maurício
Cravotto e a obra inicial de Fresnedo Siri
75
. As principais obras são o Edifício Él Mastil
(Gonzalo Barrière e Rafael Ruano, 1934, fig. 38), o Palácio Rinaldi (Gonzalo Barrière e Rafael
72
PARDO, Garcia. In.: GAETA, Júlio C. Entrevista sobre Luis Garcia Pardo. ELARQA. Revista bimestral de arquitectura
y diseño. Montevidéu: Dos Puntos Ed. Edição especial Luís Garcia Pardo, 2000.
73
Ver p. 35.
74
Com base na obra de Perret e Hoffmann.
75
Ver capítulo 2.
A FORMAÇÃO DE ROMÁN FRESNEDO SIRI E O CONTEXTO ARQUITETÔNICO (1920-1970)
44
Ruano, 1929, fig. 39), o Edifício Centenário (Campos, Puente e Tournier,1930, fig. 40), o
Edifício Tapié (Vásquez Echeveste,1934, fig. 41), o Rambla Hotel (Cravotto,1931, fig. 42), o
Palácio Municipal (Cravotto, 1936-68) e o Palácio Díaz (Gonzalo Barrière e Rafael Ruano,
1929).
O segundo momento ocorre nas décadas de 1950 a 1960 e abarca características da
arquitetura moderna já consolidada por meio da obra de Le Corbusier, Mies van der Rohe e
ao modernismo brasileiro. Nesse período as obras de Pardo, Sichero e Fresnedo Siri
76
se
destacam. Entre os exemplares estão os edifícios El Grilo (Pardo, 1959, fig. 43), El Positano
(Pardo, 1959, fig. 44), Chiloé (Pardo, 1958, fig. 45), El Pilar (Pardo, 1957, fig. 46), Santos
Dumont (Risso, 1959, fig. 47), Pan-americano (Sichero,1958, fig. 48), Malecón (Delfino e
Ramos,1964, fig. 49), Pocitos (Barreiro, 1951, fig. 50) e Martí (Sichero, 1952, fig. 51). Os
exemplos expressam o uso do vidro em larga escala, da fachada livre, da planta livre, do
edifício sobre pilotis, do concreto armado, das formas geométricas puras e do uso da
proteção solar e de grelhas nas fachadas.
Cabe mencionar que esta divisão mostra as tendências principais e não deve ser
tomada rigidamente. A prova disso é a obra pioneira de Antoni Bonet
77
no Uruguai, que
introduz, nos anos 40, uma arquitetura de forma e espacialidade modernas num contexto
não-moderno.
76
Ver capítulo 3 e 4.
77
LUCCAS, 2007. Segundo Luccas, é inegável a influencias dos edifícios de Bonet sobre o surgimento de uma arquitetura
verdadeiramente moderna no Uruguai, a partir das idéias de Le Corbusier e de Aalto perceptíveis neles.
A FORMAÇÃO DE ROMÁN FRESNEDO SIRI E O CONTEXTO ARQUITETÔNICO (1920-1970)
45
Percebe-se a influência da arquitetura moderna brasileira no Uruguai, principalmente
em relação aos desdobramentos ocorrido no Rio Grande do Sul através da escola carioca.
Alguns arquitetos trocavam experiências entre os dois países vizinhos, entre eles Demétrio
Ribeiro, graduado pela Faculdade de Arquitetura de Montevidéu, em 1943, que atuou na
prefeitura de Porto Alegre e lecionou na Universidade Federal do Rio Grande do Sul. Edvaldo
Pereira Paiva também estava engajado em projetos em Porto Alegre e obteve sua formação
em Montevidéu. Fresnedo Siri destacou-se entre os arquitetos que atuaram no Brasil, uma
vez que sua obra mostrou-se moderna e original em relação ao panorama presente na
década de 1950.
A FORMAÇÃO DE ROMÁN FRESNEDO SIRI E O CONTEXTO ARQUITETÔNICO (1920-1970)
46
37 38 39
40 41 42
37. Palácio Salvo, Mario Palanti,
1922-1928, Montevidéu.
38. Edifício Él Mastil, Gonzalo
Barrière e Rafael Ruano, 1934,
Montevidéu
.
39. Palácio Rinaldi, Gonzalo Barrière
e Rafael Ruano, 1929, Montevidéu.
40. Edifício Centenário, Campos,
Puente e Tournier, 1930,
Montevidéu.
41.
Edifício Tapié Vásquez
Echeveste, 1934, Montevidéu.
42.
Edifício Rambla, Maurício
Cravotto, 1931, Montevidéu.
A FORMAÇÃO DE ROMÁN FRESNEDO SIRI E O CONTEXTO ARQUITETÔNICO (1920-1970)
47
44 45 46
47 48 49
43
43. Edifício El Grillo, Pardo, 1959,
Montevidéu.
44. Edifício Positano, Pardo, 1959,
Montevidéu.
45. Edifício Chiloé, Pardo, 1958,
Montevidéu.
46. Edifício El Pilar, Pardo, 1957,
Montevidéu.
47. Edifício Santos Dumont, Risso,
1959, Punta del Este.
48. Edifício Pan-americano, Sichero,
1958, Montevidéu.
49. Edifício Malecón, Delfino e
Ramos, 1964, Montevidéu.
A FORMAÇÃO DE ROMÁN FRESNEDO SIRI E O CONTEXTO ARQUITETÔNICO (1920-1970)
48
50 51
Nesse contexto, Román Fresnedo Siri torna-se um expoente da produção arquitetônica
moderna no Uruguai. O seguimento desta investigação irá examinar as principais obras deste
arquiteto, procurando identificar sua importância como experiências de projeto no âmbito da
modernidade.
50. Edifício Positos, Barreiro, 1951,
Montevidéu.
51. Edifício Martí, Sichero, 1952,
Montevidéu.
PROJETOS E OBRAS NO URUGUAI (1938-1946) Residências
49
CAPÍTULO 2
2. PROJETOS E OBRAS NO URUGUAI (1938-1946)
Esta fase marca o início da carreira profissional de Fresnedo Siri. Formado em 1930,
ele tem como trabalhos iniciais uma série de residências, tais como a Residência Fresnedo
Siri (1938), a Residência Barreira (1941), a Residência Mezzera e a Residência O.Martirena
(década de 40), a Residência Dighiero e Martirena (1946), a Residência Florines (1961), e a
Residência Albanell Fresnedo (1963). Num segundo momento, surgem projetos de maior
porte, como o Hipódromo de Maroñas (1938), a Faculdade de Arquitetura (1938), o Palácio
da Luz (sede da UTE, 1943) e o Hospital Americano (1946), que mostram Fresnedo lidando
com temas mais complexos e afirmando um modo particular de fazer arquitetura.
2.1 RESIDÊNCIAS
O período inicial da carreira profissional de Fresnedo Siri, entre os anos de 1938 e
1950, é marcado pela presença de projetos e obras de residências unifamiliares. Entre as
suas primeiras realizações está a sua própria casa, em Punta Ballena (fig.52-3),
Departamento de Maldonado, datada de 1938. Em Montevidéu ele realiza diversas casas
78
,
78
Yolanda Boronat e Marta Risso registram 19 residências, muitas sem data e registros. Cf. BORONAT; RISSO, 1984, p.
121.
52
53
52. Punta Ballena, Uruguai.
53. Punta Ballena, Uruguai.
PROJETOS E OBRAS NO URUGUAI (1938-1946) Residências
50
das quais algumas foram demolidas, outras não se encontram registros e ainda outras são
inacessíveis.
2.1.1 Residência Fresnedo Siri – Punta Ballena – 1938
Inabitada por aquela época, mas de extraordinária beleza natural Punta Ballena é eleita
por Fresnedo para implantar sua residência de descanso, transparente e simples, onde exterior
e interior se integram totalmente e onde apresenta algumas de suas constantes arquitetônicas: a
grande escada de acesso e a cornija
79
.
Punta Ballena é uma região de veraneio do sudeste do país, que apresenta ao mesmo
tempo a beleza natural do mar e das serras. Está situada entre Piriápolis e Punta del Este, a
140km de Montevidéu.
A serra mais ondulada ao adentrar o oceano Atlântico serve como abrigo para um
conjunto de atrativos naturais e artificiais, favorecendo o turismo, inclusive nos meses de
outono e primavera. Neste local estão a Praia de Portozuelo e o moderno parador de Solana
del Mar
80
(Bonet Castellana, 1946, fig.56-7), centros de interesse dos veranistas. Os bosques
e florestas também são atrativos do local.
79
ORTIZ, Cecília. Exposição Román Fresnedo Siri, Faculadade de Arquitetura, Montevidéu, setembro de 2007.
80
Sobre o Parador Solana del Mar, cf. COMAS, Carlos E; ADRIÀ, Miguel. La casa latinoamericana moderna, Barcelona:
GG, 2004. Também se encontram informações nos artigos: LUCCAS, 2007; e, SEGRE, Roberto. Ameaçado um ícone do
modernismo uruguaio. A hospedaria e restaurante Solana del Mar em Punta del Este. Portal Vitruvius, ano 6, vol. 8,
março, 2006, p.156.
54
55
54. Punta Ballena, Uruguai.
55. Punta Ballena, Uruguai.
56. Parador Solana del Mar, Bonet
Castellana, 1946, Punta Ballena.
57. Parador Solana del Mar, Bonet
Castellana, 1946, Punta Ballena.
PROJETOS E OBRAS NO URUGUAI (1938-1946) Residências
51
56 57
A residência em Punta Ballena foi concebida, segundo as sobrinhas de Fresnedo, para
ser um lugar de descanso, de lazer e de reuniões da família. Neste local ele costumava
receber seus amigos do exterior, seus familiares e tinha o hábito de levar os sobrinhos para
passar as férias e desfrutar da paisagem de Punta Ballena no verão.
PROJETOS E OBRAS NO URUGUAI (1938-1946) Residências
52
58
A implantação (fig.59) é dada de forma orgânica no terreno no qual a casa se destaca
como um retângulo de aproximadamente 10x14 metros no qual estão dispostas as funções. O
entorno também é todo projetado pelo arquiteto, desde a plantação da vegetação, proposta
de muros, escadarias e áreas de jardins e pavimentadas. A regularidade da planta é
quebrada pelas curvas desenhadas sutilmente na área externa, bem como na parede sinuosa
em tijolo a vista ao lado do acesso principal.
58. Destaque da localização das
casas de Fresnedo Siri e das
sobrinhas Albanell. Punta Ballena,
Uruguai.
PROJETOS E OBRAS NO URUGUAI (1938-1946) Residências
53
59
A partir da implantação e do térreo (fig.61) observa-se que o acesso é dado pela
escadaria frontal que ocupa desde a parede curva até a quina do volume, ligando a área
externa à porta envidraçada da entrada que direciona à sala de jantar e estar integrados. Este
ambiente é o mais precioso e interessante da casa. Possui uma largura de aproximadamente
4,50 metros com pé-direito duplo, totalmente envidraçado, conformando uma caixa de cristal.
A vista para a baía com a praia se descortina neste ambiente. Na esquina envidraçada
60
59. Residência Fresnedo Siri,
Implantação, 1938, Punta Ballena.
60. Residência Fresnedo Siri,
acesso principal, 1938, Punta
Ballena.
PROJETOS E OBRAS NO URUGUAI (1938-1946) Residências
54
(fig.62), o arquiteto desenvolve um sistema em que as esquadrias de vidro correm
integralmente para dentro das paredes, permitindo transformar o estar num espaço aberto ao
exterior e coberto.
O térreo conta ainda com uma copa/cozinha e dois dormitórios com suítes, sendo que
um deles possui um closet. As áreas privadas são mais fechadas, com a ventilação e
iluminação necessárias para o conforto interno. Já nas partes mais públicas, percebe-se um
tratamento distinto, baseado no máximo de contato entre interior e exterior. A área do
pavimento é de aproximadamente 140m².
O segundo pavimento (fig.64) abriga uma suíte e um dormitório maior, com estar. O
living sobre a sala de jantar forma o mezanino que se integra ao nível térreo. Através deste
espaço é possível visualizar o estar e também grande parte da enseada de Punta Ballena.
(fig. 67-8)
PROJETOS E OBRAS NO URUGUAI (1938-1946) Residências
55
61
62
63
61. Planta do térreo, Residência
Fresnedo Siri, Punta Ballena, 1938.
62. Estar, Residência Fresnedo Siri,
Punta Ballena, 1938.
63. Estar, Residência Fresnedo Siri,
Punta Ballena, 1938.
1- Hall
2- Jantar
3- Estar
4- Cozinha
5- Dormitório
6- Closet
7- Banheiro
8- Lavabo
PROJETOS E OBRAS NO URUGUAI (1938-1946) Residências
56
64
65
66
64. Planta do segundo pavimento,
residência Fresnedo Siri, 1938,
Punta Ballena.
65. Estar, Residência Fresnedo Siri,
1938, Punta Ballena.
66. Esquina com esquadrias abertas,
Residência Fresnedo Siri, 1938,
Punta Ballena.
1- Living
2- Dormitório
3- Closet
4- Banheiro
PROJETOS E OBRAS NO URUGUAI (1938-1946) Residências
57
67 68
A volumetria é elementar, conformando uma caixa de vidro com uma laje de cobertura
que avança sobre as paredes. A casa afirma alguns temas de toda a obra de Fresnedo. Por
um lado, o rigor da geometria de planta e de volume, aliado à ordem da pauta estrutural. Por
outro lado, o uso franco do vidro em grandes panos, delimitados por planos que se projetam
em base, pergolados e cornijas. Esses elementos seriam posteriormente utilizados por
Fresnedo em diversas obras, reforçando suas características peculiares. A riqueza plástica do
edifício é conferida também pela diversidade dos materiais que definem as superfícies: vidro,
concreto, tijolo e pedra.
69
70
67. Vista da esquina envidraçada
fechada, Residência Fresnedo Siri,
1938, Punta Ballena.
68. Vista da esquina envidraçada,
Residência Fresnedo Siri, 1938,
Punta Ballena.
PROJETOS E OBRAS NO URUGUAI (1938-1946) Residências
58
71 72
73 74
69. Living, Residência Fresnedo Siri,
1938, Punta Ballena.
70. Vista do living, Residência
Fresnedo Siri, 1938, Punta Ballena.
75
71. Residência Fresnedo Siri, 1938,
Punta Ballena.
72. Detalhe pergolgado no acesso
principal, Residência Fresnedo Siri,
1938, Punta Ballena.
73. Muro curvo, Residência
Fresnedo Siri, 1938, Punta Ballena.
74. Acesso principal, Residência
Fresnedo Siri, 1938, Punta Ballena.
75. Esquina envidraçada, Residência
Fresnedo Siri, 1938, Punta Ballena.
PROJETOS E OBRAS NO URUGUAI (1938-1946) Residências
59
2.1.2 Residência Barreira – Montevidéu – 1941
Em 1941 projeta a residência Barreira (fig.76-80), localizada no Bulevar Artigas
esquina com a Rua Guaná, próximo à Faculdade de Arquitetura. Atualmente representa a
Sede da União Européia
81
, não podendo ser visitada. Externamente ainda pode-se fotografar,
porém sem adentrar o pátio.
A residência Barreira mostra várias características da obra de Fresnedo, e da
seqüência de casas que ele projeta no Uruguai. A composição é marcada pelo conjunto de
volumes puros (planos, prismas retangulares e arredondados) que se fundem de maneira
harmônica. O vidro representa o elemento que permite a visibilidade e integração com o
entorno e dessa forma, o arquiteto cria imensos planos transparentes que, em alguns
momentos, são rematados pela cornija dórica. A lateral da residência é destacada pela
presença deste arremate, formando um pergolado que finaliza as esquadrias de vidro e
venezianas em madeira. A vegetação envolve os muros através de trepadeiras e invade o
pátio da residência, com pequenas árvores e plantas que delimitam as áreas de jardins. Esta
casa apresenta uma composição Art Déco de justaposições de volumes e planos
diversificados com uma unidade dada pela limpeza abstrata das superfícies.
81
Segundo Yolanda a residência já foi do Consulado Brasileiro anos antes de ser da União Européia. BORONAT, Yolanda.
Fresnedo Siri. Montevidéu, 07 de fevereiro de 2008. Entrevista concedida a Jamile M. da Silva.
76
77
76. Residência Barreira, 1941,
Montevidéu.
77. Residência Barreira, 1941,
Montevidéu.
PROJETOS E OBRAS NO URUGUAI (1938-1946) Residências
60
78
2.1.3 Residência Mezzera – Montevidéu – década de 40
O projeto para a casa dos Mezzera (fig. 81), infelizmente demolida, à Rua Caracé,
reflete as características presentes na residência Barreira. A composição é definida por uma
caixa de vidro delimitada pela base e pelo coroamento com a cornija em balanço
pronunciado. No meio da caixa, surge outra projeção (em parte destacada do volume)
coincidente com a laje do segundo pavimento. Numa extremidade da caixa está o acesso
principal, sinalizado pela profundidade gerada a partir da interrupção da caixa. O bloco de
vidro é organizado por duas faixas longitudinais com esquadrias verticais separadas por
79
80
78. Residência Barreira, 1941,
Montevidéu.
79. Residência Barreira, 1941,
Montevidéu.
80. Residência Barreira, 1941,
Montevidéu.
PROJETOS E OBRAS NO URUGUAI (1938-1946) Residências
61
montantes de altura plena. A horizontalidade é reforçada pela cornija superior e pelo balcão
saliente, enquanto a verticalidade dos montantes introduz um ritmo serial na visão da caixa
82
.
A percepção de cheios e vazados na volumetria se transforma no momento em que as
venezianas se abrem ou se encerram. Quando abertas, a visibilidade do entorno é total,
predominando o vidro na fachada. Quando fechadas, a solidez prevalece. Este esquema de
esquadria é utilizado em grande parte das casas de Fresnedo, aliada à cornija, ao pergolado
e à volumetria elementar. A partir dessas características é possível reconhecer e apreciar as
residências feitas pelo arquiteto. Esta casa apresenta alguns temas utilizados em outras
obras, como a serialidade da fenestração contraposta à linearidade dos planos de base e
fechamento
83
.
81
82
Esta característica é similar à fachada com pergolado e esquadrias da casa anterior.
83
Ver Faculdade de Arquitetura, p.84.
81. Residência Mezzera, década de
40, Montevidéu.
PROJETOS E OBRAS NO URUGUAI (1938-1946) Residências
62
Os materiais utilizados são variados: o concreto, o vidro e a madeira. Algumas casas
mesclam ainda a pedra, como a casa geminada Dighiero e Martirena (1946) e a residência O.
Martirena (década de 40, fig.82-3), e o tijolo aparente, como a própria casa de Fresnedo em
Punta Ballena (1938) e a residência Florines, em Montevidéu (1961, fig.84).
83
84
82
82. Residência O. Martirena, década
de 40, Montevidéu.
83. Residência O. Martirena, década
de 40, Montevidéu.
84. Residência Florines (solução
semelhante à residência Mezzera),
1961, Montevidéu.
PROJETOS E OBRAS NO URUGUAI (1938-1946) Residências
63
2.1.4 Casas geminadas Martirena e Dighiero – Montevidéu – 1946
No ano de 1946, o arquiteto envolve-se com o projeto e a construção do Hospital
Americano
84
, em Montevidéu. O proprietário desse Hospital encomenda, no mesmo ano, o
projeto de sua residência à Fresnedo Siri. A casa é geminada, sendo que uma residência
pertence ao Sr. Dighiero, médico e proprietário do Hospital, e a outra foi ocupada pela família
da Sra. Martirena.
A residência está localizada à Avenida Luis P. Ponce (fig.85). Atualmente ocupam a
residência outros proprietários, não parentes das famílias anteriores, que não autorizaram a
visitação. Nota-se também que a casa está um pouco deteriorada e sem manutenção.
85
84
Ver p.121.
85. Localização, Residência
Martirena e Dighiero, Montevidéu,
1946.
PROJETOS E OBRAS NO URUGUAI (1938-1946) Residências
64
86
O terreno possui, no total, 20 metros de frente e 36 metros de fundo em uma das
laterais e 40 metros na outra, gerando uma pequena inclinação na linha da divisa dos
fundos
85
. A implantação das casas está distante quatro metros do alinhamento e ocupa o
terreno de divisa a divisa, nas laterais. Nos fundos, a área restante torna-se um grande pátio,
com árvores e vegetação, comum às duas residências. Dessa forma, a divisão das duas
casas ocorre internamente, uma vez que na fachada e no pátio elas se unem (fig.87-8).
85
Nos arquivos encontrados, têm-se as plantas, cortes e fachadas referentes ao projeto da casa do Dr. Dighiero. Confirma-se
que as duas são análogas devido às fotos e observações no local.
86. Residência Martirena e Dighiero,
Montevidéu, 1946.
PROJETOS E OBRAS NO URUGUAI (1938-1946) Residências
65
87 88
87. Implantação, Residência
Martirena e Dighiero, Montevidéu,
1946.
88. Implantação, Residência
Martirena e Dighiero, Montevidéu,
1946.
PROJETOS E OBRAS NO URUGUAI (1938-1946) Residências
66
O térreo de cada unidade (fig.91) tem 160m² e dispõe de dois acessos, um de veículos
e outro principal, de pedestres. A partir do acesso principal, tem-se o hall, o pequeno lavabo e
uma das escadas, que leva o usuário ao entrepiso. Em seguida depara-se com o ambiente de
estar e jantar, integrados. De forma característica da arquitetura de Fresnedo, esses
ambientes são ventilados e iluminados com grandes planos envidraçados. Um dos planos de
vidro está voltado para a rua e o outro para o jardim. Desse modo, a zona de estar adquire
permeabilidade com o exterior em suas duas extremidades. Em um setor mais privado, ainda
no térreo, encontram-se um estar intermediário e um estar íntimo, de pé-direito duplo, com
lareira e duas aberturas para o jardim. Ambos possuem janelas e portas de vidro, voltadas
para o jardim. No alinhamento da garagem, dispõe-se um lavabo de serviço, a escada de
acesso ao entrepiso e ao segundo pavimento, e uma copa- cozinha com saída para o exterior
e ligação ao estar. Todos os ambientes são bem ventilados e iluminados. As circulações
propostas geram flexibilidade à experimentação dos espaços internos. Pode-se entrar na
casa e seguir diretamente ao entrepiso, através da escada localizada no hall, ou acessar o
estar intermediário, sem ter que, necessariamente, cruzar o estar e o jantar.
O entrepiso de cada casa (fig.92), conta com 80m², abriga a suíte de serviço e a
biblioteca. Este nível gera um mezanino, proporcionando um pé-direito duplo no estar, jantar
e no estar íntimo. O segundo pavimento (fig.94), por sua vez, guarda as funções mais íntimas
da casa, acomodadas em 150m². A partir do hall têm-se dois dormitórios, uma suíte, um
banheiro e um terraço, que nasce sobre a área da biblioteca e do estar íntimo.
89
90
89. Estar/jantar, Residência
Dighiero, Montevidéu, 1946.
90. Estar, Residência Dighiero,
Montevidéu, 1946.
PROJETOS E OBRAS NO URUGUAI (1938-1946) Residências
67
91 92
93
91. Planta do térreo, Residência
Martirena e Dighiero, Montevidéu,
1946.
92. Planta do entrepiso, Residência
Martirena e Dighiero, 1946,
Montevidéu.
93. Entrepiso, Residência Dighiero,
1946. Montevidéu.
1- Hall
2- Estar
3- Jantar
4- Estar intermediário
5- Estar íntimo
6- Cozinha
7- Lavabo
8- Garagem
1- Dormitório de serviço
2- Mezanino
3- Biblioteca
PROJETOS E OBRAS NO URUGUAI (1938-1946) Residências
68
94 95
94. Planta do segundo pavimento,
residência Martirena e Dighiero,
1946, Montevidéu.
95. Corte AA’, residência Dighiero,
1946, Montevidéu.
1- Hall
2- Dormitório
3- Banheiro
4- Terraço
PROJETOS E OBRAS NO URUGUAI (1938-1946) Residências
69
O jardim é um ambiente convidativo, com vegetação que propicia zonas de sombra. A
relação interior e exterior é bastante clara, pois os planos de vidro permitem contato direto.
Todos os níveis da residência buscam essa relação do morador com o entorno, de forma que,
mesmo no segundo pavimento, em que as aberturas dos quartos, voltadas para a rua, têm
dimensões restritas, o arquiteto propõe um terraço nos fundos, através do qual é possível
desfrutar da vista do pátio.
A fachada do conjunto no primeiro nível é definida pelas garagens, pelo acesso
principal e pelas janelas envidraçadas dos estares. Fresnedo dispõe elementos tectônicos
verticais, representados por paredes e pilares em pedra que dividem as partes translúcidas.
Esses elementos são arrematados pela cornija que se funde ao pergolado, destacando a
horizontalidade em contraponto ao ritmo vertical dos pilares. Acima desta linha horizontal,
tem-se o telhado aparente, do entrepiso, que cobre os balcões dos dormitórios de serviço.
Sobre esta faixa de telhado, configuram-se as esquadrias dos dormitórios, organizadas em
fita. Para finalizar o volume, a última água do telhado, que se volta para os fundos, possui um
pergolado de acabamento na fachada frontal, que se estende longitudinalmente. As
esquadrias são em madeira natural, sendo que as venezianas que encerram os vidros são
em madeira pintadas na cor branca.
Na fachada posterior, voltada para o jardim, o volume é mais puro, formado pelos
prismas e as esquadrias em vidro. O telhado surge apenas na cobertura do último pavimento.
Não há pergolados nesta face, nem detalhes em pedra.
96
96. Residência Martirena e Dighiero,
1946, Montevidéu.
PROJETOS E OBRAS NO URUGUAI (1938-1946) Residências
70
97
98
97. Vista dos fundos, Residência
Martirena e Dighiero, 1946,
Montevidéu.
98. Residência Martirena e Dighiero,
1946, Montevidéu.
PROJETOS E OBRAS NO URUGUAI (1938-1946) Residências
71
2.1.5 Residência Fresnedo Albanell – Punta Ballena – 1963
Implantada na mesma área, próxima a residência Fresnedo Siri, está a casa que ele
projeta em 1963
86
, para suas sobrinhas Nora e Elena Fresnedo Albanell (fig.99-100). A
pequena casa, de apenas um pavimento e 120m², é feita em tijolo aparente e vidro. A caixa
de vidro recebe a cobertura de laje plana que se prolonga formando a garagem coberta
aberta. Novamente os grandes planos envidraçados definem parte da composição. A
pequena casa configura um belvedere paisagístico ao dispor uma fachada plenamente
envidraçada voltada para a paisagem da baía de Punta Ballena.
99 100
86
Apesar de ser uma residência projetada em 1963, portanto tardia em relação ao período delimitado neste capítulo (até
1946), é pertinente a citação da mesma em conjunto com as demais residências, pois existem características semelhantes
entre as casas, principalmente em relação à de Fresnedo, em Punta Ballena. Dessa forma seria incoerente seguir, neste caso,
a ordem cronológica de análise.
101
102
99. Residência Albanell Fresnedo,
1938, Punta Ballena.
100. Residência Albanell Fresnedo,
1938, Punta Ballena.
101. Vista da baía de Punta Ballena.
102. Vista da baía de Punta Ballena.
PROJETOS E OBRAS NO URUGUAI (1938-1946) Residências
72
Percebe-se que as casas de Fresnedo manifestam traços compositivos que identificam
sua produção. O substrato clássico está presente, via racionalismo italiano, no rigor das
malhas estruturais, das seqüências rítmicas de pilares e nas bases e cornijas pergoladas
definindo as terminações. Dentro deste quadro, não faltam conexões com a obra de Perret e
com alguns aspectos das Praire Houses de Wright (fig.103-4), tais como as marcas de faixas
e projeções de coberturas, embora não haja preocupação com a decomposição dinâmica da
caixa. Fresnedo Siri introduz com ênfase o tema do plano de vidro em larga escala,
destacando-se o pavilhão de cristal que constrói muito cedo (1938) em Punta Ballena.
Destarte, sua arquitetura residencial é testemunha dos grandes temas de sua obra.
103
104
103. Robie House, Frank Lloyd
Wright, 1910.
104. Casa Suntop, Frank Lloyd
Wright, 1939.
PROJETOS E OBRAS NO URUGUAI (1938-1946) Hipódromo de Maroñas
73
2.3 Hipódromo de Maroñas – 1938
Historicamente os Hipódromos são locais de sociabilidade importantes, reunindo
diferentes grupos sociais, desde as elites até as classes populares. Nestes espaços,
indivíduos procuram a diversão através do jogo, muitas vezes combinada à ostentação de um
status social e à possibilidade de entretenimento através das apostas.
A década de 1930 foi marcada pelo interesse nas construções e reformas dos
Hipódromos na América Latina e na Europa. Em 1909, em Buenos Aires, Louis Fauré Dujarric
havia reformado o Hipódromo de Palermo, cuja arquitetura apresentava características do
estilo Luís XVI e estrutura de concreto armado. Em 1935 esta cidade recebeu o primeiro
Hipódromo argentino com pistas de grama e areia, o Hipódromo de San Isidro (fig.105). O
projeto de Acevedo, Becu e Moreno renovou a linguagem arquitetônica, através de volumes
brancos, sendo classificado como um estilo entre o Art Déco e o International Style
87
. No
Brasil, em 1926, havia sido inaugurado o Hipódromo da Gávea no Rio de Janeiro, que era um
projeto eclético de Arquimedes Memória e Francisque Cuchet. Elisário Bahiana assinava, em
1936, o projeto do Hipódromo Paulista da Cidade Jardim, em estilo Art Déco (fig.106)
88
.
Na Espanha, o Hipódromo de Zarzuela (fig.107-08) foi projetado em 1935 pelo
engenheiro Eduardo Torroja e pelos arquitetos Carlos Arniches e Martin Dominguez. Como
característica marcante, suas tribunas possuem coberturas em cascas de concreto apoiadas
em um único eixo central de pilares, “sendo que um tirante de aço equilibra o sistema,
87
COMAS; CANEZ; BOHER, 2004, p. 23.
88
Idem, p. 20.
105
106
105. Hipódromo de San Isidro,
Acevedo, Becu e Moreno, 1935,
Buenos Aires.
106. Hipódromo Cidade Jardim,
Elisário Bahiana,
1936, São Paulo.
PROJETOS E OBRAS NO URUGUAI (1938-1946) Hipódromo de Maroñas
74
ancorando o balanço menor da casca às vigas que sustentam o piso da plataforma
superior”.
89
A renovação neste tipo de edifício chegou a Montevidéu, no Uruguai, pelas mãos de
Román Fresnedo Siri, que, em 1938, apresentou seu projeto no concurso para a nova tribuna
especial do Hipódromo de Maroñas. O Jockey Club de Montevidéu propôs mais dois
concursos, que teriam como tema mais uma tribuna especial (1942) e a tribuna do paddock
(1945). Essa seqüência de concursos foi também vencida pelo jovem arquiteto
90
.
O programa de necessidades apresentado nos concursos envolvia, além das
arquibancadas das tribunas, algumas funções auxiliares como sanitários, café, bar,
administração, escritórios, bilheteria, depósitos para uso em geral e restaurante
91
. As
relações com o contexto e com o entorno deveriam ser consideradas, uma vez que o pavilhão
dos sócios estava construído e possuía características arquitetônicas marcantes. A nova
tribuna deveria cumprir sua funcionalidade, aliada a um estilo renovador e à técnica, não
ignorando o partido existente. O conhecimento técnico era fundamental para a concepção
estrutural de um edifício desta natureza, a disposição das arquibancadas deveria permitir a
perfeita visibilidade da pista a todos os usuários. Fresnedo demonstrou através da sua
proposta, o domínio destas questões, unindo aspectos funcionais, estéticos e econômicos.
89
Idem, p.23.
90
Não foram encontrados registros, nos arquivos investigados, referentes aos demais participantes deste concurso. O
material do projeto foi retirado na prefeitura da cidade.
91
BORONAT; RISSO, 1984, p. 15.
107
108
107. Hipódromo de Zarzuela,
Torroja, 1935, Espanha.
108. Corte transversal, Hipódromo
de Zarzuela, Torroja, 1935,
Espanha.
PROJETOS E OBRAS NO URUGUAI (1938-1946) Hipódromo de Maroñas
75
O complexo do Hipódromo está situado no bairro Ituzaingó, a aproximadamente 10 km
do centro, entre as Ruas José Maria Guerra, José Shaw, Gregório Rodrigues e as Avenidas
General Flores e José Belloni (fig. 109-11). O acesso principal é configurado pela Rua José
Guerra, onde as tribunas estão dispostas de forma alinhada e paralela à rua.
111
Para a implantação das novas tribunas são feitos inúmeros estudos de viabilidade
econômica, levando em consideração a distância da pista e a altura possível das
109
110
109. Vista aérea, Hipódromo de
Maroñas, Fresnedo Siri, 1938,
Montevidéu.
110. Hipódromo de Maroñas,
Fresnedo Siri, 1938, Montevidéu.
111. Localização do Hipódromo de
Maroñas, Fresnedo Siri, 1938,
Montevidéu.
PROJETOS E OBRAS NO URUGUAI (1938-1946) Hipódromo de Maroñas
76
arquibancadas devido aos desníveis do local. Segundo a implantação do projeto (fig. 113), a
nova tribuna especial fica a 27 metros de distância do pavilhão dos sócios, a 30 metros
afastados em relação à Rua José M. Guerra e a 25,50 metros em relação a pista principal.
Atualmente, a primeira tribuna encontra-se reformada, com algumas intervenções que
descaracterizam a sua volumetria original, como o fechamento com planos de vidro em
alguns ambientes. A segunda tribuna está conforme sua construção original, porém, sem
manutenção.
113
O pavimento térreo (fig. 117) é formado por uma primeira faixa balizada por duas linhas
de colunas principais, na qual a linha de pilares retangulares se refere à estrutura dos pórticos
na parte externa da fachada. A outra linha de pilares, circulares, segue o alinhamento da
caixa de circulações das extremidades, delimitando, portanto, um prisma regular de quatro
metros de largura, 68 metros de comprimento e quatro metros de altura. Essa primeira nave
112
114
112. Vista aérea do Hipódromo de
Maroñas, 1938, Montevidéu.
113. Implantação da primeira
tribuna, Hipódromo de Maroñas,
1938, Montevidéu.
114. Hipódromo de Maroñas, 1938,
Montevidéu.
PROJETOS E OBRAS NO URUGUAI (1938-1946) Hipódromo de Maroñas
77
abriga o foyer principal e as circulações verticais. Neste pavimento estão dispostas, em uma
segunda faixa de ocupação, as salas de administração, as áreas de acesso restrito para
movimentação das apostas, a cozinha do restaurante, os sanitários, os vestiários e os
depósitos, com altura menor e variando conforme a inclinação da arquibancada superior ao
pavimento. Essa faixa de serviços tem oito metros de largura e forma uma segunda nave.
A curva, desenhada de forma precisa e delicada, está presente em alguns pontos no
projeto, respeitando a estrutura dos pilares. Essas paredes, entretanto, não foram
construídas, uma vez que o edifício sofreu algumas alterações.
Os acessos principais ao pavimento térreo estão distribuídos na fachada posterior,
sendo três centrais e um em cada extremidade (ver fachada posterior, fig.125). O nível térreo
do edifício está a 60 centímetros do nível da parte externa. Nas extremidades localizam-se as
caixas de circulação vertical, identificadas como planos sólidos na fachada posterior. Ao
visualizar o bloco sob o ângulo lateral, percebe-se a relação entre os planos de vidro e os
planos sólidos nas faces das circulações (fig.115-6).
O pavimento intermediário (fig.120) permanece com as duas naves retangulares. A
primeira conforma o eixo de circulação e foyer, com um pé-direito de 6,23 metros de altura.
Na segunda faixa, de 6,25 metros de largura, estão dispostos os sanitários, bar e restaurante,
e a altura varia até atingir 2,60 metros de altura na parte do restaurante. O volume dos
sanitários revela mais uma vez o uso da curva, assim como nos balcões do bar/café. O
perímetro que limita o restaurante é fechado com esquadrias e vidro. A modulação dos pilares
é definida por uma trama de 5m x 5m, distância entre os eixos dos mesmos. Uma terceira
115
116
115. Hipódromo de Maroñas, 1938,
Montevidéu.
116. Detalhe do bloco envidraçado,
Hipódromo de Maroñas, 1938,
Montevidéu.
PROJETOS E OBRAS NO URUGUAI (1938-1946) Hipódromo de Maroñas
78
nave é definida pela arquibancada, de 8,50 metros de largura por 60 metros de extensão,
com capacidade para, aproximadamente, duas mil pessoas.
O pavimento superior (fig.124) se diferencia pela presença do segundo nível de
arquibancadas, que possui 9,0 metros de largura e 60 metros de extensão. A capacidade é
reduzida em função da dimensão do degrau da arquibancada, adaptado para colocação de
bancos, totalizando uma capacidade para aproximadamente mil pessoas. No centro da planta
estão localizadas as cabines envidraçadas. As arquibancadas possuem escadarias externas
que se conectam ao primeiro nível de arquibancadas, sem que o usuário precise utilizar a
circulação principal na nave posterior.
117
118
119
117. Planta do térreo, Hipódromo de
Maroñas, 1938, Montevidéu.
118. Térreo, Hipódromo de Maroñas,
1938, Montevidéu.
119. Térreo, Hipódromo de Maroñas,
1938, Montevidéu.
PROJETOS E OBRAS NO URUGUAI (1938-1946) Hipódromo de Maroñas
79
120
121
122
123
120. Planta do pavimento
intermediário, Hipódromo de
Maroñas, 1938, Montevidéu.
121. Fachada frontal, Hipódromo de
Maroñas, 1938, Montevidéu.
122. Pavimento intermediário,
Hipódromo de Maroñas, 1938,
Montevidéu.
123. Pavimento intermediário,
Hipódromo de Maroñas, 1938,
Montevidéu.
PROJETOS E OBRAS NO URUGUAI (1938-1946) Hipódromo de Maroñas
80
124
125
126
127
124. Planta do pavimento superior,
Hipódromo de Maroñas, 1938.
125. Fachada posterior, Hipódromo
de Maroñas, Montevidéu, 1938.
126. Pavimento superior, Hipódromo
de Maroñas, Montevidéu, 1938.
127. Fachada posterior, Hipódromo
de Maroñas, Montevidéu, 1938.
PROJETOS E OBRAS NO URUGUAI (1938-1946) Hipódromo de Maroñas
81
A malha regular suscita o ritmo e a regularidade espacial do edifício. As fachadas
(fig.121 e 125) reforçam a simetria existente no projeto, identificada principalmente no nível
intermediário, através dos volumes curvos dos sanitários. A compatibilidade entre o espaço
interno e volumetria externa é notável na tribuna que não sofreu intervenções, uma vez que a
outra tribuna perdeu essas características.
128 129
130 131
128. Tribunas populares, Hipódromo
de Maroñas, 1938, Montevidéu.
129. Tribuna popular, Hipódromo de
Maroñas, 1938, Montevidéu.
130. Tribuna popular, Hipódromo de
Maroñas, 1938, Montevidéu.
131. Hipódromo de Maroñas, 1938,
Montevidéu.
PROJETOS E OBRAS NO URUGUAI (1938-1946) Hipódromo de Maroñas
82
O projeto é peculiar e renovador em alguns aspectos quando comparado aos
hipódromos citados anteriormente. O volume é formado por três partes distintas: um bloco
retangular, uma estrutura em pórtico que sustenta a cobertura e as arquibancadas (fig.132-4).
A unidade e elegância da obra estão traduzidas na forma com que a estrutura de cobertura,
de 20 metros de largura e 60 de comprimento, se relaciona e sustenta essas partes.
132
O bloco ortogonal é envolvido por uma seqüência de pórticos que partem da fachada
posterior e arrematam a laje superior de cobertura. A esse bloco são encaixadas as
arquibancadas em dois níveis.
Os pilares demarcam uma continuidade de eixos verticais intercalados por imensos
planos de vidro caracterizando o ritmo da fachada. Os planos envidraçados são fixados na
133
134
132. Esquema compositivo do
Hipódromo de Maroñas, 1938,
Montevidéu.
133. Esquema compositivo do
Hipódromo de Maroñas, 1938,
Montevidéu.
134. Esquema compositivo do
Hipódromo de Maroñas, 1938,
Montevidéu.
PROJETOS E OBRAS NO URUGUAI (1938-1946) Hipódromo de Maroñas
83
estrutura de pilares e afastados das lajes dos pisos, gerando um detalhe interessante tanto no
lado interno (fig.137), como na parte externa do prédio (fig. 138). O acabamento na parte
superior dos planos de vidro é dado pela cobertura, que ao cruzar as pilastras, compõe na
face posterior uma cornija dórica, característica nas obras iniciais de Fresnedo, que
demonstrou ao longo de sua obra o conhecimento da arquitetura clássica.
135 136
As lajes são nervuradas com acabamento arredondado nas bordas. Os peitoris das
arquibancadas são tratados como vigas invertidas com arremates curvos. A inclinação da
estrutura que se conecta a cobertura gera leveza e harmonia ao conjunto. Através dos cortes
(fig.135-6) percebem-se os detalhes de acabamento das lajes, da finalização dos peitoris nas
arquibancadas e nas escadas, além da estrutura adotada por Fresnedo nas tribunas,
aclarando a distribuição dos níveis internos. No corte CD (fig.136) destaca-se a escada que
137
138
PROJETOS E OBRAS NO URUGUAI (1938-1946) Hipódromo de Maroñas
84
leva o usuário do segundo nível de arquibancadas ao primeiro nível, sem que o mesmo tenha
que utilizar a circulação interna do edifício.
A fachada sobre a pista principal é animada pelas arquibancadas através de um jogo
rico de alturas, dimensões e formas criadas pelo arquiteto de modo a acomodar as funções
estabelecidas pelo programa. O primeiro nível de arquibancadas fica a 1,20 metros do solo.
As arquibancadas tornam-se um elemento plástico que reforça a horizontalidade desta
fachada, em contraponto com o bloco posterior, no qual se rompe a horizontalidade por meio
do uso de elementos verticais.
Para evitar a incongruência volumétrica duma simples justaposição do bloco frontal
ortogonal ao volume diagonal das arquibancadas, Fresnedo opta em Maroñas por acentuar a
dualidade do tipo e distingue claramente um do outro, o bloco frontal expandido e verticalizado
pelas pilastras colossais que contrastam com o volume horizontal das arquibancadas de empena
cega.
92
Ao definir dois níveis de arquibancadas, é possível adaptar algumas funções entre as
mesmas. Neste caso, é proposta a colocação do bar/restaurante, envidraçado,
proporcionando ampla visibilidade para a pista. Nas laterais, localizam-se os sanitários,
destacando a presença da curva na arquitetura de Fresnedo. No segundo nível, há um
predomínio dos vazios sobre os cheios, devido à presença das arquibancadas e das galerias,
em que apenas as cabines centrais são fechadas com vidro.
O Hipódromo de Maroñas reflete o conhecimento do arquiteto em relação à temática
abordada, incorporado a simplicidade clássica do projeto. A estrutura de pórticos, com
92
COMAS; CANEZ; BOHER, 2004, p. 92.
135. Corte AB, Hipódromo de
Maroñas, 1938, Montevidéu.
136. Corte CD Hipódromo de
Maroñas, 1938, Montevidéu.
137. Hipódromo de Maroñas, 1938,
Montevidéu.
138. Hipódromo de Maroñas, 1938,
Montevidéu.
PROJETOS E OBRAS NO URUGUAI (1938-1946) Hipódromo de Maroñas
85
espaçamento regular, que suporta a cobertura e a arquibancada superior define uma caixa de
acesso e distribuição interna. A faixa de base com a arquibancada, os restaurantes e os
serviços se destaca do volume vertical dos pórticos e é abrigada pelas projeções superiores.
O projeto é ordenado e inovador. A combinação da tectonicidade do concreto armado e sua
aplicação em grandes balanços, com espessuras leves e fechamentos envidraçados retratam
a contemporaneidade do arquiteto. “Maroñas combina a alusão a um certo classicismo com a
estratificação que era a norma fundamental para a arquitetura moderna, a conseqüência
lógica da estrutura em esqueleto”
93
.
A composição do edifício é um notável exemplo de rigor e organização em faixas que
coincidem com a disposição estrutural. Alguns episódios como as caixas de escadaria,
sanitários e balcões de atendimento, demarcam a simetria, presente como instrumento de
composição e que é sempre dissimulada
94
na visualização da edificação.
A proposta envolve a técnica e a plasticidade, explorada através da geometria e do
contraste entre as superfícies opacas de concreto e os grandes planos de vidro. A expressão
gerada através desses elementos de arquitetura elucida o início de uma arquitetura moderna,
presente inicialmente de forma sutil nos traços de Fresnedo Siri, mas que seria predominante
anos mais tarde, encontrando o seu ápice na materialização da obra de mesma temática no
Brasil: o Hipódromo do Cristal em Porto Alegre.
93
Idem, ibidem.
94
Simetria afirmada discretamente na composição.
139
140
139. Hipódromo de Maroñas, 1938,
Montevidéu.
140. Hipódromo de Maroñas, 1938,
Montevidéu.
PROJETOS E OBRAS NO URUGUAI (1938-1946) Faculdade de Arquitetura
86
2.4 Faculdade de Arquitetura
A idéia de estabelecer um novo local para a Faculdade de Arquitetura, da Universidad
de La República, reforçou-se na década de 30, em meio às discussões sobre o ensino de
arquitetura e sobre os estilos de arquitetura que se desenvolviam na cidade e no país. Havia
a necessidade de uma sede própria, para atender a demanda de alunos e proporcionar uma
melhor qualidade ao ensino, uma vez que esta funcionava tendo uma parte na Faculdade de
Engenharia, e outra parte instalada de forma precária, em um antigo edifício da Faculdade de
Matemática.
Em vista de uma nova estrutura para a Faculdade, em 1934, o Conselho da Direção da
Instituição, através do seu porta-voz, o arquiteto Horacio Acosta y Lara, aprovou a decisão
para elaboração de um concurso que visava à construção de um edifício para a Faculdade de
Arquitetura, que fosse “adequado, digno e de alto nível de ensino, para contribuir com a
cultura do país”
95
. O projeto deveria ser aprovado perante concurso que se realizaria entre
arquitetos com títulos expedidos pela Universidade Nacional ou revalidados por ela.
Segundo Maurício Cravotto, o ensino de arquitetura em Montevidéu estava recebendo
influências benéficas da tradição Beaux-Arts através de diferentes manifestações.
[...] no homem de hoje existe uma capacidade afinada de captar o que se pode chamar
de classicismo do nosso século, que é um retorno a simplicidade do bom gosto, depurada
95
CRAVOTTO, 1938, p.83
PROJETOS E OBRAS NO URUGUAI (1938-1946) Faculdade de Arquitetura
87
proporção, harmonia, especialidade, dentro das particularidades e características inerentes aos
nossos tempos.
96
O edifício seria implantado na área do Parque Rodó (fig. 141-3), mais precisamente na
Avenida Julio Herrera y Reissing, próximo a Faculdade de Engenharia. Este local deveria
abrigar além da faculdade de Arquitetura, a Escola Nacional de Belas Artes e o Museu de
Belas Artes, formando um grande complexo de ensino e cultura, que estaria contribuindo para
a sociedade e para a cidade. Neste projeto, segundo o professor das disciplinas de Projeto e
de Teoria do Urbanismo Maurício Cravotto, deveria haver pátios de integração e adequada
orientação, formando um espaço arquitetônico de qualidade. Este centro englobaria mais de
1500 estudantes e seria visto como um centro artístico-cultural, que teria como objetivo
principal conduzir o jovem ao caminho das artes “trabalhando sua mente e seu coração”.
97
É mais eficaz para a cultura do arquiteto penetrar no segredo da harmonia das formas,
dos ritmos, da espacialidade, do que dominar fórmulas.
98
O primeiro zoneamento da Faculdade procurava englobar dois núcleos: um com locais
para salas de aulas, ateliês, salas para aulas práticas, laboratórios, administração e institutos.
Em outro núcleo, ateliês de desenho, biblioteca, museu, salas de exposições, pátios e jardins.
96
Idem, p.84.
97
Idem, p.88.
98
Idem, p.86
141
142
141. Implantação do projeto
vendedor do Concurso. Fresnedo
Siri e Mario Muccinelli, 1938.
142. Croqui do projeto vencedor do
concurso, Fresnedo Siri e Mário
Muccinelli, 1938.
PROJETOS E OBRAS NO URUGUAI (1938-1946) Faculdade de Arquitetura
88
143
O programa publicado para o concurso
99
envolvia: serviços de direção e administração
(352m²), sala de exposição e conferências (558m²), biblioteca (342m²), salas de projetos de
arquitetura e composição decorativa (2.280m²), salas de construção (1.500 m²), salas para
outros cursos (500m²), instituto de arqueologia americana (300m²), instituto de urbanismo
(350m²), serviços higiênicos e vestiários, independentes para funcionários e estudantes e
divididos por sexo, totalizando aproximadamente 6.200m².
O concurso para a Faculdade de Arquitetura ocorreu em 1937 e a ata de classificação
do júri foi publicada em 04 de abril de 1938, sendo que o primeiro lugar foi destinado ao
99
BORONAT; RISSO, 1984, p.25-26.
144
145
143. Localização, primeiro terreno
para o projeto concurso, 1938.
144. Prancha de apresentação no
concurso Fresnedo Siri e Mario
Muccinelli. 1938.
145. Perspectiva do pátio, Fresnedo
Siri e Mário Muccinelli, 1938.
PROJETOS E OBRAS NO URUGUAI (1938-1946) Faculdade de Arquitetura
89
projeto AYAX de Fresnedo Siri e Mario Muccinelli, o segundo lugar para projeto DAM dos
arquitetos Juan R. Menchaca, Juan O. da Silva e José M. Ambroscni, o terceiro prêmio para o
projeto ATATIE de Maurício Cravotto, o quarto para o projeto MENHIR de Eduardo Defey, o
quinto para o projeto VIEJO E PELUDO de Julio Vilamajó e o sexto lugar para o projeto
FOTO de Julio Duhalde, Gilberto Garcia Selgas e Mário Payssé Reyes. A ata foi assinada por
Arnaldo Acosta y Lara, José P. Carré, Ernesto Laroche, Emilio Conforte, Eugenio Baroffio,
Alberto Muñoz del Campo, Leopoldo Carlos Agorio e Raúl Federice. O critério para a
classificação dos projetos, segundo a ata, estava relacionado à compatibilidade com as
exigências do concurso e do programa apresentado, sendo o mais compatível e satisfatório o
projeto AYAX
100
.
O projeto apresentava um edifício composto de três zonas principais: zona de ensino,
oficinas e institutos técnicos; exposições, conferências e biblioteca; nitidamente definidas por
três corpos bem diferenciados. Clara delimitação volumétrica que foi uma constante em todo seu
trabalho profissional [...]. A zona de ensino, volume predominante no conjunto, tinha uma planta
principal e onze pavimentos, com uma notória acentuação de verticais e horizontais segundo as
funções; a zona de oficinas e institutos técnicos contava com uma planta principal e dois
pavimentos, com as mesmas características do anterior. Ambos os volumes, perfeitamente
demarcados, se fundiam em um hall de exposição que abarcava os três pavimentos de altura e
tinha 50m de largura. A ele, se integrava diretamente a sala de conferências e biblioteca,
buscando desse modo, que o hall ampliasse sua função educativa.
101
Percebe-se, a partir da vista interna desta proposta, o mesmo tema de composição
abordada em Maroñas. Na seqüência de pórticos, as colunas são intercaladas pelos planos
envidraçados, mesclando novamente o concreto à leveza e transparência do vidro (fig.148).
100
SAU, Revista de Arquitetura, Montevidéu, janeiro, 1929, p.23 e 34.
101
BORONAT; RISSO, 1984, p.27.
146
147
148
146. Perspectiva, Ayax. Fresnedo
Siri e Mário Muccinelli, 1938.
147. Perspectiva, Ayax. Fresnedo
Siri e Mário Muccinelli, 1938.
148. Perspectiva interna, Ayax.
Fresnedo Siri e Mário Muccinelli,
1938.
PROJETOS E OBRAS NO URUGUAI (1938-1946) Faculdade de Arquitetura
90
O projeto vencedor do primeiro prêmio, no entanto, não foi construído. A questão da
implantação foi repensada e discutida pelos membros da organização e ao fim, considerada
inadequada por estar próximo à Faculdade de Engenharia, ser uma área muito pequena para
a nova faculdade e, de certa forma, pelo bloqueio da vista do Parque Rodó, rompendo a
imagem da paisagem natural. Posteriormente, foi indicada uma nova implantação, que
também não foi aceita. Por fim decidiu-se que um novo projeto seria elaborado e para a sua
implantação foi adquirido um novo terreno, situado na esquina da Avenida Espanha e do
Bulevar Artigas, atual localização. (fig. 150). Os vencedores foram convidados a propor um
novo projeto, que não foi mera adaptação do anterior e sim uma nova proposta, pois as áreas
deveriam ser recalculadas, uma vez que o terreno limitaria ainda mais a dimensão do projeto.
Dessa forma, o programa teve um número de salas e áreas reduzidas. A Escola Nacional de
Belas-Artes e o Museu de Belas-Artes deixaram de fazer parte da Faculdade de Arquitetura,
que hoje tem apenas um grande foyer de exposições, não vinculado à idéia de museu. Sua
construção foi iniciada em 1944 e concluída em 1948.
A Faculdade de Arquitetura foi concebida para ser um espaço de integração cultural e
social, além de um local para o ensino de arquitetura. As questões relacionadas ao estudo da
arquitetura e das artes estão refletidas no interior e na composição do edifício como um todo.
A implantação do edifício ocorre no alinhamento do terreno, com um pequeno recuo
frontal e lateral marcado pelo talude, elevando a edificação. A planta é organizada em formato
149
149. Faculdade de Arquitetura, 1938.
PROJETOS E OBRAS NO URUGUAI (1938-1946) Faculdade de Arquitetura
91
triangular, definindo um esquema de pátio no interior, típico nas construções desta época no
Uruguai.
102
150
102
Segundo Yolanda Boronat a tipologia de átrio era bastante recorrente nesta época, em que havia um retorno ao
Historicismo e a busca pelos aos preceitos projetuais clássicos.
150. Localização, Faculdade de
Arquitetura, projeto definitivo, 1938.
PROJETOS E OBRAS NO URUGUAI (1938-1946) Faculdade de Arquitetura
92
Em relação ao projeto vencedor do concurso, as estratégias de composição são
distintas. A primeira proposta setoriza o programa, representado claramente por dois volumes
diferentes, sendo o prisma mais alto conectado à barra longa e de menor altura. O auditório
liga-se com o volume mais alto e possui forma circular O pátio surge na parte posterior, ao
conectar um volume ao outro (fig.151).
Através do esquema referente ao projeto executado (fig.152-3), é possível identificar o
conceito, a idéia do projeto definitivo. A proposta está definida por duas alas que partem de
um mesmo ponto, o auditório, e ocupam o triângulo do terreno. A barra maior sofre uma
rotação, um rebatimento simétrico e conforma a barra mais estreita, da administração e
serviços. A seguir, surgem dois tramos curvos que interligam estas duas alas como num giro
de compasso. Nota-se que uma pequena ala, a biblioteca, subdivide o triângulo em duas
partes. Na fachada, a barra maior permanece integralmente, de modo que as demais partes
se adaptam a mesma. Essas adaptações acontecem justamente para organizar as funções
internas do edifício. A lógica dos ritmos e modulações não funciona sempre, e neste caso são
necessárias as adaptações e justaposições. Percebe-se que existe um eixo central, simétrico,
demarcado pelo anfiteatro, que é integralmente mantido na composição, porém de forma
dissimulada
103
.
103
O que reforça a idéia de Maroñas, em que o arquiteto também utiliza a simetria como recurso compositivos, porém de
forma sutil.
PROJETOS E OBRAS NO URUGUAI (1938-1946) Faculdade de Arquitetura
93
151 152
153
154
151. Esquema de composição do
projeto AYAX.
152. Esquema de composição do
projeto definitivo.
153. Esquema de composição do
projeto definitivo.
154. Faculdade de Arquitetura, 1938,
Montevidéu.
PROJETOS E OBRAS NO URUGUAI (1938-1946) Faculdade de Arquitetura
94
Segundo a planta do pavimento térreo (fig.155), o acesso principal do edifício acontece
por meio de um grande lance de escadas em mármore, voltadas para a via principal, Bulevar
Artigas, que acompanham o desnível do terreno. Essa escadaria direciona o usuário a uma
série de portas em vidro, que formam uma antecâmara através das duas camadas de vidro e
estrutura. A pele de vidro aparece externamente e a grelha de concreto predomina
internamente, formando um duplo filtro que controla a luz no interior do espaço. Este vestíbulo
se liga ao hall principal da Faculdade (fig.157-8).
Na barra principal, paralela ao Bulevar Artigas, com orientação leste, onde se localizam
o acesso principal e o hall, também estão dispostos o auditório, as salas de ateliês e os
sanitários. A barra curva, paralela ao Bulevar Espanha, com orientação sul, é composta por
salas de aulas menores e os institutos de história e tecnologia. Atualmente, estes Institutos
estão localizados em um anexo a oeste do edifício, devido à grande área que vinham
exigindo, em virtude da quantidade de material de pesquisa que possuem arquivados e em
processo investigativo. A outra barra, inclinada, que completa o triângulo, possui as salas da
direção, circulações abertas cobertas, além do bar/café com espaço para mesas. Incrustado
no pátio, ligando a barra principal a esta barra inclinada, estão dispostas algumas salas da
administração e direção da Faculdade, também conformando uma pequena barra curva, que
recebe a biblioteca no nível superior.
Através da circulação vertical tem-se acesso ao segundo pavimento da Faculdade
(fig.159), que abriga as demais salas de aula, a biblioteca (fig.160) e um grande vazio sobre o
hall (fig.161), conformando um mezanino que permite o contato das pessoas que transitam
pelo segundo pavimento com o pavimento térreo.
PROJETOS E OBRAS NO URUGUAI (1938-1946) Faculdade de Arquitetura
95
Há um terceiro pavimento que foi introduzido como uma área de ampliação das salas
de aulas. Este acontece apenas acima do segundo pavimento, na ala sul, face ao Bulevar
Espanha, e seu acesso é feito através de escadas localizadas nas extremidades desta
mesma ala. Essa adição alterou o equilíbrio entre as extremidades murais, mais altas, e as
alas mais baixas, interferindo nas proporções da volumetria, que anteriormente era mais
uniforme, causando a perda da harmonia entre a face voltada para o Bulevar Artigas e a outra
para o Bulevar Espanha.
Os espaços internos se caracterizam por ter ventilação e iluminação natural
proporcionada por grandes planos de vidro, que, além do papel funcional, geram um contato
com o exterior, construindo uma relação com o entorno e com a paisagem local.
PROJETOS E OBRAS NO URUGUAI (1938-1946) Faculdade de Arquitetura
96
155-156
157
158
155-156. Planta do térreo, e fachada
Faculdade de Arquitetura, 1938.
157. Acesso, Faculdade de
Arquitetura, 1938.
158. Vestíbulo, Faculdade de
Arquitetura, 1938.
1- Foyer
2- Auditório
3- Ateliês
4- Sanitários
5- Salas
6- Mesas do bar
7- Direção
8- Administração
9- Pátio
10- Bar
PROJETOS E OBRAS NO URUGUAI (1938-1946) Faculdade de Arquitetura
97
159
O hall é um espaço importante por se caracterizar como um grande foyer, pois se
conecta diretamente ao auditório, ao pátio e ao mezanino superior, sendo um espaço de
distribuição. O auditório faz o fechamento desse foyer, à direita do acesso, com um grande
painel colorido. À esquerda, localiza-se a circulação vertical que leva ao mezanino (fig.161),
que proporciona vistas elevadas do local.
Este grande salão é projetado para ser um espaço de integração da arquitetura com
outras manifestações artísticas, como exposições de trabalhos dos alunos e mostras
1- Hall
2- Biblioteca
3- Ateliês
4- Sanitários
5- Salas
160
161
159. Planta do segundo pavimento,
Faculdade de Arquitetura, 1938,
Montevidéu.
160. Biblioteca, Faculdade de
Arquitetura, 1938, Montevidéu.
161. Mezanino, segundo pavimento,
Faculdade de Arquitetura, 1938,
Montevidéu.
PROJETOS E OBRAS NO URUGUAI (1938-1946) Faculdade de Arquitetura
98
artísticas. Permite aos estudantes um ponto de encontro, distração e o contato uns com os
outros, sendo por isso dotado de um tratamento singular. O espaço possui nove metros de
altura e aproximadamente 13 metros de largura, reforçando uma característica típica de
Fresnedo Siri, o pé-direito mais alto, que envolve conceitos relacionados à proporção e
funcionalidade do ambiente.
164
165
162
163
162. Foyer, Faculdade de
Arquitetura, 1938, Montevidéu.
163. Foyer, Faculdade de
Arquitetura, 1938, Montevidéu.
164. Circulação vertical, Faculdade
de Arquitetura, 1938, Montevidéu.
165. Mezanino, Faculdade de
Arquitetura, 1938, Montevidéu.
PROJETOS E OBRAS NO URUGUAI (1938-1946) Faculdade de Arquitetura
99
O pátio interno (fig.166-75), circundado por uma galeria de colunas de seção
retangular, permite uma integração entre o espaço construído e o espaço aberto, gerando
uma atmosfera de calma, tranqüila e intimista, que proporciona um clima aconchegante a
toda Faculdade. As colunas exercem diversas funções na composição, como sustentação
estrutural do prédio, proteção solar da área de circulação, além de serem elementos que
separam e articulam, encerram e dão direcionalidade aos espaços. A presença dos pilares ao
redor de todo o pátio central confere unidade a este espaço com diversidade de percepção.
Nos blocos com salas de aula, o intercolúnio é de três metros, enquanto que na biblioteca é
de 1,50 metros. Na metade da ala posterior, na barra inclinada a oeste, as colunas são
apenas estruturas vazadas, abrindo a visada do espaço externo, e possuem mesmo
espaçamento das salas de aula. Em determinado momento, uma parte pode ser dominante, e
por outro momento a visibilidade muda, inclusive devido à intensa vegetação, admitindo que
outra parte seja vista como dominante. Deste modo, surgem diferentes pontos de vista do
mesmo objeto.
166
167
166. Pátio interno, Faculdade de
Arquitetura, 1938, Montevidéu.
167. Colunas salas de aula.
Faculdade de Arquitetura, 1938,
Montevidéu.
PROJETOS E OBRAS NO URUGUAI (1938-1946) Faculdade de Arquitetura
100
168 169
170 171
168. Colunas salas de aula.
Faculdade de Arquitetura, 1938,
Montevidéu.
169. Colunas ala posterior e barra
curva da biblioteca. Faculdade de
Arquitetura, 1938, Montevidéu.
170. Colunas ala posterior,
Faculdade de Arquitetura, 1938,
Montevidéu.
171. Pátio interno, Faculdade de
Arquitetura, 1938, Montevidéu.
PROJETOS E OBRAS NO URUGUAI (1938-1946) Faculdade de Arquitetura
101
172 173
174 175
172. Pátio interno, Faculdade de
Arquitetura, 1938, Montevidéu.
173. Pátio interno, Faculdade de
Arquitetura, 1938, Montevidéu.
174. Vista noturna, Pátio interno,
Faculdade de Arquitetura, 1938,
Montevidéu.
175. Detalhe colunas, Pátio interno,
Faculdade de Arquitetura, 1938,
Montevidéu.
PROJETOS E OBRAS NO URUGUAI (1938-1946) Faculdade de Arquitetura
102
Examinando as fachadas do edifício, nota-se que a base está representada pela
própria forma e desnível do terreno. O talude natural existente remete à imagem de solidez e
de estabilidade da edificação assentado no terreno natural. Este talude serve de base a um
jogo de cores e texturas com o volume do corpo, além de definir uma distinção em relação ao
entorno. O edifício ganha monumentalidade ao elevar-se do solo, como numa “acrópole”. O
talude é contornado por um muro em pedra que acompanha o desnível do terreno na direção
do Bulevar Espanha. Nesta base, na direção do Bulevar Artigas, está localizada a escadaria
de mármore, de larga extensão, que direciona o usuário ao acesso principal da Faculdade.
Os blocos de aula apresentam fachadas com pilares à frente dos planos envidraçados
e coroamento com a marquise projetada definindo uma cornija
104
, enquanto que as
extremidades das alas têm volumes definidos por muros em pedra, monumentalizando as
esquinas. Diversos ambientes recebem tratamentos diferentes. O vidro e as colunas
demarcam as salas de aula, o volume fechado com escotilhas destaca a circulação vertical, o
grande plano envidraçado salienta o aceso principal e os volumes fechados fazem os
acabamentos das esquinas e do auditório.
Os pilares são tema marcante neste projeto, que aparecem ora acoplados ao vidro ou
às paredes, ora por trás dos fechamentos, em alguns momentos soltos ou divididos pelas
lajes dos pavimentos. Esse tema reforça o ritmo e a ordem na composição, hierarquizando os
espaços.
104
Segundo o arquiteto Arce, para Fresnedo a cornija era o acabamento perfeito e foi utilizado em muitos de seus projetos,
principalmente no início de sua carreira. Arce foi colega de Fresnedo em alguns projetos. Cf. BORONAT, Yolanda.
Fresnedo Siri. Montevidéu, 07 de fevereiro de 2008. Entrevista concedida a Jamile M. da Silva Weizenmann.
176
177
176. Faculdade de Arquitetura, 1938,
Montevidéu.
177. Vista da esquina, Faculdade de
Arquitetura, 1938, Montevidéu.
PROJETOS E OBRAS NO URUGUAI (1938-1946) Faculdade de Arquitetura
103
178
Nesse sentido, a Faculdade de Arquitetura da Universidad de la República de
Montevidéu é uma obra importante na afirmação da arquitetura moderna em Montevidéu e na
carreira inicial de Fresnedo. A arquitetura deste edifício revela uma diversidade de episódios
formais e espaciais coordenados por um sentido de ordem dado pela composição axial e pela
demarcação rítmica dos pilares.
179
180
181
178. Fachada leste, Bulevar Artigas,
Faculdade de Arquitetura, 1938,
Montevidéu.
179. Faculdade de Arquitetura, 1938,
Montevidéu.
180. Faculdade de Arquitetura, 1938,
Montevidéu.
181. Faculdade de Arquitetura, 1938,
Montevidéu.
PROJETOS E OBRAS NO URUGUAI (1938-1946) UTE
104
2.5 Sede da Usina de Telefonia do Estado – UTE – 1943
A empresa de telefonia do Estado (UTE) contrata, em 1932, o arquiteto Fresnedo Siri
como funcionário. Fresnedo realiza uma viagem aos Estados Unidos em 1941 e a empresa
sugere que ele execute um estudo detalhado em relação às normas para construção de
edifícios administrativos de empresas similares à UTE
105
. Em 1943, Fresnedo apresenta uma
proposta para a nova urbanização da região do Arroio Seco, em Montevidéu. A nova sede,
também chamada de Palácio da Luz, entra como ponto chave na reurbanização do local.
Implantado entre as ruas Paraguay, General Aguilar, General Caraballo e Avenida
Agraciada (fig.182-3), o edifício integra-se à área industrial da cidade. A urbanização conta
ainda com um bloco de produção de energia termoelétrica, uma área de combustíveis, um
setor de armazenamento e depósito, áreas de serviços gerais, uma escola de eletrotécnica,
uma escola pública, áreas de comércio e casas para os empregados da Usina.
A conexão entre o Palácio da Luz e a Avenida Agraciada é dada por uma ampla
avenida de pedestres, ladeada por jardins e arborização, gerando uma perspectiva para a
valorização do novo edifício. Nas laterais desta avenida são dispostos blocos horizontais de
base comercial e apartamentos no nível superior, que formam uma “moldura” que enquadra o
prédio principal. Ao fim do eixo, no encontro das duas avenidas, tem-se uma praça triangular
para exposições e lazer (fig.182). O projeto desta urbanização não se completa, porém, o
edifício da UTE foi construído no local proposto e segue com sua monumentalidade
destacada diante da volumetria local.
105
BORONAT; RISSO, 1984, p.36.
PROJETOS E OBRAS NO URUGUAI (1938-1946) UTE
105
182
182. Plano de urbanização do Arroio
Seco
,
1943
,
Montevidéu.
PROJETOS E OBRAS NO URUGUAI (1938-1946) UTE
106
183
184
185
183. Croqui do plano de urbanização
do Arroio Seco, 1943, Montevidéu.
184. Croqui do plano de urbanização
do Arroio Seco, 1943, Montevidéu.
185. Projeto da cidade universitária
do Rio de Janeiro, maquete de
Marcello Piacentini e Vitório
Morpurgo, 1937.
PROJETOS E OBRAS NO URUGUAI (1938-1946) UTE
107
O edifício da UTE é o coroamento perspectivo da Avenida, no qual suas linhas
verticalizantes e a forma translúcida contrastam com a horizontalidade das barras de
apartamentos e com a tectonicidade dos pórticos comerciais. O conjunto lembra a arquitetura
racionalista italiana e particularmente as intervenções de Piacentini em centros urbanos
italianos, exceto pelo edifício principal em vidro, que se destacaria no conjunto pelo contraste
com os pórticos (fig.184). O edifício administrativo foi executado isoladamente, privando-o do
sentido de conjunto que havia no projeto original.
No mesmo ano, de 1943, Fresnedo apresenta dois estudos de anteprojetos para o
edifício (fig.187). A diferença entre as duas propostas está no acesso principal e no
tratamento das fachadas. No primeiro estudo o acesso é um recesso sem moldura, e a
fachada tem elementos verticais marcantes. Num segundo estudo, o acesso possui uma
moldura que se sobressai do volume principal, formado por planos de vidro aparentemente
sem marcação vertical ou horizontal.
A proposta final do edifício é de 1943 e mescla as duas alternativas, gerando um
volume no qual as fachadas são definidas por planos de vidro com montantes verticais e o
acesso é marcado por uma moldura saliente. O projeto final foi aprovado na prefeitura de
Montevidéu em dezembro de 1945 e início das obras foi em janeiro de 1946, com a colocação
da pedra fundamental entre as Ruas Paraguay e General Aguilar (fig.186). A obra dura cerca
de dois anos, sendo concluída em 1948.
186
186. Colocação da pedra
fundamental, 1946, Montevidéu.
PROJETOS E OBRAS NO URUGUAI (1938-1946) UTE
108
187
187. Dois estudos de anteprojeto.
UTE, 1943.
PROJETOS E OBRAS NO URUGUAI (1938-1946) UTE
109
O terreno possui forma irregular, totalizando uma superfície de 6.142m². O quarteirão
sofre uma adaptação formal na face que está alinhada à Rua Mendoza. Segundo a planta de
localização, o passeio tem três metros de largura ao redor de todo o edifício, exceto no
alinhamento da Rua Paraguay, onde acontece o acesso principal e o passeio tem quatro
metros. O recuo de jardim é de 8,20 metros em relação à Rua Paraguai. No alinhamento da
Rua General Aguilar e General Caraballo o recuo de jardim é de 8,0 metros (fig.188).
188
189
188. Localização, UTE, 1943,
Montevidéu.
189. UTE, 1943, Montevidéu.
PROJETOS E OBRAS NO URUGUAI (1938-1946) UTE
110
O edifício implantado apresenta uma forma retangular de 52,20 metros, paralelo à Rua
Paraguay, por 54,20 metros, gerando uma área edificada de 2.839 m², por pavimento. O
empreendimento abarca cerca de 30.000 m², distribuídos em onze pavimentos. O projeto de
Fresnedo Siri conta com a participação do engenheiro Mario Curbelo, que detalha e calcula a
parte estrutural do prédio.
A composição da planta é simétrica (fig.190). A estrutura é definida por uma malha de
pilares com intercolúnios de 6,15 metros no sentido transversal, e 6,60 metros no sentido
longitudinal. Há uma exceção nas duas linhas de colunas centrais, no qual a distância entre
as mesmas é de 11,00 metros, configurando um grande hall de acesso. Os pilares que fazem
parte das fachadas são ordenados de tal forma que a cada três, dois não têm função
estrutural. Ou seja, os pilares que realmente sustentam o edifício na periferia são aqueles
alinhados à estrutura interna, conforme mostra a planta do térreo (fig. 190).
A distribuição funcional do programa é bastante elementar. O arquiteto adota a planta
livre, propondo uma área central de circulações e serviços, deixando a parte periférica livre
para a composição das salas com divisórias leves. Esse sistema organizador possibilita boa
ventilação e iluminação nas salas, uma vez que estas se voltam para as faces envidraçadas.
O núcleo de funções agrupadas no centro da planta ocupa três módulos da grelha no sentido
transversal e quatro no sentido longitudinal, conforme se observa no térreo do edifício. Nesta
planta, o uso de colunas corresponde a áreas de salão livre, para circulações e exposições,
enquanto os pilares junto ao núcleo central admitem a colocação mais natural de painéis
PROJETOS E OBRAS NO URUGUAI (1938-1946) UTE
111
divisórios. A área de circulação pública é estabelecida e delimitada pelos balcões de
atendimento.
As funções do núcleo correspondem às circulações (elevadores e duas escadas
protegidas), sanitários e vestiários para os funcionários. Na parte periférica são organizadas
áreas de atendimento com balcões
106
e salas de espera, iluminadas pelos grandes planos de
vidro.
O mezanino (fig.193) engloba o núcleo fixo de serviços e circulações, porém, com
algumas adaptações. A parte central deste núcleo, destinada no térreo aos vestiários, no
mezanino se transforma em uma área de distribuição dos caixas e com um hall público. O
restante deste nível é ocupado pela tesouraria.
A planta tipo (fig.196) repete o núcleo central do pavimento térreo, liberando todo o
contorno para a disposição das salas e escritórios. Esta planta é análoga às plantas dos
edifícios em altura do Mies van der Rohe nos Estados Unidos
107
. Contudo, o edifício da UTE
antecede estes exemplares de Mies nos Estados Unidos. Isso demonstra seu caráter
inovador naquele momento
108
.
106
Os escritórios fechados com divisórias, que estão dispostos atualmente nas laterais, foram adicionados posteriormente.
107
Lake Shore Drive, Chicago, 1951.
108
A fábrica Van Nelle (1926-1931), de Brinkman e van der Vlugt, é referência internacional da tecnologia moderna do uso
do vidro independente da estrutura antes da década de 40, assim como o bloco de ateliers da Bauhaus (GROPIUS, 1925).
PROJETOS E OBRAS NO URUGUAI (1938-1946) UTE
112
190
191
192
190. Planta do térreo, UTE, 1943.
191. Acesso, UTE, 1943.
192. Núcleo central UTE, 1943.
PROJETOS E OBRAS NO URUGUAI (1938-1946) UTE
113
193
194
195
193. Planta do mezanino, UTE,
1943, Montevidéu.
194. Núcleo elevadores, UTE, 1943,
Montevidéu.
195. Escada, UTE, 1943,
Montevidéu.
PROJETOS E OBRAS NO URUGUAI (1938-1946) UTE
114
196
197
198
196. Planta do pavimento tipo, UTE,
1943, Montevidéu.
197. Painéis em pastilha, UTE, 1943,
Montevidéu.
198. Painéis decorativos, UTE, 1943,
Montevidéu.
PROJETOS E OBRAS NO URUGUAI (1938-1946) UTE
115
O acesso principal do edifício acontece por uma série de portas de metal e de vidro, na
faixa central da fachada. As portas levam a roletas de segurança, diretamente ao interior do
térreo. O hall e o térreo possuem um tratamento singular, com a aplicação de diversos
materiais nobres, principalmente o uso de mármores. A altura dupla, devido à presença de
um mezanino, monumentaliza o hall. As cores em geral são muito contrastantes. O tom de
mármore preto, que reveste as colunas e o acesso principal, contrasta com o ocre do forro
trabalhado em madeira e com os tons de vermelho das pastilhas utilizadas em alguns
detalhes. (fig.199, 200). O piso, em placas de mármore bordô e preto, reforça a variedade de
cores.
199 200
201
202
199. Térreo, UTE, 1943, Montevidéu.
200. Detalhe do forro, Térreo, UTE,
1943, Montevidéu.
201. Térreo, UTE, 1943, Montevidéu.
202. Térreo, UTE, 1943, Montevidéu.
PROJETOS E OBRAS NO URUGUAI (1938-1946) UTE
116
No hall e no salão de atos, no décimo pavimento, artistas deixam sua marca através de
algumas obras de arte feitas com materiais nacionais. O escultor Eduardo Yepes
109
executa
um enorme mural no hall, feito com ametistas do Uruguai, com cores que variam de lilás a
tons violetas. “É um desenho de um campo magnético, de cujos pólos surgem a expressão da
energia, modelada em cimento e laminada em folhado de ouro”
110
(fig.203).
203
109
Eduardo Diaz Yepes, escultor e artista Uruguaio (1910-1979).
110
BORONAT; RISSO, 1984, p.44.
203. Mural Yepes, Térreo, UTE,
1943
,
Montevidéu.
PROJETOS E OBRAS NO URUGUAI (1938-1946) UTE
117
No salão de atos (10º andar, fig.204-05) a porta de acesso se destaca por suas
dimensões e decoração. Nesta porta, registra seu trabalho o escultor Pablo Serrano
111
,
através de desenhos abstratos, e, segundo ele, “os motivos desta porta estão compostos por
elementos abstratos, mas tomados de objetos reais e simples que se utilizam na UTE, ou dos
quais esta serve para seu uso. Duas formas humanas se apóiam nesses elementos: a voz e a
luz. A luz que surge de formas pesadas e toscas. A voz como forma humana que se dirige ao
espaço”
112
.
Todos os ambientes são hermeticamente tratados. Possuem ventilação e iluminação
natural, através de esquadrias em vidro e metal. Além disso, são colocados pontos de
distribuição de ar condicionado central, devido a temperaturas elevadas no verão. Os
revestimentos no pavimento tipo são variados e mais simples que os propostos no térreo. O
piso é vinílico, em tons de bordô, preto, azul e branco. Os móveis e as divisórias são em
madeira natural. Em alguns pavimentos surgem painéis decorativos com pinturas ou
revestidos com pastilhas. As circulações são identificadas pela presença do revestimento de
pastilhas, em tom de lilás, até 1,50 metros de altura.
111
Pablo Serrano, escultor e artista Espanhol (1908-1985).
112
BORONAT; RISSO, Marta R., 1984.p.43-5
204
205
204. Porta do salão de atos, UTE,
1943, Montevidéu.
205. Porta do salão de atos, UTE,
1943, Montevidéu.
PROJETOS E OBRAS NO URUGUAI (1938-1946) UTE
118
A composição volumétrica é baseada em um único prisma retangular. O retângulo, de
54,20 metros por 52,20 metros, se ergue em uma altura de 53 metros, em onze pavimentos.
As esquadrias de vidro e metal possuem uma modulação por pavimento, dividindo três
módulos por andar, sendo que o primeiro módulo, de 1,20 metros, é fixo e forma o peitoril. A
pele de vidro das fachadas é interrompida, no sentido vertical, a cada 1,80 metros, por pilares
que desfazem a marcação da estrutura interna e conferem um aspecto abstrato ao edifício.
Os primeiros dois estudos de anteprojeto do arquiteto propunham um número maior de
pavimentos (fig.187), o que resultaria em um prédio mais esbelto do que o atual. Devido a
fatores econômicos, o número de pavimentos foi reduzido e executado conforme o estado
atual em que se encontra o Palácio da Luz.
208
206
207
206. Maquete, UTE, 1943,
Montevidéu.
207. Maquete, UTE, 1943,
Montevidéu.
208. Croqui de Pierre Fossey, UTE,
1943, Montevidéu.
PROJETOS E OBRAS NO URUGUAI (1938-1946) UTE
119
No sentido horizontal, tem-se a marcação das lajes dos pavimentos, com vigas de 62
cm de altura, refletidas no exterior da volumetria. Contudo, os montantes verticais são mais
salientes, em virtude da intenção de alongar o edifício. Percebe-se que essa redução de
altura, na proposta final, acarreta em uma proporção similar a um cubo (54x52x53), o que aos
olhos do observador pode parecer mais vertical em virtude das estratégias adotadas na
fenestração das fachadas.
211
209
210
209. Construção, UTE, 1943,
Montevidéu.
210. UTE, 1943, Montevidéu.
211. Montantes verticais na fachada,
UTE, 1943, Montevidéu.
PROJETOS E OBRAS NO URUGUAI (1938-1946) UTE
120
214
212
213
212. Acesso principal, UTE, 1943,
Montevidéu.
213. Acesso principal, UTE, 1943,
Montevidéu.
214. Corte UTE, 1943, Montevidéu.
PROJETOS E OBRAS NO URUGUAI (1938-1946) UTE
121
215
O contraste entre o vidro translúcido esverdeado e as pilastras brancas é reforçado
pela presença do grande pórtico em mármore preto que salienta o acesso principal do
216
215. Fachada, UTE, 1943,
Montevidéu.
216. Pilar externo, UTE, 1943,
Montevidéu.
PROJETOS E OBRAS NO URUGUAI (1938-1946) UTE
122
edifício. A borda forma uma moldura de entrada com a escadaria monumental, terminada por
grandes portas de vidro. Dentro do pórtico de entrada há dois pilares revestidos em mármore
negro, com detalhes de desenhos que representam o trabalho e a força que geram a luz
(fig.216).
A idéia da caixa de vidro, cristalina, que reflete a intensidade do sol no vidro e nos
mármores negros, revela os conceitos de luz, de transparência e de energia presentes desde
a concepção do projeto. A proposta da delicada grelha verticalizada de concreto sobreposta
aos planos de vidro, definindo um cubo preciso, confere ao edifício um aspecto de sofisticada
abstração, de forma a tornar o prédio mais esbelto, mantendo a idéia de volume puro e
elementar.
Nesse sentido, Fresnedo evidencia sua identidade moderna através do vidro, dando
seqüência ao tema abordado na casa de Punta Ballena, e da tecnologia do concreto na
sofisticada manipulação da estrutura. Em contraponto, estão presentes algumas
características que remetem a arquitetura clássica, como o ritmo e ordem das colunatas e a
composição simétrica na planta, na volumetria e no esquema geral de inserção urbana
proposto inicialmente. Esse esquema geral, que não foi construído, valorizaria o edifício que
atualmente está isolado.
PROJETOS E OBRAS NO URUGUAI (1938-1946) Hospital Americano
123
2.6 Hospital Americano - 1946
O tema da arquitetura hospitalar foi constante na carreira de Fresnedo a partir do ano
de 1946 e destacou-se no período de 1951 a 1961. Nesta época, o arquiteto envolveu-se com
uma série de projetos, ampliações e reformas de hospitais
113
. O primeiro projeto nesta área
foi o Hospital Americano
114
(fig.218-9), em Montevidéu, encarregado à Fresnedo Siri por meio
de seu diretor, o Dr. Júlio Mezzera Alvarez, em 1946. O proprietário do Hospital era Juan C.
Dighiero, que neste mesmo ano convocou Fresnedo para projetar sua residência.
Posteriormente, Alvarez também teve sua casa projetada pelo mesmo arquiteto.
115
As obras
do prédio do Hospital foram concluídas no ano de 1948.
O terreno localiza-se à Rua Isabelino Bosch, 2466, próximo à esquina formada com a
rua Pedro Campbell, no bairro Tres Cruces (fig. 219). A área é predominantemente
residencial, sendo que ao norte localiza-se o parque José Battle y Ordoñez e a sul o bairro de
Pocitos.
113
Sobre a lista completa dos projetos, ampliações e reformas cf. p.28 -30.
114
O Hospital Americano foi fundado no dia 28 de setembro de 1945 e iniciou suas atividades em 1948, ao término das
obras.
115
Ver p.58.
PROJETOS E OBRAS NO URUGUAI (1938-1946) Hospital Americano
124
219
O edifício é composto por duas alas em “L” (fig.220), uma das quais voltada para a Rua
Isabellino J. Bosch (fachada principal) e a outra perpendicular à primeira, voltada para o pátio.
A ala voltada para a rua possui térreo mais cinco pavimentos e é disposta em perfil
levemente convexo, talvez para melhor aproveitar o sol da manhã. Esta ala contém a grande
217
218
217. Hospital Americano, 1946,
Montevidéu.
218. Hospital Americano, 1946,
Montevidéu.
219. Localização, Hospital
Americano, 1946, Montevidéu.
PROJETOS E OBRAS NO URUGUAI (1938-1946) Hospital Americano
125
maioria dos quartos de internação (1º ao 4º pavimento), além dos consultórios (térreo) e das
salas de cirurgia (5º pavimento). A ala interna, voltada para o pátio, contém vários serviços de
apoio, sendo mais extensa nos três primeiros pavimentos.
220
220. Implantação, Hospital
Americano, 1946, Montevidéu.
PROJETOS E OBRAS NO URUGUAI (1938-1946) Hospital Americano
126
O acesso principal (fig.221-3) se dá na extremidade esquerda do bloco principal, no
térreo (fig.231), através de um vão coberto por marquise. Uma fachada de vidro se abre para
um amplo hall, dá acesso à recepção, às circulações verticais, aos sanitários, e a uma
seqüência de salas (consultórios e laboratórios). Estas salas são voltadas para a rua,
enquanto o corredor que as liga está voltado para o pátio interno, amplamente visível através
da fachada envidraçada (fig.224-8).
221
223
221. Acesso principal, Hospital
Americano, 1946, Montevidéu.
222. Acesso principal, Hospital
Americano, 1946, Montevidéu.
223. Acesso principal, Hospital
Americano, 1946, Montevidéu.
222
PROJETOS E OBRAS NO URUGUAI (1938-1946) Hospital Americano
127
224 225
226 227
228
224. Recepção, Hospital Americano,
1946.
225. Vista do pátio, Hospital
Americano, 1946.
226. Pátio, Hospital Americano,
1946.
227. Pátio com vista das duas alas,
Hospital Americano, 1946.
228. Circulação vertical, Hospital
Americano, 1946.
PROJETOS E OBRAS NO URUGUAI (1938-1946) Hospital Americano
128
Os demais pisos da ala principal replicam a disposição do térreo com um hall
diminuído, circulação voltada para o pátio e quartos voltados para a rua. O primeiro
pavimento é exceção, tendo duas fileiras de quartos menores e circulação central com
corredor.
A ala de apoio tem sua circulação localizada junto à divisa do terreno, ligando a ala
principal ao acesso de serviço nos fundos. Esta ala possui uma prumada própria de
circulação vertical (escada e elevador).
A estrutura na barra principal é modulada por pilares que distam 3.40 metros entre
eixos na curva voltada para o pátio e 3.80 metros na curva da fachada principal. O térreo
(fig.231) apresenta uma exceção na modulação estrutural da fachada, intercalando montantes
intermediários aos pilares. Na ala perpendicular, de serviços de apoio, os pilares são
dispostos a cada 4.75 metros na face da divisa, sendo os pilares das paredes curvas
alinhados a estes.
230
229
229. Vista do pátio, com detalhe da
circulação vertical envidraçada, da
ala de serviço, Hospital Americano,
1946, Montevidéu.
230. Detalhes, respectivamente:
cornija, volume vertical e painel de
alvenaria, anexo no térreo, escada e
cobertura de acesso com painel em
alvenaria. Hospital Americano, 1946,
Montevidéu.
PROJETOS E OBRAS NO URUGUAI (1938-1946) Hospital Americano
129
231
1- Arquivo
2- Espera
3- Hall
4- Banheiro/Vestiário
5- Escritório
6- Consultório
7- Laboratório
8- Sala de análises
9- Circulação
10- Sala de reuniões
11- Farmácia
12- Quarto
13- Escritório
14- Cozinha
15- Ecônomo
16- Depósito
232
233
231. Planta do térreo, Hospital
Americano, 1946, Montevidéu.
232. Recepção, Hospital Americano,
1946, Montevidéu.
233. Vista externa da escada,
Hospital Americano, 1946,
Montevidéu.
PROJETOS E OBRAS NO URUGUAI (1938-1946) Hospital Americano
130
234
1-Quarto
2- Estar
3- Hall
4- Banheiro/Vestiários
5- Circulação
6- Depósito
7- Sala de curativos
8- Enfermaria
9- Sala de atendimento
234. Planta do primeiro pavimento,
Hospital Americano, 1946,
Montevidéu.
PROJETOS E OBRAS NO URUGUAI (1938-1946) Hospital Americano
131
235
1- Quarto
2- Hall
3- Estar
4- Banheiro/Vestiários
5- Sala de estar
6- Depósito
7- Sala de atendimento
8- gerência
9- circulação
10- Enfermaria
11- Banhos e incubadora
recém nascidos
12- Sala de recuperação
13- Sala de partos
14- Sala de internação
235. Planta do segundo pavimento,
Hospital Americano, 1946,
Montevidéu.
PROJETOS E OBRAS NO URUGUAI (1938-1946) Hospital Americano
132
236
1- Quarto
2- Hall
3- Estar
4- Banheiro/Vestiário
5- Sala de estar
6- Depósito
7- Enfermaria
8- Sala de atendimento
9- Circulação
236. Planta do terceiro pavimento,
Hospital Americano, 1946,
Montevidéu.
PROJETOS E OBRAS NO URUGUAI (1938-1946) Hospital Americano
133
237
1- Quarto
2- Estar
3- Hall
4- Banheiro/Vestiário
5- Sala de estar
6- Depósito
7- Enfermaria
8- Sala de atendimento
9- Balcão
10- Circulação
237. Planta do quarto pavimento,
Hospital Americano, 1946,
Montevidéu.
PROJETOS E OBRAS NO URUGUAI (1938-1946) Hospital Americano
134
238
O primeiro pavimento (fig.234), à exceção dos outros, abriga os quartos de internação
mais simples e menores, com largura de aproximadamente 2.40 metros. O segundo
pavimento (fig.235) abarca funções relacionadas à maternidade na ala de serviços, sendo
que a barra principal acomoda os quartos de internação com banheiros. Neste este nível os
quartos são mais sofisticados e confortáveis, com aproximadamente 3.40 metros de largura.
No quarto pavimento (fig.237) são colocados três quartos de luxo, com sala de estar,
1- Sala de médicos
2- Sala de fisioterapia
3- Hall
4- Banheiro/vestiário
5- Sala de estar
6- Sala de endoscopia
7- Sala de Raio X
8- Câmara escura
9- Balcão
10- Banho
11- Vestiário
12- Circulação
13- Sala de operação
14- Esterilização
15- Lavatório
16- Sala de anestesia
17-Sala de operação
18- Depósito
19- Traumatologia
20- Enfermaria
21- Sala
238. Planta do quinto pavimento,
Hospital Americano, 1946,
Montevidéu.
PROJETOS E OBRAS NO URUGUAI (1938-1946) Hospital Americano
135
banheiro com banheira e terraço. O quinto (fig.238) nível abriga as funções mais complexas
do programa que envolve o bloco cirúrgico e o bloco de tratamento intensivo dos pacientes.
O térreo sofreu algumas intervenções posteriores devido à falta de espaço para
organização das funções administrativas do edifício. Alguns consultórios migraram para o
último pavimento. Dessa forma, além de acomodar as novas exigências administrativas,
foram criadas uma cafeteria e uma pequena capela no térreo
116
. Nesse sentido, percebe-se
um acréscimo à volumetria do edifício no térreo perto da escada, o que prejudicou a visual da
circulação para o pátio, anteriormente envidraçada. (fig.239).
Chama a atenção o uso da curvatura nas plantas do edifício. Afora a flexão mais suave
do bloco principal, vários planos curvos são introduzidos, com destaque para a entrada
principal (paredes e marquise) e os dois planos de fachada mais extremos da ala interna, na
barra de serviços. O uso da curva pode representar alguma influência da arquitetura de Oscar
Niemeyer, cujas obras da Pampulha haviam sido concluídas recentemente (1942-1943).
A fachada principal do Hospital Americano é caracterizada pela uniformidade que está
representada através do predomínio das linhas horizontais. O projeto se definiu após muita
discussão entre Fresnedo e o Dr. Mezzera, uma vez que, na definição da fenestração, o
arquiteto sugere planos de vidro nas fachadas, como na maioria de suas obras, enquanto que
a posição do médico é diferente. Mezzera enfatiza no seu discurso a importância de peitoris
fechados para o tema em questão e se mostra contra a opção do arquiteto, enfatizando o
desconforto do paciente em se deparar com um plano de vidro dos pés à cabeça.
116
BORONAT; RISSO, 1984, p. 52-3.
239
240
239. Vista do pátio, Hospital
Americano, 1946, Montevidéu.
240. Hospital Americano, 1946,
Montevidéu.
PROJETOS E OBRAS NO URUGUAI (1938-1946) Hospital Americano
136
Dessa maneira, a fachada principal é uma barra levemente encurvada para dentro,
com marcação vertical em volume cego junto ao acesso principal seguida por uma seqüência
de faixas horizontais, que alternam planos cegos em leve projeção com a seqüência de
aberturas. A solução lembra as fachadas de Erich Mendelsohn, particularmente a loja
Schocken de Chemnitz (1928, fig.242). Se o talude de grama conforma uma base (tal como a
Faculdade de Arquitetura), o coroamento se projeta como uma das faixas cegas em maior
avanço e demarcado por pergolado. A finalização do volume com pergolados e coberturas em
avanço é característico na obra de Fresnedo até a década de 50, estando presente em
diversas residências e em alguns edifícios públicos (fig.241 e 243).
241
242
243
241. Hospital Americano, 1946,
Montevidéu.
242. Loja Schocken, Erich
Mendelsohn, 1928.
243. Corte, detalhe faixas horizontais
(floreiras) e coroamento, Hospital
Americano, 1946, Montevidéu.
PROJETOS E OBRAS NO URUGUAI (1938-1946) Hospital Americano
137
Nas fachadas internas (fig.244-5), destaca-se o uso do vidro em extensas faixas com
escadaria. É justamente nas escadarias que Fresnedo reafirma seu gosto pelo uso da
transparência como experiência espacial virtuosa. Ambas as escadarias oferecem vistas do
pátio arborizado à medida que o visitante transita entre os pavimentos. A experiência da
transparência não é absoluta, mas intercalada com outros planos fechados. Tal referência
encontra-se no Hipódromo de Maroñas (fig.246), no qual as circulações são marcadas pelo
mesmo fechamento de vidro,
117
e na Faculdade de Arquitetura,
118
em que os planos
tectônicos são alternados com planos de vidro.
244 245
117
Ver p.71.
118
Ver p.84.
246
244. Hospital Americano, 1946,
Montevidéu.
245. Vista externa da escada,
Hospital Americano, 1946,
Montevidéu.
246. Vista externa da escada
Hipódromo de Maroñas, 1938,
Montevidéu.
PROJETOS E OBRAS EM PORTO ALEGRE (1951-1952) Hipódromo do Cristal
138
CAPÍTULO 3
3. PROJETOS E OBRAS EM PORTO ALEGRE (1951-1952)
Este capítulo abrange um período curto, mas bastante importante na carreira de
Fresnedo, no qual ele realiza duas obras de grande porte na cidade de Porto Alegre, no Rio
Grande do Sul. Trata-se do Hipódromo do Cristal (1951) e do edifício Esplanada (1952).
3.2 Hipódromo do Cristal – 1951
A decisão adotada pelo Conselho do Plano Diretor da prefeitura de Porto Alegre em
1939 ocasionaria a mudança da localização do Hipódromo da cidade, que estava inserido no
bairro Moinhos de Vento. A várzea fronteira à praia do Cristal foi o local designado para o
empreendimento. As questões que envolveram as discussões a respeito da localização do
Hipódromo versavam sobre as condições de uso do antigo local, com problemas como a
pouca capacidade para atender a demanda de usuários bem como sua localização
problemática ao desenvolvimento urbano do bairro.
Em 1949, Eurico Gaspar Dutra, então presidente do Brasil, autorizou o Jockey Club do
Rio Grande do Sul a obter um empréstimo para financiar a nova construção. Daniel Krieger,
presidente da sociedade, em 13 de outubro de 1950, firmou contrato com a empresa STER
S.A. (Sociedade Técnica de Engenharia e Representação), para a execução e construção do
247
248
247. Hipódromo do Cristal, 1951,
Porto Alegre.
248. Hipódromo do Cristal, 1951,
Porto Alegre.
PROJETOS E OBRAS EM PORTO ALEGRE (1951-1952) Hipódromo do Cristal
139
Hipódromo. Os jornais de maior circulação em Porto Alegre, Rio de Janeiro e São Paulo,
então, publicaram um edital, convocando consórcios de empresas construtoras e arquitetos
para um concurso de anteprojetos para o novo Hipódromo.
119
A Comissão de julgamento era
formada por Leovegildo Paiva, da Escola de Engenharia da UFRGS, Lauro Malheiros, da
Sociedade de Engenharia local e Telmo Thompson Flores também engenheiro, indicado pelo
promotor do concurso, Jockey Club do Rio Grande do Sul. A construtora Azevedo Moura e
Gertum apresentou o projeto vencedor do concurso (1951), com a autoria do arquiteto Román
Fresnedo Siri. O contrato com a construtora foi assinado em 18 de outubro daquele ano e o
edifício estava praticamente concluído no ano de 1953.
O programa de necessidades do pavilhão social contava com uma tribuna para 3000
pessoas, restaurantes, salões, sanitários e área de apostas. O pavilhão para os profissionais
exigia uma tribuna para 600 pessoas, salas de imprensa, salas para comissão, sanitários e
área de apostas. Os pavilhões especiais (populares) previam a capacidade total para
18.000
120
pessoas, restaurantes, casa de apostas, salões de apostas dentro e fora da tribuna,
serviços e sanitários. A vila hípica necessitava alojamento para 1600 animais, duchas e
piscinas, áreas para tratamento veterinário, residência de administradores, de funcionários,
de capatazes e de tratadores, mercado, posto de abastecimento, clube e grupo escolar.
A implantação do conjunto está delimitada pelas Avenidas Icaraí e Diário de Notícias,
sendo que o Arroio Cavalhada cruza a área no sentido transversal, dividindo a ocupação em
119
Sobre informações relacionadas ao contexto e ao concurso do Hipódromo do Cristal, cf. COMAS; CANEZ; BOHER,
2004, p.17, 32-40
120
Na proposta, Fresnedo divide esta capacidade em quatro tribunas especiais, sendo 4500 pessoas a capacidade de cada
uma.
PROJETOS E OBRAS EM PORTO ALEGRE (1951-1952) Hipódromo do Cristal
140
uma duas partes: a área retangular, com dimensões aproximadas de 510x1000m, e a
triangular, que são interligadas por meio de pontes (fig.250).
O Hipódromo está organizado na área retangular e grande parte da Vila Hípica no
setor triangular. A partir de uma leitura inicial do projeto, identifica-se uma organização por
faixas
121
longitudinais de ocupação. Na primeira faixa estão planejadas as vagas de
estacionamentos e jardins que definem os acessos de veículos e pedestres. A segunda faixa
é composta pelas quatro casas de apostas lineares. Rematando esta faixa, percebe-se a
presença do prolongamento do eixo central do pavilhão social, que define o acesso social
principal. A terceira faixa contém os quatro pavilhões especiais, alinhados paralelamente às
casas de apostas, o pavilhão social e o pavilhão dos profissionais, ligeiramente girado. As
faixas terminam diante do paddock em formato circular. A casa de apostas curva articula a
tribuna dos profissionais e o ringue do paddock, através da organização radial em contraste
com a ortogonalidade da composição das demais tribunas e casas de apostas retas.
O projeto se organiza como uma seqüência de unidades regulares que termina no
pavilhão social, ponto culminante do conjunto. Este pavilhão coincide com a linha de chegada
da pista e possui acesso especial em projeção. Em seguida, o pequeno pavilhão dos
profissionais já acusa a curvatura da pista com sua disposição, integrando a grande rotatória
que encerra as faixas das casas de apostas, a via de pedestres e os pavilhões.
Parte da vila hípica está arranjada em uma faixa de 80 metros, ao lado do Arroio
Cavalhada, que se estende ao longo de todo canal. Nesta, estão dispostas residências de
maior nível, mercado, estacionamentos, clube social, escola, posto de gasolina e portaria. A
121
COMAS; CANEZ; BOHER, 2004, p.45.
PROJETOS E OBRAS EM PORTO ALEGRE (1951-1952) Hipódromo do Cristal
141
área triangular, cruzando o arroio, complementa a Vila Hípica com enfermaria, área verde,
piscina e as duchas para os animais, residências para cavalariços e solteiros, ordenadas em
fita, além de faixas de estacionamentos para atender a demanda do complexo esportivo.
249
250
249. Esquema da ocupação em
faixas longitudinais, Hipódromo do
Cristal, 1951, Porto Alegre.
250. Implantação do complexo.
Planta apresentada no concurso,
Hipódromo do Cristal, 1951, Porto
A
le
g
re.
PROJETOS E OBRAS EM PORTO ALEGRE (1951-1952) Hipódromo do Cristal
142
251
252
253
254
251. Implantação do complexo.
Planta apresentada no projeto
definitivo, Hipódromo do Cristal,
1951.
252. Implantação do complexo.
Planta atual do que foi construído,
Hipódromo do Cristal, 1951.
253-254. Vista geral dos pavilhões,
Hipódromo do Cristal, 1951, Porto
Alegre.
PROJETOS E OBRAS EM PORTO ALEGRE (1951-1952) Hipódromo do Cristal
143
Ao observar a implantação referente ao projeto definitivo (fig.251) e o estado atual
(fig.252), percebe-se que pouco está construído em relação ao planejado. A fidelidade ao
projeto é notória na construção dos pavilhões e da casa de apostas, porém se perde em
algumas partes na Vila Hípica. Dos quatro pavilhões especiais projetados apenas um é
executado fazendo com que o conjunto seja reconhecido hoje pelos três pavilhões e algumas
construções da Vila Hípica. A pista também apresenta traços modificados em relação ao seu
contorno e às construções no interior, que não constavam no anteprojeto.
A implantação referente ao projeto definitivo revela o caráter modernista do projeto de
Fresnedo, que envolve não apenas edificações isoladas, mas também uma estrutura
organizativa da composição. Nesse sentido, a curva, presente nas edificações e nos pisos,
também se torna um elemento de orientação e direção espacial, de forma que conduz o
indivíduo a determinados caminhos. À margem direita do arroio, estruturam-se mais três
quarteirões, sendo o maior deles organizado pelo grupo escolar e pelas residências de maior
nível. Conforme Comas, Canez e Boher, a disposição em “árvore” dessas residências remete
a um esboço de bairro-jardim, em Buenos Aires, feito por Le Corbusier para a multiplicação
da Vila Savoye (fig.255). À esquerda do arroio, a organização de diversas barras lineares das
residências e as faixas de estacionamento demonstram o bom aproveitamento do terreno e
reforçam os conceitos da cidade moderna que se preconizava no século XX, particularmente
do urbanismo Alemão do entre-guerras (fig.256).
As intervenções modernas sobre a cidade tradicional, no século XX, se manifestam de
diversas formas, sendo que algumas se integram ao tecido da cidade, outras adotam a
estratégia da “tábula rasa”, buscando a criação de uma nova cidade. Muitas das propostas
255
256
255. Esquema de implantação
coletiva da Villa Savoye publicado
em Precisões, 1929, Le Corbusier.
256. Plano residencial modernista,
Scharoun e Gropius, Berlim, 1929.
PROJETOS E OBRAS EM PORTO ALEGRE (1951-1952) Hipódromo do Cristal
144
são caracterizadas por um jogo entre linhas curvas e retas, de forma criativa e inovadora,
como por exemplo, o projeto de Scharoun e Gropius, para residências em Berlim, 1929
(fig.256)
122
.
Fresnedo deixa claro que o urbanismo moderno não se reduz à cidade no parque da
Carta de Atenas [...]. Não subscreve uma cidade funcional que rejeita a rua corredor, a praça
salão e o quarteirão fechado. Sugere, ao contrário, a possibilidade do aperfeiçoamento e do
enriquecimento de um repertório que inclui tanto contribuições do passado remoto quanto do
passado imediato. A figuratividade urbanística proposta é contemporânea, o objeto isolado
permanece uma exceção e ganha valor em conseqüência desse fato
123
.
Ao traçar um olhar sobre a forma dos três edifícios principais é possível elencar
elementos que auxiliam na análise interpretativa e crítica da composição do conjunto do
Hipódromo do Cristal. O princípio compositivo segue o mesmo nos três pavilhões, como um
protótipo repetido com leves adaptações de função e dimensões devido ao uso. Para
compreender a volumetria parte-se de quatro elementos básicos: uma placa vertical (o eixo
estruturador), as arquibancadas inclinadas, a caixa de vidro e a cobertura (fig.259-61).
122
GONSALES, Célia Helena Castro. Cidade moderna sobre cidade tradicional: movimento e expansão-parte 2: De sixto V
a Le Corbusier. Arquitextos 292, abril 2005.
123
COMAS; CANEZ; BOHER, 2004, p. 91-92.
257
258
257. Tribuna social, Hipódromo do
Cristal, 1951, Porto Alegre.
258. Detalhe da placa, Tribuna
especial, Hipódromo do Cristal,
1951, Porto Alegre.
PROJETOS E OBRAS EM PORTO ALEGRE (1951-1952) Hipódromo do Cristal
145
259
A polaridade entre fachada de rua e fachada de pista não se explica como mera
justaposição de dois volumes antagônicos como em Maroñas. Tampouco se coloca como
transformação gerada por translação da caixa estrutural em relação à caixa murada – como no
Pavilhão Brasileiro de Nova Iorque – ou por recorte do volume edificado – como no Hotel de
Ouro Preto, dois casos que a vista lateral tem sabor de corte. Ela integra uma transformação
progressiva em que a empena tem característica plena de fachada, e o edifício se abre em todas
as direções. Ampliando o repertório e as estratégias de composição da arquitetura moderna, a
transformação recorre à duplicação da caixa murada por elementos de arquitetura
complementares, a placa divisória que enrijece a estrutura e o quebra-sol que protege o plano
de vidro, ambos equacionados como dispositivos de mediação planares e salientes.
124
124
Idem, p.97
260
261
259. Esquema compositivo,
Hipódromo do Cristal, 1951, Porto
Alegre.
260. Esquema compositivo,
Hipódromo do Cristal, 1951, Porto
Alegre.
261. Esquema compositivo,
Hipódromo do Cristal, 1951, Porto
Alegre.
PROJETOS E OBRAS EM PORTO ALEGRE (1951-1952) Hipódromo do Cristal
146
A placa indica a linha central de apoio da cobertura. É nesse ponto que acontece o
encontro das inclinações da cobertura, sendo a placa o elemento que divide o setor fechado
do setor aberto das arquibancadas. Esta parede, que atinge quase a altura total dos
pavimentos, é parte encravada no interior do edifício, podendo ser visualizada a partir do
exterior devido à transparência das vedações. O revestimento a destaca na composição do
todo, através da coloração alaranjada das pastilhas. A geometria compreende linhas
quebradas e curvas, reforçando a idéia de rompimento da ortogonalidade. Ao observar a
planta baixa, esta placa toma continuidade a partir dos pilares, com intercolúnios de cinco
metros no pavilhão social e no especial, e quatro metros no pavilhão dos profissionais.
As arquibancadas representam o setor aberto da composição. Seus dois níveis
remetem à idéia inovadora de Maroñas, quando o arquiteto propôs dois lances de
arquibancadas, e não apenas um
125
. No Hipódromo do Cristal, porém, os acabamentos são
ousados, as linhas mais livres e a geometria não regular. A forma trapezoidal das
arquibancadas é análoga nas três tribunas, acompanhando o desenho da cobertura. Os
guarda-corpos se destacam por sua abertura angular inversa à cobertura, além das diferentes
alturas e larguras, aliadas a formas curvas. No pavilhão social e no pavilhão dos profissionais,
o peitoril no nível mais baixo de arquibancadas torna-se floreira, com desenho de geometrias
similares aos guarda-corpos superiores.
A curva se destaca na composição da fachada sobre a pista do pavilhão popular.
Nesta tribuna, a volumetria dos sanitários é delineada por superfícies ondulantes que
compõem um jogo de reentrâncias e saliências, luz e sombra na fachada, aliada à geometria
125
Ver esquema compositivo semelhante em Maroñas, p.80.
262
263
262. Vista sobre a pista, Hipódromo
do Cristal, 1951, Porto Alegre.
263. Vista sobre a pista, detalhe das
floreiras, Hipódromo do Cristal,
1951, Porto Alegre.
PROJETOS E OBRAS EM PORTO ALEGRE (1951-1952) Hipódromo do Cristal
147
das laterais das arquibancadas e às esquadrias de vidro perfeitamente encaixadas e
arrematadas no topo do volume. As linhas sinuosas, retilíneas e oblíquas se fundem,
traduzindo a plasticidade e a elegância do projeto.
Se o jogo remete às experiências dos Roberto nas fachadas em linha quebrada dos
edifícios Marques do Herval e Samambaia (1952), Finuza e D. Fátima (1954), trata-se de
coincidência mais que influência, mas coincidência feliz ao aumentar os vínculos de natureza
geográfica entre a obra do estrangeiro e a cena local.
126
A caixa de vidro é um elemento fundamental na composição. A cobertura, a placa e as
arquibancadas estão vinculadas a esta caixa de vidro, que se mostra integralmente na
fachada posterior à pista de corridas, definindo a parte fechada da composição. As três
tribunas possuem tratamento similar do bloco envidraçado, uma estrutura de metal e vidro
translúcido, articulada através de desenhos ricos, com modulação original na obra de
Fresnedo, recordando alguns traços característicos da composição no neoplasticismo e da
arquitetura de Mies antes da II Guerra. (fig.264-5).
No caso dos pavilhões do Hipódromo do Cristal, o volume envidraçado constitui o
núcleo do edifício, ao qual se articulam a cobertura e os dois lances de arquibancadas como
elementos sólidos contrastantes. Na fachada de acesso, com a solenidade clássica dos
pórticos de hastes diante do plano vítreo com brises. Do lado da pista, pequenas faixas de
vidro aparecem em meio ao jogo de arquibancadas, placas, marquises e paredes com
obliqüidades e curvaturas, além de revestidos com pastilhas coloridas. Desse modo, nota-se
a transição da sobriedade monumental do acesso à extroversão diante da pista.
126
COMAS; CANEZ; BOHER, 2004, p. 102.
264
265
264. Desenho abstrato, Fresnedo
Siri, s.d.
265. Detalhe do vidro, Hipódromo do
Cristal, 1951, Porto Alegre.
PROJETOS E OBRAS EM PORTO ALEGRE (1951-1952) Hipódromo do Cristal
148
O vidro passa a ser um elemento presente nas quatro fachadas das tribunas, mas na
perspectiva das arquibancadas pouco dele é visível, em contraponto com a face posterior,
que é totalmente transparente e leve. A fachada livre revela as lajes dos pavimentos no
interior da construção. Os montantes afastam as lajes do plano de vidro e este recurso libera
a fachada da estrutura, explorando as possibilidades do esquema Dom-ino de Le Corbusier,
em que a estrutura é independente das vedações.
O sistema de proteção solar na fachada posterior, cuja insolação à tarde é intensa, é
resolvido com a colocação de quebra-sóis metálicos em lâminas horizontais fixas. A proteção
solar é um tema expressivo da arquitetura moderna brasileira, que representa a tradição local,
e é o principal articulador em muitos projetos exemplares no Brasil. Nesse sentido, destaca-
se a obra dos irmãos Roberto
127
, no Rio de Janeiro, pioneiros no emprego do brise-soleil
como elemento plástico e técnico na solução de fachadas.
266 267
127
Sobre a arquitetura dos Irmãos Roberto, cf. CALOVI, 1993.
268
269
266. Detalhe da estrutura do vidro,
brises e tirantes, Hipódromo do
Cristal, 1951.
267. Detalhe interno da estrutura do
vidro, Hipódromo do Cristal, 1951.
268. Tribuna especial, Hipódromo do
Cristal, 1951, Porto Alegre.
269. Parede curva dos sanitários,
Tribuna especial, Hipódromo do
Cristal, 1951, Porto Alegre.
PROJETOS E OBRAS EM PORTO ALEGRE (1951-1952) Hipódromo do Cristal
149
O quarto elemento que compõe a volumetria é a cobertura. Observada em planta
baixa, a laje tem a forma trapezoidal, cuja dimensão varia em cada tribuna. A cobertura no
pavilhão especial (popular) possui 64 x 29 x 60m, no pavilhão social tem 54,4 x 36,5 x 49,5m
e na tribuna dos profissionais 24,70 x 24,85 x 24,10m. Ao seccionar esta cobertura é possível
identificar que a laje é inclinada na parte superior e é formada por dois ângulos convergentes
na parte inferior, cujo ponto de encontro coincide com o eixo da placa saliente. (fig.271) A
inclinação da cobertura manifesta o contraponto com a ortogonalidade do chão, acentuando
as pressões entre o vertical e o horizontal.
A estrutura é composta por vigas invertidas protendidas, com grelhas entre elas no
lado de menor balanço. A tribuna especial possui 20 metros no maior balanço (lado da pista)
e 15 metros no menor com comprimento total da viga de 35 metros. Existem 11 intervalos de
vigamento distribuídos ao longo da extensão desta cobertura. Na tribuna social, o vão da
pista é de 24,20m e o vão posterior de 17,45m, totalizando o comprimento de 41,65m. Há
nove intervalos de vigamento. Finalmente, a tribuna dos profissionais tem 18 metros no vão
da pista e 12m no vão posterior, com total de 30m de vão e cinco intervalos de vigamento. As
grelhas, formadas por brises de concreto, provocam um belo jogo de luz e sombra na
fachada, além de exercerem a sua função técnica de proteção solar. Nas extremidades do
menor balanço são fixados tirantes de aço, que além da função estrutural, são elementos que
acentuam o ritmo e a ordem na fachada.
270
271
270. Hipódromo do Cristal, 1951,
Porto Alegre.
271. Vista posterior, tribuna dos
profissionais, Hipódromo do Cristal,
1951, Porto Alegre.
PROJETOS E OBRAS EM PORTO ALEGRE (1951-1952) Hipódromo do Cristal
150
272 273
274 275
272. Vista posterior, tribuna social,
Hipódromo do Cristal, 1951, Porto
Alegre.
273. Vista posterior, tribuna dos
profissionais, Hipódromo do Cristal,
1951, Porto Alegre.
274. Vista posterior, tribuna social,
Hipódromo do Cristal, 1951, Porto
Alegre.
275. Detalhe da estrutura do vidro,
brises e tirantes, Hipódromo do
Cristal, 1951, Porto Alegre.
PROJETOS E OBRAS EM PORTO ALEGRE (1951-1952) Hipódromo do Cristal
151
276 277
278 279
280
281
276. Tribuna social, Hipódromo do
Cristal, 1951, Porto Alegre.
277. Tribuna dos profissionais,
Hipódromo do Cristal, 1951, Porto
Alegre.
278-279. Paddock e casa de
apostas, Hipódromo do Cristal, 1951,
Porto Alegre.
280-1. Tribuna social, Hipódromo do
Cristal, 1951, Porto Alegre.
PROJETOS E OBRAS EM PORTO ALEGRE (1951-1952) Hipódromo do Cristal
152
A partir do estudo da concepção formal dos edifícios que formam o Jockey Club e
através das imagens expostas e dos esquemas organizados anteriormente, passa-se às
questões referentes ao funcionamento das tribunas. Pontuar-se-á algumas características da
distribuição interna que são pertinentes à compreensão do passeio arquitetônico pelo
conjunto, de forma a valorizar as particularidades de cada uma.
O conjunto apresenta três pavilhões ou tribunas de tamanhos diferentes, mas sua
aparência externa e gabarito são suficientemente parecidos de modo a garantir a unidade do
todo. A tribuna especial e a social possuem cinco pavimentos, sendo o segundo e o quarto
distintos por conformarem os mezaninos. Já o pavilhão dos profissionais conta com três
pavimentos e não possui mezaninos devido a menor dimensão em relação às outras duas
tribunas. O pavilhão especial, dentre os três, é o que mantém grande parte de suas
características originais na construção atual. Dentro desse quadro de afirmação da unidade, o
arquiteto introduz particularidades diversificadoras que caracterizam o funcionamento de cada
pavilhão. Cabe, portanto, identificar essas particularidades.
Tribuna especial
Este edifício é a unidade básica dos pavilhões, ou seja, o “tipo” que deveria ocorrer
quatro vezes ao longo da pista de chegada. Tendo sido construído apenas um, esta
percepção fica prejudicada. Embora seja o pavilhão mais extenso e de maior capacidade de
público, ele não possui a chegada cerimonial em destaque e os salões mais amplos da
tribuna social. A entrada ocorre numa seqüência de portas postadas ao centro da pele de
282
283
282. Hipódromo do Cristal, 1951,
Porto Alegre.
283. Tribuna especial, Hipódromo do
Cristal, 1951, Porto Alegre.
PROJETOS E OBRAS EM PORTO ALEGRE (1951-1952) Hipódromo do Cristal
153
vidro, ao abrigo da colunata de tirantes que amarram as vigas da marquise em projeção. O
ritmo desta colunata esbelta já anuncia a modulação estrutural que preside todo o edifício,
com intercolúnios de cinco metros.
O “cubo” de vidro possui três salões superpostos e dois mezaninos intermediários. No
projeto do concurso, Fresnedo liga estes pavimentos por quatro escadarias, sendo que duas
delas se localizam nas extremidades dos salões (como no Hipódromo de Maroñas) e outras
duas estão mais ao centro (fig.285). No projeto executivo (fig.286), ele substitui estas escadas
por rampas duplas de vãos contrapostos que se tornam os grandes protagonistas da área de
salões. Estas rampas conferem um dinamismo singular a este pavilhão, já que não ocorrem
nos outros dois. Acessando o edifício ao centro, o visitante se depara com um pé-direito duplo
entre dois mezaninos de bordo sinuoso. Diante dele acha-se a linha de colunas principais
(mais robustas que as demais) e logo após, os guichês do hall de apostas, em cujo centro há
uma passagem para a arquibancada inferior. Nas duas laterais do salão térreo encontram-se
as rampas de acesso aos pisos superiores, onde estão o restaurante e o segundo nível de
arquibancadas.
O percurso destas rampas estabelece um ritual que lembra o foyer da Ópera de Paris
(1861-75). O foyer de Garnier e o cubo de vidro de Fresnedo abrigam escadas e rampas que
estendem o percurso rumo aos assentos e propiciam diferentes pontos de vista aos
visitantes. No caso de Porto Alegre, a visualização não é apenas interna, mas também
externa: desde a esplanada que separa o pavilhão da casa de apostas, é possível ver o
movimento de pessoas nos salões, mezaninos e ao longo das rampas, num espetáculo
particularmente notável à noite, com a iluminação do edifício (fig.284). Ao mesmo tempo,
PROJETOS E OBRAS EM PORTO ALEGRE (1951-1952) Hipódromo do Cristal
154
desde o interior se descortina a vista dos visitantes que chegam, dos apostadores nos
guichês, dos automóveis no estacionamento e do estatuário do Guaíba ao fundo.
A subida das rampas conduz aos dois pisos superiores, com passagem por dois
mezaninos intermediários (fig.289 e 298). Estes pisos contrastam com os pavimentos
principais por sua divisão central através de um amplo vazio, que torna os mezaninos em
balcões debruçados sobre os salões do hall de entrada e do restaurante. Os mezaninos
também se distinguem por seus bordos de laje sinuosos que se projetam além da linha das
colunas. No terceiro piso (fig.294-5), o percurso alcança o restaurante escalonado com vista
elevada sobre a pista e, em seguida, tem seu coroamento no andar-belvedere (fig.299), onde
se contempla do alto tanto a totalidade da pista como as margens do Guaíba. Nesse ponto,
Fresnedo demarca o coroamento de sua caixa de vidro omitindo os brises metálicos da
fachada e descortinando a vista plenamente.
284
284. Vista noturna, Tribuna especial,
Hipódromo do Cristal, 1951, Porto
Alegre.
PROJETOS E OBRAS EM PORTO ALEGRE (1951-1952) Hipódromo do Cristal
155
285
286
287
288
285. Planta do térreo (anteprojeto),
Tribuna especial, Hipódromo do
Cristal, 1951, Porto Alegre.
286. Planta do térreo (projeto
executivo), Tribuna especial,
Hipódromo do Cristal, 1951, Porto
Alegre.
287. Tribuna especial, Hipódromo do
Cristal, 1951, Porto Alegre.
288. Tribuna especial, Hipódromo do
Cristal, 1951, Porto Alegre.
PROJETOS E OBRAS EM PORTO ALEGRE (1951-1952) Hipódromo do Cristal
156
289
290 291
292
293
289. Planta do segundo pavimento,
Tribuna especial, Hipódromo do
Cristal, 1951, Porto Alegre.
290-01. Tribuna especial, Hipódromo
do Cristal, 1951, Porto Alegre.
292. Tribuna especial, Hipódromo do
Cristal, 1951, Porto Alegre.
293. Tribuna especial, Hipódromo do
Cristal, 1951, Porto Alegre.
PROJETOS E OBRAS EM PORTO ALEGRE (1951-1952) Hipódromo do Cristal
157
294
295
296
297
294. Planta do terceiro pavimento
(anteprojeto), Tribuna especial,
Hipódromo do Cristal, 1951, Porto
Alegre.
295. Planta do terceiro pavimento,
Tribuna especial, Hipódromo do
Cristal, 1951, Porto Alegre.
296-7. Terceiro pavimento, Tribuna
especial, Hipódromo do Cristal,
1951, Porto Alegre.
PROJETOS E OBRAS EM PORTO ALEGRE (1951-1952) Hipódromo do Cristal
158
298
299
300
301
298. Planta do quarto pavimento,
Tribuna especial, Hipódromo do
Cristal, 1951, Porto Alegre.
299. Planta do quinto pavimento,
Tribuna especial, Hipódromo do
Cristal, 1951, Porto Alegre.
300. Quarto pavimento, Tribuna
especial, Hipódromo do Cristal,
1951, Porto Alegre.
301. Quinto pavimento, Tribuna
especial, Hipódromo do Cristal,
1951, Porto Alegre.
PROJETOS E OBRAS EM PORTO ALEGRE (1951-1952) Hipódromo do Cristal
159
302
303 304
302. Corte AA, tribuna especial,
Hipódromo do Cristal, 1951, Porto
Alegre.
303. Vista do térreo, tribuna
especial, Hipódromo do Cristal,
1951, Porto Alegre.
304. Vista da rampa, tribuna
especial, Hipódromo do Cristal,
1951, Porto Alegre.
PROJETOS E OBRAS EM PORTO ALEGRE (1951-1952) Hipódromo do Cristal
160
Tribuna Social
A tribuna social é a unidade principal do conjunto, destinada ao quadro social do
Jockey Club e seus convidados. Contudo, sua condição hierarquicamente superior não é
expressada em distinção volumétrica ou decorativa, como na arquitetura pré-moderna. A
tribuna social é similar em volume e aspecto externo às demais, sendo seu caráter singular
afirmado por uma ponte de vidro contendo duas escadas rolantes, que se projeta do edifício e
constitui um acesso especial para a chegada de automóveis. Tal como o pavilhão especial, a
tribuna social possui cinco pavimentos estruturados em térreo com hall de entrada, terceiro
andar com restaurante e quinto andar com salão de vista panorâmica. O segundo e quarto
pavimentos têm vazios sobre os salões inferiores. A modulação estrutural com intercolúnios
de cinco metros também é repetida, sendo que seu compasso regular fixa um sentido de
ordem que permite o jogo de curvaturas e obliqüidades das vedações, escadas e balcões.
O sistema de movimentação deste pavilhão é diferente do anterior, pois desaparecem
as rampas das extremidades, substituídas por quatro escadarias. Contudo, o acesso nobre
(equivale às rampas do pavilhão popular) ocorre pela ponte de vidro, onde duas escadas
rolantes ligam a recepção de planta trapezoidal ao terceiro andar, onde está o restaurante
com vista panorâmica da pista. Deste nível, é possível também acessar a arquibancada, subir
ao salão superior ou descer ao hall de apostas no térreo por escadas rolantes ou
convencionais. Os diferentes deslocamentos entre os pontos de interesse, permitindo as
pessoas ver e ser vistas, mostram a intencionalidade da composição organizada em função
de um ritual social.
PROJETOS E OBRAS EM PORTO ALEGRE (1951-1952) Hipódromo do Cristal
161
O salão do térreo também pode ser acessado diretamente, através de portas
localizadas ao centro e à direita da fachada principal. Neste nível, o salão é bem maior que o
dos demais pavilhões, pois se expande ultrapassando a linha externa. Esta expansão de
bordo sinuoso se diferencia da geometria mais regular da caixa de vidro, que neste pavilhão é
elevada do solo por pilotis, revelados nas extremidades (fig.306). O formato com duas
extremidades em projeção parece uma natural vinculação com a linha das casas de aposta: a
linha reta diante do pavilhão popular tem continuidade através de uma inflexão para dentro do
pavilhão social, seguida por uma projeção que se encaixa virtualmente na casa de apostas
em curva diante do pavilhão do paddock. Desse modo, um jogo aparentemente caprichoso
adquire uma lógica precisa: a barra de casas de apostas (que seria longa diante de quatro
pavilhões populares) respeitosamente se curva diante do pavilhão social, dando lugar a sua
entrada especial, para surgir de novo do outro lado, em formato adaptado ao contorno
singular do ringue do paddock (fig. 305).
305
305. Esquema da projeção de
acesso da tribuna social, Hipódromo
do Cristal, 1951, Porto Alegre.
PROJETOS E OBRAS EM PORTO ALEGRE (1951-1952) Hipódromo do Cristal
162
Voltando-se ao interior do pavilhão social, cabe referir algo sobre os pisos
intermediários (fig. 307 e fig. 311). No caso do quarto andar, repetem-se os mezaninos de
bordo sinuoso presentes na tribuna popular. Já no segundo andar, há um pequeno vazio de
recorte sinuoso, que não chega a configurar um andar-mezanino. Na verdade, o andar abriga
dois salões que recebem as quatro escadas do térreo. As paredes curvas separam estes
salões da cozinha do restaurante e de dois grupos de sanitários. O coroamento do pavilhão
abriga o salão principal do Jockey Club. Tal como o último andar do pavilhão popular, este
espaço é um salão-belvedere, que contempla toda a pista do lado leste e o rio Guaíba do lado
oeste. A troca das quatro rampas do pavilhão popular por duas caixas de escada no pavilhão
social amplificam este espaço apesar da largura similar (10m). As colunas secundárias são
descontinuadas por Fresnedo neste piso, fazendo com que o único elemento físico percebido
dentro do envoltório de vidro seja a fileira de robustas colunas em perspectiva.
As linhas que limitam as laterais das arquibancadas no Hipódromo são inclinadas,
formando um trapézio cuja dimensão maior fica sobre a pista. As linhas oblíquas e curvas
que rompem com a regularidade da planta, fazem parte de vários detalhes no projeto das
tribunas, como os mezaninos, as paredes dos sanitários, os corrimões das escadas, os
acabamentos dos guarda-corpos das arquibancadas e os planos de vidro laterais das
fachadas. Os revestimentos são variados, destacando o uso de pastilha rosa nas colunas,
branca nos sanitários e tons de azul e ocre na parte externa da fachada. Os pisos internos
nas tribunas são em grande parte de mosaicos e pastilhas cinza e azul claro. No forro de
gesso são embutidas as luminárias e as instalações de apoio. As esquadrias das fachadas
voltadas para a pista possuem um sistema de guilhotina e são embutidas nos peitoris,
PROJETOS E OBRAS EM PORTO ALEGRE (1951-1952) Hipódromo do Cristal
163
possibilitando a abertura total do vão. As esquadrias da fachada posterior são compostas por
planos de vidro independentes, afastados das lajes
128
através de espaçadores ligados à
estrutura metálica na qual se apóiam os guarda-corpos internos.
306 307
128
A fachada livre já havia sido encontrada na obra do Hipódromo de Maroñas, porém no Hipódromo do Cristal Fresnedo
inova através da fenestração e composição da estrutura metálica.
308
309
306. Planta do térreo, Tribuna social,
Hipódromo do Cristal, 1951, Porto
Alegre.
307. Planta do segundo pavimento,
Tribuna social, Hipódromo do Cristal,
1951, Porto Alegre.
308. Térreo, Hipódromo do Cristal,
1951, Porto Alegre.
309. Segundo pavimento,
Hipódromo do Cristal, 1951, Porto
Alegre.
PROJETOS E OBRAS EM PORTO ALEGRE (1951-1952) Hipódromo do Cristal
164
310 311
312
313
314
310. Planta do terceiro pavimento,
Tribuna social, Hipódromo do Cristal,
1951, Porto Alegre.
311. Planta do quarto pavimento,
Tribuna social, Hipódromo do Cristal,
1951, Porto Alegre.
PROJETOS E OBRAS EM PORTO ALEGRE (1951-1952) Hipódromo do Cristal
165
315
316
312-3. Terceiro pavimento, Tribuna
social, Hipódromo do Cristal, 1951,
Porto Alegre.
314. Quarto pavimento, Tribuna
social, Hipódromo do Cristal, 1951,
Porto Alegre.
317
318
315. Planta do quinto pavimento,
Tribuna social, Hipódromo do Cristal,
1951, Porto Alegre.
316-8. Quinto pavimento, Tribuna
social, Hipódromo do Cristal, 1951,
Porto Alegre.
PROJETOS E OBRAS EM PORTO ALEGRE (1951-1952) Hipódromo do Cristal
166
319
320 321
322
319. Corte AA, Tribuna social,
Hipódromo do Cristal, 1951, Porto
Alegre.
320. Vista do térreo, tribuna social,
Hipódromo do Cristal, 1951, Porto
Alegre.
321. Vista do térreo, tribuna social,
Hipódromo do Cristal, 1951, Porto
Alegre.
322. Vista do 3º pavimento, tribuna
social, Hipódromo do Cristal, 1951,
Porto Alegre.
PROJETOS E OBRAS EM PORTO ALEGRE (1951-1952) Hipódromo do Cristal
167
325 326
327 328
323
324
323-4. Vista do terceiro pavimento,
tribuna social, Hipódromo do Cristal,
1951, Porto Alegre.
325. Detalhe do vidro, tribuna social,
Hipódromo do Cristal, 1951, Porto
Alegre.
326. Detalhe do vidro e vista da
pista, salão social, tribuna social,
Hipódromo do Cristal, 1951, Porto
Alegre.
327-8. Detalhe da escada, terceiro
pavimento, tribuna social, Hipódromo
do Cristal, 1951, Porto Alegre.
PROJETOS E OBRAS EM PORTO ALEGRE (1951-1952) Hipódromo do Cristal
168
Tribuna dos profissionais (pavilhão e área do paddock)
O pavilhão do paddock (ou dos profissionais) repete a estrutura dos demais numa
escala menor. O seu propósito principal é o de abrigar os jornalistas que fazem a cobertura
dos páreos no Hipódromo (terceiro andar, fig. 334). No primeiro piso (fig. 330) há um balcão
de apostas e salas de apoio, enquanto o segundo andar possui cabines especiais e um
acesso às arquibancadas. Este pavilhão se distingue por sua posição ligeiramente oblíqua em
relação aos outros dois (de modo a acompanhar a curvatura da pista). Além disso, a malha
estrutural tem um intercolúnio de quatro metros. A diferença não é percebida justamente em
função da posição oblíqua do pavilhão. Suas dimensões menores também não permitem os
pisos intermediários com vazios, assim como forçam a simplificação da circulação vertical,
que apresenta duas escadarias nas extremidades (complementadas por um elevador).
Este pavilhão forma um conjunto com o ringue circular do paddock, que organiza ao
seu redor o edifício das baias e uma casa de apostas, além de uma área pavimentada para o
público assistir a preparação para os páreos. A organização circular do conjunto conforma
uma das extremidades da composição, que na outra ponta teria uma seqüência de pavilhões
ao longo da pista, separados por um largo das casas de apostas que lhes corresponderiam.
Como antes referido, essa seqüência é interrompida diante do pavilhão social, com a inflexão
da linha de casas de apostas que ressurgem diante do paddock em formato sinuoso.
PROJETOS E OBRAS EM PORTO ALEGRE (1951-1952) Hipódromo do Cristal
169
329 330
331
332
329. Planta do subsolo, tribuna dos
profissionais, Hipódromo do Cristal,
1951, Porto Alegre.
330. Planta do térreo, tribuna dos
profissionais, Hipódromo do Cristal,
1951, Porto Alegre.
PROJETOS E OBRAS EM PORTO ALEGRE (1951-1952) Hipódromo do Cristal
170
333 334
331. Vista das escadas, tribuna dos
profissionais, Hipódromo do Cristal,
1951, Porto Alegre.
332. Vista do térreo, tribuna dos
profissionais, Hipódromo do Cristal,
1951, Porto Alegre.
335
333. Planta do segundo pavimento,
tribuna dos profissionais, Hipódromo
do Cristal, 1951, Porto Alegre.
334. Planta do terceiro pavimento,
tribuna dos profissionais, Hipódromo
do Cristal, 1951, Porto Alegre.
335. Sala da imprensa, tribuna dos
profissionais, Hipódromo do Cristal,
1951, Porto Alegre.
PROJETOS E OBRAS EM PORTO ALEGRE (1951-1952) Hipódromo do Cristal
171
336
337 338
336. Corte AA, tribuna dos
profissionais, Hipódromo do Cristal,
1951.
337. Escada/hall, tribuna dos
profissionais, Hipódromo do Cristal,
1951.
338. Detalhe esquadria e brise,
tribuna dos profissionais, Hipódromo
do Cristal, 1951.
PROJETOS E OBRAS EM PORTO ALEGRE (1951-1952) Hipódromo do Cristal
172
ORIGINALIDADE E REFERÊNCIAS
É possível reconhecer a plasticidade e a criatividade nos detalhes da composição dos
espaços internos das edificações analisadas. As rampas conduzem aos mezaninos
intermediários desenhados com formas curvas, que ora integram os pilares, e ora os deixam
livres configurando uma altura dupla. Esse jogo espacial, característico na Arquitetura
Moderna Brasileira
129
gera diferentes percepções, de modo que em determinados lugares o
visitante consegue visualizar vários níveis ao mesmo tempo, contemplando as colunatas que
transcendem a sua função estrutural e tornam-se elementos plásticos clássicos, nos quais a
repetição proporciona ritmo e ordem ao todo.
Seja na escala do setor urbano ou do edifício, o projeto do Hipódromo acata,
manipula e enriquece um a tradição de arquitetura moderna, evidenciando sua fecundidade e a
importância do seu domínio.
130
O complexo do Cristal abarca um leque de posturas da arquitetura moderna coletados
desde os primeiros anos de Fresnedo, na faculdade, através da doutrina Beaux-Arts e do
contato com publicações internacionais, passando pelas transformações arquitetônicas no
Uruguai nos anos 40/50, até a influência da escola carioca no Brasil no mesmo período. A
manipulação destas influências é extremamente pessoal, de caráter singular, pois o edifício
129
Para um maior aprofundamento conceitual e interpretativo da arquitetura moderna brasileira, cf. COMAS, MINDLIN e
XAVIER. (ver referências bibliográficas)
130
COMAS; CANEZ; BOHER, 2004, p. 102.
PROJETOS E OBRAS EM PORTO ALEGRE (1951-1952) Hipódromo do Cristal
173
assinala seus vínculos tanto com a tradição como com a vanguarda, mas em síntese original.
Nesse sentido, o Hipódromo do Cristal revela-se como momento destacado tanto na carreira
do autor como no legado arquitetônico modernista de Porto Alegre.
As citações à arquitetura moderna são profusas e explícitas, mas sempre episódicas.
Elas acontecem nos volumes em formato de ameba dos sanitários e nas paredes, balcões e
mezaninos sinuosos que serpenteiam por entre modulações ortogonais de colunas. Fresnedo
tem em mente o pavilhão do Brasil na feira mundial de Nova Iorque (Lúcio Costa e Oscar
Niemeyer, 1939, fig.339-40), o jogo de colunas e a cortina de vidro do Ministério da Educação
e Saúde (MES, Lúcio Costa e equipe, 1937-44) e o uso das curvas no conjunto da Pampulha
(Oscar Niemeyer, 1942-43, fig.341-2).
341 342
339
340
339. Planta pavimento superior,
Pavilhão Brasileiro, 1938/39, feira
mundial em Nova Iorque.
340. Vista interior, Pavilhão
Brasileiro, 1938/39, feira mundial em
Nova Iorque.
341. Pampulha, Casa de baile,
Niemeyer, 1942-43, Belo Horizonte.
342. Pampulha, Cassino, Niemeyer,
1942-43, Belo Horizonte.
PROJETOS E OBRAS EM PORTO ALEGRE (1951-1952) Hipódromo do Cristal
174
Embora o uso da curvatura já houvesse comparecido no Hospital Americano
131
(1946),
neste caso Fresnedo presta um tributo apropriado à arquitetura moderna brasileira. Contudo,
as citações que faz se integram a um marco compositivo próprio do arquiteto. As curvas e
amebas se integram a linhas e a contornos deformados em seguimentos oblíquos (guarda-
corpos, placas salientes, marquises, fig.343-4) e a um arranjo geral presidido pela simetria
explícita. A pastilha é utilizada, mas em coloração de tons pastéis, sem composição artística e
apenas buscando identificar a individualidade dos componentes plásticos da composição.
Os pavilhões de Fresnedo constituem um feito tecnológico notável, pela combinação
do uso do concreto protendido em balanço com os tirantes de aço e as cortinas de vidro. A
manipulação madura destes aspectos é notavelmente precoce: o tema da caixa de vidro
monumental sem empenas cegas se manifesta em sincronia na Lever House (Bunshaft,
1951-52). O MES é precedente parcial, pois tem a pele de vidro entre empenas. As obras de
Mies van der Rohe nos Estados Unidos também são distintas: a casa Farnsworth (1946-51) é
um edifício térreo de pequena escala e o Crown Hall (1950-56) tem um pé-direito duplo com
forte presença de montantes na fachada. Somente com o Lake Shore Drive (1948-51) é que
Mies consolida a imagem do edifício de vidro em altura. Estes dados cronológicos
comprovam o caráter pioneiro do uso do vidro por Fresnedo no Hipódromo do Cristal em
Porto Alegre.
Os precedentes remotos talvez sejam importantes. Gropius é um dos pioneiros das
caixas de vidro, inicialmente com a Fábrica Fagus (1911-13) e mais tarde com o bloco de
ateliers da Bauhaus (Dessau, 1925). Outro precedente mais remoto é a fábrica Van Nelle
131
Ver p.121.
343
344
343. Acesso principal, Tribuna
social, Hipódromo do Cristal, 1951,
Porto Alegre.
344. Tribuna social, Hipódromo do
Cristal, 1951, Porto Alegre.
PROJETOS E OBRAS EM PORTO ALEGRE (1951-1952) Hipódromo do Cristal
175
(J.Brinkman e Van der Vlugt, 1926-30) em Rotterdam, Holanda. Este edifício tem uma
fachada de vidro de sete pavimentos delimitada por dois volumes de vidro salientes. Deste
volume partem ligações a outros pavilhões da fábrica, em forma de pontes metálicas também
envidraçadas. O paralelo com o acesso principal do pavilhão social de Fresnedo não parece
arbitrário. Além disso, o edifício apresenta uma ala curva como terminação, tal qual a última
casa de apostas do Jockey Club. Essa conjunção de referências aliada ao arrojo técnico-
construtivo e ao impacto das soluções plásticas fazem do Hipódromo do Cristal a obra-prima
da carreira de seu autor e um episódio de destaque da arquitetura moderna latino-americana.
347
348
345
346
345. Vista sobre a pista, tribuna
especial, Hipódromo do Cristal,
1951, Porto Alegre.
346. Detalhe dos tirantes de aço,
Hipódromo do Cristal, 1951, Porto
Alegre.
347. Hipódromo do Cristal, 1951,
Porto Alegre.
348. Hipódromo do Cristal, 1951,
Porto Alegre.
PROJETOS E OBRAS EM PORTO ALEGRE (1951-1952) Esplanada
176
3.3 Edifício Esplanada – 1952
A arquitetura de Fresnedo Siri em Porto Alegre é marcada por valores modernos que
transcendem aqueles utilizados em suas obras iniciais no Uruguai. É no Brasil que a
arquitetura de Fresnedo sofre influências significativas que se manifestam diretamente em
sua linguagem e em seu estilo arquitetônico. Após o projeto para o Hipódromo do Cristal, em
1951, o novo desafio estava na construção de um edifício residencial, no coração da cidade.
Trata-se do edifício Esplanada, construído em 1952, que se tornou outro ícone da arquitetura
moderna de Porto Alegre.
O novo empreendimento foi realizado pela Sociedade Imobiliária Iochpe Ltda, com a
administração e construção da empresa de engenharia Azevedo Moura & Gertum
132
. O
projeto original, protocolado na prefeitura em 1952, é de Fresnedo Siri, arquiteto contratado
pela construtora. O projeto executivo foi desenvolvido, posteriormente, por Guido Trein,
técnico de edificações da construtora. A obra foi realizada por etapas, sendo que o primeiro
bloco foi iniciado em 1952 e o último bloco, em 1962.
Um anúncio no jornal Correio do Povo
133
listava uma série de vantagens que o edifício
Esplanada proporcionaria: apartamentos de frente, quatro grandes salões de festas no
terraço, quatro grandes e luxuosas entradas independentes, magnífico jardim no centro do
conjunto, completo parque infantil coletivo, dois quartos de banho independentes, água
132
ABREU, 2004, p.83.
133
Correio do Povo, Porto Alegre, 22 jun. 1952, p.11.
Correio do Povo, Porto Alegre, 26 jun. 1952, p.07.
349
349. Edifício Esplanada, 1952, Porto
Alegre.
PROJETOS E OBRAS EM PORTO ALEGRE (1951-1952) Esplanada
177
quente e fria permanente, força própria em todos os elevadores, calefação em todos os
aposentos, isolamento acústico, sol em abundância em todos os apartamentos, completo
panorama da cidade alcançando ilhas, morros e rios, garagem no subsolo, incinerador de lixo
e acabamento finíssimo
134
.
O terreno localiza-se entre as Ruas André Puente e Ramiro Barcelos e a Avenida
Independência, em frente à Praça Júlio de Castilhos, no bairro Moinhos de Vento. A área de
implantação do novo empreendimento configura uma zona de classe média e média alta, o
que é corroborado pela presença de antigos casarões ecléticos, da infra-estrutura do bairro e
do entorno urbano. Por estar encravado em uma esquina elevada num ponto nodal
importante da cidade, o Esplanada torna-se um marco visual e ponto de referência para a
cidade (fig.350-1).
A forma do lote caracteriza-se pelo desenho geométrico trapezoidal, configurado pelas
inclinações das ruas e da avenida. As dimensões são 22,32m face à Rua André Puente,
89,87m face Ramiro Barcelos, 37,19m face à Av. Independência e 83,74m na divisa, com um
desnível de 2m no sentido longitudinal, da Av. Independência até a Rua André Puente. A
área aproximada do terreno é de 2.500m2.
A partir das informações coletadas nesta investigação e das bibliografias existentes
sobre o edifício Esplanada, não é possível afirmar a existência de um concurso para este
projeto. Verifica-se, no entanto, a possibilidade dos Irmãos Iochpe terem solicitado um estudo
de projeto para o local, antes de firmarem contrato com a Azevedo Moura e Gertum e seu
arquiteto Fresnedo Siri. Esta alternativa é cogitada pela existência de um anteprojeto de
134
ABREU, 2004, p. 85.
350
351
350. Localização, Edifício
Esplanada, 1952, Porto Alegre.
351. Localização, Edifício
Esplanada, 1952, Porto Alegre.
Planta encaminhada na construção
do Bloco D.
PROJETOS E OBRAS EM PORTO ALEGRE (1951-1952) Esplanada
178
1951, dos arquitetos Fernando Corona e Luis Fernando Corona para o mesmo edifício
135
, que
possivelmente foi apresentado aos Irmãos Iochpe antes da contratação da Azevedo Moura e
Gertum.
Segundo Szekut, “o partido adotado - no anteprojeto dos Corona - implanta uma barra
com planta retangular alongada no sentido longitudinal do terreno e afastada das divisas; e
um bloco menor e perpendicular a barra, junto à divisa oeste e voltado para a Rua André
Puente. O pavimento térreo, concebido como uma imensa plataforma está na mesma cota de
nível da Avenida Independência, ficando mais alto que o passeio na medida em que se desce
a Ramiro Barcelos em direção a Rua André Puente. Outros dois acessos à plataforma
ocorrem ao longo da Rua Ramiro Barcellos através de escadas localizadas em frente aos
vestíbulos de acesso à circulação vertical dos apartamentos. Esta plataforma é ocupada pelo
pilotis do edifício com colunas de dupla altura e por um programa variado [...].O pavimento
tipo da barra é formado por cinco apartamentos de dois, três e quatro dormitórios. O jardim –
sacada – diante do jantar em alguns apartamentos revela a existência de dois pavimentos
tipo. O corpo do edifício é formado pela interpolação destes dois pavimentos tipo e animado
pela variação na posição do jardim [...]”
136
.
135
SZEKUT, Alessandra Rambo. “Vertentes da modernidade no Rio Grande do Sul: a obra de Luis Fernando Corona”.
Dissertação de mestrado, PROPAR/UFRGS, 2008.
136
Idem.
PROJETOS E OBRAS EM PORTO ALEGRE (1951-1952) Esplanada
179
352
353
352. Edifício Residencial Irmãos
Iochpe. Planta do pavimento térreo.
Fernando Corona e Luis Fernando
Corona, anteprojeto 1951.
353. Edifício Residencial Irmãos
Iochpe. Planta do pavimento tipo.
Fernando Corona e Luis Fernando
Corona, anteprojeto 1951.
PROJETOS E OBRAS EM PORTO ALEGRE (1951-1952) Esplanada
180
354
A proposta dos Corona apresenta o edifício sobre pilotis implantado em uma
plataforma representada pela praça em desnível separada do passeio. O volume da barra
com a fachada cega para a Avenida Independência ignora o tecido urbano imediato,
enquanto o volume adotado à Rua Ramiro Barcelos se integra melhor ao quarteirão. Tal
opção adotada na solução do conjunto não integra o passeio público ao edifício, negando a
relação afirmada na proposta de Fresnedo Siri quando opta por uma esplanada pública
aberta para a colunata do térreo que abriga a parte comercial e as portarias.
A implantação do anteprojeto de Fresnedo Siri acontece de forma tradicional, no
alinhamento do terreno, em forma de “U”, o que gera um pátio interno e não conforma
354. Edifício Residencial Irmãos
Iochpe. Planta do pavimento tipo 2.
Fernando Corona e Luis Fernando
Corona, anteprojeto 1951.
PROJETOS E OBRAS EM PORTO ALEGRE (1951-1952) Esplanada
181
fachadas cegas. Propondo esta situação, o arquiteto integra o edifício com o tecido urbano da
cidade, ponto criticado no projeto dos Corona.
A imagem formal adotada na composição do Esplanada remeteria a um esquema de
implantação modernista. No entanto, ao investigar as estratégias de implantação deste
edifício, nos deparamos a opção por uma implantação tradicional. Ao recordar a proposta de
Le Corbusier
137
(1947) para a Unidade de Habitação de Marselha
138
e o Parque Guinle (1948)
de Lúcio Costa
139
(fig.355), no Rio de Janeiro, percebe-se uma inserção urbana distinta em
relação ao Esplanda. O edifício moderno sugere a implantação isolada em super-quadras ou
jardins amplos, conformados por grandes praças, largos e áreas verdes (fig.356). A
percepção do volume, para o observador, configura um bloco isolado envolvido por massas
arborizadas. Todavia, o que se observa no edifício Esplanada é justamente o contrário. A
implantação é configurada por um quarteirão tradicional, ao qual se implanta uma fachada
moderna. Coube ao arquiteto criar recursos para explorar a arquitetura moderna nesse
contexto de implantação tradicional. Características semelhantes são reconhecidas na
arquitetura dos Irmãos Roberto
140
(fig.357-8), no Rio de Janeiro, que trabalhavam a questão
do alinhamento, gabarito, divisas, relações com a rua e com o pedestre de forma peculiar e
com resultados positivos, na interação entre linguagem moderna e cidade tradicional em seus
projetos, destacando-se os edifício da ABI e do IRB.
137
Sobre conceitos urbanísticos modernos preconizados por Le Corbusier, cf. LE CORBUSIER, 2004.
138
Associa-se a imagem do Esplanada à Unidade de habitação de Marselha, pelo porte, imagem de gigantesca barra, grelha
de fachada e pilares colossais. Cf. ABREU, 2004.
139
Cf. COSTA, Lúcio. Registro de uma vivência. São Paulo, Empresa das artes, 1995.
140
Cf. CALOVI, 2007.
355
356
355. Croqui Parque Guinle, Lúcio
Costa, 1948, Rio de Janeiro.
356. Implantação modernista, Lúcio
Costa, 1956, Brasília.
PROJETOS E OBRAS EM PORTO ALEGRE (1951-1952) Esplanada
182
357
358
357. Edifício ABI, Irmãos Roberto,
1936, Rio de Janeiro.
358. Edifício IRB, Irmãos Roberto,
1936, Rio de Janeiro.
PROJETOS E OBRAS EM PORTO ALEGRE (1951-1952) Esplanada
183
A composição é organizada em quatro blocos independentes (fig. 359), construídos por
etapas, iniciando pelos blocos A, de número 475, à Rua André Puente e B, de número 1081,
à Rua Ramiro Barcelos, posteriormente o bloco C, número 1107 à Ramiro Barcelos e,
finalizando com o bloco D, número 1206, à avenida Independência. Apesar desta execução
em partes, percebe-se uma composição unitária. A área construída é de aproximadamente 20
mil metros quadrados, com 126 apartamentos, distribuídos em 15 andares, subsolo e
cobertura. Os quatro blocos que definem a barra do edifício possuem ligação entre si apenas
pelo subsolo e pela cobertura. A área do pavimento é de aproximadamente 1500 m².
359
359. Divisão dos blocos, Edifício
Esplanada, 1952, Porto Alegre.
PROJETOS E OBRAS EM PORTO ALEGRE (1951-1952) Esplanada
184
O subsolo tem acesso pela Rua André Puente, aproveitando o desnível do terreno, e
está ocupado pelas vagas de estacionamento e, em parte, pela infra-estrutura e apoio do
edifício. As vagas não chegam a suprir as necessidades de um box por apartamento, e há
uma certa ausência de melhores condições de iluminação e ventilação
141
.
O térreo (fig. 361) é composto pelos acessos aos apartamentos, que acontecem de
forma independente através das portarias, lojas e bares, com seus respectivos sanitários e
áreas de apoio. A opção por uso comercial na base se refere à característica de um “térreo
diferenciado pela sua condição de logradouro público e de acessibilidade. O programa
comercial tem maior apelo do que espaços de uso comum residencial, com base na
densificação provocada, na animação local e no entorno do empreendimento”
142
.
O bloco A conta com uma loja e o acesso ao subsolo. Nesta loja há um entrepiso
devido ao declive de 2m do terreno, que gera essa possibilidade de aproveitamento duplo do
espaço interno. O bloco B possui duas lojas e os blocos C e D têm uma loja cada. A esquina
com a Avenida Independência abriga uma loja de maior área, unindo os dois blocos. Os
acessos aos apartamentos estão dispostos entre as lojas de cada bloco. A recepção de cada
bloco abriga dois elevadores (um social e um de serviço), escada, depósitos e sanitários de
apoio. O uso de elevadores é uma novidade para a época. O tratamento interno é
diversificado com piso em mosaico, detalhes em mármore, revestimentos, portas e detalhes
em madeira nobre.
141
BERNARDES, 2003, p. 90.
142
Idem, p.101-102.
PROJETOS E OBRAS EM PORTO ALEGRE (1951-1952) Esplanada
185
Em relação ao anteprojeto (fig.360), percebem-se algumas alterações propostas pelo
arquiteto, sendo a mais notória a inclinação nos acessos das portarias, recuando-as em
relação às lojas, e a modulação estrutural. No anteprojeto os pilares possuem intercolúnios de
3,50m formando três linhas de pilares no interior do edifício e uma linha que forma a colunata
externa. No projeto executivo, a estrutura é formada por pilares com intercolúnios de 3,70m à
Rua Ramiro Barcelos, 3,50m à Rua André Puente e 3,85m à Avenida Independência (ver
fig.365, linhas na cor azul). Essas medidas formam a grelha na fachada externa. A malha
horizontal (ver fig.365, linhas na cor vermelha), é composta por três linhas de pilares, com
intercolúnios de 5,35m (entre a colunata externa e a interna) e 6,85m (entre as duas linhas de
pilares internas).
Os pavimentos subseqüentes ao térreo se organizam em duas variantes. As mudanças
nas plantas ocorrem apenas nos blocos B e D, que intercalam pavimentos com disposições
distintas. Os núcleos de serviço posteriores permanecem iguais, mas surge um apartamento
adicional com o núcleo de serviço voltado para a frente. Isso ocasiona a diminuição de área
nos apartamentos vizinhos (fig.369). Nos blocos A e C, as plantas são iguais em todos os
pisos. (fig.368). Os apartamentos em geral possuem amplos espaços de estar e de quartos,
todos com sacadas voltadas para as ruas.
PROJETOS E OBRAS EM PORTO ALEGRE (1951-1952) Esplanada
186
360
361
362
363
360. Planta do térreo, anteprojeto,
Edifício Esplanada, 1952, Porto
Alegre.
361. Planta do térreo, projeto
executivo, Edifício Esplanada, 1952,
Porto Alegre.
362-3. Bloco B, Portaria, Edifício
Esplanda, 1952, Porto Alegre.
PROJETOS E OBRAS EM PORTO ALEGRE (1951-1952) Esplanada
187
365
366 367
364
364. Bloco C, lojas, Edifício
Esplanda, 1952, Porto Alegre.
365. Esquema estrutural, Edifício
Esplanda, 1952, Porto Alegre.
366. Subsolo, Edifício Esplanda,
1952, Porto Alegre.
367. Subsolo, Edifício Esplanda,
1952, Porto Alegre.
PROJETOS E OBRAS EM PORTO ALEGRE (1951-1952) Esplanada
188
368
369
370
371
368. Planta do pavimento tipo,
Edifício Esplanda, 1952, Porto
Alegre.
369. Planta do pavimento tipo (com
variação), Edifício Esplanada, 1952,
Porto Alegre.
370-1. Apartamento Bloco B (andar
com variação), Edifício Esplanada,
1952, Porto Alegre.
1- Hall 4- A. serviço 7- Vestíbulo
2- Estar/Jantar 5- Dormitório 9- Estar íntimo
3- Cozinha 6- Banheiro 10- Elevador
12- Balcão
1- Hall 4- A. serviço 7- Vestíbulo
2- Estar/Jantar 5- Dormitório 9- Estar íntimo
3- Cozinha 6- Banheiro 10- Elevador
12- Balcão
PROJETOS E OBRAS EM PORTO ALEGRE (1951-1952) Esplanada
189
Os acabamentos originais dos apartamentos têm piso em madeira, variando a
composição dos tacos, assim como a cerâmica nas paredes dos banheiros, na cozinha e nas
áreas de serviço. Também há mosaicos com pastilhas em cores variadas nas circulações e
vestíbulos. As esquadrias em madeira possuem fechamento com persianas. As cores dos
revestimentos das áreas comuns diferem em cada bloco. No Bloco B, por exemplo, são
utilizados tons de cerâmica azul, preto e branco. Já no Bloco A, as cores são amarelo, preto e
branco.
374 375
Todos os blocos têm acesso individualizado, sendo que essa compartimentação facilita
o movimento dos moradores, gerando certa privacidade e independência entre os quatro
blocos. A questão do acesso individual é um condicionante de projeto, uma vez que as partes
foram construídas em tempos diferentes.
372
373
372-3. Apartamento Bloco B (andar
com variação), Edifício Esplanada,
1952, Porto Alegre.
374. Bloco B, circulação, Edifício
Esplanada, 1952, Porto Alegre.
PROJETOS E OBRAS EM PORTO ALEGRE (1951-1952) Esplanada
190
Percebe-se que os apartamentos do bloco A possuem algumas variações internas
quanto à distribuição dos ambientes devido à necessidade de acomodar dois apartamentos
nesta esquina de menor dimensão. Segundo Abreu: “os apartamentos de frente para Rua
André Puente (bloco A), apresentam uma planta com problemas distributivos, principalmente
de circulação e fluxos, por ser bastante compacto. Devido a esse fator, vários apartamentos
foram modificados, agregando um dormitório à sala, ou invertendo uma sala com um
dormitório”
143
. Já o outro apartamento do mesmo bloco, tem o acesso mais centralizado,
gerando melhor circulação na entrada e mantendo a circulação privada no acesso aos
dormitórios.
Nos Blocos B e C todos os apartamentos possuem frente para a Rua Ramiro Barcelos,
o que favorece a distribuição dos ambientes. O Bloco D configura a esquina de maior
dimensão e não sofre dificuldades de acomodação interna. Em todos os apartamentos busca-
se a concentração das áreas de serviço e dos banhos na face posterior, formando núcleos
geralmente voltados para o pátio interno, com insolação mais intensa à tarde. A ventilação
cruzada ocorre em todos os apartamentos. Por necessidades funcionais, apenas alguns
dormitórios se voltam para a face voltada para o pátio.
O último pavimento abriga a cobertura (fig.376), definida por salões de festas
independentes, dispostos sobre os blocos B, C e D. A planta de cobertura
144
fornece alguns
dados através dos quais é possível compreender a organização dos salões e das demais
áreas de apoio. O salão de festas do Bloco B permanece com mobiliário e piso em madeira,
143
ABREU, 2004, p. 86.
144
BERNARDES, 2003, p.96.
375. Bloco A, circulação, Edifício
Esplanada, 1952, Porto Alegre.
PROJETOS E OBRAS EM PORTO ALEGRE (1951-1952) Esplanada
191
originais. As aberturas são voltadas para os terraços que recebem a cobertura de um
pergolado em concreto. Aqui, a paisagem de Porto Alegre pode ser apreciada em meio às
colunatas revestidas com pastilha verde esmeralda, dispostas com ritmo e ordem ao longo do
terraço, remontando a perspectiva da base do edifício.
376
O edifício pode ser analisado a partir da idéia clássica em um esquema de base, corpo
e coroamento. A base está representada pelo térreo composto por uma seqüência de pilares
de 50x105cm, proporcionais ao tamanho da base, variando em altura conforme desnível da
rua. As colunas são rigorosamente moduladas e seguem o ritmo da malha do pavimento tipo,
que por sua vez determina a grelha na fachada (conforme planta de esquema estrutural
1- Hall
2- Área externa
3- Salão de festas
4- Lavanderia
5- Cozinha
377
378
376. Planta de cobertura, Edifício
Esplanada, 1952, Porto Alegre.
377. Salão de festas Bloco B,
Edifício Esplanada, 1952, Porto
Alegre.
378. Cobertura, Edifício Esplanada,
1952, Porto Alegre.
PROJETOS E OBRAS EM PORTO ALEGRE (1951-1952) Esplanada
192
fig.365). As colunas são revestidas em pastilhas na cor verde esmeralda, que contrastam com
o branco das esquadrias e com o ladrilho avermelhado da grande esplanada que se forma no
passeio. O passeio largo surge devido aos recuos obrigatórios de quatro metros alinhados à
calçada na Rua Ramiro Barcelos e na Av. Independência. Já na Rua André Puente, onde
acontece o acesso ao subsolo, não há recuo viário. Dessa forma, o individuo percebe uma
grande esplanada ao caminhar nessas duas vias, cuja urbanidade é ressaltada pela colunata
com fachadas comerciais e portarias em plano recuado, sugerindo permeabilidade. Os planos
de vidro que encerram as lojas são recuados 50 cm em relação aos pilares e a caixilharia vai
até o forro, dispensando vergas e deixando o ambiente permeável entre o passeio e o interior
das lojas. Nas esquinas a composição das pilastras é diferente, pois é preciso uma adaptação
e transição. Desta forma, o recurso utilizado é a coluna em “L”.
Os pilares das duas esquinas respondem respectivamente aos seus alinhamentos,
formando uma intrigante cantoneira côncava à maneira de algumas soluções de canto da
arquitetura renascentistas, mais especialmente de Bramante.
145
De fato, trata-se de um recurso utilizado em esquinas colunares de claustros
renascentistas, só que em versão extrovertida, pois as linhas de colunas do edifício
Esplanada não se fecham sobre um pátio, mas revestem fachadas abertas à rua.
A colunata térrea do edifício Esplanada combina a solenidade do ritmo e escala
clássicos com a informalidade permeável dos comércios e acessos. É interessante notar que
Fresnedo distingue as frentes comerciais dos acessos pela introdução de planos oblíquos que
145
ABREU, 2004, p. 90.
379
380
379. Edifício Esplanada, 1952, Porto
Alegre.
380. Edifício Esplanada, 1952, Porto
Alegre.
PROJETOS E OBRAS EM PORTO ALEGRE (1951-1952) Esplanada
193
acentuam o recesso, interrompem a linha de fachada e diversificam as ambiências
acomodadas por trás da série de colunas
383 384
O acabamento na parte superior das colunas no térreo é dado por um plano horizontal
de transição entre esta base e o corpo do volume, solução que Le Corbusier utilizou no
Pavilhão Suíço da Universidade de Paris (1930-32)
146
.
O corpo do edifício, visto pelas fachadas principais de frente para a Av. Independência,
Rua Ramiro Barcelos e André Puente, é definido por um volume regular sobre pilotis,
146
BERNARDES, 2003, p.96.
381
382
381-2. Vista Ramiro Barcelos,
Edifício Esplanada, 1952, Porto
Alegre.
383-4. Vista Avenida Independência,
Edifício Esplanada, 1952, Porto
Alegre.
PROJETOS E OBRAS EM PORTO ALEGRE (1951-1952) Esplanada
194
remetendo a um dos pontos preconizados por Le Corbusier. A vista posterior, por outro lado,
é um rebatimento funcional do programa interno do edifício, com janelas irregulares e
volumes interrompidos, sem uma fenestração mais elaborada. Isso se deve à expectativa do
completamento do quarteirão que hoje oculta a vista pública do interior.
385
386
385. Edifício Esplanada, 1952, Porto
Alegre.
386. Vista posterior, Edifício
Esplanada, 1952, Porto Alegre.
PROJETOS E OBRAS EM PORTO ALEGRE (1951-1952) Esplanada
195
O prisma retangular sobre as colunas é um volume unitário, no qual a subdivisão em
quatro blocos não é aparente. A divisão dos blocos aparece apenas através das juntas de
dilatação, quase imperceptíveis em meio à grande extensão do edifício. O prisma se divide
em 15 pavimentos destinados aos apartamentos. Na fachada da Avenida Independência,
sobre este volume é sobreposta uma grelha com seis alvéolos, que definem os balcões dos
dormitórios e salas internas (fig.388). Da mesma forma, existem 17 alvéolos na fachada à
Rua Ramiro Barcelos, e um à Rua André Puente. A grelha torna-se um elemento plástico que
proporciona um jogo de luz e sombra à composição, ordenado pelos limites da moldura
regular. A trama avança 1,80m em relação à esquadria interna dos ambientes, formando uma
máscara de sacadas protegida com um guarda corpo metálico telado na cor branca. A altura
de cada módulo da grelha é análoga ao pé-direito de 2,80m e não varia entre as três
fachadas. A modulação horizontal da grelha varia de 3,50m a 3,85m, conforme o compasso
estrutural. O volume-base é revestido com pastilhas brancas e as grelhas com pastilhas verde
esmeralda, como nos pilares do térreo.
O tratamento plástico das fachadas é dotado de elegante sutileza. Os enormes planos
das elevações de um edifício tão extenso e elevado poderiam facilmente tornar-se massivos e
desproporcionais. Fresnedo opera uma cuidadosa subdivisão modular que mantém a
unidade, mas introduz as escalas menores. As grelhas acomodam sacadas mais profundas
do que sua leve projeção, criando um jogo complexo de luz e sombra, reentrâncias e
saliências. Ao mesmo tempo, a grelha é inserida numa moldura, que nas laterais contém os
únicos planos murais das fachadas. Esse fator dissimula a massividade das elevações
387
388
387-8. Edifício Esplanada, 1952,
Porto Alegre.
PROJETOS E OBRAS EM PORTO ALEGRE (1951-1952) Esplanada
196
públicas. O plano mural das laterais ainda é decomposto em duas faixas: uma empena cega
e outra com aberturas (janela e sacada, fig.390), criando um terceiro plano de fachada.
Na cobertura, as empenas cegas de esquina seguem até a viga de bordo do terraço,
enquanto o restante apresenta uma fileira de colunas sob o pergolado, correspondentes às do
térreo, contudo mais esbeltas, alinhadas ao plano mais recuado da fachada. Acima do
pergolado, aparecem as projeções dos núcleos de circulação em forma de ameba, numa
citação à arquitetura moderna brasileira. Esses volumes abrigam as casas de máquinas dos
elevadores e os reservatórios.
O resultado final é uma composição de escala monumental, mas delicada e harmônica
em sua inserção urbana. Seu tratamento plástico combina o rigor da métrica clássica com a
sutileza do jogo espacial através da manipulação de planos levemente defasados e do jogo
de cheios e vazios.
389 390 391
392
393
394
389-90. Edifício Esplanada, 1952,
Porto Alegre.
391-4. Cobertura, Edifício
Esplanada, 1952, Porto Alegre.
PROJETOS E OBRAS EM PORTO ALEGRE (1951-1952) Esplanada
197
395 396
397
398
395. Fachada, Av. Independência,
Edifício Esplanada, 1952, Porto
Alegre.
396. Setor de fachada, Rua Ramiro
Barcelos, Edifício Esplanada, 1952,
Porto Alegre.
397-8. Grelha, Edifício Esplanada,
1952, Porto Alegre.
PROJETOS E OBRAS NAS AMÉRICAS (1956-1971) Vila do Cerro
198
CAPÍTULO 4
4. PROJETOS E OBRAS NAS AMÉRICAS (1956-1971)
Este capítulo trata da última fase da carreira de Fresnedo Siri, que corresponde à
internacionalização de sua arquitetura. Embora ele siga atuando no Uruguai através de obras
como a Vila do Cerro (1956) e o edifício para a Comissão Honorária da Luta Atituberculose
(1959), surgem obras importantes no Brasil, o Hospital da Mooca (1957) e a OPS de Brasília
(1971) e nos Estados Unidos, a OPS de Washington (1961), que ampliam seu campo de
atuação e renome no exterior.
4.2 Urbanização da Vila do Cerro – 1956
Na década de 50, com o fim da Segunda Guerra Mundial, algumas cidades sul-
americanas tiveram um crescimento acentuado da população, em grande parte devido à
migração do campo para a cidade, o que acarretou uma série de problemas de ordem social
e econômica. Este momento está diretamente relacionado ao desenvolvimento de obras
ligadas à habitação de interesse social através de propostas para o problema da moradia por
parte de diversos órgãos empenhados na solução desta problemática que abalava muitas
cidades.
A economia do Uruguai, assim como da Argentina (especialmente Buenos Aires)
alcançou o auge na década de 30 e 40, com as grandes exportações de carne e lã para os
PROJETOS E OBRAS NAS AMÉRICAS (1956-1971) Vila do Cerro
199
Estados Unidos e para a Europa. Porém, no fim dos anos 40 e na década de 50, verificou-se
uma queda nessas exportações, afetando a economia. Dessa forma, para gerar e
proporcionar o giro de capital, a estratégia foi utilizá-lo na construção de edifícios. Muitos
estancieiros, até mesmo frigoríficos e bancos, se uniram para aplicar capitais na indústria da
construção. Essa evidência explica a existência de um número significativo de obras,
principalmente edifícios, nos anos 50
147
.
As obras públicas deste mesmo período, por sua vez, eram financiadas pelo Estado.
No entanto, as dificuldades econômicas do pós-guerra trouxeram problemas para a execução
e o término de projetos, deixando muitas obras inacabadas ou apenas registradas em papel.
Neste contexto, a prefeitura de Montevidéu engajou-se como órgão incentivador das
obras de habitação coletiva e de novos planos urbanísticos para implantação desses
edifícios. Em 1956, o Departamento de Planejamento do Conselho Departamental, sob a
direção de Júlio Abella Trias, contratava Fresnedo Siri para a execução do plano da Vila do
Cerro (blocos de habitação coletiva). Era, em suma, uma tentativa de reestruturação urbana.
Sua materialização ficou restrita somente à construção de uma unidade, inacabada pela falta
de recursos.
Em relação aos projetos urbanísticos, existem registros na obra de Fresnedo anteriores
a sua atuação na prefeitura, como a urbanização do Rincón del Bonete (1938, fig.399-402),
do Arroio Seco (1943, fig.403-04) e das termas do Arapey (1956, fig.405-06)
148
. O projeto do
147
BORONAT, Yolanda. Fresnedo Siri. Montevidéu, 07 de fevereiro de 2008. Entrevista concedida a Jamile M. da Silva.
148
As informações sobre esses planos urbanísticos são escassas. O que consta nessa dissertação foi cedido pelo Instituto de
Teoria e História de Arquitetura da Faculdade, por intermédio de Cecília Ortiz, professora da Faculdade de Arquitetura.
399
400
399. Área da urbanização Rincón del
Bonete,1938, Uruguai.
400. Aproximação da área da
urbanização Rincón del Bonete,
1938, Uruguai.
PROJETOS E OBRAS NAS AMÉRICAS (1956-1971) Vila do Cerro
200
Rincón del Bonete, de 1938, se resume a um pequeno núcleo de habitações e serviços,
implantado em uma zona limitada pelo rio, com uma grande estrutura de ponte ferroviária e
uma área industrial de plano de fundo. O plano do Arroio Seco, 1943/1944, relacionado ao
Palácio da Luz
149
envolve um novo complexo que deve se integrar tanto com a parte
industrial, próxima ao rio, quanto com o tecido existente da cidade. As termas do Arapey,
1956, posterior a Vila do Cerro, se refere à proposta de desenvolvimento turístico nas bordas
do rio Arapey, com um conjunto com hotéis, camping, residências, chácaras, cassino, centro
de espetáculos, áreas esportivas, serviços de saúde e parques. Neste caso, a implantação
dos edifícios ocorre de forma isolada, envoltos por parques, em que é possível reconhecer as
práticas do urbanismo moderno.
403 404
149
Ver p. 102.
401
402
401. Croqui da urbanização Rincón
del Bonete, 1938, Uruguai.
402. Croqui da urbanização Rincón
del Bonete, 1938, Uruguai.
403. Plano da urbanização do Arroio
Seco, 1943/1944, Montevidéu.
404. Croqui da urbanização do
Arroio Seco, 1943/1944, Montevidéu.
PROJETOS E OBRAS NAS AMÉRICAS (1956-1971) Vila do Cerro
201
405
406
405. Projeto implantação, Termas do
Arapey, 1956, Uruguai.
406. Projeto implantação, Termas do
Arapey, 1956, Uruguai.
PROJETOS E OBRAS NAS AMÉRICAS (1956-1971) Vila do Cerro
202
O plano mais desenvolvido dentre os projetos apresentados é a proposta para a Vila
do Cerro. O projeto urbanístico data de 1956 e foi parcialmente concretizado. Localiza-se na
costa da rambla do Rio da Prata (fig.407). O complexo reúne programas habitacionais
divididos em Cerro Norte e Cerro Sul e parte da área é destinada a um parque nomeado
Carlos Vaz Ferreira.
407
407. Localização Vila do Cerro,
Montevidéu.
PROJETOS E OBRAS NAS AMÉRICAS (1956-1971) Vila do Cerro
203
Cerro Norte
408
O Cerro Norte está limitado pelas Ruas Santín Carlos Rossi, Camino la Paloma,
Camino de las Tropas e Haiti (fig.408). Infelizmente, nada deste projeto foi executado. As
unidades habitacionais são blocos isolados colocados ortogonalmente dentro dos limites de
408. Localização do Cerro Norte,
Vila do Cerro, 1956, Montevidéu.
PROJETOS E OBRAS NAS AMÉRICAS (1956-1971) Vila do Cerro
204
cada quarteirão (fig.409). A implantação é ordenada por um eixo central que define uma rua
interna no conjunto, para a qual se direcionam as edificações localizadas no centro da planta.
Esta espinha central possui ramificações, as vias secundárias, que delimitam os quarteirões.
Dessa maneira, a via central é o único meio de ligação com as demais ruas do bairro, uma
vez que as outras formam ruas sem saída, apenas para acesso aos edifícios, configurando
culs-de-sac. Nos quarteirões, as habitações estão dispostas perpendicularmente aos blocos
do centro. Na parte periférica, os prédios variam nas dimensões e seguem o alinhamento do
terreno, acompanhando o desenho curvo das bordas.
409
409. Implantação, Cerro Norte, Vila
do Cerro, 1956, Montevidéu.
PROJETOS E OBRAS NAS AMÉRICAS (1956-1971) Vila do Cerro
205
A topografia do terreno apresenta diversos níveis, que sobem em direção a Rua
Camino de las Tropas. Na parte mais baixa do terreno estão localizadas as unidades
coletivas de quatro pavimentos e, na parte mais alta, as residências unifamiliares, os serviços
de apoio, os núcleos de cultura, esporte e lazer
150
.
A unidade completa é formada pelo agrupamento dos módulos de unidades básicas:
dormitório, banho, cozinha e estar. As unidades completas têm aproximadamente 12x4
metros, variando de um até quatro pavimentos. A partir da unidade básica são feitos
desdobramentos para dois e três dormitórios, sendo que além de variar o número de
dormitórios é possível adequar à melhor insolação. Esse sistema de modulação adotado
permite uma otimização dos elementos e uma construção rápida, econômica e simples. As
lajes são de vigotas de cerâmicas, que podem ser pré-fabricadas. O arquiteto se preocupa
com o sistema construtivo buscando soluções simples, elementares e funcionais, aplicando
materiais econômicos. Como não há registro de execução deste complexo, nem fachadas,
cortes ou perspectivas do arquiteto, não é possível verificar a volumetria e a formalização da
proposta.
150
BORONAT; RISSO, p. 54.
PROJETOS E OBRAS NAS AMÉRICAS (1956-1971) Vila do Cerro
206
410
411
410. Módulos básicos, Cerro Norte,
Vila do Cerro, 1956, Montevidéu.
411. Unidades completas (variações
de dois dormitórios), Cerro Norte,
Vila do Cerro, 1956, Montevidéu.
Módulos
básicos:
1-Dormitório
2- Banheiro
3- Cozinha
4- Estar
PROJETOS E OBRAS NAS AMÉRICAS (1956-1971) Vila do Cerro
207
412
413
412. Unidades completas (variações
de dois dormitórios), Cerro Norte,
Vila do Cerro, Montevidéu, 1956.
413. Unidades completas (variações
de três dormitórios), Cerro Norte,
Vila do Cerro, Montevidéu, 1956.
PROJETOS E OBRAS NAS AMÉRICAS (1956-1971) Vila do Cerro
208
Cerro Sul
A área destinada ao Cerro Sul apresenta uma implantação distinta do Cerro Norte. O
projeto conta com seis blocos de habitação, dos quais um foi construído, mais um teatro de
Verão, um centro infantil e áreas de jardins. A implantação não demonstra uma ordem
definida, sendo o conjunto formado por seis blocos, análogos em dimensões, lançados de
forma livre no terreno. Percebem-se relações com os conceitos de implantação modernista,
como na obra de Le Corbusier, que demonstram estratégias de implantação de blocos
isolados, bem como a importância do térreo liberado, para permeabilidade visual, facilidade
de acessos e circulações livres (fig.414-5). Exemplos disso são o Pavilhão Suíço, de 1930 e
as Unidades de Habitação, sendo a primeira de 1947.
Recorda-se ainda, a Carta de Atenas, de 1933, que prega a “cidade funcional”, na
qual se propõe a separação das funções de habitação, lazer e trabalho. Além disso, a Carta
estabelece o conceito de cidade no parque, no qual os edifícios localizam-se em meio a áreas
verdes de pouca densidade. Após a Segunda Guerra Mundial, esses preceitos influenciaram
as propostas de reconstrução urbana na Europa e alcançaram a América Latina.
O Cerro Sul localiza-se entre o campo de Golfe e a Rua Polonia e Ordañez. (fig.416-7).
A implantação do Cerro Sul demonstra um acentuado contraste entre o novo conjunto e o
tecido da cidade tradicional. Existe um contraponto da malha regular e ortogonal e a
disposição orgânica na área livre.
414
415
414. Croquis de Le Corbusier
publicados em Precisões (1929),
durante as conferências feitas em
Buenos Aires.
415. Croquis de Le Corbusier
publicados em Precisões (1929),
durante as conferências feitas em
Buenos Aires.
PROJETOS E OBRAS NAS AMÉRICAS (1956-1971) Vila do Cerro
209
416
416. Localização Cerro Sul, Vila do
Cerro, 1956, Montevidéu.
PROJETOS E OBRAS NAS AMÉRICAS (1956-1971) Vila do Cerro
210
417
417. Implantação, Cerro Sul, Vila do
Cerro, 1956, Montevidéu.
PROJETOS E OBRAS NAS AMÉRICAS (1956-1971) Vila do Cerro
211
418
Os blocos contêm quarenta apartamentos cada, dispostos em quatro pavimentos. O
pavimento térreo é destinado às funções coletivas como lavanderia, estares, área de
brinquedos para as crianças e as circulações verticais. A planta é tipicamente corbusiana
151
,
onde o térreo (fig.419) é liberado através do uso de pilotis e o sistema de vedação é
independente da estrutura. A estrutura segue uma malha de três linhas no sentido longitudinal
distante 5m entre eixos. No sentido transversal a modulação é de 3,50m, salvo na linha
externa que apresenta uma variação para 4,50m a cada três pilares. Parte do térreo é aberta
e os núcleos de circulações e serviços são vedados com uma estrutura de metal e vidro, que,
151
Refere-se aqui aos cinco pontos de Le Corbusier e ao sistema dom-ino. Cf. LE CORBUSIER, 2004, p.99-101/p.127
418. Bloco do Cerro Sul, Vila do
Cerro, 1956, Montevidéu.
PROJETOS E OBRAS NAS AMÉRICAS (1956-1971) Vila do Cerro
212
atualmente, está retirada e não pode ser visualizada, por causa de depredações e má
conservação.
As circulações verticais são distribuídas de forma que um núcleo de escadas permite
ao usuário acessar duas unidades nos pavimentos superiores, evitando, dessa forma, o
desperdício de área em grandes circulações horizontais.
O pavimento tipo (fig.420) é formado por 10 apartamentos, todos com balcões
orientados com vista para a baía e dormitórios voltados para a fachada nordeste. As duas
unidades das extremidades possuem três dormitórios, e uma área total de aproximadamente
140m² cada. Os demais apartamentos têm dois dormitórios e uma área aproximada de 90m²
cada.
A estrutura segue a malha do térreo, porém na segunda e na terceira linha de pilares a
forma deixa de ser circular e passa a ter seção retangular, para obter uma melhor adaptação
aos ambientes. Na primeira linha, as colunas circulares ficam aparentes nos ambientes
integrados de estar, jantar e cozinha. Os intercolúnios maiores compreendem as salas de
estar e jantar. Nos apartamentos menores, a coluna é absorvida pelo móvel que divide o estar
da cozinha, de forma que a estrutura é quase imperceptível. A presença das colunas nos
espaços de estar permite recompor, uma vez dentro dos apartamentos, a colunata vista na
chegada, no térreo.
PROJETOS E OBRAS NAS AMÉRICAS (1956-1971) Vila do Cerro
213
419
420
PROJETOS E OBRAS NAS AMÉRICAS (1956-1971) Vila do Cerro
214
Os ambientes são bem dimensionados e as circulações mínimas. Os espaços
possuem uma regularidade constante e são organizados em faixas. Primeiramente a linha de
balcões/sacadas, em seguida uma faixa mais larga que abriga os estares e cozinhas,
posteriormente uma mais estreita relativa aos banheiros e, por fim, a mais larga referente aos
dormitórios. Essa ordem permite a leitura de uma planta clara e ritmada, na qual os
ambientes se enquadram na modulação estrutural. Fresnedo também demonstra gosto pelo
desenho de mobiliário, uma vez que em diversos de seus projetos ele define e detalha a
mobília a ser utilizada. Para a Vila do Cerro resta um croqui, prova de que o arquiteto não
projeta apenas o edifício, mas vai além e propõe a ocupação adequada do interior (fig.421).
421
419. Planta do térreo, Cerro Sul, Vila
do Cerro, 1956, Montevidéu.
420. Planta do pavimento tipo, Cerro
Sul, Vila do Cerro, 1956,
Montevidéu.
422
423
421. Croqui interno, Cerro Sul, 1956,
Montevidéu.
422. Cerro Sul, Vila do Cerro, 1956,
Montevidéu.
423. Cerro Sul, Vila do Cerro, 1956,
Montevidéu.
PROJETOS E OBRAS NAS AMÉRICAS (1956-1971) Vila do Cerro
215
O projeto do conjunto forma perspectivas interessantes entre os blocos, a partir de
jardins que definem o espaço externo, formando praças, áreas verdes e estares ao ar livre. A
relação entre os edifícios com o exterior pode ser apreciada através de um croqui de
Fresnedo, que manifesta a inserção dos edifícios na topografia do terreno, mostrando as
áreas construídas e não-construídas, além do tratamento de fachadas e do esquema
compositivo dos blocos. Os edifícios isolados no parque são interligados por passeios com
trechos cobertos e edifícios especiais (fig.424).
424
425
426
424. Croqui vista externa, Vila do
Cerro, 1956, Montevidéu.
425. Cerro Sul, Vila do Cerro, 1956,
Montevidéu.
426. Cerro Sul, Vila do Cerro, 1956,
Montevidéu.
PROJETOS E OBRAS NAS AMÉRICAS (1956-1971) Vila do Cerro
216
A volumetria do conjunto é elementar, sendo os blocos definidos por um prisma
retangular maciço sobre pilotis. A base do edifico é caracterizada pela permeabilidade, na
qual os pilotis tornam-se uma esplanada coberta de acesso, além da sua função estrutural.
As colunas são bem proporcionadas em relação à altura do pé-direito, e espaçadas de forma
que a distância entre os intercolúnios define uma ordem e um ritmo que enriquece as visuais
desde o ponto de vista do usuário. As escadas se encaixam nas colunas, direcionando o
indivíduo até o nível superior. A estrutura de metal e vidro que encerra parte do térreo,
presente inicialmente na construção (fig.427), transmite outra percepção deste ambiente em
relação à situação atual, sem o fechamento (fig.428). O vidro limita os espaços, definindo as
zonas de circulação periférica pública e as partes de uso comum, restritas aos usuários dos
apartamentos.
A face sudoeste é composta por um grelha de balcões contínuos que pode ser
reconhecida no croqui (fig.424). Já a face nordeste, que compreende os dormitórios dos
apartamentos, é definida por seis séries de janelas em fita, por pavimento. A primeira e a
última representam as unidades das extremidades, de três dormitórios. As quatro restantes
representam oito unidades, agrupando sempre dois dormitórios de duas unidades distintas.
Entre as fitas estão pequenos vazados na fachada que tem como função a ventilação das
circulações verticais. As laterais do volume possuem quatro pequenas aberturas para os
sanitários.
É digno de nota o forte contraste entre o tecido tradicional do bairro, a grelha de
quarteirão regular, e a proposta de Fresnedo para o Cerro Sul. Neste caso, não há quarteirão,
nem rua no sentido tradicional e os edifícios são dispostos organicamente no terreno
427
428
429
427-8. Vista do térreo, Cerro Sul,
Vila do Cerro, 1956, Montevidéu.
429. Cerro Sul, Vila do Cerro, 1956,
Montevidéu.
PROJETOS E OBRAS NAS AMÉRICAS (1956-1971) Vila do Cerro
217
seguindo a topografia. Nesse sentido, Fresnedo se afasta da solução conciliatória entre o
edifício moderno e a cidade tradicional que manifestara no edifício Esplanada, de 1952, em
Porto Alegre.
PROJETOS E OBRAS NAS AMÉRICAS (1956-1971) Hospital da Mooca
218
4.2 Hospital da Mooca (Casa de Saúde Dom Pedro II) – 1957
Durante as obras do Hospital Americano
152
, Fresnedo Siri conhece o Dr. Nelson
Líbero, médico brasileiro que encomenda ao arquiteto o projeto do Hospital da Mooca, na
época chamado de Fundação Nelson Líbero e, atualmente, também conhecido como Casa de
Saúde Dom Pedro II.
O projeto data de 1957 e trata-se de uma ampliação de um hospital existente para
aumentar o número do quartos e leitos. A construção é concluída e inaugurada em 1961. O
complexo hospitalar localiza-se no bairro da Mooca, à Rua da Figueira, 831, esquina com a
Avenida Alcântara Machado, em São Paulo (fig. 430-1).
430
152
Ver p. 121.
430. Hospital da Mooca, 1957, São
Paulo.
PROJETOS E OBRAS NAS AMÉRICAS (1956-1971) Hospital da Mooca
219
431
O partido adotado na implantação remete ao Hospital Americano. O edifício apresenta
duas alas, sendo que uma é a existente e a outra a ampliação que está voltada para a Rua
da Figueira. A nova barra configura um retângulo de 45x18 metros, com uma reentrância de
18x6 metros, formando um “U” no qual as circulações verticais são colocadas nas
extremidades. Na esquina, o volume é chanfrado junto ao solo e recompõe a quina nos
demais pavimentos. (fig.432).
431. Localização, Hospital da
Mooca, 1957, São Paulo.
PROJETOS E OBRAS NAS AMÉRICAS (1956-1971) Hospital da Mooca
220
432
As funções na nova ala do hospital são distribuídas em dez pavimentos. O térreo
(fig.433) abarca as funções administrativas e os serviços de informações. Da mesma forma
que ocorre no Hospital Americano, o hall abarca um núcleo de circulações verticais e dá
acesso às demais salas a partir de um corredor que intercala planos de vidro à estrutura. Ao
fim desta circulação percebe-se o outro núcleo de escada e elevador de serviços. Do
432. Implantação, Hospital da
Mooca, 1957, São Paulo.
PROJETOS E OBRAS NAS AMÉRICAS (1956-1971) Hospital da Mooca
221
segundo ao oitavo pavimento estão organizados os quartos de internação com algumas
funções de apoio, como as salas de enfermagem. A planta-tipo (fig.436) apresenta uma
organização rigorosa, com apartamentos de internação dotados de sanitários e sacadas e
alinhados na face voltada para a rua. Do outro lado, aparecem projeções com as circulações
verticais, separadas pelo pátio interno. Os dois últimos níveis, o nono e décimo andar, são
destinados às salas de cirurgia. O sistema de organização das funções distribuídas nos
pavimentos é bastante semelhante ao do Hospital Americano.
433
434
435
433. Planta do térreo, Hospital da
Mooca, 1957, São Paulo.
434. Acesso principal, Hospital da
Mooca, 1957, São Paulo.
435. Detalhe da base e do corpo na
esquina (chanfro na base), Hospital
da Mooca, 1957, São Paulo.
PROJETOS E OBRAS NAS AMÉRICAS (1956-1971) Hospital da Mooca
222
436
A volumetria do edifício possui um esquema tripartido definido (fig.437). O térreo marca
a base do conjunto no qual se identificam dois tratamentos diferentes. O hall de acesso é
distinto por sua altura dupla, destacada pelo uso das colunas aliadas à marquise que
demarcam a entrada principal do Hospital (fig.438). Em seguida, a base é caracterizada pela
solidez do volume marcado por faixas horizontais e revestido com pastilhas em tons de cinza.
A articulação entre térreo e corpo principal é complicada, pois o recesso de entrada (com pé-
direito duplo) não é continuado ao lado, onde surge um trecho de base seguido por grelha
igual ao do corpo principal. Essa solução híbrida não replica o rigor da articulação entre corpo
436. Planta do pavimento tipo,
Hospital da Mooca, 1957, São Paulo.
PROJETOS E OBRAS NAS AMÉRICAS (1956-1971) Hospital da Mooca
223
e coroamento. O térreo expõe um contraste entre a modernidade, com os pilotis, e o Art
Déco, na composição da base.
437
O corpo da fachada é composto por uma geometria precisa baseada no sistema de
grelha, talvez proveniente da experiência de Fresnedo em Porto Alegre, com o edifício
Esplanada (1952)
153
. Os balcões dos quartos de internação formam a retícula que consiste
153
Ver p.173.
438
439
437. Hospital da Mooca, 1957, São
Paulo.
438. Acesso principal marcado pelas
colunas, Hospital da Mooca, 1957,
São Paulo.
439. Térreo, Hospital da Mooca,
1957
,
São Paulo.
PROJETOS E OBRAS NAS AMÉRICAS (1956-1971) Hospital da Mooca
224
em linhas horizontais definidas pelos peitoris e linhas verticais que limitam a largura de cada
dormitório. Essa malha gera um interessante jogo de luz e sombra sobre a fachada. A grelha
é animada pela leve projeção dos tramos verticais em relação aos horizontais, que confere
sutil proeminência à leitura em altura (fig.440).
O coroamento do edifício é delimitado pelos dois últimos pavimentos correspondentes
às salas de cirurgia. As faixas verticais seguem marcadas, mas agora sem a projeção das
paredes das células. Os dois pisos desaparecem por trás de uma seqüência de quebra-sóis
horizontais, que através de seu caráter abstrato demarcam as funções distintas dos últimos
pavimentos (fig.440).
440
440. Detalhe coroamento, Hospital
da Mooca, 1957, São Paulo.
PROJETOS E OBRAS NAS AMÉRICAS (1956-1971) Edifício CHLA
225
4.3 Edifício de escritórios - Comissão Honorária Antituberculose – 1959
Em 1959, o arquiteto Román Fresnedo Siri é contratado para projetar o Edifício da
Comissão Honorária para a Luta Antituberculose, CHLA, de Montevidéu. A execução desta
obra é prolongada por muitos anos e algumas etapas são dirigidas pelo arquiteto Adolfo
Sommer
154
, inclusive detalhes de acabamento e definição de materiais, devido ao falecimento
de Fresnedo em 1975.
O terreno situa-se à Avenida 18 de Julio, nº2187, um local bastante movimentado da
cidade. O terreno entre divisas é longo e estreito, com largura que não chega aos dez metros
e o comprimento é de aproximadamente 46 metros (fig.441).
442
154
Fresnedo conheceu Sommer no exterior, eles trabalharam juntos em alguns momentos, porém não se sabe certo onde se
conheceram e quais obras exatas teriam trabalhado em parceria. Cf. BORONAT; RISSO, 1984, p.62.
441
441. Edifício CHLA, 1959,
Montevidéu.
442. Localização, Edifício CHLA,
1959, Montevidéu.
PROJETOS E OBRAS NAS AMÉRICAS (1956-1971) Edifício CHLA
226
O edifício é implantado no alinhamento ocupando toda a largura do terreno e com
recuo de fundos a partir do segundo pavimento. O programa está organizado em nove
pavimentos. O subsolo (fig.445) abriga a instalação de oficinas eletrônicas e mecânicas,
estacionamentos e depósitos. Os demais pavimentos abrigam salas de escritórios.
No pavimento térreo (fig.446) está disposta a rampa de acesso ao subsolo, a escada
de entrada principal ao edifício, o hall, a sala de controle, o salão de atos, circulações e áreas
de apoio. A porta de entrada central leva o usuário ao hall do edifício, que divide a rampa e a
sala de controle, na qual as pessoas devem se identificar quando chegam.
O hall é envidraçado nas faces voltadas para a parte externa e revestido com mármore
nas paredes internas. A altura dupla deste espaço, característica da obra de Fresnedo,
favorece as exposições que ali ocorrem. Em seguida, há um salão de atos com capacidade
para 110 pessoas, com entrada pelo hall ou por meio de um corredor lateral (fig.443-4).
443 444
443. Hall, Edifício CHLA, 1959,
Montevidéu.
444. Hall, Edifício CHLA, 1959,
Montevidéu.
PROJETOS E OBRAS NAS AMÉRICAS (1956-1971) Edifício CHLA
227
445-446-447
445. Planta do subsolo, Edifício
CHLA, 1959, Montevidéu.
446. Planta do térreo, Edifício CHLA,
1959, Montevidéu.
447. Planta do primeiro pavimento,
Edifício CHLA, 1959, Montevidéu.
SUBSOLO
1- Acesso
2- Oficina
3- Garagem
4- Depósito
5- Caldeira
TÉRREO
1- Acesso
subsolo
2- Hall
3- Sala de
controle
4- Exposições
5- Auditório
6- Depósito
1º PAV.
1- Escritórios
2- Direção
3- Hall
4- Sanitários
PROJETOS E OBRAS NAS AMÉRICAS (1956-1971) Edifício CHLA
228
448-449-450
448. Planta do 2º ao 5º pavimento,
Edifício CHLA, 1959, Montevidéu.
449. Planta do 6º pavimento, Edifício
CHLA, 1959, Montevidéu.
450. Planta do 7º pavimento, Edifício
CHLA, 1959, Montevidéu.
2º AO 5º PAV.
1- Escritório
2- Direção
3- Hall
4- Sanitários
6º PAV.
1- Sala de reuniões
2- Espera
3- Hall
4- Diretor
5- Depósito
6- Sanitários
7º PAV.
1- Sala de máquinas
2- Estar
3- Sanitários
PROJETOS E OBRAS NAS AMÉRICAS (1956-1971) Edifício CHLA
229
A partir do primeiro pavimento até o quinto (fig.447-448), são dispostas as funções
administrativas do edifício. Cada andar possui um pequeno hall de chegada dos elevadores e
da escada, a partir do qual os usuários se direcionam para as salas de trabalho. Apesar da
pouca largura, o arquiteto dispõe as funções de forma a atender às necessidades
estabelecidas. Para iluminação e ventilação são propostos três vãos de abertura por
pavimento na fachada do edifício e um poço de luz interno. Os três módulos de fachada têm
correspondência na planta, do segundo ao quinto pavimento, sendo um módulo para a sala
do chefe do andar e outros dois módulos para área de trabalho, que pode ser setorizada com
divisórias leves, caso haja necessidade.
A planta tipo pode ser definida por dois grandes retângulos separados por um poço de
iluminação e ventilação. O primeiro retângulo sofre adaptações devido à questão de
organização das funções, enquanto o retângulo posterior tem planta livre, gerando um grande
salão de trabalho.
O principio da planta livre está presente na concepção deste projeto, uma vez que se
estabelecem os núcleos de circulação vertical e de sanitários, deixando as demais partes
livres para ocupação. Todavia, são dispostas divisórias, em madeira e vidro, que privatizam
alguns ambientes, como no caso a sala do chefe ou do diretor. Os sanitários são colocados
na circulação como uma estratégia de facilitar o acesso e não criar pequenos núcleos em
cada sala.
Há uma variação de usos nas plantas do terceiro pavimento e do quinto pavimento. No
retângulo posterior do terceiro pavimento está implantado um arquivo e, da mesma forma, no
451
452
451. Escada, Edifício CHLA, 1959,
Montevidéu.
452. Poço de luz interno, Edifício
CHLA, 1959, Montevidéu.
PROJETOS E OBRAS NAS AMÉRICAS (1956-1971) Edifício CHLA
230
quinto pavimento, uma biblioteca. Os demais pavimentos seguem com ocupação de
escritórios.
O sexto pavimento (fig.449) difere na organização das salas. A parte frontal é
destinada a uma ampla sala de reuniões. A sala de espera e a sala do diretor completam o
pavimento. Todas essas divisões são leves, em madeira e vidro. Os sanitários são apenas
dois, gerando espaço para a organização de um pequeno depósito, seguido da porta de
acesso ao terraço.
O ultimo pavimento (fig.450) abriga a parte técnica do edifício, as salas de máquinas,
reservatórios e depósitos. Para as pessoas que ficam ao encargo desses cuidados, são
dispostos dois estares e um sanitário de apoio.
453 454
455
453. Hall de cada pavimento com
elevadores. Edifício CHLA, 1959.
454. Corredor e área de espera,
Edifício CHLA, 1959, Montevidéu.
455. Circulação entre os escritórios,
Edifício CHLA, 1959, Montevidéu.
PROJETOS E OBRAS NAS AMÉRICAS (1956-1971) Edifício CHLA
231
A flexibilidade da planta é um aspecto significativo no momento da disposição dos
espaços. A estrutura possibilita essa variedade, pois é restrita às paredes laterais do edifício,
que ficam nas divisas do terreno. Os pilares permitem que o vão de quase dez metros fique
livre, sem apoios intermediários. O poço, distante 15,50m em relação à parede no
alinhamento da calçada, atende a ventilação e iluminação das salas e dos sanitários.
456 457
Fresnedo demonstra a compreensão do programa e da temática do edifício em
questão. O mobiliário é desenhado por Fresnedo, incluindo as poltronas, as mesas e as
cadeiras dos escritórios. As estantes são pintadas em azul claro, que contrastam com as
paredes cinza claro e o piso em parquet escuro. As mesas e cadeiras são feitas em madeira
clara, natural (fig.456-63). Também nos detalhes estão reveladas atitudes criativas do
arquiteto. As luminárias, por exemplo, são desenvolvidas com tubos de ensaio, um dos
materiais de trabalho utilizado nas pesquisas médicas, ordenados de forma peculiar (fig.460).
458
459
456. Escritório de fundos, Edifício
CHLA, 1959, Montevidéu.
457. Escritório de fundos, Edifício
CHLA, 1959, Montevidéu.
458. Escritório de frente, Edifício
CHLA, 1959, Montevidéu.
459. Escritório de frente, Edifício
CHLA, 1959, Montevidéu.
PROJETOS E OBRAS NAS AMÉRICAS (1956-1971) Edifício CHLA
232
460 461
A volumetria do projeto é elementar, pois o prisma retangular define uma barra que se
acomoda ao terreno. A fachada divide claramente a base e o corpo do edifício. A base, que
comporta o térreo, está recuada 1,30m do corpo. O tratamento na base é feito através de
alumínio e vidro, buscando destacar a transparência e permeabilidade entre a rua e o interior
da edificação (fig.464-5). Esse tema é recorrente na arquitetura de Fresnedo.
O corpo, diferentemente, é composto por um plano sólido, maciço, de concreto
armado, do qual se sobressaem as molduras das esquadrias plenamente translúcidas.
Todavia, predominam os vazios sobre os cheios, num jogo ambíguo de afirmação e negação
da tectonicidade e da transparência. As esquadrias nesta fachada são dotadas de um
mecanismo de funcionamento desenvolvido pelo arquiteto. As janelas são compostas por
uma única folha de alumínio com um plano de vidro inteiro. A abertura acontece através de
um dispositivo especial que proporciona um giro em torno de um pivô, no eixo vertical central
462
463
460. Luminária, Edifício CHLA, 1959,
Montevidéu.
461. Sala de reuniões, Edifício
CHLA, 1959, Montevidéu.
462. Mobiliário do escritório, Edifício
CHLA, 1959, Montevidéu.
463. Modelo de cadeira, Edifício
CHLA, 1959, Montevidéu.
PROJETOS E OBRAS NAS AMÉRICAS (1956-1971) Edifício CHLA
233
de cada janela. Neste edifício, os materiais utilizados são, basicamente, o concreto armado, o
vidro e o alumínio (fig.466-7).
466 467
A modulação das esquadrias na fachada frontal forma uma malha regida por um
traçado regulador. As dimensões das esquadrias são aproximadamente um quadrado perfeito
de 2,40m de lado. No sentido horizontal da trama, o intervalo entre as esquadrias é de 60 cm,
sendo 40 cm da laje e a 20 cm do peitoril, que é complementado internamente por um gradil
de proteção. No sentido transversal, o intervalo é de 50 cm entre elas e a distância em
relação às divisas é de 47,5cm.
464
465
464-5. Térreo, Edifício CHLA, 1959,
Montevidéu.
466. Edifício CHLA, 1959,
Montevidéu.
467. Detalhe das molduras, Edifício
CHLA, 1959, Montevidéu.
PROJETOS E OBRAS NAS AMÉRICAS (1956-1971) Edifício CHLA
234
A moldura em concreto nas janelas reforça a grelha e está saliente 42 cm em relação
ao plano da fachada. Segundo o corte (fig.468), o pé-direito é de 3m no pavimento tipo. No
sexto pavimento varia para 3,24m e no sétimo pavimento, para 4,0m. No térreo a altura entre
pisos é de 4,50m e o acesso está a 1,24m em relação ao nível externo da rua.
468
O esquema de fachada (fig.469) revela uma precisão geométrica na aplicação da
grelha. Esta, porém, é volumetrizada pela projeção das molduras das janelas. Esse jogo sutil
com as superfícies, somado ao contraponto entre solidez e transparência, demonstra a
habilidade plástica de Fresnedo ao abordar programas corriqueiros como o pequeno edifício
de escritórios.
469
468. Corte transversal, Edifício
CHLA, 1959, Montevidéu.
469. Fachada, Edifício CHLA, 1959,
Montevidéu.
PROJETOS E OBRAS NAS AMÉRICAS (1956-1971) OPS Washington
235
4.4 Organização Pan-americana da Saúde – Washington/EUA – 1961
Em março de 1960 o presidente americano Dwight D. Eisenhower
155
promulgou uma
lei através da qual se doava uma área de terras para a construção da sede da Organização
Pan-americana da Saúde, a OPS, em Washington, capital dos EUA. Esta instituição,
integrada por vários países do continente americano, tem por objetivo coordenar ações que
promovam a saúde pública no seu contexto.
Em outubro de 1961 o arquiteto Fresnedo Siri foi contratado pela OPS para projetar a
sede em Washington
156
. Pouco depois, como era especificado nos contratos, se associou a
uma firma de arquitetos da região: Justment, Elam, Callmer e Kidd, e à American
Construction Co., empresa de construção, para o desenvolvimento do projeto. Somente em
agosto de 1963 foi assinado o contrato para a construção do Edifício, que foi inaugurado em
setembro de 1965
157
. Durante a execução do edifício, Fresnedo viajava a cada três meses
para o Uruguai para visitar a família.
O programa do edifício conta com salas para os comitês, sala de acervo, sala de
documentação, biblioteca, sala do diretor, sala do presidente, sala de delegados, sala de
imprensa, sala de relatores, salão de conferências, sala do congresso (para 300 pessoas),
quatro salas de reuniões (com capacidade para 300, 100, 75 e 75 pessoas), escritórios
(distribuídos a partir do terceiro andar - pavimento tipo), despensa, cozinha, sanitários,
depósitos e estacionamento com 110 vagas.
155
Dwight D. Eisenhower nasceu em 1890 e faleceu em 1969. Foi presidente dos Estados Unidos de 1953 a 1961.
156
BORONAT; RISSO, 1984, p.96.
157
Idem, ibidem.
470
470. Sede da OPS Washington,
1961, Estados Unidos.
PROJETOS E OBRAS NAS AMÉRICAS (1956-1971) OPS Washington
236
O terreno concedido à OPS tem forma triangular e localiza-se entre as ruas 23, E, e
Avenida Virginia, próximo ao Centro Cultural Nacional (fig.471). A área é de
aproximadamente 404m² e faz parte de um complexo urbano, formado pelo Monumento a
Lincoln, pelo Departamento de Estado e pela Universidade George Washington.
471
471. Localização, Sede da OPS
Washin
g
ton
,
1961
,
Estados Unidos.
PROJETOS E OBRAS NAS AMÉRICAS (1956-1971) OPS Washington
237
473
474
472
472. Croqui, Sede da OPS
Washington, 1961, Estados Unidos.
473. Croqui, Sede da OPS
Washington, 1961, Estados Unidos.
474. Maquete, Sede da OPS
Washington, 1961, Estados Unidos.
PROJETOS E OBRAS NAS AMÉRICAS (1956-1971) OPS Washington
238
A implantação (fig.475) do edifício ocorre em uma área peculiar da cidade em que a
malha urbana está definida por uma variedade de quarteirões com diferentes dimensões e
geometrias criadas pela superposição de avenidas diagonais a uma malha ortogonal. Essas
quadras seguem certa regularidade sendo cortadas por eixos correspondentes às Avenidas
principais, gerando alguns terrenos triangulares, como o que pertence à OPS. Por ser uma
região que concentra a sede de grandes instituições, algumas construções carregam na sua
caracterização formal uma escala monumental.
Através do estudo da implantação é possível traçar algumas características do partido
adotado por Fresnedo. A leitura do pavimento permite identificar uma barra linear em curva,
que se acomoda na face à Avenida Virgínia, que se conecta, em determinado momento, com
a forma circular adjacente, posicionada na esquina da Rua 23 com a Rua E.
475
476
477
475. Implantação, Sede da OPS
Washington, 1961, Estados Unidos.
476. Vista da Avenida Virginia, Sede
da OPS Washington, 1961, Estados
Unidos.
477. Vista em construção, Sede da
OPS Washington, 1961, Estados
Unidos.
PROJETOS E OBRAS NAS AMÉRICAS (1956-1971) OPS Washington
239
A volumetria da barra curva é composta por térreo colunar e nove pavimentos,
seguidos de cobertura recuada. O volume circular (que abriga a sala de congressos) tem
térreo colunar com volume de acesso recuado e um andar com pé-direito triplo (ver plantas,
fig.492 e 495). O subsolo do conjunto possui as 110 vagas de estacionamento distribuídas em
dois níveis. O jogo entre os dois volumes é articulado por um eixo de ligação à esquerda do
centro da barra (478-9).
O conjunto provoca visuais interessantes do ponto de vista urbano. O edifício expressa
a modernidade através dos materiais empregados, como o mármore e o aço. O volume
cilíndrico é definido pelo térreo recuado, composto por aberturas em vidro e revestido com
granito escuro vindo do México, nas paredes externas. Contornando os acessos deste
volume curvo estão os espelhos d’água com chafarizes (fig.481-2). Os três pavimentos acima
são unificados por uma grelha em concreto e mármore com desenho inédito na obra de
Fresnedo. Essa fachada define um mural opaco com revestimento alveolar com um
entramado em zigue-zague (fig. 480).
A estrutura deste volume é composta por perfis em aço, que convergem a um ponto
central que sustenta o sistema como um todo (fig.483-4). Essa estratégia permite vencer o
vão adequado à sala de congressos, sendo possível dispor as poltronas sem que nenhuma
estrutura desça e interrompa a continuidade espacial.
PROJETOS E OBRAS NAS AMÉRICAS (1956-1971) OPS Washington
240
478 479
480
481
482
478. Vista aérea, Sede da OPS
Washington, 1961, Estados Unidos.
479. Sede da OPS Washington,
1961, Estados Unidos.
480. Estrutura do volume cilíndrico,
Sede da OPS Washington, 1961.
481-2. Térreo com vista dos
espelhos d’água e chafarizes, Sede
da OPS Washington, 1961, Estados
Unidos.
PROJETOS E OBRAS NAS AMÉRICAS (1956-1971) OPS Washington
241
483 484
A volumetria da barra consiste num prisma retangular arqueado e conta com um
esquema tripartido de base, corpo e coroamento. O térreo (fig. 517) é formado por pilotis
robustos, executados em concreto e um composto de mármore branco, e define a base do
edifício. Os pilares demarcam o esquema estrutural dos pavimentos, com intercolúnios
longitudinais de aproximadamente 7,5m.
O corpo é marcado pelo uso do vidro, material bastante presente em obras anteriores
do arquiteto. A fachada de vidro é ritmada verticalmente por montantes esbeltos em projeção,
483. Estrutura do volume cilíndrico,
Sede da OPS Washington, 1961,
Estados Unidos.
484. Estrutura do volume cilíndrico,
Sede da OPS Washington, 1961,
Estados Unidos.
PROJETOS E OBRAS NAS AMÉRICAS (1956-1971) OPS Washington
242
repetindo o gesto do Palácio da Luz
158
, mas agora volume alongado e curvo. Esses
montantes de concreto estão dispostos a cada metro e meio, aproximadamente (fig. 486). As
extremidades da barra têm empenas cegas, totalmente opacas, executadas em concreto
armado. O tom claro do concreto contrasta com o vidro escuro, ressaltando a grelha
transversal.
485 486
O coroamento está definido por um volume recuado acima do corpo do edifício, e nele
estão dispostas as funções técnicas. Este volume conta com duas lâminas cegas em
concreto que demarcam o topo das duas faces mais longas, além de servir como anteparos
que ocultam os equipamentos técnicos. (fig. 489).
158
Ver p.100.
487
488
485. Térreo do volume da barra,
Sede da OPS Washington, 1961,
Estados Unidos.
486. Detalhe dos montantes na barra
curva, Sede da OPS Washington,
1961, Estados Unidos.
487. Térreo do volume da barra,
Sede da OPS Washington, 1961,
Estados Unidos.
488. Sede da OPS Washington,
1961, Estados Unidos.
PROJETOS E OBRAS NAS AMÉRICAS (1956-1971) OPS Washington
243
489 490
O jogo entre os dois volumes evita contrapor a idéia mais convencional de leve e
translúcido (a barra) contra o mural (o cilindro), mas gradua estes temas, atenuando suas
diferenças sem deixar de acusá-las.
As instalações de ar condicionado são feitas verticalmente em dutos colocados na face
dos pilares, de onde elas se distribuem horizontalmente, ao longo do edifício. As instalações
elétricas são embutidas nas lajes e distribuídas por dutos longitudinais e transversais,
permitindo a colocação de tomadas e pontos de luz em qualquer lugar do pavimento,
tornando mais flexível à composição do mobiliário interno. As três salas de reuniões e a sala
do Congresso têm instalações específicas para o uso de equipamentos de tradução
simultânea.
159
159
BORONAT; RISSO, 1984, p.107.
491
489. Detalhe do coroamento da
barra curva, Sede da OPS
Washington, 1961, Estados Unidos.
490. Contraponto entre a grelha
vertical e alveolar, Sede da OPS
Washington, 1961, Estados Unidos.
491. Contraponto entre a grelha
vertical e alveolar, Sede da OPS
Washington, 1961, Estados Unidos.
PROJETOS E OBRAS NAS AMÉRICAS (1956-1971) OPS Washington
244
Todo o térreo da OPS é liberado para a circulação pelo uso de pilotis. A única exceção
é o volume de acessos que ocupa o centro da sala de congressos. Deste volume cilíndrico,
parte uma projeção que termina sob a barra curva, onde estão as escadas rolantes e os
elevadores (fig.492).
A barra curva apresenta um comprimento total de aproximadamente 85 metros por 12
metros de largura de vão, que corresponde à largura da barra. Já o edifício cilíndrico possui
intercolúnios de aproximadamente cinco metros.
O acesso principal ao volume cilíndrico é feito por meio de uma série de portas de
vidro, que remetem à projeção do circulo que conforma o pavimento superior. O hall possui
aberturas em bronze, colunas revestidas com bronze escuro e piso monolítico preto. O
usuário pode acessar o edifício também pela barra, através de duas entradas que estão
voltadas para a área de estacionamento que se configura no térreo, mas, também, em dois
níveis de subsolo. (fig.492, 495 e 498).
O tratamento do entorno no térreo é definido por espelhos d’água e pavimentação,
desenhados com linhas curvas, além de floreiras e vegetação que organizam vistas já
antecipadas nos croquis do anteprojeto
160
.
160
As fotos foram cedidas pelo Instituto de Teoria e Historia de Arquitetura, da Faculdade de Arquitetura de Montevidéu, e
datam de 1965/1966, provavelmente tiradas pelo próprio arquiteto, Fresnedo Siri, em uma de suas viagens aos Estados
Unidos.
PROJETOS E OBRAS NAS AMÉRICAS (1956-1971) OPS Washington
245
492
493
494
492. Planta do térreo, Sede da OPS
Washington, 1961.
493. Croqui do térreo do cilindro,
Sede da OPS Washington, 1961.
494. Térreo do cilindro, Sede da
OPS Washington, 1961.
1- Hall
2- Hall escadas rolantes
3- Sanitários
4- Hall elevadores
5- Estacionamento
6- Rampa de acesso ao subsolo
7- Espelhos d’água
PROJETOS E OBRAS NAS AMÉRICAS (1956-1971) OPS Washington
246
495
496
497
495. Planta baixa do 2º pavimento.
Sede da OPS Washington, 1961,
Estados Unidos.
496. Croqui sala de congresso. Sede
da OPS Washington, 1961, Estados
Unidos.
497. Croqui sala de delegados. Sede
da OPS Washington, 1961, Estados
Unidos.
1- Sala do comitê A
2- Escada protegida
3- Sanitários
4- Hall elevadores
5- Hall escadas rolantes
6- Sala dos escreventes
7- Sala
8- Sala do comitê B
9- Acervo
10- Delegado
11-Relator
12- Presidente
13- Imprensa
14- Despensa
15- Vestiário
16- Sala de conferências
17- Delegados
18- Sala de apoio
PROJETOS E OBRAS NAS AMÉRICAS (1956-1971) OPS Washington
247
498
A partir da foto (fig.499) percebe-se uma pequena alteração na disposição dos
elevadores, os desenhos originais (fig. 492 e 495) mostram duas prumadas de elevadores,
mas na versão executada constam quatro elevadores alinhados (fig.499-500).
No segundo nível estão definidas as funções principais da OPS. O pavimento conta
com três salas de reuniões, uma com capacidade para 110 pessoas e as demais para 75
pessoas (fig.501-2). Todas as salas possuem equipamentos de tradução simultânea para
cinco idiomas, projetados por Fresnedo.
499
500
498. Corte, Sede da OPS
Washington, 1961, Estados Unidos.
499. Segundo pavimento, hall
elevadores, Sede da OPS
Washington, 1961, Estados Unidos.
500. Segundo pavimento, circulação,
Sede da OPS Washington, 1961,
Estados Unidos.
PROJETOS E OBRAS NAS AMÉRICAS (1956-1971) OPS Washington
248
O terceiro, quarto e quinto pavimento são destinados aos escritórios administrativos.
No sexto piso localiza-se uma biblioteca (fig.503) com capacidade para 25.000 volumes, com
sete salas privadas de leitura, duas salas de estudos, uma sala de descanso e uma sala
especial para microfilme. Os demais pavimentos são para uso pessoal profissional, com
exceção do último, destinado a parte da direção da OPS.
161
Na cobertura em recuo se
encontram as instalações mecânicas do edifício, as caldeiras, os equipamentos de ar
condicionado, máquinas dos elevadores e oficina dos engenheiros mecânicos.
162
Não se tem
registros em arquivos das demais plantas, existindo apenas fotos das plantas do térreo e do
segundo pavimento.
O projeto de interiores, típico da arquitetura moderna dos anos 60, expressa a noção
de unidade e mostra a habilidade do arquiteto ao gerenciar os diversos níveis do edifício. A
sala de reuniões para 75 pessoas (fig.500) é composta por poltronas em couro preto que
contrastam com o carpete amarelo ouro. Os móveis são em madeira de cerejeira natural. As
salas dos diretores (fig.535) possuem móveis em madeira de nogueira natural e o
revestimento das poltronas é em couro verde escuro. O piso coberto pelo carpete verde
esmeralda. O forro recebe placas de vidro fosco de 8 mm. As cortinas de todos os ambientes
são em fibra de vidro, contra incêndio. Os corredores (fig.500) têm as paredes revestidas em
madeira de cerejeira natural e o piso em carpete na cor amarelo ouro, assentado sobre uma
manta plástica isolante.
163
161
BORONAT; RISSO, 1984, p.98.
162
ESTEBAN, 1967, p.28.
163
Idem, p.26.
501
502
503
501. Sala de reuniões para 75
pessoas, Sede da OPS Washington,
1961, Estados Unidos.
502. Sala de reuniões para 100
pessoas, Sede da OPS Washington,
1961, Estados Unidos.
503. Biblioteca. Sede da OPS
Washington, 1961, Estados Unidos.
PROJETOS E OBRAS NAS AMÉRICAS (1956-1971) OPS Washington
249
505 506
507
504
504. Cabine de tradução, Sala de
reuniões para 75 pessoas, Sede da
OPS Washington, 1961, Estados
Unidos.
505. Escritório. Sede da OPS
Washington, 1961, Estados Unidos.
506. Sala do diretor, 2º pavimento.
Sede da OPS Washington, 1961,
Estados Unidos.
507. Estar. Sede da OPS
Washington, 1961, Estados Unidos.
PROJETOS E OBRAS NAS AMÉRICAS (1956-1971) OPS Washington
250
O eixo que liga as duas partes da composição é deslocado em relação ao centro da
barra e forma, no interior, o hall destinado às escadas rolantes. É possível que estas escadas
rolantes, que aparecem desenhadas no croqui do arquiteto (fig.493), tenham sido substituídas
pela virtuosística escada em curva (fig. 508-9). Essa escada é revestida em mármore branco
e conduz ao segundo pavimento.
No cilindro, o segundo pavimento (fig. 495) abriga uma sala de congressos para 300
pessoas (aproximadamente 28 metros de diâmetro), com pé-direito triplo, uma sala de
imprensa, uma sala para delegados e áreas de apoio, como depósitos e vestiários.
A sala de congressos (fig. 510-12) possui o mobiliário e decoração desenvolvidos pelo
próprio arquiteto. Fresnedo desenha um painel abstrato, com réguas verticais em madeira,
para o plano de fundo da mesa principal da sala do congresso (fig.511). As poltronas têm um
design específico que contém um sistema de tradução simultânea com comandos acessíveis
por cada usuário da poltrona (fig. 512). O piso da sala de congressos é coberto por carpete
de lã azul acinzentado e as paredes são revestidas com madeira de nogueira. O lustre,
elemento de iluminação e decoração central, é composto por 3000 elementos translúcidos e
reluzentes.
508
509
508-9. Escada, Sede da OPS
Washington, 1961, Estados Unidos.
PROJETOS E OBRAS NAS AMÉRICAS (1956-1971) OPS Washington
251
510 511
512
Percebe-se que alguns aspectos compositivos da OPS expressam influências do
contato de Fresnedo com a arquitetura brasileira dando seqüência a temas que o arquiteto já
havia utilizado em sua obra anterior. O uso de pilotis, por exemplo, que aparece em sua obra
510. Sala de Congressos, Sede da
OPS Washington, 1961, Estados
Unidos.
511. Detalhe do painel em madeira e
da bancada, Sala de Congressos,
Sede da OPS Washington, 1961,
Estados Unidos.
512. Poltronas com equipamento de
apoio, Sala de Congressos, Sede da
OPS Washington, 1961, Estados
Unidos.
PROJETOS E OBRAS NAS AMÉRICAS (1956-1971) OPS Washington
252
no Brasil
164
, se mescla à nervura vertical e ao vidro, já experimentados em Montevidéu, para
compor a OPS.
É na lagoa da Pampulha, em Belo Horizonte que se destaca uma obra com partido
similar ao da OPS de Washington. O Hotel da Pampulha (Niemeyer, 1942-43, fig.513-4) parte
de uma barra curva conectada a uma forma adjacente. Ambas não são composições
totalmente análogas, mas é possível reconhecer alguns princípios em comum. Ao traçar uma
linha vertical no centro da planta do térreo do Hotel da Pampulha, percebe-se no lado
esquerdo da composição a barra ligada a forma circular. Reforça-se tal semelhança ao
observar a planta tipo, que dispõe ambientes maiores nas extremidades e os demais
seguindo o raio da barra. A direção da curvatura da barra, neste caso, é contrária à proposta
de Fresnedo. A volumetria também se aproxima, no sentido de revelar a barra sobre pilotis e
o uso do vidro, com predomínio de fenestração no sentido vertical. Também é possível
estabelecer uma analogia ao edifício da Sede da Unesco (1953), em Paris, de Breuer,
Zehrfuss e Nervi, sendo um antecedente que conjuga em sua composição alas curvas com
um auditório externo em forma especial.
164
Tendo em vista as obras citadas nesta investigação, e os registros adquiridos com a família e com o Instituto de História
de Arquitetura de Montevidéu, é possível identificar que o uso do pilotis aparece primeiramente no Edifício Esplanada,
1952, em Porto Alegre, seguido do edifício habitacional da Vila do Cerro, 1956, em Montevidéu, e então posteriormente na
OPS de Washington, 1961 e OPS de Brasília, 1971.
PROJETOS E OBRAS NAS AMÉRICAS (1956-1971) OPS Washington
253
513
514
513. Hotel da Pampulha, Niemeyer,
1942-43, Belo Horizonte.
514. Hotel da Pampulha, Niemeyer,
1942-43, Belo Horizonte.
PROJETOS E OBRAS NAS AMÉRICAS (1956-1971) OPS Brasília
254
4.5 Organização Pan-americana da saúde – Brasília – 1971
O trabalho de Fresnedo no projeto da Organização Pan-americana da Saúde (OPS) de
Washington possibilitou uma encomenda similar em 1971. Neste ano, o arquiteto foi chamado
ao Brasil a fim de projetar e executar a sede da mesma organização em Brasília. Fresnedo foi
contratado diretamente pela OPS em função do projeto que fez anteriormente nos Estados
Unidos.
165
O edifício brasileiro é iniciado no ano de 1971 e Fresnedo não o conclui, pois vem
a falecer em junho de 1975, quando a construção está em andamento.
516
165
Ver p.233.
515
515. Vista do acesso principal, Sede
da OPS, Brasília, 1971.
516. Vista aérea, Sede da OPS,
Brasília, 1971.
PROJETOS E OBRAS NAS AMÉRICAS (1956-1971) OPS Brasília
255
A localização da sede da OPS (fig. 541) fica no Setor de Embaixadas Norte, Lote 19,
conforme mapa (fig.517-8). A implantação se dá em um amplo terreno plano e desprovido de
contexto físico relevante, como não poderia deixar de ser em Brasília. A quadra forma um
quadrado perfeito com 150 metros de lado, totalizando 22.500 m² de área.
517
517. Localização, Sede da OPS,
Brasília, 1971.
PROJETOS E OBRAS NAS AMÉRICAS (1956-1971) OPS Brasília
256
518
O acesso ao prédio é configurado através de um eixo no centro da quadra. A
linguagem do edifício segue a proposta da OPS para Washington, com características
similares de composição formal e funcional. Todavia, existem diferenças importantes. O
edifício de Washington está em terreno triangular e não é estruturado simetricamente como o
de Brasília. A sede americana da OPS tem o volume cilíndrico deslocado de uma posição
518. Localização, Sede da OPS,
Brasília
,
1971.
PROJETOS E OBRAS NAS AMÉRICAS (1956-1971) OPS Brasília
257
central em relação à barra curva, o que torna o conjunto mais dinâmico. A solução adotada
em Brasília apresenta uma simetria literal e estática.
O conjunto contém uma barra curva, de aproximadamente 12x80 metros, que se
interliga com um volume cilíndrico, de 20 metros de diâmetro por meio de um eixo central.
(fig. 543). O arranjo compositivo pode ser reconhecido como dois volumes conectados (a
barra linear e o círculo adjacente.
A barra conta com três níveis. A base possui apenas pilotis permitindo permeabilidade
e visibilidade completa do entorno. O segundo nível é distribuído de forma a não ocupar todo
o pavimento, deixando livres os três últimos vãos nas extremidades. A estrutura das colunas
segue e se funde às lajes do segundo pavimento, no terceiro nível. Este ocupa toda a área da
barra e fica elevado 6 metros do solo. O cilindro segue a altura da barra, formando
internamente uma altura de 6 metros no salão do Conselho. As colunas atingem nove metros
de altura (3 metros a cada andar). Na parte superior do prédio, nota-se um volume em forma
de hexágono alongado (pavimento técnico).
Em seu todo, o edifício mostra um retrocesso em relação às obras anteriores de
Fresnedo e particularmente, em relação à sede norte-americana da OPS. A adoção tão óbvia
da simetria associada à suspensão de todo o conjunto como palafita resultou numa imagem
de pouco apelo formal e algo desproporcional. É possível que a execução, terminada sem o
arquiteto, tenha prejudicado ainda mais o resultado.
519
520
519. Maquete, Sede da OPS,
Brasília, 1971.
520. Maquete, Sede da OPS,
Brasília, 1971.
PROJETOS E OBRAS NAS AMÉRICAS (1956-1971) OPS Brasília
258
521
O tratamento das fachadas remete a algumas características presentes na obra
anterior de Fresnedo. As formas geométricas puras são constituídas por planos de vidro. As
faces envidraçadas recebem a proteção da grelha nervurada no sentido vertical, em concreto
e mármore branco, fixadas a cada 1,5 metros.
Na implantação (fig.522) identifica-se uma série de eixos de vegetação propostos pelo
arquiteto, uma vez que a zona é nova e não possui tratamento paisagístico. A colocação das
árvores segue a disposição de simetria literal já referida. As curvas adquirem um raio maior,
da mesma forma que as linhas oblíquas se abrem em um ângulo ascendente e conformam a
vegetação. Todas são especificadas, citando-se Magnólias, Palmeiras, Flamboyants,
Araucárias, Ginkgo Bilobas, entre outras. A parte externa é principalmente marcada pelo
espelho d’água, medindo 37 metros de comprimento e iniciando a 14 metros do alinhamento
521. Sede da OPS, Brasília, 1971.
PROJETOS E OBRAS NAS AMÉRICAS (1956-1971) OPS Brasília
259
do terreno, com desenho de linhas inclinadas similar ao da OPS de Washington. O centro da
barra curva fica distante 45 metros do alinhamento frontal do terreno, formando um grande
largo de acesso monumental.
522
522. Implantação, Sede da OPS,
Brasília, 1971.
PROJETOS E OBRAS NAS AMÉRICAS (1956-1971) OPS Brasília
260
O térreo (fig.523) é composto por um acesso principal coberto, abaixo do volume
cilíndrico estruturado por pilotis. A partir deste hall, o visitante chega às escadas, no volume
de ligação, que o direcionam ao pavimento superior. Segue-se o hall de elevadores dispostos
no centro da barra linear curva, com algumas funções de apoio próximas, como os sanitários
e depósitos.
A característica principal do térreo segue sendo o uso de pilotis, liberando a circulação
no solo e as visuais do entorno. A estrutura é modulada pelos pilares que distam 6 metros
entre eixos, demarcando um balanço de 2 metros em relação à barra nos pavimentos
superiores. Os principais materiais utilizados são o concreto armado e o vidro.
O primeiro pavimento (fig.526) conta com o Salão do Conselho, na parte cilíndrica e
com as demais funções da OPS, na barra. As paredes que dividem os ambientes seguem o
raio definido na composição da barra, porém as paredes das extremidades são formadas por
linhas quebradas, similares aos desenhos de peitoris e paredes já criados por Fresnedo para
o Hipódromo do Cristal em Porto Alegre
166
.
No segundo pavimento (fig.527), estão dispostas as funções administrativas da
Organização que ocupam toda a extensão da barra. As salas para chefias e reuniões se
localizam nas extremidades e no centro, disponibilizando uma área útil maior. O pavimento é
quase integralmente ocupado por salas pequenas de atendentes e secretárias, colocando as
funções de uso comum nas salas mais próximas ao hall principal. Devido à morte de
Fresnedo antes do final da obra, não há registro dos detalhamentos internos e do mobiliário
nos arquivos do arquiteto.
166
Ver p.136.
PROJETOS E OBRAS NAS AMÉRICAS (1956-1971) OPS Brasília
261
523
524
525
523. Planta baixa do térreo, Sede da
OPS, Brasília, 1971.
524. Salão do conselho, Sede da
OPS, Brasília, 1971.
525. Salão do conselho, Sede da
OPS, Brasília, 1971.
1- Acesso coberto
2- Hall escadas
3- Escadas
4- Hall elevadores
5- Depósito
6- Ar condicionado
7- Arquivo
8- Sanitários
9- Pórtico
10- Espelho d’água
PROJETOS E OBRAS NAS AMÉRICAS (1956-1971) OPS Brasília
262
526
1- Hall elevadores
2- Hall escadas
3- Escadas
4- Depósito
5- Salão do Conselho
6- Direção
7- Presidência
8- Chefia
9- Pessoal técnico
10- Secretaria
11- Supervisão
12- Acervo
13- Oficina de
conferências
14- Cabines
de telefones
15- Sanitários
16- Sala de tradução
17- Sala de reuniões
18- Pórtico
526. Planta baixa do 1º pavimento,
Sede da OPS, Brasília, 1971.
PROJETOS E OBRAS NAS AMÉRICAS (1956-1971) OPS Brasília
263
527
1- Hall elevadores
2- Hall escadas
3- Escadas
4- Sanitários
5- Cozinha
6- Acervo
7- Atendentes
8- Secretaria
9- Espera
10- Chefia
11- Documentação
12- Arquivo
13- Xerox
14- Administração
15- Sala reuniões
16- Sala de tradução
17- Sala de reuniões
18- Salão do Conselho
527. Planta baixa do 2º pavimento,
Sede da OPS, Brasília, 1971.
PROJETOS E OBRAS NAS AMÉRICAS (1956-1971) OPS Brasília
264
As últimas obras de Fresnedo refletem algo do dilema da arquitetura moderna nos
anos 70. Elas abordam o tema da linguagem moderna que progressivamente se afasta de um
diálogo sutil com a tradição, onde se notava uma tensão criativa entre o antigo e o moderno.
Neste momento, as simetrias dissimuladas no equilíbrio de opostos dão lugar a um retorno à
simetria bilateral clássica. O vidro se torna mais universal e comum, ao invés de ser alternado
com planos tectônicos. A solução técnica é similar e padronizada, com pouco espaço para o
contraste de partes. Estas constatações servem para atestar o valor da produção de
Fresnedo entre as décadas de 30 e 50.
CONSIDERAÇÕES FINAIS
265
CONSIDERAÇÕES FINAIS
A partir da inserção do arquiteto no contexto cultural e artístico do período entre 1920 e
1970 e da descrição dos projetos, percebeu-se que a obra de Fresnedo Siri abarca diversas
características que refletem desde os conceitos acadêmicos tradicionais até os ideais de
arquitetos vanguardistas como Le Corbusier e Mies van der Rohe. A visão geral de sua
produção arquitetônica delimitou uma organização dos projetos em três períodos de atuação,
que envolveram obras distintas, porém com algumas características similares.
O primeiro foco de análise, de 1938 a 1946, mostra o primeiro momento da obra do
arquiteto, na qual nota-se a relação com as bases compositivas acadêmicas e forte aporte
racionalista marcado pela precisão estrutural nas obras executadas no Uruguai. Neste
sentido, as obras da primeira fase caracterizam-se por um modernismo “eclético” que vincula
as influências do racionalismo Italiano, da obra de Perret e de Wright às questões da técnica
moderna como o uso do vidro e das estruturas avantajadas. Nesse momento, destacam-se a
residência Fresnedo Siri em Punta Ballena e o Hipódromo de Maroñas como projetos
inovadores e à frente do seu tempo devido às questões estruturais e ao uso do vidro.
A década de 1950 apontou uma segunda fase da carreira do arquiteto, marcada por
duas obras importantes em Porto Alegre, que constituem o auge de sua produção
arquitetônica. Este período é balizado pelo forte viés corbusiano reforçado pela influência
brasileira através da escola carioca. Esta síntese está representada pelo edifício Esplanada e
pelo Hipódromo do Cristal em Porto Alegre. Todavia, o tributo brasileiro de Fresnedo parece
ser voluntário. O concurso do qual ele participa no caso do hipódromo não conta com a
CONSIDERAÇÕES FINAIS
266
participação dos arquitetos modernistas locais
167
, o que garante uma certa neutralidade de
alinhamento estilístico. Além disso, as citações de Fresnedo são parciais, incorporando
aspectos, mas sujeitando-os a uma disciplina própria.
O Hipódromo do Cristal torna-se o momento mais expressivo da produção de
Fresnedo, por suas qualidades plásticas na manipulação de materiais modernos e por suas
virtudes de dinâmica espacial. Por sua vez, o edifício Esplanada representa a transposição
destas virtudes para o contexto menos espetacular da arquitetura habitacional em larga
escala.
O último recorte temporal, de 1956 a 1971, define a fase de internacionalização do
arquiteto, na qual há um certo declínio em relação à investigação inventiva das duas
primeiras fases. As obras caracterizam-se pelo retorno ao classicismo, em vidro e concreto
armado. A técnica e o uso de materiais contemporâneos como o ferro, o concreto e o vidro
são unidos às composições volumétricas elementares, dando lugar à simetria, como no
edifício sede da OPS de Brasília, sem o mesmo impacto inicial de suas obras. As duas obras
derradeiras de Fresnedo expressam algum impasse dentre as alternativas modernas que se
desenham, incluindo o classicismo abstrato de Louis Kahn e o Brutalismo em suas versões
corbusiana e inglesa.
Em todas as três fases o arquiteto demonstrou o esforço de combinar a inventividade
formal ao domínio da técnica construtiva. O entendimento da natureza dos componentes
estruturais fez com que eles pudessem ser explorados como componentes plásticos
plenamente associados aos espaços requeridos pelos programas dos edifícios. Além disso,
167
O Concurso para o Jóquei Clube, repercussão entre os arquitetos. Estado do Rio Grande, Porto Alegre, 02 jun. 1951.
CONSIDERAÇÕES FINAIS
267
Fresnedo demonstra entender a disposição simétrica da planta Beaux-Arts para edifícios
públicos ao traduzi-la em termos modernos, incorporando a idéia do percurso através de
condições espaciais distintas. Através da análise da produção de Fresnedo Siri como um todo
foram pontuados temas cuja identificação é fundamental para a compreensão das obras e
dos princípios compositivos do arquiteto. Dessa maneira, é possível entender as relações
entre os projetos e legitimar a originalidade da proposta arquitetônica de Fresnedo.
268
REFERÊNCIAS BIBLIOGRÁFICAS
1. ABREU, Silvio. A esquina do moderno. Porto Alegre: UFRGS, Arqtexto 5, 2004, p.
82-97.
2. ACOSTA Y LARA, Horácio. Artículos sobre tema de arquitectura. REVISTA
ARQUITECTURA SAU. Montevidéu. 1929. p.132-138.
3. BAROFFIO, Eugenio P. El progreso arquitectonico y sus manifestaciones em
Montevideo. SAU, Revista de Arquitectura, 1933.
4. BERNARDES, Dalton. Jaguaribe e Esplanada. O edifício de apartamentos
modernista e um novo paradigma habitacional em Porto Alegre. Dissertação de
mestrado do PROPAR defendida em 2003.
5. BORONAT, Yolanda J.; RISSO, Marta R. Román Fresnedo Siri um arquitecto
uruguayo. Montevidéu: Departamento de Publicaciones Universidad de la Republica
Ed, 1984.
6. BROWNE, Enrique. Otra arquitectura en America Latina. Barcelona: Gustavo Gili,
1998. 170 p.
7. BRUAND, Yves. Arquitetura contemporânea no Brasil. 3.ed. São Paulo:
Perspectiva, 1997. 398 p.
8. CALOVI PEREIRA, Cláudio. Os irmãos Roberto e a arquitetura Moderna no Rio De
Janeiro (1936-1954). Dissertação de mestrado PROPAR/UFRGS. Ano de obtenção:
1993.
BIBLIOGRAFIA
269
9. ______. Architectural Practice and the Planning of Minor Palaces in Renaissance
Italy: 1510-1570. Tese de doutorado. Ano de Obtenção: 1998.
10. ______. Pórtico clássico como terminal aéreo: os projetos dos Irmãos Roberto
para o aeroporto Santos Dumont. ARQTEXTO (UFRGS), Porto Alegre, RS, v. 3-4, p.
122-135, 2003.
11. ______. Teoria acadêmica e projeto arquitetônico: Julien Guadet e o Hôtel des
Postes de Paris. ARQTEXTO (UFRGS), Porto Alegre, v. 6, p. 84-93, 2005.
12. ______. Transparência e permeabilidade: diálogos entre tradição e modernidade
nos pisos térreos dos Irmãos Roberto no centro do Rio de Janeiro. Cadernos de
Arquitetura Ritter dos Reis, v. 5, p. 93-114, 2007.
13. CARRÉ, José P. Faculdade de Arquitetura de Montevidéu. Anais parte I.
Montevidéu,1938, p.99-110.
14. ______. Estudio de orientación profesional para los aspirantes a la carrera de
arquitectura. REVISTA ARQUITECTURA SAU, 198. Montevidéu. 1938. p.04-09.
15. COMAS, Carlos E. Precisões brasileiras: sobre um estado passado da arquitetura
e urbanismo modernos a partir dos projetos e obras de Lúcio Costa, Oscar
Niemeyer, MMMRoberto, Affonso Reidy, Jorge Moreira e cia, 1936-1945.
Universidade de Paris, Saint Dennis, Tese de doutorado defendida em dezembro de
2002.
16. COMAS, Carlos E.; CANEZ, Ana Paula; BOHER, Glênio. Arquiteturas Cisplatinas:
Román Fresnedo Siri e Eladio Dieste em Porto Alegre. Porto Alegre: Uniritter Ed.
2004.
BIBLIOGRAFIA
270
17. COMAS, Carlos E; ADRIÀ, Miguel. La casa latinoamericana moderna, Barcelona:
GG, 2004.
18. COMAS, Carlos E.; CANEZ, Ana Paula. El hipódromo de Cristal. ELARQA. Revista
bimestral de arquitectura y diseño. Montevidéu: Dos Puntos Ed. p. 50-59.
19. CRAVOTTO, Maurício. Faculdade de Arquitetura de Montevidéu. Anais parte I.
Montevidéu,1938. p.82-98.
20. CURTIS, William J.R. Modern architecture since 1900. London: Phaidon, 1999.
21. ESTEBAN, F. García. Obras del arquitecto Román Fresnedo Siri. SAU, Revista de
Arquitectura, nº242, Montevidéu, 1967. p.02-31.
22. FRAMPTON, Kenneth. Modern Architecture 1920-1945. Tokyo: A.D.A. Edita, 1983.
218 p.
23. GAETA, Júlio C. Entrevista sobre Luis Garcia Pardo. ELARQA. Revista bimestral de
arquitectura y diseño. Montevidéu: Dos Puntos Ed. Edição especial Luís Garcia Pardo,
2000.
24. ______. Enclave Urbana. ELARQA. Revista bimestral de arquitectura y diseño.
Montevidéu: Dos Puntos Ed. n.11. p.01-02.
25. GIEDION, Sigfried. Espaço, tempo e arquitetura, o desenvolvimento de uma Nova
Tradição. São Paulo: Martins Fontes, 2004.
26. GUTIERREZ, Ramon. Arquitectura y urbanismo em Iberoamerica. Rio de Janeiro:
Cátedra, 2002. 808 p.
BIBLIOGRAFIA
271
27. GONSALES, Célia Helena Castro. Cidade moderna sobre cidade tradicional:
movimento e expansão-parte 2: De sixto V a Le Corbusier. Arquitextos 292, abril
2005.
28. HITCHCOCK, Henry-Russell. Architecture : nineteenth and twentieth centuries.
[5th ed.] New Haven: Yale University, 1987.
29. LE CORBISIER, Precisões: sobre um estado presente da arquitetura e do
urbanismo. São Paulo: Cosac & Naify, 2004.
30. LE CORBUSIER, Por uma arquitetura. São Paulo: Perspectiva, 2006.
31. LOUSTAU, César J. Influencia de Francia en la arquitectura de Uruguay.
Montevideo: TRILCE,1995.
32. LOUSTAU, Daniel. Román Fresnedo Siri. Relaciones 240, maio, 2004, p. 02-03.
33. LUCCAS, Luís Enrique Haas. Arquitetura moderna brasileira em Porto Alegre: sob
o mito do “gênio artístico nacional”. Tese de doutorado, PROPAR/UFRGS, 2004,
p.04. (versão digital).
34. LUCCAS, Luís Enrique Haas. Antonio Bonet e a arquitetura do cone sul: o
exemplo de Punta Ballena. Arquitextos 087, agosto, 2007.
35. MINDLIN, Henrique E. Arquitetura Moderna no Brasil. Rio de Janeiro: Aeroplano,
1999.
36. MONTANER, Josep Maria. Despues del movimento moderno (2001). Coleção
Arquitetura ConTextos. Barcelona: Editorial Gustavo Gili, S.A.
37. ROWE,
Collin. Manierismo y arquitectura moderna y otros ensayos. 3.ed.
Barcelona: G. Gili, 1999.
BIBLIOGRAFIA
272
38. SEGAWA, Hugo. Arquiteturas no Brasil 1900-1990. São Paulo: Edusp, 1999.
BIBLIOGRAFIA
1. ALLEN, Harris C. En pro de la tradición. REVISTA ARQUITECTURA SAU.
Montevidéu. 1929. p.83-85.
2. ______. El arquitecto H. Acosta y Lara em la Facultad de Arquitectura.. REVISTA
ARQUITECTURA SAU. Montevidéu. 1929. p.157-162.
3. AMARAL REZENDE, Marco Antônio. Identidade visual: conceitos e práticas.
Revista Marketing, nº 65, São Paulo, Referência, 1979.
4. ANELLI, Renato L.S. Arquitetura e cidade na obra de Rino Levi. (Introdução e
capítulo 1). Tese de Doutorado, USP, 1995.
5. ARANA, Mariano; GARABELLI, Lorenzo. Arquitectura renovadora em Montevideo
1915-1940. Montevidéu: FCU, 1991.
6. ARNHEIM, R. La forma visual de la arquitectura. Barcelona, Gustavo Gilli, 1978
7. ARTIGAS, João Batista Vilanova. A função social do arquiteto. São Paulo. Nobel.
1989.
8. ANDREOLI, Elisabetta; FORTY,Adrian. Arquitetura Moderna Brasileira. Londres.
2004.
9. BANHAN, Reyner. Teoria e projeto na primeira era da máquina. São Paulo:
Perspectiva, 2006.
BIBLIOGRAFIA
273
10. BARACCHINI, Hugo. Algunos aspectos doctrinarios. REVISTA CEDA, 29.
Montevidéu. 1965. p.01-39.
11. BASCANS, Ramiro; MOURELLE, Rafael. Uruguay: panorama de su arquitectura
contemporânea. SUMMA, 27. Montevidéu. p.23-58.
12. BENEVOLO, Leonardo. História da Arquitetura Moderna. São Paulo: Perspectiva
AS, 1989.
13. BOGLIACCINI, Luis; PEREDA, Julia. Diálogos diacrônicos sincrônicos. ELARQA.
Revista bimestral de arquitectura y diseño. Montevidéu: Dos Puntos Ed. 2000 n.33, p.
18-21.
14. CAVALCANTI, Lauro. Quando o Brasil era moderno: guia de arquitetura 1928-
1960. RS. Aeroplano.2001. p. 380- 381.
15. COLQUHOUN, Alan. Modernidade e tradição Clássica: ensaios sobre arquitetura.
1980-1987. São Paulo: Cosac y Naify, 2004. p.07-197.
16. COSTA, Lúcio. Registro de uma vivencia. São Paulo: Empresa das Artes, 1995.
17. FÉLIZ, Loiva Otero. História e Memória: a problemática da pesquisa. 2ed. Passo
Fundo: UPF, 2004.
18. FULCO, Luis. Infraestructura para la educación: un aporte metodológico a través
de la experiencia. ELARQA. Revista bimestral de arquitectura y diseño. Montevidéu:
Dos Puntos Ed. n.17. p.01-27.
19. GARABELLI, Lorenzo; GENTILE, Alicia G. Historia de altura. ELARQA. Revista
bimestral de arquitectura y diseño. Montevidéu: Dos Puntos Ed. n.11. p.03-08.
BIBLIOGRAFIA
274
20. GONZALÉZ-ARNAO, Antonio. Arquitecturas modernas. www.fotoclub.org.uy, acesso
em abril de 2007.
21. GROPIUS, Walter. Bauhaus, nova arquitetura São Paulo. Perspectiva.1997.
22. LENZI, Ricardo Alvarez. Los arquitectos uruguayos. ELARQA. Revista bimestral de
arquitectura y diseño. Montevidéu: Dos Puntos Ed. n.24. p.7-11
23. LUCCHINI, Aurélio; QUEIRUGA, N. Conti. Arquitectura del Uruguay. REVISTA
ARQUITECTURA SAU, 175. Montevidéu. 1932. p.01-13.
24. MACHADO, Fernando dos Santos Rocha. Racionalismo Italiano (1926-1943) e o
fascismo: contradição ou convergência. Dissertação de Mestrado
PROPAR/UFRGS, Porto Alegre. 2004.
25. MARTINEZ, Alfonso Corona. Ensaio sobre o projeto. Brasília: UNB, 2000
26. MONTANER, Josep Maria. Arquitetura y critica. Barcelona: Gustavo Gili, 1999.
27. NUDELMAN, Jorge. El transcurso del tiempo. REVISTA ARQUITECTURA SAU, 260.
Montevidéu. 1990. p.06-25
28. RIBEIRO, Demétrio. La influencia uruguaya em la formación de los arquitectos
riograndenses. ELARQA. Revista bimestral de arquitectura y diseño. Montevidéu: Dos
Puntos Ed. n.33. p.6-21.
29. RÍOS, Lucas. A new uruguayan essence. ELARQA. Revista bimestral de arquitectura
y diseño. Montevidéu: Dos Puntos Ed. n.50. p.19-27.
30. ROSSO, Gonzáles (org.) “Montevideo, capital del Uruguay. Ciudad de cara al mar”,
4ed. Montevidéu: Tecnimas AS.
BIBLIOGRAFIA
275
31. SEGRE, Roberto. Ameaçado um ícone do modernismo uruguaio. A hospedaria e
restaurante Solana del Mar em Punta del Este. Portal Vitruvius, ano 6, vol. 8, março,
2006, p.156.
32. SPRECHMANN, Thomas; CAPANDEGUY, Diego; DANZA, Marcelo. Pintos Risso.
ELARQA. Revista bimestral de arquitectura y diseño. Montevidéu: Dos Puntos Ed.
Edição especial Walter Pintos Risso. 2001.
33. TERRA, Juan Pablo. La vivienda. REVISTA ARQUITECTURA SAU, 238. Montevidéu.
1964. p.19-22.
34. VENTURI, Robert. Complexidade e contradição em arquitetura. São Paulo: Martins
Fontes, 2004.
35. XAVIER, Alberto e MIZOGUCHI, Ivan. Arquitetura Moderna em Porto Alegre. São
Paulo: FAUFRGS/Pini, 1987. 399 p.
39. XAVIER, Alberto; organizador. Depoimento de uma geração - arquitetura moderna
brasileira. Editora Cosac & Naify 2003.
FONTES
276
FONTES
ARQUIVOS
1. Faculdade de Arquitetura da Universidad de la República, Instituto de pesquisa em
Teoria e História de Arquitetura. (Arq. Cecília Ortiz, Arq. Yolanda Boronat e Elena
Mazzini)
2. Faculdade de Arquitetura da Universidad de la República, Biblioteca. (Bibliotecária
Cristina Dias)
3. Prefeitura de Montevidéu. (Suzana)
4. Arquivo pessoal da família Fresnedo. (Norah A. Fresnedo e Helena A. Fresnedo).
5. Museu Hipólito de Porto Alegre.
6. Universidade Ritter dos Reis, Porto Alegre, UNIRITTER. (Paulo)
JORNAIS
1. Estado do Rio Grande, Porto Alegre, 02 jun. 1951, p.05.
2. Correio do Povo, Porto Alegre, 22 jun. 1952, p.11.
3. Correio do Povo, Porto Alegre, 26 jun. 1952, p.07.
FONTES
277
GUIAS E REVISTAS
7. Guia de Arquitectura y Urbanística de Montevideo, Montevidéu: Dos Puntos, 1996.
8. Guias ELARQA de arquitectura. Tomo I- Ciudad Vieja. Montevidéu: Dos Puntos,
1995.
9. Guias ELARQA de arquitectura. Tomo III- Centro. Montevidéu: Dos Puntos, 1996.
10. Guias ELARQA de arquitectura. Tomo V- Pocitos/Punta Carretas. Montevidéu: Dos
Puntos, 1996.
11. Guias ELARQA de arquitectura. Tomo VI- Punta Gorda. Montevidéu: Dos Puntos,
1999.
12. Guias ELARQA de arquitectura. Tomo VII- Art Déco. Montevidéu: Dos Puntos, 1999.
13. Guia FARQ. Montevidéu: Medios audiovisuals, 2003.
14. REVISTA ARQUITECTURA. Tomo X. Montevidéu,1924. p.203-215,222-225.
LISTA DE ILUSTRAÇÕES
278
LISTA DE ILUSTRAÇÕES
Figura 01: Román Fresnedo Siri (1903-1975), p.17.
Figura 02: Fresnedo e a família. Recepção na casa em Punta Ballena (s.d.), p.18.
Figura 03: Muro na casa de Punta Ballena. Na foto, as sobrinhas de Fresnedo, Norah e
Elena, p.19
Figura 04: Norah, Jamile, Maria de las Nieves (irmã de Fresnedo) e Elena, p.19.
Figura 05: Croqui, Fresnedo Siri, Egito, s.d, p.19.
Figura 06: Croqui, Fresnedo Siri, Egito, s.d, p.19.
Figura 07: Croqui, Fresnedo Siri, Egito, s.d, p.20.
Figura 08: Croqui, Fresnedo Siri, Catedral de Pisa, s.d, p. 20.
Figura 09: Croqui, Fresnedo Siri, Egito, s.d, p.20.
Figura 10: Croqui, Fresnedo Siri, Arquitetura Gótica, s.d, p.20.
Figura 11: Croqui tema de esportes, Fresnedo Siri, s.d, p.21.
Figura 12: Croqui tema de esportes, Fresnedo Siri, s.d, p.21.
Figura 13: Croqui, Fresnedo Siri, tema da figura humana, s.d, p.21.
Figura 14: Croqui abstrato, Fresnedo Siri, s.d, p.21.
Figura 15: Croqui abstrato, Fresnedo Siri, s.d, p.21.
Figura 16: Croqui abstrato, Fresnedo Siri, s.d, p.21.
Figura 17: Croqui abstrato, Fresnedo Siri, s.d., p.22
Figura 18: Croqui abstrato, Fresnedo Siri, s.d, p.22.
Figura 19: Croqui tema da figura humana, Fresnedo Siri, s.d, p.22.
Figura 20: Projeto do barco, Fresnedo Siri, s.d, 23.
Figura 21: Projeto do barco, Fresnedo Siri, s.d, p.23.
Figura 22: Pintura do barco, Fresnedo Siri, s.d, p.23.
Figura 23: Construção do barco, Fresnedo Siri, s.d, p.23.
Figura 24: Pavilhão do Paraguai, 1910, Buenos Aires, p.35.
Figura 25: Palácio Salvo, Palanti, 1922, Montevidéu, p.35.
Figura 26: Escola Experimental Malvin, Juan A. Scasso, 1928, Montevidéu, p.38.
Figura 27: Residência, Gregori Warchavchik, 1930, São Paulo, p.39.
Figura 28: Residência, Manuel Mujica, 1935, Caracas, p.39.
Figura 29: Residência, Antônio U. Vilar, 1940, Bueno Aires, p.40.
LISTA DE ILUSTRAÇÕES
279
Figura 30: Residência, Luís Barragán, 1947, México, p.40.
Figura 31: Residência, Julio Vilamajó, 1930, Montevidéu, p.40.
Figura 32: Residência, Alberto Prebish, 1937, Buenos Aires, p.40.
Figura 33: Faculdade de Engenharia da Universidad de la República de Montevidéu, Júlio
Vilamajó, 1938, Montevidéu, p.41.
Figura 34: Pousada em Solana del Mar, Bonet Castellana, 1946, Punta Ballena, p.41.
Figura 35: Edificio Suipacha, Bonet Castellana, 1939, Buenos Aires, p.41.
Figura 36: Edificio Suipacha, Bonet Castellana, 1939, Buenos Aires, p.41.
Figura 37: Palácio Salvo, Mario Palanti, 1922-1928, Montevidéu, p.46.
Figura 38: Edifício Él Mastil, Gonzalo Barrière e Rafael Ruano, 1934, Montevidéu, p.46.
Figura 39: Palácio Rinaldi, Gonzalo Barrière e Rafael Ruano, 1929, Montevidéu, p.46.
Figura 40: Edifício Centenário, Campos, Puente e Tournier, 1930, Montevidéu, p.46.
Figura 41: Edifício Tapié Vásquez Echeveste, 1934, Montevidéu, p.46.
Figura 42: Edifício Rambla, Maurício Cravotto, 1931, Montevidéu, p.46.
Figura 43: Edifício El Grillo, Pardo, 1959, Montevidéu, p.47.
Figura 44: Edifício Positano, Pardo, 1959, Montevidéu, p.47.
Figura 45: Edifício Chiloé, Pardo, 1958, Montevidéu, p.47.
Figura 46: Edifício El Pilar, Pardo, 1957, Montevidéu, p.47.
Figura 47: Edifício Santos Dumont, Risso, 1959, Punta del Este, p.47.
Figura 48: Edifício Pan-americano, Sichero, 1958, Montevidéu, p.47.
Figura 49: Edifício Malecón, Delfino e Ramos, 1964, Montevidéu, p.47.
Figura 50: Edifício Positos, Barreiro, 1951, Montevidéu, p.48.
Figura 51: Edifício Martí, Sichero, 1952, Montevidéu, p.48.
Figura 52: Punta Ballena, Uruguai, p.49.
Figura 53: Punta Ballena, Uruguai, p.49.
Figura 54: Punta Ballena, Uruguai, p.50.
Figura 55: Punta Ballena, Uruguai, p.50.
Figura 56: Parador Solana del Mar, Bonet Castellana, 1946, Punta Ballena, p.51.
Figura 57: Parador Solana del Mar, Bonet Castellana, 1946, Punta Ballena, p.51.
Figura 58: Destaque da localização das casas de Fresnedo Siri e das sobrinhas Albanell.
Punta Ballena, Uruguai, p.52.
Figura 59: Residência Fresnedo Siri, Implantação, 1938, Punta Ballena, p.53.
LISTA DE ILUSTRAÇÕES
280
Figura 60: Residência Fresnedo Siri, acesso principal, 1938, Punta Ballena, p.53.
Figura 61: Planta do térreo, residência Fresnedo Siri, Punta Ballena, 1938, p.55.
Figura 62: Estar, residência Fresnedo Siri, Punta Ballena, 1938, p.55.
Figura 63: Estar, residência Fresnedo Siri, Punta Ballena, 1938, p.55.
Figura 64: Planta do segundo pavimento, residência Fresnedo Siri, 1938, Punta Ballena, p.56.
Figura 65: Estar, Residência Fresnedo Siri, 1938, Punta Ballena, p.56.
Figura 66: Esquina com esquadrias abertas, Residência Fresnedo Siri, 1938, Punta Ballena,
p.56.
Figura 67: Vista da esquina envidraçada fechada, Residência Fresnedo Siri, 1938, Punta
Ballena, p.57.
Figura 68: Vista da esquina envidraçada, Residência Fresnedo Siri, 1938, Punta Ballena,
p.57.
Figura 69: Living, Residência Fresnedo Siri, 1938, Punta Ballena, p.57.
Figura 70: Vista do living, Residência Fresnedo Siri, 1938, Punta Ballena, p.57.
Figura 71: Residência Fresnedo Siri, 1938, Punta Ballena, p.58.
Figura 72: Detalhe pergolgado no acesso principal, Residência Fresnedo Siri, 1938, Punta
Ballena, p.58.
Figura 73: Muro curvo, Residência Fresnedo Siri, 1938, Punta Ballena, p.58.
Figura 74: Acesso principal, Residência Fresnedo Siri, 1938, Punta Ballena, p.58.
Figura 75: Esquina envidraçada, Residência Fresnedo Siri, 1938, Punta Ballena, p.58.
Figura 76: Residência Barreira, 1941, Montevidéu, p.59.
Figura 77: Residência Barreira, 1941, Montevidéu, p.59.
Figura 78: Residência Barreira, 1941, Montevidéu, p.60.
Figura 79: Residência Barreira, 1941, Montevidéu, p. 60.
Figura 80: Residência Barreira, 1941, Montevidéu, p.60.
Figura 81: Residência Mezzera, década de 40, Montevidéu, p.61.
Figura 82: Residência O. Martirena, década de 40, Montevidéu, p.62.
Figura 83: Residência O. Martirena, década de 40, Montevidéu, p.62.
Figura 84: Residência Florines (solução semelhante à residência Mezzera), 1961,
Montevidéu, p.62.
Figura 85: Localização, Residência Martirena e Dighiero, Montevidéu, 1946, p.63.
Figura 86: Residência Martirena e Dighiero, Montevidéu, 1946, p.64.
LISTA DE ILUSTRAÇÕES
281
Figura 87: Implantação, Residência Martirena e Dighiero, Montevidéu, 1946, p.65.
Figura 88: Implantação, Residência Martirena e Dighiero, Montevidéu, 1946, p.65.
Figura 89: Estar/jantar, residência Dighiero, Montevidéu, 1946, p.66.
Figura 90: Estar, residência Dighiero, Montevidéu, 1946, p.66.
Figura 91: Planta do térreo, residência Martirena e Dighiero, Montevidéu, 1946, p.67.
Figura 92: Planta do entrepiso, residência Martirena e Dighiero, 1946, Montevidéu, p.67.
Figura 93: Entrepiso, residência Dighiero, 1946. Montevidéu, p.67.
Figura 94: Planta do segundo pavimento, residência Martirena e Dighiero, 1946, Montevidéu,
p.68.
Figura 95: Corte AA’, residência Dighiero, 1946, Montevidéu, p.68.
Figura 96: Residência Martirena e Dighiero, 1946, Montevidéu, p.69.
Figura 97: Vista dos fundos, Residência Martirena e Dighiero, 1946, Montevidéu, p.70.
Figura 98: Residência Martirena e Dighiero, 1946, Montevidéu, p.70.
Figura 99: Residência Albanell Fresnedo, 1938, Punta Ballena, p.71.
Figura 100: Residência Albanell Fresnedo, 1938, Punta Ballena, p.71.
Figura 101: Vista da baía de Punta Ballena, p.71.
Figura 102: Vista da baía de Punta Ballena, p.71.
Figura 103: Robie House, Frank Lloyd Wright, 1910, p.72.
Figura 104: Casa Suntop, Frank Lloyd Wright, 1939, p.72.
Figura 105: Hipódromo de San Isidro, Acevedo, Becu e Moreno, 1935, Buenos Aires, p.73.
Figura 106: Hipódromo Cidade Jardim, Elisário Bahiana, 1936, São Paulo, p.73.
Figura 107: Hipódromo de Zarzuela, Torroja, 1935, Espanha, p.74.
Figura 108: Corte transversal, Hipódromo de Zarzuela, Torroja, 1935, Espanha, p.74.
Figura 109: Vista aérea, Hipódromo de Maroñas, Fresnedo Siri, 1938, Montevidéu, p.75.
Figura 110: Hipódromo de Maroñas, Fresnedo Siri, 1938, Montevidéu, p.75
Figura 111: Localização do Hipódromo de Maroñas, Fresnedo Siri, 1938, Montevidéu, p.75.
Figura 112: Vista aérea do Hipódromo de Maroñas, 1938, Montevidéu, p.76.
Figura 113: Implantação da primeira tribuna, Hipódromo de Maroñas, 1938, Montevidéu, p.76.
Figura 114: Hipódromo de Maroñas, 1938, Montevidéu, p.76.
Figura 115: Hipódromo de Maroñas, 1938, Montevidéu, p.77.
Figura 116: Detalhe do bloco envidraçado, Hipódromo de Maroñas, 1938, Montevidéu, p.77.
Figura 117: Planta do térreo, Hipódromo de Maroñas, 1938, Montevidéu, p.78.
LISTA DE ILUSTRAÇÕES
282
Figura 118: Térreo, Hipódromo de Maroñas, 1938, Montevidéu, p.78
Figura 119: Térreo, Hipódromo de Maroñas, 1938, Montevidéu, p.78.
Figura 120: Planta do pavimento intermediário, Hipódromo de Maroñas, 1938, Montevidéu,
79.
Figura 121: Fachada frontal, Hipódromo de Maroñas, 1938, Montevidéu, p.79
Figura 122: Pavimento intermediário, Hipódromo de Maroñas, 1938, Montevidéu, p.79.
Figura 123: Pavimento intermediário, Hipódromo de Maroñas, 1938, Montevidéu, p.79.
Figura 124: Planta do pavimento superior, Hipódromo de Maroñas, 1938, p.80.
Figura 125: Fachada posterior, Hipódromo de Maroñas, Montevidéu, 1938, p.80.
Figura 126: Pavimento superior, Hipódromo de Maroñas, Montevidéu, 1938, p.80.
Figura 127: Fachada posterior, Hipódromo de Maroñas, Montevidéu, 1938, p.80.
Figura 128: Tribunas populares, Hipódromo de Maroñas, 1938, Montevidéu, p.81.
Figura 129: Tribuna popular, Hipódromo de Maroñas, 1938, Montevidéu, p.81.
Figura 130: Tribuna popular, Hipódromo de Maroñas, 1938, Montevidéu, p.81.
Figura 131: Hipódromo de Maroñas, 1938, Montevidéu, p.81.
Figura 132: Esquema compositivo do Hipódromo de Maroñas, 1938, Montevidéu, p.82.
Figura 133: Esquema compositivo do Hipódromo de Maroñas, 1938, Montevidéu, p.82.
Figura 134: Esquema compositivo do Hipódromo de Maroñas, 1938, Montevidéu, p.82.
Figura 135: Corte AB, Hipódromo de Maroñas, 1938, Montevidéu, p.83.
Figura 136: Corte CD Hipódromo de Maroñas, 1938, Montevidéu, p. 83.
Figura 137: Hipódromo de Maroñas, 1938, Montevidéu, p.83.
Figura 138: Hipódromo de Maroñas, 1938, Montevidéu, p.83.
Figura 139: Hipódromo de Maroñas, 1938, Montevidéu, p.85.
Figura 140: Hipódromo de Maroñas, 1938, Montevidéu, p.85.
Figura 141: Implantação do projeto vendedor do Concurso. Fresnedo Siri e Mario Muccinelli,
1938, p.87.
Figura 142: Croqui do projeto vencedor do concurso, Fresnedo Siri e Mário Muccinelli, 1938,
p.87.
Figura 143: Localização, primeiro terreno para o projeto concurso, 1938, p.88.
Figura 144: Prancha de apresentação no concurso Fresnedo Siri e Mario Muccinelli. 1938,
p.88.
Figura 145: Perspectiva do pátio, Fresnedo Siri e Mário Muccinelli, 1938, p.88.
LISTA DE ILUSTRAÇÕES
283
Figura 146: Perspectiva, Ayax. Fresnedo Siri e Mário Muccinelli, 1938, p.89.
Figura 147: Perspectiva, Ayax. Fresnedo Siri e Mário Muccinelli, 1938, p.89.
Figura 148: Perspectiva interna, Ayax. Fresnedo Siri e Mário Muccinelli, 1938, p.89.
Figura 149: Faculdade de Arquitetura, 1938, p.90.
Figura 150: Localização, Faculdade de Arquitetura, projeto definitivo, 1938, p.91.
Figura 151: Esquema de composição do projeto AYAX, p.93.
Figura 152: Esquema de composição do projeto definitivo, p.93.
Figura 153: Esquema de composição do projeto definitivo, p.93.
Figura 154: Faculdade de Arquitetura, 1938, Montevidéu, p.93.
Figura 155: Planta do térreo, Faculdade de Arquitetura, 1938, p.96.
Figura 156: Fachada Bulevar Artigas, Faculdade de Arquitetura, 1938, p.96.
Figura 157: Acesso, Faculdade de Arquitetura, 1938, p.96.
Figura 158: Vestíbulo, Faculdade de Arquitetura, 1938, p.96.
Figura 159: Planta do segundo pavimento, Faculdade de Arquitetura, 1938, Montevidéu, p.97.
Figura 160: Biblioteca, Faculdade de Arquitetura, 1938, Montevidéu, p.97.
Figura 161: Mezanino, segundo pavimento, Faculdade de Arquitetura, 1938, Montevidéu,
p.97.
Figura 162: Foyer, Faculdade de Arquitetura, 1938, Montevidéu, p.98.
Figura 163: Foyer, Faculdade de Arquitetura, 1938, Montevidéu, p.98.
Figura 164: Circulação vertical, Faculdade de Arquitetura, 1938, Montevidéu, p.96.
Figura 165: Mezanino, Faculdade de Arquitetura, 1938, Montevidéu, p.98.
Figura 166: Pátio interno, Faculdade de Arquitetura, 1938, Montevidéu, p.99.
Figura 167: Colunas salas de aula. Faculdade de Arquitetura, 1938, Montevidéu, p.99
Figura 168: Colunas salas de aula. Faculdade de Arquitetura, 1938, Montevidéu, p.100.
Figura 169: Colunas ala posterior e barra curva da biblioteca. Faculdade de Arquitetura, 1938,
Montevidéu, p.100.
Figura 170: Colunas ala posterior, Faculdade de Arquitetura, 1938, Montevidéu, p.100.
Figura 171: Pátio interno, Faculdade de Arquitetura, 1938, Montevidéu, p.100.
Figura 172: Pátio interno, Faculdade de Arquitetura, 1938, Montevidéu, p.101.
Figura 173: Pátio interno, Faculdade de Arquitetura, 1938, Montevidéu, p.101.
Figura 174: Vista noturna, Pátio interno, Faculdade de Arquitetura, 1938, Montevidéu, p.101.
LISTA DE ILUSTRAÇÕES
284
Figura 175: Detalhe colunas, Pátio interno, Faculdade de Arquitetura, 1938, Montevidéu,
p.101.
Figura 176: Faculdade de Arquitetura, 1938, Montevidéu, p.102.
Figura 177: Vista da esquina, Faculdade de Arquitetura, 1938, Montevidéu, p.102.
Figura 178: Fachada leste, Bulevar Artigas, Faculdade de Arquitetura, 1938, Montevidéu,
p.103.
Figura 179: Faculdade de Arquitetura, 1938, Montevidéu, p.103.
Figura 180: Faculdade de Arquitetura, 1938, Montevidéu, p.103.
Figura 181: Faculdade de Arquitetura, 1938, Montevidéu, p. 103.
Figura 182: Plano de urbanização do Arroio Seco, 1943, Montevidéu, p.105.
Figura 183: Croqui do plano de urbanização do Arroio Seco, 1943, Montevidéu, p.106.
Figura 184: Croqui do plano de urbanização do Arroio Seco, 1943, Montevidéu, p.106.
Figura 185: Projeto da cidade universitária do Rio de Janeiro, maquete de Marcello Piacentini
e Vitório Morpurgo, 1937, p.106.
Figura 186: Colocação da pedra fundamental, 1946, Montevidéu, p.107.
Figura 187: Dois estudos de anteprojeto. UTE, 1943, p.108.
Figura 188: Localização, UTE, 1943, Montevidéu, p.109.
Figura 189: UTE, 1943, Montevidéu, p.109.
Figura 190: Planta do térreo, UTE, 1943, p.112.
Figura 191: Acesso, UTE, 1943, p.112.
Figura 192: Núcleo central UTE, 1943, p.112.
Figura 193: Planta do mezanino, UTE, 1943, Montevidéu, p.113.
Figura 194: Núcleo elevadores, UTE, 1943, Montevidéu, p.113.
Figura 195: Escada, UTE, 1943, Montevidéu, p.113.
Figura 196: Planta do pavimento tipo, UTE, 1943, Montevidéu, p.115.
Figura 197: Painéis em pastilha, UTE, 1943, Montevidéu, p.115.
Figura 198: Painéis decorativos, UTE, 1943, Montevidéu, p.115.
Figura 199: Térreo, UTE, 1943, Montevidéu, p.115.
Figura 200: Detalhe do forro, Térreo, UTE, 1943, Montevidéu, p.115.
Figura 201: Térreo, UTE, 1943, Montevidéu, p.115.
Figura 202: Térreo, UTE, 1943, Montevidéu, p.115.
Figura 203: Mural Yepes, Térreo, UTE, 1943, Montevidéu, p.116.
LISTA DE ILUSTRAÇÕES
285
Figura 204: Porta do salão de atos, UTE, 1943, Montevidéu, p.117.
Figura 205: Porta do salão de atos, UTE, 1943, Montevidéu, p.117.
Figura 206: Maquete, UTE, 1943, Montevidéu, p.118.
Figura 207: Maquete, UTE, 1943, Montevidéu, p.118.
Figura 208: Croqui de Pierre Fossey, UTE, 1943, Montevidéu, p.118.
Figura 209: Construção. UTE, 1943, Montevidéu, p.119.
Figura 210: UTE, 1943, Montevidéu, p.119.
Figura 211: Montantes verticais, UTE, 1943, Montevidéu, p.119.
Figura 212: Acesso principal, UTE, 1943, Montevidéu, p.120.
Figura 213: Acesso principal, UTE, 1943, Montevidéu, p.120.
Figura 214: Corte UTE, 1943, Montevidéu, p.120.
Figura 215: Fachada, UTE, 1943, Montevidéu, p.121.
Figura 216: Pilar externo, UTE, 1943, Montevidéu, p.121.
Figura 217: Hospital Americano, 1946, Montevidéu, p.124.
Figura 218: Hospital Americano, 1946, Montevidéu, p.124.
Figura 219: Localização, Hospital Americano, 1946, Montevidéu, p.124
Figura 220: Implantação, Hospital Americano, 1946, Montevidéu, p.125.
Figura 221: Acesso principal, Hospital Americano, 1946, Montevidéu, p.126.
Figura 222: Acesso principal, Hospital Americano, 1946, Montevidéu, p.126.
Figura 223: Acesso principal, Hospital Americano, 1946, Montevidéu, p.126.
Figura 224: Recepção, Hospital Americano, 1946, p.127.
Figura 225: Vista do pátio, Hospital Americano, 1946, p.127.
Figura 226: Pátio, Hospital Americano, 1946, p.127.
Figura 227: Pátio, Hospital Americano, 1946, p.127.
Figura 228: Circulação vertical, Hospital Americano, 1946, p.127.
Figura 229: Vista do pátio, com detalhe da circulação vertical envidraçada, da ala de serviço,
Hospital Americano, 1946, Montevidéu, p.128.
Figura 230: Detalhes, respectivamente: cornija, volume vertical e painel de alvenaria, anexo
no térreo, escada e cobertura de acesso com painel em alvenaria. Hospital Americano, 1946,
Montevidéu, p. 128.
Figura 231: Planta do térreo, Hospital Americano, 1946, Montevidéu, p.129.
Figura 232: Recepção, Hospital Americano, 1946, Montevidéu, p.129.
LISTA DE ILUSTRAÇÕES
286
Figura 233: Vista externa da escada, Hospital Americano, 1946, Montevidéu, p.129.
Figura 234: Planta do primeiro pavimento, Hospital Americano, 1946, Montevidéu, p.130.
Figura 235: Planta do segundo pavimento, Hospital Americano, 1946, Montevidéu, p.131.
Figura 236: Planta do terceiro pavimento, Hospital Americano, 1946, Montevidéu, p.132.
Figura 237: Planta do quarto pavimento, Hospital Americano, 1946, Montevidéu, p.133.
Figura 238: Planta do quinto pavimento, Hospital Americano, 1946, Montevidéu, p.134.
Figura 239: Vista do pátio interno, Hospital Americano, 1946, Montevidéu, p.135.
Figura 240: Hospital Americano, 1946, Montevidéu, p.135.
Figura 241: Hospital Americano, 1946, Montevidéu, p.136.
Figura 242: Loja Schocken, Erich Mendelsohn, 1928, p.136.
Figura 243: Corte, detalhe faixas horizontais (floreiras) e coroamento, Hospital Americano,
1946, Montevidéu, p.136.
Figura 244: Vista do pátio interno, Hospital Americano, 1946, Montevidéu, p.137.
Figura 245: Vista externa da escada, Hospital Americano, 1946, Montevidéu, p.137.
Figura 246: Vista externa da escada, Hipódromo de Maroñas, 1938, Montevidéu, p.137.
Figura 247: Hipódromo do Cristal, 1951, Porto Alegre, p.138.
Figura 248: Hipódromo do Cristal, 1951, Porto Alegre, p.138.
Figura 249: Esquema da ocupação em faixas longitudinais, Hipódromo do Cristal, 1951, Porto
Alegre, p.141.
Figura 250: Implantação do complexo. Planta apresentada no concurso, Hipódromo do
Cristal, 1951, Porto Alegre, p.141.
Figura 251: Implantação do complexo. Planta apresentada no projeto definitivo, Hipódromo do
Cristal, 1951, p.142.
Figura 252: Implantação do complexo. Planta atual do que foi construído, Hipódromo do
Cristal, 1951, p.142.
Figura 253: Vista geral dos pavilhões, Hipódromo do Cristal, 1951, Porto Alegre, p.142.
Figura 254: Vista geral dos pavilhões, Hipódromo do Cristal, 1951, Porto Alegre, p.142.
Figura 255: Esquema de implantação coletiva da Villa Savoye publicado em Precisões, 1929,
Le Corbusier, p.143.
Figura 256: Plano residencial modernista, Scharoun e Gropius, Berlim, 1929, p.143.
Figura 257: Tribuna social, Hipódromo do Cristal, 1951, Porto Alegre, p.144.
LISTA DE ILUSTRAÇÕES
287
Figura 258: Detalhe da placa, Tribuna especial, Hipódromo do Cristal, 1951, Porto Alegre,
p.144.
Figura 259: Esquema compositivo, Hipódromo do Cristal, 1951, Porto Alegre, p.145.
Figura 260: Esquema compositivo, Hipódromo do Cristal, 1951, Porto Alegre, p.145.
Figura 261: Esquema compositivo, Hipódromo do Cristal, 1951, Porto Alegre, p.145.
Figura 262: Vista sobre a pista, Hipódromo do Cristal, 1951, Porto Alegre, 146.
Figura 263: Vista sobre a pista, detalhe das floreiras, Hipódromo do Cristal, 1951, Porto
Alegre, p.146.
Figura 264: Desenho abstrato, Fresnedo Siri, s.d, p.147.
Figura 265: Detalhe do vidro, Hipódromo do Cristal, 1951, Porto Alegre, p.147.
Figura 266: Detalhe da estrutura do vidro, brises e tirantes, Hipódromo do Cristal, 1951,
p.148.
Figura 267: Detalhe interno da estrutura do vidro, Hipódromo do Cristal, 1951, p.148.
Figura 268: Tribuna especial, Hipódromo do Cristal, 1951, Porto Alegre, p.148.
Figura 269: Parede curva dos sanitários, Tribuna especial, Hipódromo do Cristal, 1951, Porto
Alegre, p.148.
Figura 270: Hipódromo do Cristal, 1951, Porto Alegre, p.149.
Figura 271: Vista posterior, tribuna dos profissionais, Hipódromo do Cristal, 1951, Porto
Alegre, p.149.
Figura 272: Vista posterior, tribuna social, Hipódromo do Cristal, 1951, Porto Alegre, p.150.
Figura 273: Vista posterior, tribuna dos profissionais, Hipódromo do Cristal, 1951, Porto
Alegre, p.150.
Figura 274: Vista posterior, tribuna social, Hipódromo do Cristal, 1951, Porto Alegre, p.150.
Figura 275: Detalhe da estrutura do vidro, brises e tirantes, Hipódromo do Cristal, 1951, Porto
Alegre, p.150.
Figura 276: Tribuna social, Hipódromo do Cristal, 1951, Porto Alegre, p.151.
Figura 277: Tribuna dos profissionais, Hipódromo do Cristal, 1951, Porto Alegre, p.151.
Figura 278: Paddock e casa de apostas, Hipódromo do Cristal, 1951, Porto Alegre, p.151.
Figura 279: Paddock e casa de apostas, Hipódromo do Cristal, 1951, Porto Alegre, p.151.
Figura 280: Tribuna social, Hipódromo do Cristal, 1951, Porto Alegre, p.151.
Figura 281: Tribuna social, Hipódromo do Cristal, 1951, Porto Alegre, p.151.
Figura 282: Hipódromo do Cristal, 1951, Porto Alegre, 152.
LISTA DE ILUSTRAÇÕES
288
Figura 283: Tribuna especial, Hipódromo do Cristal, 1951, Porto Alegre, p.152.
Figura 284: Vista noturna, Tribuna especial, Hipódromo do Cristal, 1951, Porto Alegre, p.154.
Figura 285: Planta do térreo (anteprojeto), Tribuna especial, Hipódromo do Cristal, 1951,
Porto Alegre, p.155.
Figura 286: Planta do térreo (projeto executivo), Tribuna especial, Hipódromo do Cristal,
1951, Porto Alegre, p.155.
Figura 287: Tribuna especial, Hipódromo do Cristal, 1951, Porto Alegre, p.155.
Figura 288: Tribuna especial, Hipódromo do Cristal, 1951, Porto Alegre, p.155.
Figura 289: Planta do segundo pavimento, Tribuna especial, Hipódromo do Cristal, 1951,
Porto Alegre, p.156.
Figura 290: Tribuna especial, Hipódromo do Cristal, 1951, Porto Alegre, p.156
Figura 291: Tribuna especial, Hipódromo do Cristal, 1951, Porto Alegre, p.156.
Figura 292: Tribuna especial, Hipódromo do Cristal, 1951, Porto Alegre, p.156.
Figura 293: Tribuna especial, Hipódromo do Cristal, 1951, Porto Alegre, p.156.
Figura 294: Planta do terceiro pavimento (anteprojeto), Tribuna especial, Hipódromo do
Cristal, 1951, Porto Alegre, p.157.
Figura 295: Planta do terceiro pavimento, Tribuna especial, Hipódromo do Cristal, 1951, Porto
Alegre, p.157.
Figura 296: Terceiro pavimento, Tribuna especial, Hipódromo do Cristal, 1951, Porto Alegre,
p.157.
Figura 297: Terceiro pavimento, Tribuna especial, Hipódromo do Cristal, 1951, Porto Alegre,
p.157.
Figura 298: Planta do quarto pavimento, Tribuna especial, Hipódromo do Cristal, 1951, Porto
Alegre, p.158.
Figura 299: Planta do quinto pavimento, Tribuna especial, Hipódromo do Cristal, 1951, Porto
Alegre, p.158.
Figura 300: Quarto pavimento, Tribuna especial, Hipódromo do Cristal, 1951, Porto Alegre,
p.158.
Figura 301: Quinto pavimento, Tribuna especial, Hipódromo do Cristal, 1951, Porto Alegre, p.
158.
Figura 302: Corte AA, tribuna especial, Hipódromo do Cristal, 1951, Porto Alegre, p.159.
Figura 303: Vista do térreo, tribuna especial, Hipódromo do Cristal, 1951, Porto Alegre, p.159.
LISTA DE ILUSTRAÇÕES
289
Figura 304: Vista da rampa, tribuna especial, Hipódromo do Cristal, 1951, Porto Alegre, p.159.
Figura 305: Esquema da projeção de acesso da tribuna social, Hipódromo do Cristal, 1951,
Porto Alegre, p.161.
Figura 306: Planta do térreo, Tribuna social, Hipódromo do Cristal, 1951, Porto Alegre, p.163.
Figura 307: Planta do segundo pavimento, Tribuna social, Hipódromo do Cristal, 1951, Porto
Alegre, p.163.
Figura 308: Térreo, Hipódromo do Cristal, 1951, Porto Alegre, p.163.
Figura 309: Segundo pavimento, Hipódromo do Cristal, 1951, Porto Alegre, p.163.
Figura 310: Planta do terceiro pavimento, Tribuna social, Hipódromo do Cristal, 1951, Porto
Alegre, 164.
Figura 311: Planta do quarto pavimento, Tribuna social, Hipódromo do Cristal, 1951, Porto
Alegre, p.164.
Figura 312: Terceiro pavimento, Tribuna social, Hipódromo do Cristal, 1951, Porto Alegre,
p.164.
Figura 313: Terceiro pavimento, Tribuna social, Hipódromo do Cristal, 1951, Porto Alegre,
p.164.
Figura 314: Quarto pavimento, Tribuna social, Hipódromo do Cristal, 1951, Porto Alegre,
p.165.
Figura 315: Planta do quinto pavimento, Tribuna social, Hipódromo do Cristal, 1951, Porto
Alegre, p.165.
Figura 316: Quinto pavimento, Tribuna social, Hipódromo do Cristal, 1951, Porto Alegre,
p.165.
Figura 317: Quinto pavimento, Tribuna social, Hipódromo do Cristal, 1951, Porto Alegre,
p.165.
Figura 318: Quinto pavimento, Tribuna social, Hipódromo do Cristal, 1951, Porto Alegre,
p.165.
Figura 319: Corte AA, Tribuna social, Hipódromo do Cristal, 1951, Porto Alegre, p.166.
Figura 320: Vista do térreo, tribuna social, Hipódromo do Cristal, 1951, Porto Alegre, p.166.
Figura 321: Vista do térreo, tribuna social, Hipódromo do Cristal, 1951, Porto Alegre, p.166.
Figura 322: Vista do 3º pavimento, tribuna social, Hipódromo do Cristal, 1951, Porto Alegre,
p.166.
LISTA DE ILUSTRAÇÕES
290
Figura 323: Vista do terceiro pavimento, tribuna social, Hipódromo do Cristal, 1951, Porto
Alegre, p.167.
Figura 324: Vista do terceiro pavimento, tribuna social, Hipódromo do Cristal, 1951, Porto
Alegre, p.167.
Figura 325: Detalhe do vidro, tribuna social, Hipódromo do Cristal, 1951, Porto Alegre, p.165.
Figura 326: Detalhe do vidro e vista da pista, salão social, tribuna social, Hipódromo do
Cristal, 1951, Porto Alegre, p.167.
Figura 327: Detalhe da escada, terceiro pavimento, tribuna social, Hipódromo do Cristal,
1951, Porto Alegre, p.167.
Figura 328: Detalhe da escada, terceiro pavimento, tribuna social, Hipódromo do Cristal,
1951, Porto Alegre, p.167.
Figura 329: Planta do subsolo, tribuna dos profissionais, Hipódromo do Cristal, 1951, Porto
Alegre, p.169.
Figura 330: Planta do térreo, tribuna dos profissionais, Hipódromo do Cristal, 1951, Porto
Alegre, p.169.
Figura 331: Vista das escadas, tribuna dos profissionais, Hipódromo do Cristal, 1951, Porto
Alegre, p.169.
Figura 332: Vista do térreo, tribuna dos profissionais, Hipódromo do Cristal, 1951, Porto
Alegre, 169.
Figura 333: Planta do segundo pavimento, tribuna dos profissionais, Hipódromo do Cristal,
1951, Porto Alegre, p.170.
Figura 334: Planta do terceiro pavimento, tribuna dos profissionais, Hipódromo do Cristal,
1951, Porto Alegre, p.170.
Figura 335: Sala da imprensa, tribuna dos profissionais, Hipódromo do Cristal, 1951, Porto
Alegre, p.170.
Figura 336: Corte AA, tribuna dos profissionais, Hipódromo do Cristal, 1951, p.171.
Figura 337: Escada/hall, tribuna dos profissionais, Hipódromo do Cristal, 1951, p.171.
Figura 338: Detalhe esquadria e brise, tribuna dos profissionais, Hipódromo do Cristal, 1951,
p.171.
Figura 339: Planta pavimento superior, Pavilhão Brasileiro, 1938/39, feira mundial em Nova
Iorque, p.173.
Figura 340: Vista interior, Pavilhão Brasileiro, 1938/39, feira mundial em Nova Iorque, p.173.
LISTA DE ILUSTRAÇÕES
291
Figura 341: Pampulha, Casa de baile, Niemeyer, 1942-43, Belo Horizonte, p.173.
Figura 342: Pampulha, Cassino, Niemeyer, 1942-43, Belo Horizonte, p.173.
Figura 343: Acesso principal, Tribuna social, Hipódromo do Cristal, 1951, Porto Alegre, p.174.
Figura 344: Tribuna social, Hipódromo do Cristal, 1951, Porto Alegre, p.174.
Figura 345: Vista sobre a pista, tribuna especial, Hipódromo do Cristal, 1951, Porto Alegre,
p.175.
Figura 346: Detalhe dos tirantes de aço, Hipódromo do Cristal, 1951, Porto Alegre, p.175.
Figura 347: Hipódromo do Cristal, 1951, Porto Alegre, p.175.
Figura 348: Hipódromo do Cristal, 1951, Porto Alegre, p.175.
Figura 349: Edifício Esplanada, 1952, Porto Alegre, p.176.
Figura 350: Localização, Edifício Esplanada, 1952, Porto Alegre, p.177.
Figura 351: Localização, Edifício Esplanada, 1952, Porto Alegre. Planta encaminhada na
construção do Bloco D, p.177.
Figura 352: Edifício Residencial Irmãos Iochpe. Planta do pavimento térreo. Fernando Corona
e Luis Fernando Corona, anteprojeto 1951, p.179.
Figura 353: Edifício Residencial Irmãos Iochpe. Planta do pavimento tipo. Fernando Corona e
Luis Fernando Corona, anteprojeto 1951, p.179.
Figura 354: Edifício Residencial Irmãos Iochpe. Planta do pavimento tipo 2. Fernando Corona
e Luis Fernando Corona, anteprojeto 1951, p. 180.
Figura 355: Croqui Parque Guinle, Lúcio Costa, 1948, Rio de Janeiro, p.181.
Figura 356: Implantação modernista, Lúcio Costa, 1956, Brasília, p. 181.
Figura 357: Edifício ABI, Irmãos Roberto, 1936, Rio de Janeiro, p.182.
Figura 358: Edifício IRB, Irmãos Roberto, 1936, Rio de Janeiro, p.182.
Figura 359: Divisão dos blocos, Edifício Esplanada, 1952, Porto Alegre, p.183.
Figura 360: Planta do térreo, anteprojeto, Edifício Esplanada, 1952, Porto Alegre, p.186.
Figura 361: Planta do térreo, projeto executivo, Edifício Esplanada, 1952, Porto Alegre, p.186.
Figura 362: Bloco B, Portaria, Edifício Esplanda, 1952, Porto Alegre, p.186.
Figura 363: Bloco B, Portaria, Edifício Esplanda, 1952, Porto Alegre, p.186.
Figura 364: Bloco C, lojas, Edifício Esplanda, 1952, Porto Alegre, p.187.
Figura 365: Esquema estrutural, Edifício Esplanda, 1952, Porto Alegre, p.187.
Figura 366: Subsolo, Edifício Esplanda, 1952, Porto Alegre, p.187.
Figura 367: Subsolo, Edifício Esplanda, 1952, Porto Alegre, p.187.
LISTA DE ILUSTRAÇÕES
292
Figura 368: Planta do pavimento tipo, Edifício Esplanda, 1952, Porto Alegre, p.188.
Figura 369: Planta do pavimento tipo (com variação), Edifício Esplanada, 1952, Porto Alegre,
p.188.
Figura 370: Apartamento Bloco B (andar com variação), Edifício Esplanada, 1952, Porto
Alegre, p.188.
Figura 371: Apartamento Bloco B (andar com variação), Edifício Esplanada, 1952, Porto
Alegre, p.188.
Figura 372: Apartamento Bloco B (andar com variação), Edifício Esplanada, 1952, Porto
Alegre, p.189.
Figura 373: Apartamento Bloco B (andar com variação), Edifício Esplanada, 1952, Porto
Alegre, p.189.
Figura 374: Bloco B, circulação, Edifício Esplanada, 1952, Porto Alegre, p.189.
Figura 375: Bloco A, circulação, Edifício Esplanada, 1952, Porto Alegre, p.189.
Figura 376: Planta de cobertura, Edifício Esplanada, 1952, Porto Alegre, p.191.
Figura 377: Salão de festas Bloco B, Edifício Esplanada, 1952, Porto Alegre, p.191.
Figura 378: Cobertura, Edifício Esplanada, 1952, Porto Alegre, p.191.
Figura 379: Edifício Esplanada, 1952, Porto Alegre, p.192.
Figura 380: Edifício Esplanada, 1952, Porto Alegre, p.192.
Figura 381: Vista Ramiro Barcelos, Edifício Esplanada, 1952, Porto Alegre, p.193.
Figura 382: Vista Ramiro Barcelos, Edifício Esplanada, 1952, Porto Alegre, p.193.
Figura 383: Vista Avenida Independência, Edifício Esplanada, 1952, Porto Alegre, p.193.
Figura 384: Vista Avenida Independência, Edifício Esplanada, 1952, Porto Alegre, p.193.
Figura 385: Edifício Esplanada, 1952, Porto Alegre, p.194.
Figura 386: Vista posterior, Edifício Esplanada, 1952, Porto Alegre, p.194.
Figura 387: Edifício Esplanada, 1952, Porto Alegre, p.195.
Figura 388: Edifício Esplanada, 1952, Porto Alegre, p.195.
Figura 389: Edifício Esplanada, 1952, Porto Alegre, p.196.
Figura 390: Edifício Esplanada, 1952, Porto Alegre, p.196.
Figura 391: Cobertura, Edifício Esplanada, 1952, Porto Alegre, p.196.
Figura 392: Cobertura, Edifício Esplanada, 1952, Porto Alegre, p.196.
Figura 393: Cobertura, Edifício Esplanada, 1952, Porto Alegre, p.196.
Figura 394: Cobertura, Edifício Esplanada, 1952, Porto Alegre, p.196.
LISTA DE ILUSTRAÇÕES
293
Figura 395: Fachada, Av. Independência, Edifício Esplanada, 1952, Porto Alegre, p.197.
Figura 396: Setor de fachada, Rua Ramiro Barcelos, Edifício Esplanada, 1952, Porto Alegre,
p.197.
Figura 397: Grelha, Edifício Esplanada, 1952, Porto Alegre, p.197.
Figura 398: Grelha, Edifício Esplanada, 1952, Porto Alegre, p.197.
Figura 399: Área da urbanização Rincón de Bonete,1938, Uruguai, p.199.
Figura 400: Aproximação da área, Rincón de Bonete, 1938, Uruguai, p.199.
Figura 401: Croqui da urbanização Rincón de Bonete, 1938, Uruguai, p.200.
Figura 402: Croqui da urbanização Rincón de Bonete, 1938, Uruguai, p.200.
Figura 403: Plano da urbanização do Arroio Seco, 1943/1944, Montevidéu, p.200.
Figura 404: Croqui da urbanização do Arroio Seco, 1943/1944, Montevidéu, p. 200.
Figura 405: Projeto implantação, Termas do Arapey, 1956, Uruguai, p.201.
Figura 406: Projeto implantação, Termas do Arapey, 1956, Uruguai, p.201.
Figura 407: Localização Vila do Cerro, Montevidéu, p.202.
Figura 408: Localização do Cerro Norte, Vila do Cerro, 1956, Montevidéu, p.203.
Figura 409: Implantação, Cerro Norte, Vila do Cerro, 1956, Montevidéu, p.204.
Figura 410: Módulos básicos, Cerro Norte, Vila do Cerro, 1956, Montevidéu, p.206.
Figura 411: Unidades completas (variações de dois dormitórios), Cerro Norte, Vila do Cerro,
1956, Montevidéu, p.206.
Figura 412: Unidades completas (variações de dois dormitórios), Cerro Norte, Vila do Cerro,
Montevidéu, 1956, p. 207.
Figura 413: Unidades completas (variações de três dormitórios), Cerro Norte, Vila do Cerro,
Montevidéu, 1956, p.207.
Figura 414: Croquis de Le Corbusier publicados em Precisões (1929), durante as
conferências feitas em Buenos Aires, p.208.
Figura 415: Croquis de Le Corbusier publicados em Precisões (1929), durante as
conferências feitas em Buenos Aires, p.208.
Figura 416: Localização, Cerro Sul, Vila do Cerro, 1956, Montevidéu, p.209.
Figura 417: Implantação, Cerro Sul, Vila do Cerro, 1956, Montevidéu, p.210.
Figura 418: Bloco do Cerro Sul, Vila do Cerro, 1956, Montevidéu, p.211.
Figura 419: Planta do térreo, Cerro Sul, Vila do Cerro, 1956, Montevidéu, p.213.
Figura 420: Planta do pavimento tipo, Cerro Sul, Vila do Cerro, 1956, Montevidéu, p.213.
LISTA DE ILUSTRAÇÕES
294
Figura 421: Croqui interno, Cerro Sul, 1956, Montevidéu, p.214.
Figura 422: Cerro Sul, Vila do Cerro, 1956, Montevidéu, p.214.
Figura 423: Cerro Sul, Vila do Cerro, 1956, Montevidéu, p.214.
Figura 424: Croqui vista externa, Vila do Cerro, 1956, Montevidéu, p.215.
Figura 425: Cerro Sul, Vila do Cerro, 1956, Montevidéu, p.215.
Figura 426: Cerro Sul, Vila do Cerro, 1956, Montevidéu, p.215.
Figura 427: Vista do térreo, Cerro Sul, Vila do Cerro, 1956, Montevidéu, p.216.
Figura 428: Vista do térreo, Cerro Sul, Vila do Cerro, 1956, Montevidéu, p.216.
Figura 429: Cerro Sul, Vila do Cerro, 1956, Montevidéu, p.216.
Figura 430: Hospital da Mooca, 1957, São Paulo, p.218.
Figura 431: Localização, Hospital da Mooca, 1957, São Paulo, p.219.
Figura 432: Implantação, Hospital da Mooca, 1957, São Paulo, p.220.
Figura 433: Planta do térreo, Hospital da Mooca, 1957, São Paulo, p.221.
Figura 434: Acesso principal, Hospital da Mooca, 1957, São Paulo, p.221.
Figura 435: Detalhe da base e do corpo na esquina (chanfro na base), Hospital da Mooca,
1957, São Paulo, p.221.
Figura 436: Planta do pavimento tipo, Hospital da Mooca, 1957, São Paulo, p.222.
Figura 437: Hospital da Mooca, 1957, São Paulo, p.223.
Figura 438: Acesso principal marcado pelas colunas, Hospital da Mooca, 1957, São Paulo,
p.223.
Figura 439: Térreo, Hospital da Mooca, 1957, São Paulo, p.223.
Figura 440: Detalhe coroamento, Hospital da Mooca, 1957, São Paulo, p.224.
Figura 441: Edifício CHLA, 1959, Montevidéu, p.225.
Figura 442: Localização, Edifício CHLA, 1959, Montevidéu, p.226.
Figura 443: Hall, Edifício CHLA, 1959, Montevidéu, p.226.
Figura 444: Hall, Edifício CHLA, 1959, Montevidéu, p.224.
Figura 445: Planta do subsolo. Edifício CHLA, 1959, Montevidéu, p.227.
Figura 446: Planta do térreo. Edifício CHLA, 1959, Montevidéu, p.227.
Figura 447: Planta do primeiro pavimento. Edifício CHLA, 1959, Montevidéu, p.227.
Figura 448: Planta do 2º ao 5º pavimento. Edifício CHLA, 1959, Montevidéu, p.228.
Figura 449: Planta do 6º pavimento. Edifício CHLA, 1959, Montevidéu, p.228.
Figura 450: Planta do 7º pavimento. Edifício CHLA, 1959, Montevidéu, p.228.
LISTA DE ILUSTRAÇÕES
295
Figura 451: Escada, Edifício CHLA, 1959, Montevidéu, p.229.
Figura 452: Poço de luz interno, Edifício CHLA, 1959, Montevidéu, p.229.
Figura 453: Hall de cada pavimento com elevadores. Edifício CHLA, 1959, p.230.
Figura 454: Corredor e área de espera, Edifício CHLA, 1959, Montevidéu, p.230.
Figura 455: Circulação entre os escritórios, Edifício CHLA, 1959, Montevidéu, p.230.
Figura 456: Escritório de fundos, Edifício CHLA, 1959, Montevidéu, p.231.
Figura 457: Escritório de fundos, Edifício CHLA, 1959, Montevidéu, p.231.
Figura 458: Escritório de frente, Edifício CHLA, 1959, Montevidéu, p.231.
Figura 459: Escritório de frente, Edifício CHLA, 1959, Montevidéu, p.231.
Figura 460: Luminária, Edifício CHLA, 1959, Montevidéu, p.232.
Figura 461: Sala de reuniões, Edifício CHLA, 1959, Montevidéu, p.232.
Figura 462: Mobiliário do escritório, Edifício CHLA, 1959, Montevidéu, p. 232.
Figura 463: Modelo de cadeira, Edifício CHLA, 1959, Montevidéu, p.232.
Figura 464: Térreo, Edifício CHLA, 1959, Montevidéu, p. 233.
Figura 465: Térreo, Edifício CHLA, 1959, Montevidéu, p.233.
Figura 466: Edifício CHLA, 1959, Montevidéu, p.233.
Figura 467: Detalhe das molduras, Edifício CHLA, 1959, Montevidéu, p.233.
Figura 468: Corte transversal, Edifício CHLA, 1959, Montevidéu, p.234.
Figura 469: Fachada, Edifício CHLA, 1959, Montevidéu, p.234.
Figura 470: Sede da OPS Washington, 1961, Estados Unidos, p.234.
Figura 471: Localização, Sede da OPS Washington, 1961, Estados Unidos, p.236.
Figura 472: Croqui, Sede da OPS Washington, 1961, Estados Unidos, p.237.
Figura 473: Croqui, Sede da OPS Washington, 1961, Estados Unidos, p.237.
Figura 474: Maquete, Sede da OPS Washington, 1961, Estados Unidos, p.237.
Figura 475: Implantação, Sede da OPS Washington, 1961, Estados Unidos, p.238.
Figura 476: Vista da Avenida Virginia, Sede da OPS Washington, 1961, Estados Unidos,
p.238.
Figura 477: Vista em construção, Sede da OPS Washington, 1961, Estados Unidos, p.238.
Figura 478: Vista aérea, Sede da OPS Washington, 1961, Estados Unidos, p.240.
Figura 479: Sede da OPS Washington, 1961, Estados Unidos, p. 240.
Figura 480: Estrutura do volume cilíndrico, Sede da OPS Washington, 1961, p.240.
LISTA DE ILUSTRAÇÕES
296
Figura 481: Térreo com vista dos espelhos d’água e chafarizes, Sede da OPS Washington,
1961, Estados Unidos, p.240.
Figura 482: Térreo com vista dos espelhos d’água e chafarizes, Sede da OPS Washington,
1961, Estados Unidos, p.240.
Figura 483: Estrutura do volume cilíndrico, Sede da OPS Washington, 1961, Estados Unidos,
p.241.
Figura 484: Estrutura do volume cilíndrico, Sede da OPS Washington, 1961, Estados Unidos,
p.241.
Figura 485: Térreo do volume da barra, Sede da OPS Washington, 1961, Estados Unidos,
p.242.
Figura 486: Detalhe dos montantes na barra curva, Sede da OPS Washington, 1961, Estados
Unidos, p.242.
Figura 487: Térreo do volume da barra, Sede da OPS Washington, 1961, Estados Unidos,
p.242.
Figura 488: Sede da OPS Washington, 1961, Estados Unidos, p.240.
Figura 489: Detalhe do coroamento da barra curva, Sede da OPS Washington, 1961, Estados
Unidos, p.243.
Figura 490: Contraponto entre a grelha vertical e alveolar, Sede da OPS Washington, 1961,
Estados Unidos, p.243.
Figura 491: Contraponto entre a grelha vertical e alveolar, Sede da OPS Washington, 1961,
Estados Unidos, p.243.
Figura 492: Planta do térreo, Sede da OPS Washington, 1961, p.245.
Figura 493: Croqui do térreo do cilindro, Sede da OPS Washington, 1961, p.245.
Figura 494: Térreo do cilindro, Sede da OPS Washington, 1961, p.245.
Figura 495: Planta baixa do 2º pavimento. Sede da OPS Washington, 1961, Estados Unidos,
p.246.
Figura 496: Croqui sala de congresso. Sede da OPS Washington, 1961, Estados Unidos,
p.246.
Figura 497: Croqui sala de delegados. Sede da OPS Washington, 1961, Estados Unidos,
p.246.
Figura 498: Corte, Sede da OPS Washington, 1961, Estados Unidos, p.247.
LISTA DE ILUSTRAÇÕES
297
Figura 499: Segundo pavimento, hall elevadores, Sede da OPS Washington, 1961, Estados
Unidos, p.247.
Figura 500: Segundo pavimento, circulação, Sede da OPS Washington, 1961, Estados
Unidos, p.247.
Figura 501: Sala de reuniões para 75 pessoas, Sede da OPS Washington, 1961, Estados
Unidos, p.248.
Figura 502: Sala de reuniões para 100 pessoas, Sede da OPS Washington, 1961, Estados
Unidos, p.248.
Figura 503: Biblioteca. Sede da OPS Washington, 1961, Estados Unidos, p.248.
Figura 504: Cabine de tradução, Sala de reuniões para 75 pessoas, Sede da OPS
Washington, 1961, Estados Unidos, p.249.
Figura 505: Sala do diretor, 2º pavimento. Sede da OPS Washington, 1961, Estados Unidos,
p.249.
Figura 506: Escritório. Sede da OPS Washington, 1961, Estados Unidos, p.249.
Figura 507: Estar. Sede da OPS Washington, 1961, Estados Unidos, p.249.
Figura 508: Escada, Sede da OPS Washington, 1961, Estados Unidos, p.250.
Figura 509: Escada, Sede da OPS Washington, 1961, Estados Unidos, p.250.
Figura 510: Sala de Congressos, Sede da OPS Washington, 1961, Estados Unidos, p.251.
Figura 511: Detalhe do painel em madeira e da bancada, Sala de Congressos, Sede da OPS
Washington, 1961, Estados Unidos, p.251.
Figura 512: Poltronas com equipamento de apoio, Sala de Congressos, Sede da OPS
Washington, 1961, Estados Unidos, p.251.
Figura 513: Hotel da Pampulha, Niemeyer, 1942, Belo Horizonte, p.253.
Figura 514: Hotel da Pampulha, Niemeyer, 1942, Belo Horizonte, p.253.
Figura 515: Vista do acesso principal, Sede da OPS, Brasília, 1971, p.254.
Figura 516: Vista aérea, Sede da OPS, Brasília, 1971, p.254.
Figura 517: Localização, Sede da OPS, Brasília, 1971, p.255.
Figura 518: Localização, Sede da OPS, Brasília, 1971, p.256.
Figura 519: Maquete, Sede da OPS, Brasília, 1971, p.257.
Figura 520: Maquete, Sede da OPS, Brasília, 1971, p.257.
Figura 521: Sede da OPS, Brasília, 1971, p.258.
Figura 522: Implantação, Sede da OPS, Brasília, 1971, p.259.
LISTA DE ILUSTRAÇÕES
298
Figura 523: Planta baixa do térreo, Sede da OPS, Brasília, 1971, p.261.
Figura 524: Salão do conselho, Sede da OPS, Brasília, 1971, p.261.
Figura 525: Salão do conselho, Sede da OPS, Brasília, 1971, p.261.
Figura 526: Planta baixa do 1º pavimento, Sede da OPS, Brasília, 1971, p.262.
Figura 527: Planta baixa do 2º pavimento, Sede da OPS, Brasília, 1971, p.263.
CRÉDITO DAS ILUSTRAÇÕES
299
CRÉDITOS DAS ILUSTRAÇÕES
ABREU, Silvio. A esquina do moderno. Porto Alegre: UFRGS, Arqtexto 5, 2004.
350
ALBANELL FRESNEDO, Norah; ALBANELL FRESNEDO, Elena. (arquivos da família
cedidos a autora Jamile M.S.Weizenmann)
01, 02, 03, 05, 06, 07, 08, 09, 10, 11, 12, 13, 14, 15, 16, 17, 18, 19, 20, 21, 22, 23, 52, 53,
54, 55, 58, 60, 73, 74, 99, 100, 101, 102, 264, 399, 400, 401, 402, 403, 404, 405, 406,
421, 424, 470, 472, 473, 477, 478, 479, 509, 519, 520, 521
BERNARDES, Dalton. Jaguaribe e Esplanada. O edifício de apartamentos modernista
e um novo paradigma habitacional em Porto Alegre. Ano de obtenção: 2003.
360, 376
BORONAT, Yolanda J.; RISSO, Marta R. Román Fresnedo Siri um arquitecto
uruguayo. Montevidéu: Departamento de Publicaciones Universidad de la Republica Ed,
1984.
127, 409, 417, 432, 433, 436, 483, 484
BROWNE, Enrique. Outra arquitectura en América Latina. Barcelona: Gustavo Gili,
1988.
CRÉDITO DAS ILUSTRAÇÕES
300
26, 27, 28,29, 30, 31, 32, 33
CALOVI, Ricardo.
247, 248, 257, 258, 262, 263, 265, 266, 268, 269, 271, 272, 273, 274, 275, 277, 278, 279,
282, 283, 288, 296, 297, 300, 304, 305, 312, 313, 314, 316, 321, 322, 323, 324, 332, 335,
343, 344, 345, 346, 348, 349, 364, 367, 370, 371, 372, 373, 374, 375, 380, 381, 382, 383,
384, 385, 387, 388, 390, 391, 392
CALOVI PEREIRA, Cláudio.
357, 358, 379, 385, 386, 389
COMAS, Carlos E.; CANEZ, Ana Paula; BOHER, Glênio. Arquiteturas Cisplatinas:
Román Fresnedo Siri e Eladio Dieste em Porto Alegre. Porto Alegre: Uniritter Ed. 2004.
105, 106, 107, 108, 109, 110, 249, 250, 251, 252, 253, 254, 284, 285, 294
COMAS, Carlos E. Precisões brasileiras: sobre um estado passado da arquitetura e
urbanismo modernos a partir dos projetos e obras de Lúcio Costa, Oscar Niemeyer,
MMMRoberto, Affonso Reidy, Jorge Moreira e cia, 1936-1945. Universidade de Paris,
Saint Dennis, Tese de doutorado defendida em dezembro de 2002.
513, 514
DORS, Juliano
286, 289, 295, 298, 299, 302, 307, 310, 311, 315, 319, 329, 330, 333, 334, 336
CRÉDITO DAS ILUSTRAÇÕES
301
DREBES, Fernanda Jung
361, 368, 369
GIEDION, Sigfried. Espaço, tempo e arquitetura, o desenvolvimento de uma Nova
Tradição. São Paulo: Martins Fontes, 2004.
104
GUTIERREZ, Ramón. Arquitectura y urbanismo em Iberoamerica. Rio de Janeiro:
Catedra, 2002.
24
IMASATO, Takayoshi
430, 434, 435, 437, 438, 439, 440
LE CORBISIER, Precisões: sobre um estado presente da arquitetura e do urbanismo.
São Paulo: Cosac & Naify, 2004.
255, 414, 415
SZEKUT, Alessandra Rambo
352, 353, 354
WEIZENMANN, Jamile M.S.
04, 25, 37, 38, 39, 40, 42, 44, 46, 47, 49, 50, 51, 61, 64, 78, 79, 80, 87, 88, 91, 92, 94, 95,
96, 98, 114, 115, 116, 118, 119, 122, 123, 126, 128, 129, 130, 131, 132, 133, 134, 137,
CRÉDITO DAS ILUSTRAÇÕES
302
138, 139, 140, 151, 152, 153, 156, 157, 158, 160, 161, 162, 163, 164, 165, 166, 167, 168,
169, 170, 172, 173, 177, 178, 179, 181, 186, 189, 191, 192, 194, 195, 196, 197, 198, 199,
200, 201, 202, 203, 208, 209, 210, 211, 212, 213, 216, 218, 220, 221, 222, 223, 224, 225,
226, 227, 228, 229, 230, 231, 232, 233, 234, 235, 236, 237, 238, 239, 240, 241, 244, 245,
246, 259, 260, 261, 267, 270, 276, 280, 281, 287, 290, 291, 292, 293, 301, 302, 303, 305,
308, 309, 317, 318, 320, 325, 326, 327, 328, 331, 337, 338, 347, 359, 362, 363, 365, 366,
377, 378, 393, 394, 410, 411, 412, 413, 418, 419, 420, 422, 423, 425, 426, 428, 441, 443,
444, 445, 446, 447, 448, 449, 450, 451, 452, 453, 454, 455, 456, 457, 458, 459, 464, 465,
466, 467, 468, 469, 475, 492, 495, 523, 526, 527
Faculdade de Arquitetura da Universidad de la República, de Montevidéu, Instituto de
pesquisa em Teoria e História de Arquitetura
59, 62, 63, 65, 66, 67, 68, 69, 70, 71, 72, 75, 77, 81, 82, 83, 84, 86, 89, 90, 93, 97, 141,
142, 144, 145, 146, 147, 148, 176, 180, 182, 183, 184, 187, 204, 205, 206, 207, 243, 427,
429, 460, 461, 462, 463, 474, 476, 480, 481, 482, 485, 486, 487, 488, 489, 490, 491, 493,
494, 496, 497, 498, 499, 500, 501, 502, 503, 504, 505, 506, 507, 508, 510, 511, 512, 518,
522
Guias ELARQA de Arquitectura
41, 43, 45, 48, 155, 159
Prefeitura de Montevidéu
113, 117, 120, 121, 124, 125, 135, 136, 188, 190, 193, 214, 215
CRÉDITO DAS ILUSTRAÇÕES
303
Universidade Ritter dos Reis, UNIRITTER, Porto Alegre
351, 395, 396
ARTIGOS E ENDEREÇOS ELETRÔNICOS - Internet
AZEVEDO, P.O. Alexander S. Buddeüs: a passagem do cometa pela Bahia (1).
Arquitextos 081.01, 2007. Disponível em:
<http://www.vitruvius.com.br/arquitextos/arq081/arq081_01.asp>. Acesso em junho de
2008.
242
COMAS, Carlos E. O encanto da contradição: Conjunto da Pampulha, de Oscar
Niemeyer. Arquitextos 004, 2000. Disponível em
<http://www.vitruvius.com.br/arquitextos/arq000/esp011e.asp>. Acesso em junho de 2008.
339, 340, 341, 342
GONSALES, Célia H.C. Cidade moderna sobre cidade tradicional: movimento e
expansão – parte 2 (1). Arquitextos 059, 2005. Disponível em:
http://www.vitruvius.com.br/arquitextos/arq000/esp292.asp>. Acesso em janeiro de 2008.
256
LAUANDE, Francisco. O uso do pilotis em Brasília: do protótipo ao estereótipo. Minha
cidade, ano 07, vol. 03, 2006. Disponível em:
http://www.vitruvius.com.br/minhacidade/mc171/mc171.asp. Acesso em junho de 2008.
355, 356
CRÉDITO DAS ILUSTRAÇÕES
304
LUCCAS, Luís Enrique Haas. Antonio Bonet e a arquitetura do cone sul: o exemplo de
Punta Ballena (1). Arquitextos 087, 2007. Disponível em:
<http://www.vitruvius.com.br/arquitextos/arq000/esp426.asp>. Acesso em junho de 2008.
35, 36, 56, 57
<www.americano.com.uy>
217, 218, 230
<www.flick.com.br>
48, 149, 154, 174, 175, 176, 397, 398
<www.google.com/maps>
85, 111, 143, 150, 219, 407, 408, 416, 430, 431, 442, 471, 517
<www.maroñas.uy>
112
<www.opas.org.br>
515, 516, 524, 525
<http://www.schwartzman.org.br/simon/capanema/quadro32.jpg>
185
<http://z.about.com/d/architecture/1/0/H/3/style-prairie-170.jpg>
103
<http://www.noticiasarquitectura.info/temp/noticias/imagenes/bonet-solana-del-mar.GIF>
34
Livros Grátis
( http://www.livrosgratis.com.br )
Milhares de Livros para Download:
Baixar livros de Administração
Baixar livros de Agronomia
Baixar livros de Arquitetura
Baixar livros de Artes
Baixar livros de Astronomia
Baixar livros de Biologia Geral
Baixar livros de Ciência da Computação
Baixar livros de Ciência da Informação
Baixar livros de Ciência Política
Baixar livros de Ciências da Saúde
Baixar livros de Comunicação
Baixar livros do Conselho Nacional de Educação - CNE
Baixar livros de Defesa civil
Baixar livros de Direito
Baixar livros de Direitos humanos
Baixar livros de Economia
Baixar livros de Economia Doméstica
Baixar livros de Educação
Baixar livros de Educação - Trânsito
Baixar livros de Educação Física
Baixar livros de Engenharia Aeroespacial
Baixar livros de Farmácia
Baixar livros de Filosofia
Baixar livros de Física
Baixar livros de Geociências
Baixar livros de Geografia
Baixar livros de História
Baixar livros de Línguas
Baixar livros de Literatura
Baixar livros de Literatura de Cordel
Baixar livros de Literatura Infantil
Baixar livros de Matemática
Baixar livros de Medicina
Baixar livros de Medicina Veterinária
Baixar livros de Meio Ambiente
Baixar livros de Meteorologia
Baixar Monografias e TCC
Baixar livros Multidisciplinar
Baixar livros de Música
Baixar livros de Psicologia
Baixar livros de Química
Baixar livros de Saúde Coletiva
Baixar livros de Serviço Social
Baixar livros de Sociologia
Baixar livros de Teologia
Baixar livros de Trabalho
Baixar livros de Turismo