Download PDF
ads:
Universidade Federal do Rio de Janeiro
A CULTURA DA TRANSFORMAÇÃO:
O PAÇO E O TRIBUNAL
Simone Guerra Pereira
2007
ads:
Livros Grátis
http://www.livrosgratis.com.br
Milhares de livros grátis para download.
ii
Universidade Federal do Rio de Janeiro
A CULTURA DA TRANSFORMAÇÃO:
O PAÇO E O TRIBUNAL
Simone Guerra Pereira
Dissertação de Mestrado apresentada ao
Programa de Pós-graduação em
Arquitetura, Faculdade de Arquitetura e
Urbanismo, da Universidade Federal do Rio
de Janeiro, como parte dos requisitos
necessários à obtenção do título de Mestre
em Ciências em Arquitetura, área de
concentração em Gestão e restauração
de espaços preservados.
Orientadora: Profª. Dra. Cêça Guimaraens
Rio de Janeiro
28 de Fevereiro de 2007
ads:
Pereira, Simone Guerra.
A cultura da transformação: o Paço e o tribunal/ Simone
Guerra Pereira. – Rio de Janeiro: UFRJ/ FAU, 2007.
xiv, 189 p. il., 21cm
Orientadora: Cêça Guimaraens
Dissertação (mestrado) – UFRJ/ PROARQ/ Programa de Pós-
Graduação em Arquitetura, 2007.
Referências Bibliográficas: f. 178-189
1. Patrimônio arquitetônico. 2. Museus e centros culturais.
3. Adequação de uso. 4. Paço Imperial. 5. Centro Cultural da
Justiça Federal. 6. Rio de Janeiro. I. Pereira, Simone Guerra. II.
Universidade Federal do Rio de Janeiro, Faculdade de Arquitetura
e Urbanismo, Programa de Pós-Graduação em Arquitetura. III.
Título.
iii
A CULTURA DA TRANSFORMAÇÃO:
O PAÇO E O TRIBUNAL
Autor: Simone Guerra Pereira
Orientadora: Profª. Dra. Cêça Guimaraens
Dissertação de Mestrado submetida ao Programa de Pós-graduação
em Arquitetura, Faculdade de Arquitetura e Urbanismo, da Universidade
Federal do Rio de Janeiro - UFRJ, como parte dos requisitos necessários à
obtenção do título de Mestre em Ciências em Arquitetura, área de
concentração em Gestão e restauração de espaços preservados.
Aprovada por:
_______________________________
Presidente, Prof. Dra. Cêça Guimaraens
_______________________________
Prof. Dra. Evelyn Furquim Werneck Lima
_______________________________
Prof. Dra. Rosina Trevisan Martins Ribeiro
Rio de Janeiro
28 de Fevereiro de 2007
iv
AGRADECIMENTOS
Para que esta dissertação se concretizasse foi fundamental a
colaboração de muitas pessoas, para as quais cabem meus sinceros
agradecimentos.
A Cêça Guimaraens, professora e orientadora, pela assistência que
me deu, redirecionando e corrigindo a estrutura deste trabalho.
Aos professores Gustavo-Rocha Peixoto, Rosina Trevisan Martins Ribeiro,
Elizabeth Rodrigues de Campos Martins e Rosana Najjar, cujo conteúdo das
disciplinas em muito me auxiliou na pesquisa para a dissertação.
A Vânia Polly pelo apoio e incentivo durante o desenvolvimento desta
dissertação.
A minha querida turma “Sambaqui”, e em especial a cada uma das
conchas que a constituem: Alexandre Vidal, André Coelho, Cláudia Baima,
Isabel Rocha, Marisa Hoirisch, Paula Merlino, Pryscila Árias e Taísa de
Carvalho, que tornaram esta jornada uma maravilhosa aventura.
Ao meu primo Fábio Vieira Guerra, por todas as valiosas reportagens
pesquisadas no arquivo do jornal O Globo.
E, em especial, a Fernanda Barros, amiga de muitos anos, por todo
carinho, apoio e compreensão, além das caronas para o Fundão e da ajuda
inestimável na montagem e na revisão de textos, produção de desenhos e
principalmente por recuperar, inúmeras vezes, meus arquivos perdidos
devido aos problemas sempre apresentados pelos computadores nas horas
que mais precisamos.
Não poderia deixar de agradecer a toda minha família, em especial a
minha mãe, irmã e afilhados: Bruna, Isabella e Gabriel, por compreenderem
a minha inevitável ausência em função deste trabalho.
E a todos aqueles que acreditaram em mim o meu “muito obrigado.”
v
RESUMO
A CULTURA DA TRANSFORMAÇÃO:
O PAÇO E O TRIBUNAL
Autor: Simone Guerra Pereira
Orientadora: Profª. Dra. Cêça Guimaraens
Resumo da Dissertação de Mestrado submetida ao Programa de Pós-
graduação em Arquitetura, Faculdade de Arquitetura e Urbanismo, da
Universidade Federal do Rio de Janeiro - UFRJ, como parte dos requisitos
necessários à obtenção do título de Mestre em Ciências em Arquitetura.
O tema central desta dissertação é a adequação de uso do
patrimônio arquitetônico para fins culturais, enfocando especialmente a
compatibilização da preservação da identidade arquitetônica em edifícios
históricos face à complexidade programática dos centros de arte
contemporânea. Para tanto, neste trabalho se estabelece a análise
comparativa dos edifícios do Paço Imperial e do Centro Cultural da Justiça
Federal com base em aspectos considerados nas teorias de restauro e nas
cartas patrimoniais. Além disso, para a análise arquitetônica se utiliza
temática específica de museus verificando-se elementos constitutivos da
forma e outras características essenciais desses edifícios.
Palavras-chave: Patrimônio arquitetônico, museus e centros culturais,
adequação de uso, Paço Imperial, Centro Cultural da Justiça Federal, Rio de
Janeiro.
Rio de Janeiro
28 de Fevereiro de 2007
vi
ABSTRACT
A CULTURA DA TRANSFORMAÇÃO:
O PAÇO E O TRIBUNAL
Autor: Simone Guerra Pereira
Orientadora: Profª. Dra. Cêça Guimaraens
Abstract da Dissertação de Mestrado submetida ao Programa de Pós-
graduação em Arquitetura, Faculdade de Arquitetura e Urbanismo, da
Universidade Federal do Rio de Janeiro - UFRJ, como parte dos requisitos
necessários à obtenção do título de Mestre em Ciências em Arquitetura.
The central subject of this dissertation is the adequacy of use of the
architectural heritage for cultural ends, especially focusing the compatibility
of the preservation of the identity architectural in historical buildings opposite
to the programmatical complexity of the art centers contemporary. For in
such a way, in this work establishes the comparative analysis of the buildings
of the Paço Imperial and of the Centro Cultural da Justiça Federal on the
basis of considered aspects in the theories of restore and the patrimonial
letters. Moreover, for the analysis architectural uses thematic specific of
museums verifying itself constituent elements of the form and other essential
characteristics of these buildings.
Key-words: Architectural heritage, museums and cultural centers, adequacy
of use, Paço Imperial, Centro Cultural da Justiça Federal, Rio de Janeiro.
Rio de Janeiro
28 de Fevereiro de 2007
SUMÁRIO
Página
INTRODUÇÃO ...........................................................................................................01
Capítulo I: SOBRE O PATRIMÔNIO ARQUITETÔNICO ..........................................06
Sobre o patrimônio e a arquitetura .................................................................08
Identidade Arquitetônica ............................................................................12
Valor ...............................................................................................................14
Valores Rememorativos ....................................................................16
Valores de contemporaneidade .....................................................18
Uso ..................................................................................................................21
Sobre o desenvolvimento das formas de adequação de uso ....................25
A finalidade expositiva e cultural ....................................................................30
Limitações para reutilização em edifícios históricos ....................................37
Capítulo II: SOBRE A ANÁLISE DA FORMA ARQUITETÔNICA.................................42
Sobre o conceito de arquitetura ......................................................................44
Forma, espaço e ordem ...................................................................................49
Outras definições de “Arquitetura” ............................................................51
Sobre a análise ...................................................................................................54
A forma ..........................................................................................................54
Os métodos ...................................................................................................56
A forma exterior e o espaço interno ...............................................................59
A forma exterior, a composição e o partido ............................................60
A arquitetura de museus .............................................................................66
Repertório tipológico .........................................................................67
Ordenação espacial .........................................................................70
Relação forma-discurso ....................................................................71
Materialidade de fundo ....................................................................72
Iluminação ..........................................................................................73
viii
Capítulo III: O ESTUDO SOBRE O PAÇO E O TRIBUNAL .........................................75
A cultura e a cidade do Rio de Janeiro ..........................................................77
A função do Paço e do CCJF ....................................................................80
Paço Imperial .....................................................................................................82
A cronologia das transformações arquitetônicas .................................. 83
Discursos sobre o restauro do Paço Imperial ............................................88
O projeto de restauração .................................................................90
Sobre o método .................................................................................92
A definição da identidade: “a imagem barroca” ........................93
O pórtico da fachada .......................................................................98
A intervenção notio de serviço ................................................101
A sala central ....................................................................................103
O salão da clarabóia ......................................................................104
Definição de uso ..............................................................................105
Considerações sobre a restauração .............................................108
Descrição do edifício do Paço Imperial ..................................................110
Uso atual e programa ................................................................................113
Programa ..........................................................................................116
Intervenções contemporâneas ................................................................118
Centro Cultural da Justiça Federal ................................................................121
Breve histórico .............................................................................................122
O projeto de restauração .........................................................................124
Diretrizes do projeto .........................................................................126
Intervenções realizadas ..................................................................127
O teatro .............................................................................................131
Clarabóia ..........................................................................................132
Descrição do edifício do Centro Cultural da Justiça Federal ..............134
Uso Atual e Programa ................................................................................136
Programa ..........................................................................................139
ix
Capítulo IV: O PAÇO E O TRIBUNAL: ANÁLISE COMPARATIVA .........................141
Análise comparativa dos temas da teoria de Restauro .............................143
A permanência da identidade ................................................................143
Análise da permanência da identidade ......................................145
Inclusão contemporânea ..........................................................................149
Os elementos ....................................................................................149
Climatização ....................................................................................150
Iluminação ........................................................................................151
Acessibilidade ..................................................................................151
Análise comparativa dos temas de arquitetura de museus ......................154
Implantação ...............................................................................................155
Repertório tipológico .................................................................................160
Ordenação espacial e relação forma-discurso .....................................164
Materialidade de fundo ............................................................................168
Iluminação ...................................................................................................170
CONCLUSÕES ..............................................................................................174
BIBLIOGRAFIA ..............................................................................................178
x
ÍNDICE DE ILUSTRAÇÕES
Capítulo I
Fig. 1.01 – Staatsgalerie, Stuttgart, foto, 2004. Em: http://de.wikipedia.org/ wiki
/ Staatsgalerie_ Stuttgart
Fig. 1.02 – Solar do Unhão, foto, 2000. Em: http://ibahia.globo.com/
xi
Fig. 2.09 - Museu do crescimento ilimitado, planta. CHING, 1998, p. 258.
Fig. 2.10 – Museu de arte de Dusseldorf, planta. CLARK, 1997, p. 231.
Fig. 2.11 – Museu de Arte Romana, foto. Em: www.vitruvius.com.br
Fig. 2.12Museu Municipal Abteiberg, foto. Em: www.arcoweb.com.br
Fig. 2.13 – Museu do Louvre, foto. Em: pt.wikipedia.org
Fig. 2.14 – Museu Van Gogh, Planta. Em: pt.wikipedia.org
Fig. 2.15 – Pinacoteca de Murique, foto. Em: pt.wikipedia.org
Fig. 2.16 – Clore Gallery, foto. Em: www.bluffton.edu/~sullivanm
/clore/clore.html
Fig. 2.17 – Clore Gallery, foto. Em: www.bluffton.edu/~sullivanm
/clore/clore.html
Fig. 2.18 – Dulwich Gallery, foto. Em: www. dulwichpicturegallery.org.uk
Capítulo III
Fig. 3.01 – Paço Imperial, foto, autoria: Simone Guerra, 2006.
Fig. 3.02 – Centro Cultural da Justiça Federal, foto, 2001. Em: www.ccjf.
trf2.gov.br
Fig. 3.03 – Paço Imperial, foto, autoria: Simone Guerra, 2006.
Fig. 3.04 – Paço Imperial, mapa. In: Revista IPHAN, n. 20, 1984, p.160.
Fig. 3.05 – Paço Imperial, desenho. CAVALCANTI, 1999.
Fig. 3.06 – Paço Imperial, desenho. CAVALCANTI, 1999.
Fig. 3.07 – Paço Imperial, desenho. CAVALCANTI, 1999.
Fig. 3.08 – Paço Imperial, desenho. CAVALCANTI, 1999.
Fig. 3.09 – Paço Imperial, desenho. CAVALCANTI, 1999.
Fig. 3.10 – Paço Imperial, desenho. CAVALCANTI, 1999.
xii
Fig. 3.11 – Paço Imperial, foto. FERREZ, 1985.
Fig. 3.12 – Paço Imperial, desenho. CAMPELLO, 1984. In: Revista IPHAN, n. 20,
1984. p. 143.
Fig. 3.13 – Paço Imperial, desenho. CAMPELLO, 1984. In: Revista IPHAN, n. 20,
1984. p. 144.
Fig. 3.14 – Paço Imperial, desenho. CAMPELLO, 1984. . In: Revista IPHAN, n. 20,
1984. p. 145.
Fig. 3.15 – Paço Imperial, desenho. CAMPELLO, 1984. . In: Revista IPHAN, n. 20,
1984. p. 148.
Fig. 3.16 – Paço Imperial, desenho. CAMPELLO, 1984. In: Revista IPHAN, n. 20,
1984. p. 146.
Fig. 3.17 – Paço Imperial, desenho. CAMPELLO, 1984. In: Revista IPHAN, n. 20,
1984. p. 146.
Fig. 3.18 – Paço Imperial, foto, autoria: Simone Guerra, 2006.
Fig. 3.19 – Paço Imperial, foto, autoria: Simone Guerra, 2006.
Fig. 3.20 – Paço Imperial, foto, autoria: Simone Guerra, 2006.
Fig. 3.21 – Paço Imperial, foto. Em: www.arquimuseus.fau.ufrj.br
Fig. 3.22 – Centro Cultural da Justiça Federal, foto, ASSUMPÇÃO. Em:
www.ccjf.trf2.gov.br
Fig. 3.23 – Centro Cultural da Justiça Federal, foto, ABREU, 1905.
Fig. 3.24 – Centro Cultural da Justiça Federal, foto, O Globo, 1922.
Fig. 3.25 – Centro Cultural da Justiça Federal, foto, 1936.
Fig. 3.26 – Centro Cultural da Justiça Federal, imagem, ASSUMPÇÃO. Em:
www.ccjf.trf2.gov.br
Fig. 3.27 – Centro Cultural da Justiça Federal, foto, ASSUMPÇÃO. Em:
www.ccjf.trf2.gov.br
Fig. 3.28 – Centro Cultural da Justiça Federal, foto, ASSUMPÇÃO. Em:
www.ccjf.trf2.gov.br
xiii
Fig. 3.29Centro Cultural da Justiça Federal, foto, 2006, ASSUMPÇÃO. Em:
www.ccjf.trf2.gov.br
Fig. 3.30 – Centro Cultural da Justiça Federal, foto. Em: www.ccjf.trf2.gov.br
Fig. 3.31 – Centro Cultural da Justiça Federal, foto. Em: www.ccjf.trf2.gov.br
Fig. 3.32 – Centro Cultural da Justiça Federal, foto. Em: www.ccjf.trf2.gov.br
Fig. 3.33 – Centro Cultural da Justiça Federal, foto. Em: www.ccjf.trf2.gov.br
Fig. 3.34 – Centro Cultural da Justiça Federal, foto. Em: www.ccjf.trf2.gov.br
Capítulo IV
Fig. 4.01 – Paço Imperial, foto, 2006, autoria: Simone Guerra.
Fig. 4.02 – Centro Cultural da Justiça Federal, foto, 2003. Em: www.ccjf. trf2.
gov.br
Fig. 4.03 – Paço Imperial, desenho. CAMPELLO, 1984. In: Revista IPHAN, n. 20,
1984. p. 144.
Fig. 4.04 – Centro Cultural da Justiça Federal, foto. In: ATRIUM, n.20
Fig. 4.05 – Centro Cultural da Justiça Federal, foto. Em: www.ccjf.trf2.gov.br
Fig. 4.06 – Paço Imperial, foto. AGUILERA, 2000. In: RIBEIRO, 2000.
Fig. 4.07 – Centro Cultural da Justiça Federal, foto. Em: www.ccjf.trf2.gov.br
Fig. 4.08 – Paço Imperial, foto, 2006, autoria: Simone Guerra.
Fig. 4.09 – Paço Imperial, foto, 2006, autoria: Simone Guerra.
Fig. 4.10 – Centro Cultural da Justiça Federal, foto, 2006, autoria: Simone
Guerra.
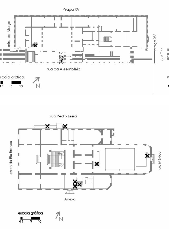
Fig. 4.11 – Paço Imperial, planta, 2006, autoria: Simone Guerra.
Fig. 4.12 – Centro Cultural da Justiça Federal, planta, 2006,autoria: Simone
Guerra.
Fig. 4.13 – Praça XV, mapa e planta, 1998. In: GUIMARAENS, 2002.
Fig. 4.14 – Paço Imperial, foto, 2006, autoria: Simone Guerra.
x
iv
Fig. 4.15 Praça marechal Floriano, mapa e planta, 1998. In: GUIMARAENS,
2002.
Fig. 4.16 – Centro Cultural da Justiça Federal, foto, 2006, autoria: Simone
Guerra.
Fig. 4.17 – Centro Cultural da Justiça Federal, foto, 2006, autoria: Simone
Guerra.
Fig. 4.18 – Paço Imperial, planta, 2006, autoria: Simone Guerra.
Fig. 4.19 – Centro Cultural da Justiça Federal, planta, 2006,autoria: Simone
Guerra.
Fig. 4.20 – Paço Imperial, foto, CAVALCANTI, 1999.
Fig. 4.21 – Centro Cultural da Justiça Federal, foto. Em: www.ccjf.trf2.gov.br
Fig. 4.22 – Paço Imperial, foto, 2006, autoria: Simone Guerra.
Fig. 4.23 – Paço Imperial, foto, 2000. AGUILERA, 2000. In: RIBEIRO, 2000
Fig. 4.24 – Centro Cultural da Justiça Federal, foto. Em: www.ccjf.trf2.gov.br
Fig. 4.25 – Centro Cultural da Justiça Federal, planta, 2006, autoria: Simone
Guerra.
“A modernidade de uma sociedade se mede por sua capacidade de se
reapropriar das experiências humanas distantes da sua,
no tempo e no espaço.”
(TOURAINE apud FONSECA, 1997, p. 50)
INTRODUÇÃO
Argan (1998) em História da arte como história da cidade, alertou para
se tomar cuidado com a museificação das cidades. Para este autor não
deveria existir separação de centro histórico, onde não se poderia fazer
nenhuma alteração, e centro contemporâneo, onde ocorreria o
desenvolvimento das cidades. A cidade é única, e o desenvolvimento deve
ocorrer em todos os espaços. Entretanto, o interesse pela preservação das
edificações e lugares históricos vem crescendo a cada ano no Brasil.
Juntamente com esse interesse vêm surgindo novas possibilidades e
alternativas ligadas às formas de utilização do patrimônio.
Ao considerar o fato de que a arquitetura é funcional por natureza -
sendo esta funcionalidade um dos traços que a distingue das outras artes
1
-,
observamos que, às vezes, em projetos de restauração, a arquitetura é
tratada como uma obra de arte, e a forma do edifício adquire maior
importância. Então, o uso a que se destinará o edifício histórico é deixado de
lado, o que pode ocasionar adaptações inadequadas quando for definida
a nova função.
No entanto, após a restauração do edifício constata-se, na maioria
das vezes, que o leque de alternativas vocacionais do edifício não é grande.
Com isso, a destinação corrente e mais provável é a de centro cultural. Esta
utilização se manifesta como a mais adequada para essas edificações por
constituir-se de um complexo de atividades que atraem um número
significativo de visitantes e promovem, na maioria dos casos, a valorização
do lugar onde estão inseridas.
Da mesma forma que os projetos para novas construções, o processo
de reutilização dos edifícios históricos para as funções de museus e centros
1
“Segundo Scruton, os traços de distinção da arquitetura frente às outras artes são a
utilidade ou a função, a identificação com o local em que se encontra ou meio ambiente,
a técnica, o caráter do objetoblico e finalmente, como traço mais importante, sua
condição de arte vernácula. (in: LYRA, 2005, p. 19).
2
2
culturais constitui matéria passível de observação criteriosa do ponto de vista
científico.
Porém, não há um consenso quanto à real adaptabilidade desses
edifícios históricos para a finalidade cultural. Após a implantação dos
equipamentos necessários para o desenvolvimento dessa atividade,
importaria observar se o edifício permanece com a identidade original. E,
além desta permanência dos valores atribuídos aos edifícios, caberia
verificar o pleno desenvolvimento das atividades que constituem o novo
programa.
O foco desta dissertação é a mudança de uso de edifícios históricos
para fins culturais; portanto, analisamos e comparamos os projetos de
restauração e adequação dos edifícios do Paço Imperial e do Centro
Cultural da Justiça Federal, situados na cidade do Rio de Janeiro.
Deste modo, pretendemos contribuir para os debates atuais sobre a
utilização de edifícios históricos, pois a reabilitação destes, por se constituir
uma das premissas para qualquer intervenção arquitetônica, tem sido tema
de várias discussões em torno do patrimônio.
O tema referente à reutilização dos edifícios históricos, que consiste,
segundo Choay (2001), em “reintegrar um edifício desativado a um uso
normal”, ainda não foi consolidado e a adaptação do patrimônio
arquitetônico para o uso de centro cultural vem ocorrendo com maior
freqüência nos últimos anos. Assim, muitos arquitetos têm realizado projetos
arquitetônicos envolvendo a adaptação de edifícios históricos em centros
culturais.
Verifica-se ainda, nas cartas patrimoniais e nas teorias de restauro, que
a definição prévia do uso para o patrimônio vem, a cada ano, adquirindo
maior importância.
Sendo do conhecimento de todos que a melhor forma de garantir a
vida e a manutenção de uma edificação histórica é através da utilização,
não podemos deixar a definição do uso a um segundo plano. Mas não deve
ser definido um uso qualquer, e sim, este uso deve ter referência ao potencial
do edifício para, dessa forma, agregar valores, tornando possível a
3
3
permanência da construção. E, tratando-se de um uso cultural, devemos
analisar a devida adequação do edifício.
Além desses fatores não podemos esquecer que o edifício possui uma
identidade arquitetônica própria, a qual lhe propiciou a preservação. O
estudo dessog(o)3(tu)-6.4lqrl qutuobeéeserlõvees(e)-6.9s o5(o)lq a-asde
4
4
especial aos edifícios do Paço Imperial e do Centro Cultural da Justiça
Federal.
A escolha desses estudos de caso foi determinada em virtude da
função cultural a que se destinam e por se situarem na área de abrangência
da nossa pesquisa, o centro do Rio de Janeiro. Outro fator de grande
relevância para a escolha desses edifícios foi o fato de ambos os projetos de
restauração terem sido coordenados pelo arquiteto Glauco Campello. Esses
projetos destacam-se no campo do restauro, uma vez que a importância da
obra do edifício do Paço se constituiu em medida e volume, e os trabalhos
no Centro Cultural da Justiça Federal se configuram do ponto de vista da
restauração artística e da utilização, na época, de moderna tecnologia.
O alargamento do suporte teórico-metodológico compreende ainda
a análise da produção textual da equipe técnica responsável pelo projeto
de restauro do Paço Imperial e de outros textos publicados pelo IPHAN. Os
sites institucionais desses centros culturais e o depoimento das arquitetas
responsáveis pela restauração e preservação do edifício da Justiça Federal,
Marisa Assumpção e Izabela Fraga, complementam a fundamentação
necessária à apresentação desses projetos.
O primeiro capítulo se refere à base conceitual, examinada em
bibliografia referente aos eixos temáticos do patrimônio e da arquitetura, os
quais norteiam este trabalho. Os textos comentados são de autores clássicos
que tratam dos fundamentos da teoria do restauro, destacando-se entre eles
de Cesare Brandi, Aloïs Riegl e Françoise Choay. Além destes autores, as
Cartas Patrimoniais, assim como dissertações, teses, relatórios, comunicações
e artigos, complementam a fundamentação necessária à compreensão do
pensamento vigente no campo da restauração.
No segundo capítulo tratamos da “forma”, apresentando alguns
métodos de análise da arquitetura. A pesquisa bibliográfica dos conceitos e
temas da arquitetura de edifícios de museus teve como base os livros de
Michael Pause e Roger Clark, Josep Maria Montaner, Francis Ching e
Geoffrey Baker. A escolha desses autores foi determinada pelo método de
abordagem para a análise proposta, pois, por meio de elementos que
5
5
identificam os fatores referentes ao desenvolvimento das atividades
museográficas e de ferramentas que auxiliam a análise formal arquitetônica,
foi possível identificar e estudar a relação entre a forma e a função dos
estudos de caso.
A importância dos edifícios e conjuntos urbanos de valor patrimonial
no centro do Rio de Janeiro direcionou a análise do estudo comparativo dos
projetos de restauro arquitetônico e adequação de uso do Paço Imperial e
do Centro Cultural da Justiça Federal, apresentados e descritos no terceiro
capítulo.
No último capítulo, verificamos a forma, função e a preservação da
identidade arquitetônica do Paço Imperial e do Centro Cultural da Justiça
Federal, face aos tópicos essenciais da arquitetura de edifícios de museus.
S
S
O
O
B
B
R
R
E
E
O
O
P
P
A
A
T
T
R
R
I
I
M
M
Ô
Ô
N
N
I
I
O
O
A
A
R
R
Q
Q
U
U
I
I
T
T
E
E
T
T
Ô
Ô
N
N
I
I
C
C
O
O
CAPÍTULO
I
7
7
Ao constituir a primeira etapa para o desenvolvimento deste trabalho,
discorremos sobre os aspectos que melhor enquadram a noção de
patrimônio histórico, as teorias de restauração e os tópicos mais relevantes
das cartas patrimoniais, pois estes são os temas que representam a base de
todo processo relacionado à preservação e uso da arquitetura dos edifícios
históricos. Portanto, este capítulo contém os fundamentos desta dissertação,
no que se refere à idéia de arquitetura e também adequação de uso destes
edifícios.
No desenvolvimento do trabalho, analisamos o tema do uso do
patrimônio histórico, especificamente o uso com finalidade cultural e, neste
sentido, a seguir serão apontadas também algumas questões referentes às
limitações impostas pelo respeito à arquitetura original de edifícios históricos,
quando se trata de atender a novo uso.
Para tanto, além das referências bibliográficas mencionadas na
introdução, outras fontes foram utilizadas para aqui apresentar o panorama
atual dos temas principais desta dissertação.
8
8
SOBRE O PATRIMÔNIO E A ARQUITETURA
A partir da Segunda Guerra as intervenções urbanas têm sido
largamente utilizadas para promover transformações de importantes regiões
das grandes cidades, por meio da revitalização das áreas centrais, da
adequação de uso do patrimônio histórico e da melhor utilização possível
desses espaços, viabilizando o sistema econômico e o implemento à
habitação e às atividades sócio-culturais.
No Centro da cidade do Rio de Janeiro, os exemplos mais recentes de
reutilização
1
espacial dos entornos de marcos urbanos e bens tombados
estão fortemente relacionados com a alteração, adequação e apropriação
de uso de edifícios históricos.
Entre as décadas de 80 e 90, podemos citar as reformas dos largos da
Lapa e da Carioca, melhorias da área entre a Casa França-Brasil e o Centro
Cultural dos Correios, além da realização das obras do projeto “Frente
Marítima”
2
na Praça Quinze. Tais intervenções demonstraram a busca da
atualização dos equipamentos urbanos visando à criação de locais
adequados às atividades culturais. O papel das ações de adequação de
uso dos edifícios históricos na revitalização da cidade, como foi o caso da
Praça XV de Novembro após a restauração do Paço Imperial, é o tema
discutido neste capítulo.
1
“Reutilização, reconversão, reciclagem e reabilitação são termos correntes para designar a
operação de adaptação do edifício para um novo uso.” (LYRA, 2005, p.61) Sendo o termo reabilitação
mais utilizado na Europa.
2
O projeto “Frente Marítima” teve como objetivo recuperar a relação de continuidade entre os
espaços públicos do Centro Histórico do Rio e o mar, incluindo a permeabilidade espacial com o mar,
a qualidade arquitetônica e ambiental, o reforço e complementação das atividades da área urbana
central, com funções residenciais, lúdicas e culturais, estimulando a habitação no Centro da cidade e
a incorporação de edificações com programas de usos mistos (residências, comércio, escritórios,
hotéis, instituições públicas e privadas e lazer), implementando o uso do Centro 24 horas por dia,
durante toda a semana. Propôs também a reorganização e integração do tráfego e o
estacionamento de veículos, de forma não conflitiva, à movimentação de pedestres, dando
prioridade aos pedestres. (Paço Imperial: análise do entorno in: http://www.arquimuseus.fau.ufrj.br)
9
9
E sobre esse respeito, a Carta de Veneza
3
ressalta o favorecimento da
conservação dos monumentos com uma destinação a uma função útil à
sociedade. Já a Recomendação de Nairóbi
4
reafirma o valor econômico
do patrimônio e a necessidade de sua inserção na vida contemporânea, em
benefício de sua própria conservação e do desenvolvimento da cidade.
Discorreremos inicialmente sobre o conceito de patrimônio histórico
que, conforme declarou Glauco Campello, não é, simplesmente, uma
acumulação de objetos compondo uma lista de bens culturais tombados.”
(CAMPELLO, 1984, p.122)
No século XV, esta expressão denominava antiguidades. Para Brandi
(2004), se refere à obra de arte, ou seja, a um produto da atividade humana.
Na atualidade, segundo Choay, esta expressão designa:
um bem destinado ao usufruto de uma comunidade que se
ampliou a dimensões planetárias, constituído pela acumulação
contínua de uma diversidade de objetos que se congregam por
seu passado comum.
(CHOAY, 2001, p. 11)
Choay menciona ainda que o patrimônio histórico tornou-se uma das
palavras-chave da tribo midiática”, que se refere “a uma instituição e a uma
mentalidade”. (CHOAY, 2001, p. 11)
Ainda sobre esta expressão, Viollet-le-Duc , de acordo com Choay,
afirma que:
um edifício só se torna histórico quando se considera que ele
pertence ao mesmo tempo a dois mundos: um mundo presente,
e dado imediatamente, o outro passado e inapreensível.
(CHOAY, 2001, p. 158)
A noção de patrimônio urbano histórico, acompanhada de um
projeto de restauração, nasceu da época de Haussmann”. (CHOAY, 2001, p.
177). Este conceito, a partir dos anos 1960, foi ampliado, passando a incluir
3
Carta internacional sobre conservação e restauração de monumentos e sítios, resultado do II
Congresso internacional de arquitetos e técnicos dos monumentos históricos, realizado em Veneza, de
25 a 31 de maio de 1964.
4
Recomendação relativa à salvaguarda dos conjuntos históricos e sua função na vida
contemporânea, resultado da 19ª sessão da Conferência Geral da Unesco, realizada em Nairóbi, em
26 de Novembro de 1976.
1
1
0
0
espaços urbanos e rurais, e a conseqüente valorização do tecido urbano e
da arquitetura vernacular.
A idéia atual de patrimônio cultural, na Espanha, define-se como:
um conjunto de elementos naturais ou culturais, materiais ou
imateriais, herdados dos antepassados e nos quais se
reconhecem os sinais de identidade e que terá de ser
transmitido às gerações vindouras, acrescido e melhorado.
(JIMÉNEZ apud BLASI, 2004, p. 60).
No Brasil, o patrimônio artístico e histórico tem sido considerado,
segundo Nestor Goulart, “como um acervo cultural que o poder público se
empenha em preservar,..., guardado como documentos da vida cultural de
outras épocas.” (REIS FILHO, 2004, p. 192).
A lei federal que organiza a preservação do patrimônio cultural
brasileiro é o Decreto-lei n° 25
5
o qual define como patrimônio:
o conjunto de bens móveis e imóveis de interesse público por
sua vinculação com os fatos memoráveis da História do Brasil e
por apresentarem excepcional valor arqueológico ou
etnográfico, bibliográfico ou artístico.
Maria Cecília Londres da Fonseca considera que são os “processos de
atribuição de valor que possibilitam uma melhor compreensão do modo
como são progressivamente construídos os patrimônios.” (FONSECA, 2005, p.
35).
Argan parte de uma distinção entre coisa e valor, muito propícia para
a definição do patrimônio:
Uma vez que as obras de arte são coisas às quais está
relacionado um valor, há duas maneiras de tratá-las. Pode-se
ter preocupação pelas coisas: procurá-las, identificá-las,
classificá-las, conservá-las, restaurá-las, exibi-las, comprá-las,
vendê-las; ou, então, pode-se ter em mente o valor: pesquisar
em que ele consiste, como se gera e transmite, se reconhece e
se usufrui. (ARGAN, 1998, p. 13).
5
Decreto-lei n° 25 de 30 de novembro de 1937, que criou o Serviço do Patrimônio Hisrico e Artístico
Nacional (SPHAN) e regulamentou o instituto do tombamento.
1
1
1
1
Em relação ao patrimônio histórico e artístico nacional, segundo
Fonseca (2005, p. 36-37), o valor que permeia o conjunto de bens, é o valor
nacional, ou seja, aquele fundado em um sentimento de pertencimento a
uma comunidade, no caso a nação.” Afirma ainda, mais adiante, que a
noção de patrimônio é “datada, produzida, assim como a idéia de nação,
no final do século XVIII, durante a Revolução Francesa.”
Campello complementa esta idéia de noção do patrimônio,
declarando que, em sua extensão cultural e social, este conceito não se
limita hoje exclusivamente a uma concepção histórica, mas invade todos os
campos da memória coletiva”. (CAMPELLO, 1984, p.122)
Campello afirma ainda que o “patrimônio é o tema em torno do qual
as comunidades cultivam um sentimento de auto-estima e o exercício da
cidadania” (CAMPELLO, 1984, p.121), sendo assim, o conjunto de bens
culturais reforça a identidade local de uma comunidade.
Desta seqüência de definições colhidas em autores diferentes e, para
melhor compreender as relações entre os principais temas que configuram a
importância da adequação de uso do patrimônio arquitetônico, elegemos
os tópicos Identidade arquitetônica, Valor e Uso, apresentando-os e
comentando-os a seguir.
1
1
2
2
Identidade Arquitetônica
A arquitetura exerce um importante papel na formação histórica das
sociedades e, conseqüentemente, na formação das identidades dos grupos
que as constituem. Para Gutiérrez, a obra arquitetônica é o “testemunho
histórico sedimentado e acumulado dos modos de vida do homem”
(GUTIÉRREZ, 1989, p. 80), constituindo-se numa rica fonte de documentação
histórica.
A obra arquitetônica carrega consigo as experiências acumuladas de
quem a concebeu e a utilizou ao longo do tempo, tornando-se um
testemunho de modos de vida, usos e valores das comunidades.
Para John Ruskin, “a arquitetura é o único meio que dispomos para
conservar vivo um laço com um passado ao qual devemos nossa
identidade, e que é parte do nosso ser.” (RUSKIN apud CHOAY, 2001, p. 139).
Choay completa afirmando que “mais que pela história ou por ‘uma’
história, esse passado é em primeiro lugar e essencialmente definido pelas
gerações humanas que nos precederam.” (CHOAY, 2001, p. 139).
Pertencendo simultaneamente ao passado e ao presente, a obra
arquitetônica torna-se um referencial paradigmático para a construção da
identidade de uma sociedade. Quanto a esta questão de relação entre
passado e presente, Choay acredita que:
romper com o passado não significa abolir sua memória nem
destruir seus monumentos, mas conservar tanto uma quanto
outros, num movimento dialético que, de forma simultânea,
assume e ultrapassa seu sentido histórico original, integrando-o
num novo estrato semântico. (CHOAY, 2001, p. 113).
Como documento histórico, a arquitetura mostra a evolução linear dos
valores da sociedade e das formas de pensamento. Reúne as qualidades
atuais com o valor acumulado de uma condição histórica e cultural que
somente se perde se a obra for fisicamente destruída.
Segundo Gutiérrez,
a identidade é definida por algo que diz respeito a todos e
pertence a todos, o que implica a relação de ser o mesmo e de
manter o reconhecimento através do tempo, apesar da
1
1
3
3
alteração das variáveis. Pertencer, ser parte de algo comum é
uma característica essencial da identidade. Não poderíamos
concebê-la sem esse sentido integrador, vinculado à idéia de
ser o mesmo e de prolongar nossas formas culturais, tangíveis e
intangíveis, até chegar a um conjunto de elementos que nos
conferem identidade justamente por serem parte de nós
mesmos.
(GUTIÉRREZ, 1989, p. 18)
Esta “relação de ser o mesmo e de manter o reconhecimento através
do tempo”, mencionada por Gutiérrez, é o grande problema na questão da
reutilização dos edifícios históricos. Portanto, quando se destina ao edifício
nova função, é necessário, na maioria das vezes, fazer adaptações na
arquitetura, o que pode promover a perda de identidade. Ainda sobre essa
questão, Choay afirma que “indivíduos e sociedades não podem preservar e
1
1
4
4
a autenticidade, entendida como a revelação da
contemporaneidade da inserção, a harmonia, compreendida
como a conciliação dos contrários (o existente e o novo) e a
sensibilidade, traduzida pela capacidade de diálogo entre o
novo e o existente. (LYRA, 2005, p. 64).
Esses critérios mencionados por Cyro Lyra promovem a identidade
arquitetônica do edifício, que pode manifestar-se por diversos fatores, tais
como a localização, as características arquitetônicas, a história, isto é, pelo
fator marcante ou valor que o credenciou a ser preservado.
Para manter essa identidade, de acordo com os valores determina-se
1
1
5
5
Sendo assim, o estudo sobre a autenticidade dos elementos
constituintes do imóvel e sobre os valores atribuídos a um determinado
patrimônio são a base necessária para uma intervenção num patrimônio
edificado. Esses elementos característicos têm grande importância na
atribuição, principalmente dos valores patrimoniais sobre os quais se baseiam
as diretrizes e critérios a serem adotados no projeto de restauração.
Aloïs Riegl
6
foi o primeiro a sistematizar as questões do Patrimônio sob o
prisma do Valor, sublinhando que todo monumento tem diferentes valores e
somente o reconhecimento destes credencia um objeto a ser preservado.
Esta acepção reitera a afirmação anterior sobre o fato de questões do
patrimônio estarem sempre entrelaçadas às dos valores.
A importância fundamental dos escritos de Riegl deve-se ao fato de
terem surgido durante um momento crítico da história da restauração,
quando o debate entre restaurar e conservar tinha como protagonistas os
principais teóricos hoje reconhecidos: Viollet-le-Duc, J. Ruskin, W. Morris e
Camilo Boito.
Riegl, procurando examinar as várias formas e os vários pontos de vista
que se pode ter em relação aos monumentos, classificou os valores em dois
importantes grupos: o "valor rememorativo" (ou de antiguidade) e o “valor
contemporâneo”. O primeiro se refere ao tempo passado, à memória, ao
valor histórico e de antiguidade, enquanto o segundo se refere à
capacidade que o monumento possui de satisfazer as necessidades
materiais ou espirituais contemporâneas, por isso a relevância de ter ou não
surgido no passado. A partir deste ponto, se estabelece uma relação entre
as intervenções possíveis em um monumento e os valores que lhe são
atribuídos.
6
Aloïs Riegl foi um advogado austríaco nascido em Linz, em 1858, e se dedicou a estudar filosofia e
história. Trabalhou como conservador durante 11 anos no Museu de Artes Decorativas de Viena, onde
passou a estudar e publicar pesquisas. Em 1902 foi nomeado Presidente da Comissão Central Imperial
e Real de Monumentos Históricos e Artísticos, com a missão de preparar um plano de reorganização
da conservação de monumentos públicos da Áustria. Em 1903 publicou O Culto Moderno aos
Monumentos, que não propunha nenhum tipo de legislação, mas que possui um riquíssimo valor
teórico. Faleceu em 1905, em Viena.
1
1
6
6
Valores Rememorativos
O valor rememorativo se relaciona ao passado através dos valores
artísticos e históricos.
O valor histórico, segundo Riegl, relaciona-se ao conceito de
desenvolvimento; por esta razão, qualquer evento transcendente assume
significado para nós, independente da sua grandeza, pois, para valorizá-lo
basta que o coloquemos em contraposição à cultura do passado.
O valor artístico está relacionado ao conceito de "Kunstwollen"
(vontade artística), por isso não existe nenhum momento da produção da
manifestação artística do passado que prevaleça sobre outras.
Riegl examina através da história o modo com que esses valores
“aparecem” ou se "configuram" e assumem significado, introduzindo
lentamente uma série de novos valores. Entre estes, aquele de maior
importância para Riegl, é o "valor de antiguidade".
O valor de antiguidade com respeito ao valor histórico é proposto por
Riegl como o máximo nível de conhecimento que o homem pode possuir
frente à cultura do passado.
O culto do valor de antiguidade, segundo o mesmo autor, era
apreciado por numerosas pessoas e foi assim caracterizado:
Se do ponto de vista do valor de antiguidade, a eficácia
estética do monumento reside nos traços de decomposição da
obra acabada pelas forças mecânicas e químicas da natureza
deduz-se que o culto ao valor de antiguidade não somente não
deve ter interesse na conservação do monumento em seu
estado original, mas deve mesmo considerar tal conservação
contrária a seus interesses. [...] apenas uma coisa deve ser
evitada a todo custo do ponto de vista do valor de
antiguidade: a intervenção arbitrária da mão humana no
estado atual do monumento, porque este não deve sofrer
adição, nem subtração, nem substituir aquilo que se alterou no
decorrer dos anos sob a ação das forças naturais, nem
eliminação que, pelas mesmas causas, incorporou-se ao
monumento, alterando assim a forma original.
7
(Riegl, 1999, p.
52-53).
7
”Si desde el punto de vista del valor de antigüidad lo que causa efcto estético en el monumento son
los signos de dedeterioro, la desintegración de la obra humana cerrada por medio de las fuerzas
mecánicas y químicas de la naturaleza, de aquí se deduce que el culto al valor de antigüidad no sólo
1
1
7
7
Em síntese, o que Riegl sublinha para o monumento no qual prevalece
o valor de antiguidade é que não seja admitido uma intervenção arbitrária,
uma vez que a determinação de seu valor atrela-se justamente à sua idade
– antiguidade -; por outro lado quando é o valor histórico que se destaca
são admitidas ações – intervenções – para conservação de um monumento,
às quais influenciam a definição das ações, tanto maior quanto menor forem
as alterações em seu estado original, embora não se devam reconstituir as
partes deterioradas, mas estancar o processo a partir do momento da
deterioração.
Preserva-se prioritariamente a forma original a fim de que o valor
histórico seja mantido. O monumento, segundo o valor histórico, deve ser
analisado como obra humana, não como obra humana modificada pela
natureza. Assim, sugere-se a idéia de reconquista do original, que comporta
a eliminação dos elementos degradados que, no entanto, caracterizam o
valor de antiguidade, portanto, o interesse pelo valor histórico não autoriza a
eliminação dos elementos de degradação.
Os valores “rememorativos” assim foram comparados entre si pelo
autor:
Enquanto o valor de antiguidade está fundamentado
exclusivamente na degradação, o valor histórico quer deter
toda degradação a partir da sua intervenção, mas perderia sua
razão de ser sem as degradações anteriores, o valor de
rememoração intencional reivindica nada menos para o
monumento do que a imortalidade, o eterno presente, a
perenidade do estado original. A ação dos agentes naturais,
que se opõe à realização dessa exigência, deve, assim, ser
combatida com energia, e seus efeitos contrariados sem cessar.
8
(Riegl, 1999,p. 67).
no ha de tener interés en la conservación del monumento sin que sufra alteraciones, sino que esto ha
de ir en contra de sus intereses. (...) Sólo una cosa se ha de impedir de modo categórico desde el
punto de vista del valor de antigüidad: la intervención arbitraria de la mano humana en el estado
actual del monumento, pues éste no debe sufrir adición, ni sustración de lo que las fuerzas naturales
han destruido al correr el tempo, ni eliminación de lo que por las mismas causas se ha incorporado al
monumento, alterando así su forma cerrada originaria.” (Riegl, P. 52-53).
8
“Mientras el valor de antigüedad se basa exclusivamente em la destrucción, y el valor histórico
pretende detener la destrucción total a partir del momento actual- (...) -, el valor rememorativo
intencionado aspira de modo rotundo a la imortallidad, al eterno presente, al permanente estado de
gênesis. Lãs fuerzas destructoras de la naturaleza, que actúan em sentido contrario al cumplimiento de
esta aspiración, han de ser, por tanto, combatidas celosamente y sus efectos han de paralizarse uma y
outra vez.” (Riegl, P. 67)
1
1
8
8
Quanto à noção do valor rememorativo intencionado, ou seja, este
existe quando há a intenção de o monumento permanecer para a
posteridade e, para tanto, este foi edificado. Sendo assim, Riegl atribui como
postulado fundamental deste valor as ações de restauração, sem as quais os
monumentos deixariam rapidamente de ser intencionados, por conseguinte,
o valor de antiguidade é por natureza inimigo mortal do valor rememorativo
intencionado.
Valores de Contemporaneidade
Os valores de “contemporaneidade”, por sua vez, são subdivididos em
“valor de uso” e “valor artístico”, esse último se repartindo em “valor de
novidade” e “valor artístico relativo, positivo ou negativo.
A maior parte dos monumentos respondem, entre outros,
a uma expectativa dos sentidos ou do espírito que criações
novas e modernas poderiam satisfazer igualmente bem. O valor
de contemporaneidade reside nessa propriedade que, com
toda evidência, não atribuiu papel nem à antiguidade do
monumento nem ao valor de rememoração que dela decorre.
Ao invés de considerar o monumento como tal, o valor de
contemporaneidade tenderá sem dificuldade a nos fazer
considerá-lo como igual a uma criação moderna recente, e a
também exigir que o monumento (antigo) apresente aspecto
característico de toda obra humana quando primeiro surge:
dito de outra forma, que dê a impressão de uma perfeita
integridade, intocada pela ação destruidora da natureza.
9
(Riegl, 1999, p. 71).
Dessa forma, é admitida a restauração dos monumentos de valor
instrumental ou de uso, visto que este atributo é absolutamente indiferente
9
La mayoría de los monumentos posee la capacidad de satisfacer aquellas necesidades materiales o
espirituales de los hombres que las nuevas creaciones modernas podrían satisfacer de manera similar, y
el valor de contemporaneidad de un monumento se basa en esa capacidad, para la que
evidentemente resulta irrelevante tanto el que haya surgido en el pasado, como el correspondiente
valor rememorativo. Desde el punto de vista del valor de contemporaneidad, se tenderá desde un
principio a no considerar el monumento como tal, sino como una obra contemporánea recién
creada, y a exigir por tanto también del monumento (viejo) la aparencia externa de toda obra
humana (nueva) en estado de génesis, es decir, la impresión de algo perfectamente cerrado y no
afectado por las destructoras influencias de la naturaleza.
(Riegl, P. 71)
1
1
9
9
ao tratamento que se dê ao monumento, o importante é manter o uso
efetivo.
O valor de uso certamente entra em conflito com o valor histórico e
com o valor de antiguidade, pois o valor de uso propõe uma série de
modificações e adaptações que conduzem o monumento para uma nova
possibilidade funcional. Riegl nega que essa situação conflitiva seja normal e
propõe três casos diversos: no primeiro caso, no qual o edifício perde toda a
possibilidade de utilização, devido às condições físicas, não existe conflito
entre os diversos valores, e o edifício pode ser totalmente conservado.
O segundo caso se refere aos edifícios que têm conservado
totalmente a função original, neste caso o conflito não existe porque se
pode limitar as intervenções que são necessárias para o valor de uso, e que
consistem na manutenção do valor histórico e do valor de antiguidade.
O conflito, segundo Riegl, ocorre no terceiro caso, representado pelos
edifícios que foram construídos desde o período medieval até os dias de
hoje. Esses são edifícios que não têm conservado integralmente suas funções
originais, pois estas não correspondem exatamente às funções da
atualidade, mas verifica-se que esses monumentos têm de ser recuperados.
Riegl não esconde o fato de que a conservação do valor histórico e
do valor de antiguidade não pode prescindir do valor de uso,
exemplificando no caso daqueles edifícios que, pelo fato de não serem
utilizados, arruínam-se, o que determina uma forma ainda mais violenta de
destruição que a mudança de função.
Quanto ao valor artístico, Riegl classifica o valor artístico de novidade e
o valor artístico relativo. O primeiro corresponde à uma necessidade de se
apreciar as obras humanas como algo recém-surgido, em seu estado de
gênesis; e o valor artístico relativo é o que permite que as obras de gerações
anteriores sejam apreciadas não só como testemunho histórico, mas
também com relação à sua concepção, forma e cor.
Nesta classificação, por não existir um valor artístico absoluto, mas
apenas um relativo, contemporâneo, as intervenções de preservação vão
depender do caráter de valorização que se atribui à obra. Se o monumento
2
2
0
0
estabelecer uma relação de contemporaneidade, o natural é que não se
deseje perder o monumento, que este possa manter o seu estado atual, nem
que para isso seja necessária uma restauração in integrum. Porém se não for
assim classificado, o monumento provavelmente ficará fadado ao
esquecimento.
Choay alerta para o fato da omissão por parte de Riegl acerca do
valor nacional, definido pela autora como o primeiro e fundamental.
(CHOAY, 2001, p. 116). Fonseca, por sua vez, complementa afirmando que
“não é por acaso que ele não aborda a questão do valor nacional”, pois
para Riegl, essa “mobilização social como fator necessário para a
preservação, não passa pela persuasão ideológica.” (FONSECA, 2005, p. 69).
Outro valor mencionado por Choay, que não foi previsto por Riegl, se
refere ao valor econômico do patrimônio histórico. Segundo Choay este
valor fora “induzido pelo desenvolvimento da indústria cultural.” (CHOAY,
2001, p. 239).
Este último valor mencionado por Choay retrata o quadro atual das
cidades históricas que promovem o turismo como forma de atividade
econômica, o que provoca um grande dilema entre o desenvolvimento e a
preservação.
Como pudemos observar nessa diversidade de tipos de valor, esta é
uma questão diretamente ligada ao patrimônio. Sendo assim, o valor que
credenciou um determinado edifício histórico a ser preservado deve ser
considerado e os elementos que o representam devem ser mantidos após a
intervenção arquitetônica.
O valor (nacional, histórico, artístico, rememorativo, econômico, etc.)
reconhecido em um edifício histórico, lhe imprime um importante papel para
a história da sociedade que o produziu e àquela que o reconheceu como
merecedor de destaque e de ações que permitam a su ((s q)-mer)-10.2s(a)17.3(e)2-4.2()-0.4aç(c)-4.ã(i)-5.2(o)-7. às(a)-7.ra
2
2
1
1
Uso
As teorias sobre restauração se mostram bastante contraditórias, e
apresentam-se com base em diferentes correntes de pensamento. Portanto,
uma das grandes preocupações dos técnicos do patrimônio cultural
edificado é o complexo problema de restaurar um imóvel e de restabelecer
sua função social, integrando-o à vida contemporânea e mantendo sempre
que possível as características originais.
A partir do século XIX, destacam-se dois pensadores do patrimônio
edificado que apresentam propostas diferenciadas: John Ruskin (1819-1900)
e Viollet-le-Duc (1814-1879). O primeiro, escritor e crítico da arte, para quem
a matéria original e as marcas do tempo deveriam ser mantidas a qualquer
custo. O segundo restaurou vários monumentos medievais na França,
utilizando-se da livre interpretação e da proposta individualizada, onde cada
caso é um caso.
Em 1883, durante o Congresso de Engenheiros e Arquitetos realizado
em Roma, Camillo Boito (1836-1914) propôs uma nova política de critérios de
intervenção em edifícios de valor cultural, dentre os quais podemos destacar
a intervenção mínima na edificação, a ênfase no valor documental dos
imóveis, o respeito às diversas alterações sofridas pelas edificações ao longo
do tempo e a documentação do imóvel antes e depois das obras de
restauro. Tais critérios de intervenção têm sido aplicados até os dias de hoje
em edifícios de valor cultural.
Para discutir, promover e integrar as diferentes idéias contidas nessas
diversas correntes de pensamentos são realizados encontros onde se
elaboram Cartas que são registros resultantes dos compromissos assumidos.
Nesses Encontros Internacionais, as Cartas Patrimoniais são, portanto, a
tentativa de padronizar, para todo o mundo, os procedimentos de
preservação.
No Brasil, a Carta de Veneza, de 1964, tem sido a base para a
orientação dos procedimentos de preservação. Dentre as propostas, a Carta
2
2
2
2
de Veneza prevê orientações para preservação de monumentos de valor
excepcional, de sítios, conjuntos urbanos e o meio ambiente.
Para Vera Milet:
os ambientes socialmente construídos sobre o solo urbano
constituem-se em valor de uso ao encarnarem nas edificações
o suporte físico para o desenvolvimento das atividades urbanas
tanto da ordem coletiva como o de ordem individual. (MILET,
1988, p. 39).
Assim, segundo as Cartas Patrimoniais, Estado e cidadãos também são
responsáveis pela preservação e manutenção do patrimônio cultural.
As discussões sobre restauração consideram necessariamente a
definição do uso e a recuperação da ordem que imprime unidade à obra
arquitetônica. Por isso, dentre as Cartas Patrimoniais, destacamos a Cartas
de Atenas, por ter sido a primeira Carta Patrimonial a abordar a questão do
uso dos monumentos; a Carta de Veneza, que amplia o sentido do uso
arquitetônico para o urbano; a Carta de Burra que faz referências à
renovação de uso e a Carta de Brasília que se refere, no capítulo
“Conservação da autenticidade”, à renovação de uso dos edifícios de valor
cultural.
Segundo a Carta de Veneza a conservação dos monumentos
históricos é sempre favorecida pela sua adaptação a uma função útil da
sociedade; assim, o uso não é uma concessão, mas uma necessidade
fundamental para a conservação e a realidade tem mostrado que um uso,
mesmo inadequado, pode ser melhor que a ausência total de utilização.
Contrariamente a essa opinião, Vitet (1845) declara que o “uso é uma
espécie de vandalismo lento, insensível, despercebido, que arruína e
deteriora quase tanto quanto a brutal devastação.” (VITET apud CHOAY,
2001, p. 161). Porém, segundo Cyro Lyra, “o que pudemos constatar ao
longo dos anos é que ao deixarmos um imóvel ‘vazio’ e ocioso, estaremos
condenando-o à destruição.” (LYRA, 2005, p. 177)
Para Nestor Goulart, “a própria natureza do processo cultural, sempre
renovado, está a indicar a importância de uma destinação mais ampla e
2
2
3
3
mais fecunda para esse patrimônio, que o defina como ponto de partida
para as criações culturais do presente.” (REIS FILHO, 2004, p. 194).
Argan, assim como Choay, concordam que evitar a museificação do
patrimônio edificado é a “forma mais paradoxal, audaciosa e difícil de
valorização do patrimônio.” (CHOAY, 2001, p. 219).
Sendo assim, acreditamos, conforme Nestor Goulart, que:
valorizando desse modo o patrimônio da arte e história e
estabelecendo serviços culturais para a sua população, os
poderes públicos não estarão investindo no supérfluo, mas
2
2
4
4
Viollet-le-Duc insistia que ‘o melhor modo de preservar um
edifício é encontrar um uso para ele e satisfazer suas
necessidades tão completamente que não haja necessidade
de mudança’... A tarefa é delicada e era necessário para o
arquiteto restaurar o edifício com respeito por sua unidade
arquitetônica, assim como encontrar meios de minimizar as
alterações que o novo uso exija. (JOKILEHTO, 1999, p. 154).
No momento inicial do reconhecimento do valor, a identificação e
compreensão do edifício apresentam-se como instrumentos para sua
determinação como bem cultural, por isso, o reconhecimento da função
original do edifício deve anteceder à intervenção do monumento.
2
2
5
5
SOBRE O DESENVOLVIMENTO DAS FORMAS DE ADEQUAÇÃO DE USO
Segundo Beatriz Kühl, “a partir da segunda metade do século XVIII, a
restauração afasta-se cada vez mais das ações ditadas por razões
pragmáticas e assume conotação cultural.” (KÜHL, 1998, p. 3).
Portanto, a adequação de uso do patrimônio edificado se constitui
por uma atividade antiga, tendo sido incrementada e consolidada na
segunda metade do século XX. Assim, a disponibilização de monumentos
para novas finalidades foi provocada pela ociosidade a que foram sendo
deixados os edifícios antigos, pelo desaparecimento da função original ou
pela inadequação de seus espaços e linguagem às novas exigências. A
adequação de uso implica em um trabalho de reintegração à vida
contemporânea por meio da adaptação desses edifícios, considerados
patrimônio arquitetônico, às necessidades do novo uso.
Na Europa, os urbanistas concluíram que a reabilitação (adequação
de uso), comparada com a renovação, apresentava vantagens sociais, pois
contribuiria para a conservação das identidades culturais, devido à
conservação de valores artísticos, arqueológicos e documentais; e para o
desenvolvimento econômico, devido à utilização das edificações e infra-
estrutura já existentes. (FEILDEN; JOKILEHTO apud LYRA, 2005, p. 72).
A prática da renovação foi comentada por Choay, pois “fazendo dos
monumentos históricos propriedade, por herança, de todo povo, os comitês
revolucionários dotavam-nos de um valor nacional preponderante e lhes
atribuíam novos usos, educativos, científicos e práticos.”
Para Otília Arantes, o primeiro arquiteto a tratar o museu como uma
espécie de espaço comercial foi James Stirling, no projeto da Nova Galeria
Estadual de Stuttgart. (ARANTES, 1998, p. 233). (Fig. 1.01).
2
2
6
6
Fig. 1.01 – Staatsgalerie, Stuttgart- vista externa, 2004.
No Brasil, a proteção e tombamento de edifícios de valor arquitetônico
e histórico, têm sido acompanhados de propostas de transformação desses
edifícios, com ênfase nos palácios e residências nobres urbanas, em museus.
Nas décadas de 1970 e 1980, o IPHAN e a Pró-Memória incentivaram a
transformação de casas históricas em centros culturais.
Deste período, a restauração do edifício do Paço Imperial e a abertura
do Centro Cultural Banco do Brasil são considerados marcos do novo uso do
Centro da cidade do Rio de Janeiro. A partir desses marcos, segundo Vânia
Polly Silva, “outros espaços culturais foram implantados em edifícios que já
faziam parte do patrimônio histórico e artístico da cidade, mas estavam fora
do alcance da visitação pública pelas atividades que encerravam.” (SILVA,
2000, p. 44).
Estas novas atividades foram incrementadas com diversos
investimentos dos setores públicos e privados. Projetos e ações foram
desenvolvidos no sentido de manter o uso do centro, admitindo-se que o uso
garantirá sua preservação. Em torno dos anos 80, as políticas públicas para o
patrimônio se caracterizaram por ações de proteção legal, sendo que o
turismo “era entendido como uma alternativa de revitalização para aqueles
núcleos”. (GUIMARAENS, 2004, p.03).
Para Jeudy (2005), há no mundo inteiro uma tendência de
conservação patrimonial que se exerce sobre a cidade por meio da
reconstituição do centro histórico. É uma maneira de proporcionar uma
2
2
7
7
imagem estética internacional para o turismo, de guardar uma idéia de
unidade e harmonia da cidade. Segundo ele,
o problema é que o processo de conservação patrimonial torna
as cidades cada vez mais parecidas. No fundo, há sempre um
centro histórico, onde tudo é refeito da mesma forma.
Normalmente o início desse processo é uma busca de
identidade da cidade que leva as cidades patrimonializadas,
onde o centro é colocado como a vitrine de uma loja. (JEUDY,
2005, p. 02).
Porém, a certeza de que museus e centro culturais podem colaborar,
de forma significativa, para impedir os processos de arruinamento,
esvaziamento e decadência das cidades, pode ser demonstrada por meio
dos investimentos empregues pelo empresariado e pela Prefeitura, no setor
cultural.
Vânia Polly Silva declara que esses investimentos se apresentam em
dois tipos: “diretos – restauração e gestão de edifícios para uso em fins
culturais - ou indiretos - projetos e ações de apoio a essas instituições em
melhorias da infra-estrutura urbana, eventos e publicidade.” (SILVA, 2004, p.
45).
Segundo Andrade Junior, existem três tipos de edifícios históricos que
têm sido adaptados com maior freqüência em museus e centros culturais. “A
primeira tipologia, correspondendo a 42,30% das intervenções levantadas”
10
,
se refere ao patrimônio industrial.
Fábricas, usinas, armazéns, mercados, galerias e estações
ferroviárias e outros edifícios construídos a partir da segunda
metade do século XIX e caracterizados pelos grandes vãos
cobertos e pelas novas técnicas construtivas baseadas no
concreto e, principalmente, na estrutura metálica. (ANDRADE
JUNIOR, 2005, p. 07).
A adequação de uso do Solar do Unhão
11
em Museu de Arte Moderna
10
Levantamento realizado em algumas das principais intervenções de adaptação de edifícios
históricos em centros culturais e museus realizadas em diversos países europeus e americanos desde
1950, totalizando 52 exemplos levantados.
11
O Solar do Unhão é um conjunto de edificações localizado em Salvador, onde podemos destacar a
casa grande, a capela e o aqueduto. A construção do edifício foi iniciada no século XVII e foi sendo
ampliado nos séculos seguintes. Tombado pelo IPHAN em 1943.
2
2
8
8
e de Arte Popular (Fig. 1.02), idealizado por Lina Bo Bardi
12
, cuja restauração
foi iniciada em 1962 e concluída no ano seguinte pode ser considerado
como um dos primeiros projetos referentes à reutilização do patrimônio
histórico em centro cultural.
Fig.1. 02 – Solar do Unhão - Na parte superior, vista aérea do conjunto e acima, vista
interna com as exposições de arte popular, 2000
.
O Solar do Unhão surgiu sob os preceitos do Movimento Moderno, do
qual Lina Bo Bardi foi uma das precursoras no Brasil, que pretendia dar uma
abertura social ao museu. Lina transformou-o em um local não só de
concentração do acervo, como em espaço de múltiplas atividades
culturais, com a finalidade de levar a cultura para o povo de um modo
participativo e atuante.
A segunda tipologia, mencionada por Andrade Junior, “equivalente a
25% do total de exemplos levantados, corresponde à adaptação de
palacetes e casas nobres urbanas.” (ANDRADE JUNIOR, 2005, p. 08).
Conforme mencionado anteriormente, nesta tipologia, ressaltamos os
edifícios do Paço Imperial e do Centro Cultural Banco do Brasil.
Correspondendo a 19,23% do total, o terceiro tipo de edifício, ainda
segundo Andrade Junior, refere-se “a conventos, hospitais e hospícios,
agrupados devidos à semelhança tipológica.” (ANDRADE JUNIOR, 2005, p.
08). A adaptação do antigo Convento de Santa Teresa, em Salvador, em
12
Arquiteta italiana, naturalizada brasileira. Emigrou para o Brasil em 1946, tendo vivido e trabalhado
no país até o fim da sua vida, (1914/1992).
2
2
9
9
Museu de Arte Sacra da Universidade Federal da Bahia
13
(Fig. 1.03), em 1958,
pode ser considerada como um marco histórico, no Brasil, para este tipo de
intervenção.
Fig.1.03 – Vista externa do Museu de arte Sacra, 2005.
Desta forma, consideramos, assim como este autor, que “a tipologia
do edifício sobre o qual se intervém cria limitações a respeito dos possíveis
usos. Porém, mesmo com essas limitações, as possibilidades projetuais são
ainda infinitas.” (ANDRADE JUNIOR, 2005, p. 08).
Para que as intervenções estejam no limite da adaptabilidade
aceitável, Cyro Lyra estabelece três condições para o novo uso:
“1 – qualidade de intervenção, isto é, uma intervenção de valor
arquitetônico ou que seja capaz de agregar valores ao bem.
2 – reversibilidade, ou seja, uma intervenção que possa ser
desfeita de modo a restabelecer a situação pré-existente.
3 – harmonização com o conjunto, quer dizer, uma intervenção
que não altere a leitura do todo.(LYRA, 2005, p.165)
As necessidades do novo programa quase sempre exigem
modificações diversas; e, no que diz respeito à transformação de um edifício
histórico em centro cultural, a instalação de vários equipamentos se torna
necessária devido à complexidade do programa.
13
Fundado em 1959, o Museu de Arte Sacra da Universidade Federal da Bahia foi inaugurado no
espaço onde funcionavam o Convento de Santa Teresa e a igreja de mesmo nome. Antes dessas
construções, havia um hospício no terreno, doado por Dom Afonso VI, rei de Portugal.
3
3
0
0
A FINALIDADE EXPOSITIVA E CULTURAL
Segundo especialistas, os primeiros exemplares de edificações
adaptadas para finalidade expositiva, datam do início do século XIX. Em
conseqüência, com o desenvolvimento da idéia modernista, que pretendia
transformar o museu em um local não só expositivo, mas em espaço
participativo e atuante, com a realização de múltiplas atividades culturais,
imprimindo-lhe a função de cunho social, o programa dos museus foi revisto
e ampliado.
Segundo a filósofa Otília Arantes,
a cultura deixou de ser um direito conquistado pelos
trabalhadores no processo da Revolução Industrial para se
tornar a mola propulsora da máquina que rege o capitalismo.
Dessa forma, os centros culturais passam a ser centros de
convivência e, acima de tudo, centros de conveniência, onde
as pessoas possam encontrar bens de consumo e serviços que
as propiciem ficar o maior tempo possível nesses lugares,
desenvolvendo um número cada vez mais diversificado de
atividades. (ARANTES, 1998, p. 152).
Sobre o fato de a cultura tornar-se um segmento cada vez mais
importante para o desenvolvimento integrado das cidades, e para o
crescimento econômico propriamente dito, Maria Balaban declara no texto
“Os indicadores quantitativos da cultura”, que:
a cultura, nesse novo cenário, comparece tanto como
importante segmento produtor e empregador nas áreas de
bens e serviços (indústrias culturais, lazer e turismo cultural, valor
simbólico agregado a outros serviços e mercadorias, como
vestuário, móveis, arquitetura, etc.). (BALABAN, 1998, p. 445)
No que diz respeito à valorização a que o monumento histórico sofreu,
e com a nova política cultural das últimas décadas, Françoise Choay, em “A
alegoria do patrimônio”, declara que
criaram-se mecanismos destinados a valorizar o patrimônio – no
caso dos museus, receptáculos deste patrimônio – e a
transformá-lo em produto econômico, dentre as quais
destacam-se a restauração, a revitalização, o mise-en-scène, e
a animação cultural. (CHOAY, 2001, p. 112).
3
3
1
1
Para tanto, prossegue Choay:
associam-se exposições, concertos, óperas, representações
dramáticas, desfiles de moda ao patrimônio, que os valoriza;
este por sua vez pode, em decorrência dessa estranha relação
antagônica, ser engrandecido, depreciado ou reduzido a
nada. (CHOAY, 2001, p. 216).
Somado a este fato, os museus e centros culturais localizados em
edifícios históricos, promoveram a revitalização da área na qual estavam
inseridos e, com isso, houve um incremento da atividade turística nesses
locais.
Para absorver a demanda do turismo, as instituições museológicas
tradicionais precisaram promover também atividades que suprissem essa
demanda, transformando-se em centros culturais. Estes, hoje, constituem-se
de espaços destinados a diferentes atividades culturais, incluindo as salas de
cinema e teatro, a biblioteca, os cafés e restaurantes.
Segundo Joffre Dumazedier,
as instituições desse tipo foram criadas a partir da valorização
do tempo dedicado ao lazer iniciada na França por volta da
década de 50 deste século, com reflexos das atividades ligadas
à cultura de massa. (DUMAZEDIER Apud SILVA, 2000, p. 07).
Na condição de um dos primeiros exemplares de centro cultural, no
formato mais aproximado do que estudamos, o Centre National d’Art et
Culture Georges Pompidou, em Paris, é citado por Luís Milanesi, que
comenta sobre este programa:
este estabelecimento público favorece a criação das obras c.5(pú).7(e)
3
3
2
2
arquitetônicos é oferecer ao leitor a diversidade formal e programática
desses edifícios nos dias de hoje. Dentre as “categorias” arquitetônicas
apresentadas, destacamos: Museums, Art galleries e Cultural Centers and
Foundations, por melhor representarem o objeto de estudo desta
dissertação.
Segundo Cerver, “se existe uma idéia que simboliza o pensamento
moderno, é a de Museu.”
14
(CERVER, 2005, p. 244). Cerver ressalta a
revolução tecnológica como transformadora não só do nosso estilo de vida,
mas também dos museus, que agora se transformaram em atrações
turísticas. De acordo com essas características, os exemplos apresentados
pelo autor são: Nariwa museum, Forest of Tombs Museum, Modern Art
Museum of Fort Worth e Hyogo Prefectural Museum of Art.
A categoria “Museu de Arte” é definida por Cerve pelo:
Objetivo de reunir (colecionar) obras de arte de todos os
períodos, incluindo aqueles mais distantes no tempo e no
espaço, é um fenômeno recente e inseparável da
modernidade.(...) A galeria e museu de arte nasceram ao
mesmo tempo que a consolidação de pensamento científico e
a publicação dos primeiros tratados em história.
15
(CERVER,
2005, p. 266).
Os exemplos escolhidos para representar esta categoria demonstram
a evolução dos diferentes modos de compreender a arquitetura de espaços
culturais que, então, se proliferaram. Entre estes se encontram: Palis dês
beaux-arts de Lille, Guggenheim Museum, Stockolm Museum of Modern Art,
Chicago Museum of Contemporary Art, Arken Museum of Modern Art,
Hamburg Museum of Contemporary Art, San Francisco Museum of Modern
Art, P.S. 1 Museum, MACBA, The Lounge, Louvre Pyramid, Museum of Rock Art
e Gagosian Gallery.
Segundo o autor, a categoria “Cultural Centers and Foundations” não
14
If there is one idea that symbolizes modern thinking, it is that of the museum.”
15
“the interest is systematically collecting works of art from all periods, including those more distant in
time and space, is a recent phenomenon and one that is inseparable from modernity.(...) The gallery
and museum of art were born at the same time as the consolidation of scientific thought and the
publication of the first treatises on history..”
3
3
3
3
difere substancialmente das demais estruturas intituladas de instalações
culturais.
Essa categoria foi adotada para destacar os edifícios que se
encontram no meio do caminho entre museu e galeria de arte,
entre galeria de exibição e espaço de espetáculo. Esta
categoria de centros culturais e Fundações engloba instituições
que normalmente são privadas, reúnem freqüentemente
trabalhos de um artista particular, movimento ou país. Estes
projetos celebram a história ou tradição de um lugar ou agem
como um registro perpétuo de algo significante.
16
(CERVER,
2005, p. 301).
Os exemplos apresentados pelo autor são: Chinati Foundation, Louis
Jeantet Foundation, Cartier Foundation, Galician Center for Contemporary
Art, Cracow Center for Japanese Art and Technology, Stiklestad Cultural
Center, Institute of the Arab Wold e Yerba Buena Visual Arts Center.
Sendo mais específica, Ruth Verde Zein, no texto “Museus em sete
versões” de 1991, apresenta sete categorias de museus, dentre as quais
destacamos os “complexos culturais e cívicos” e “galerias e centros de arte
contemporânea”, por melhor se enquadrarem na categoria de centro
cultural.
3
3
4
4
-lo, pois tendem a adquirir coleções com o tempo. [...] Na
maioria dos casos utilizam edificações recicladas ou ampliam
edifícios existentes, de valor histórico ou simples bens de valor
econômico que se considera interessante preservar. (ZEIN, 1991,
p. 48).
Em 1963, c
om relação aos museus, Rodrigo Melo Franco de Andrade
afirmou que:
a função dos museus, na sociedade contemporânea, adquiriu
tal relevo e tem produzido tais benefícios culturais, que a
criação de um deles, com a categoria e as condições
desejáveis, constitui realização de mérito indiscutível. Prova do
valor cada vez maior atribuído universalmente a essas
instituições é sua multiplicação e prestígio nos Estados de regime
socialista, ao mesmo tempo que nos países mais evoluídos no
regime da democracia representativa. (ANDRADE apud
GUIMARAENS, 2004, p.0 5)
A política defendida pelo ICOM
17
, fez com que o conceito de museu
se ampliasse até às definições atuais nas quais “os museus devem tornar-se
cada vez mais centros culturais para as comunidades nas quais operam.”
Para cumprir essa meta, o programa de museus e centros culturais, segundo
Montaner, “no caso de abrigarem obras de arte contemporânea, precisam
contar com espaços de dimensões e formas adequadas para as
características das obras de vanguarda das últimas décadas.” (MONTANER,
1991, p. 36)
Com referência ao programa de um centro cultural, Montaner afirmou
ainda que “os grandes complexos culturais precisam saber articular em um
único edifício, ou em uma seqüência de intervenções em um conjunto
histórico urbano, toda uma série de serviços heterogêneos.” (MONTANER,
1991, p. 35)
Sendo assim, conforme declara Vânia Polly, “os museus não seriam
mais considerados meramente depósitos ou agentes de preservação da
memória de um país e de sua herança cultural, mas instrumentos poderosos
de educação.” (SILVA, 2000, p. 15).
17
ICOM – International Council of Museums – Conferência geral de 1974. Trecho de uma citação feita
por Mario sérgio Mieli in Citação de Museums for the 1980’s, de Keneth Hudson.
3
3
5
5
Vânia Polly, ainda sobre esse tema, afirma que “a noção de museu
inclui os centros culturais, tendo em vista que, por definição, estes espaços
constituem uma das manifestações mais recentes da evolução do conceito
de museu.” (SILVA, 2000, p. 02).
Em dissertação de mestrado, calcada em grande parte nas teses
defendidas por Montaner e Zein (1991), Vânia Polly apresenta uma
configuração mínima, na qual o programa de museu poderia estar resumido
em:
“ Público = exposição
Apoio = administração
Acervo = reserva técnica (depósito)”. (SILVA, 2000, p. 53).
Acrescentando a essa configuração mínima para museus, as
atividades básicas inerentes ao programa de um centro cultural, conforme
identificadas em exemplos arquitetônicos desta categoria apresentados por
Francisco Cerver, o programa básico será composto de:
Salas de exposição;
Biblioteca;
Salas de exibição (teatro/ cinema/ auditório);
Loja;
Serviços (cafeteria/ restaurante);
Administração.
Com este atual e mais complexo conteúdo programático, a questão
da reutilização de edifícios históricos para finalidade de centro cultural se
torna cada vez mais difícil e polêmica.
Além do provimento técnico das áreas expositivas, faz-se necessária a
implantação de equipamentos que alteram a infra-estrutura do edifício, e
podem deixá-los mais vulneráveis a futuras deteriorações, caso não sejam
observadas as regras básicas de segurança.
Rosina Ribeiro apresenta, em tese de doutorado (2000), algumas
recomendações para reutilização dos edifícios históricos. A autora indica três
fatores a serem analisados: o físico, o funcional e o comportamental.
3
3
6
6
Quanto aos fatores físicos, a autora declara que “não necessitam de
recomendações específicas, pois a utilização dos materiais já está
consolidada através de normas da ABNT ou mesmo pela experiência de seu
uso através dos tempos.” (RIBEIRO, 2000, p. 160). Mas, ressalta que, em se
tratando de intervenção de restauro, as características técnicas e os
comportamentos físicos e mecânicos dos novos materiais a serem utilizados,
devem ser bem conhecidos, “para que a interação do novo material com o
antigo não cause patologias, diminuindo a vida útil do bem.” (RIBEIRO, 2000,
p. 161)
Os fatores comportamentais se referem à imagem do edifício, como
testemunho histórico, “a fim de se obter uma identidade cultural e a
conseqüente simbologia da edificação”. (RIBEIRO, 2000, p. 161) Estes fatores
constituirão a base do projeto de marketing para a divulgação do edifício e
das obras nele expostas.
Dentre os fatores funcionais, a autora destaca a segurança, para a
preservação dos bens; a credibilidade da instituição e presença do público;
a circulação, para funcionários e visitantes; o armazenamento, intervenções
e mudança, constituindo os depósitos para os materiais de escritório, limpeza
e material museográfico; a flexibilidade, quanto ao uso dos ambientes,
possibilitando a realização de exposições de tipos variados sem intervenções
físicas no edifício; a comunicação visual e sinalização, tanto para a
exposição como para a história do edifício; e a adequação aos portadores
de necessidades especiais, dentro dos limites do edifício e para atender a
legislação vigente, como item imprescindível na reutilização dos edifícios
históricos para centro cultural.
Quanto à reutilização dos edifícios históricos para finalidade cultural
acreditamos, em acordo com Ribeiro que “é fundamental, também, uma
diretriz eficaz, tanto na programação cultural como na área administrativa,
sempre destacando o valor histórico e cultural do bem.” (RIBEIRO, 2000, p.
163).
3
3
7
7
LIMITAÇÕES PARA REUTILIZAÇÃO EM EDIFÍCIOS HISTÓRICOS
Atualmente, a reciclagem de um edifício histórico, além de ser
submetida aos diversos órgãos fiscalizadores dos bens tombados, deve
satisfazer as normas de segurança, acessibilidade, proteção contra incêndio
e outras, conforme uma construção nova.
Guimaraens declara que:
atualmente, a maioria dos museus existentes em centros
urbanos é composta de edifícios históricos com uso original
alterado, o que faz com que a utilização apropriada e as
condições de manutenção sejam pontos imprescindíveis à
conservação dessas expressões arquitetônicas. (GUIMARAENS,
2004, p. 06-07).
Apesar de ainda ser um tema bastante debatido, a adequação de
uso de edifícios históricos já era defendida por muitos intelectuais, conforme
podemos constatar na declaração de Nestor Goulart Reis Filho, datada de
1970, onde este pesquisador afirma:
(....) falta uma rede de centros de cultura a partir dos quais
seriam coordenadas, em todas as áreas, as atividades culturais.
Esses centros podem ser instalados em edifícios restaurados ou
conservados, obras arquitetônicas representativas de cada
fase, que seriam desse modo, postas em contato permanente
com o público, confirmando e reforçando sua destinação
cultural. (REIS FILHO apud GUIMARAENS, 2004, p. 06).
Se por um lado a instalação de centros culturais em edifícios históricos
constitui uma situação adequada para a requalificação do patrimônio
arquitetônico, resgatando-o de um eventual abandono e conferindo-lhe
novos usos, por outro, esta requalificação tende a ser controversa, pois se
trata de um programa complexo que, em muitos casos, não pode ser
completamente concretizado nos espaços existentes.
Segundo Montaner, os museus que constituem os grandes complexos
culturais devem “saber articular, em uma seqüência de intervenções em um
conjunto histórico urbano, toda uma série de serviços heterogêneos”.
(MONTANER, 1991, p. 35) Este autor complementa a recomendação
afirmando que “cada uma de suas partes – vestíbulos, escadas- deve ter
3
3
8
8
dimensões e formas adequadas a essa função de museu nacional.”
(MONTANER, 1991, p. 35)
Arquitetos, museólogos e demais profissionais das instituições
museológicas, m resolvido o problema da adequação dos espaços dos
edifícios históricos transformados em museus e centros culturais. Vânia Polly
ressalta que “o problema maior foi verificado quanto à adequação técnica,
ou seja, instalações relativas à climatização, iluminação, informatização,
segurança dos edifícios e acesso para deficientes.” (SILVA, 2000, p. 119).
Dentre esses problemas causados pela imperiosa adequação técnica,
Polly cita os relativos aos “espaços destinados à casa de máquinas, rede
elétrica, cabeamento de dados, dutos e saídas para ar condicionado,
elevadores, rampas de acesso etc.” (SILVA, 2000, p. 119).
Mesmo possuindo um programa flexível, com grande liberdade
projetual, o museu tem diversas necessidades inerentes à função de expor e
preservar.
Polly declara que “é na arquitetura que, ainda que vista na condição
de obra de arte ou ainda na restrição às intervenções em edifícios históricos,
as renovações de uso mais evidenciam o conflito forma x função.” (SILVA,
2000, p. 16).
Com o passar dos anos, os programas dos museus e centros culturais
tornaram-se mais complexos para atender às necessidades das novas
tecnologias de comunicação, conforto do usuário e conservação do
acervo. Neste sentido é que grandes museus vêm sofrendo intervenções que
pretendem reorganizá-los espacialmente, inclusive através de acréscimos ou
adições.
Porém, quando trabalhamos com edifícios históricos, tombados ou
preservados, essas intervenções para reorganizá-los tornam-se muito difíceis,
pois não temos a flexibilidade projetual de um edifício comum, isto é, sem ser
preservado.
Os acréscimos nesses casos tornam-se praticamente inviáveis, pois
estariam promovendo uma alteração na volumetria do edifício. A solução
encontrada pelos arquitetos, quando isto se faz necessário, é dotar poços e
3
3
9
9
pátios internos com coberturas em vidro e estrutura metálica, promovendo o
aumento das áreas expositivas sem alterar a arquitetura.
Dentre os projetos que realizaram tal tipo de acréscimo, destaca-se o
projeto de Norman Foster para o grande pátio do British Museum em Londres
(1994-2000), que pode ser apresentado, entre outros, com maior relevância,
uma vez que, com a colocação de uma cobertura, ampliou em 50% a área
expositiva. (Fig. 1.04/1.05)
No Brasil, uma intervenção similar à do British Museum, ocorreu na
Pinacoteca de São Paulo (1933-1998), onde o arquiteto Paulo Mendes da
Rocha fechou os três pátios existentes com coberturas planas de vidro e
malha estrutural metálica. (Fig. 1.06)
Fig. 1.04/1.05– British Museum, a esquerda, vista aérea do conjunto e a direita, vista
interior do pátio para a cobertura em vidro, 2005.
Fig. 1.06 – Pinacoteca de São Paulo - vista interna da cobertura do pátio, 2005.
4
4
0
0
Outra solução que vem sendo adotada pela administração dos
centros culturais é a construção de um edifício anexo, onde possam ser
armazenadas as obras de arte, e suprir a falta de espaços para o pleno
funcionamento das atividades culturais.
Em alguns casos a proposta se refere à construção deste anexo no
pátio interno da edificação histórica. Recentemente, uma proposta deste
gênero causou polêmica entre os técnicos e órgãos do patrimônio, para o
edifício do Museu Nacional de Belas Artes. A proposta previa, entre outros
pontos, a inclusão de uma
torre de 14 pavimentos (com 70 metros de altura),
de térreo livre, que ocuparia o pátio central do edifício, com 30 x 30 metros
(Fig. 1.07).
Segundo os autores, dentre eles o arquiteto Paulo Mendes da Rocha, o
volume não interfere na escala do museu e do entorno, ficando dentro do
gabarito da região e, do ponto de vista do pedestre, praticamente
imperceptível.
Porém, o que percebemos no projeto de Mendes da Rocha é o claro
contraste que seria criado entre as duas linguagens do edifício: a moderna e
a eclética.
Fig.1.07 – Museu Nacional de Belas Artes, proposta para construção de uma torre no
pátio do edifício, 2005.
4
4
1
1
Outra importante abordagem sobre a questão da adaptação de
edifícios históricos em museus e centros culturais se refere ao tipo
arquitetônico e a relação deste com o programa original.
A esse respeito, Cyro Lyra afirma que:
a reciclagem de um monumento para novo uso tem, entre
outros, a limitação imposta pelo caráter da arquitetura em
questão. As alternativas de destinação de uso não são
ilimitadas, decorrem, basicamente, de características
arquitetônicas ditadas pelo programa inicial. A função original
marca definitivamente a obra arquitetônica, caracteriza-a,
incorpora aquela obra a uma determinada família. (LYRA, 2005,
p. 157).
Sendo assim, a tipologia do edifício sobre o qual se intervém cria
limitações a respeito dos possíveis usos. Porém, mesmo com estas limitações,
as possibilidades projetuais podem ainda ser infinitas.
Outro fator que não pode ser desconsiderado em relação à
reutilização dos edifícios históricos em centros culturais, se refere à
permanente atualização das coleções e ao fato de o espaço museográfico
constituir um laboratório para os artistas contemporâneos. Neste sentido,
Helena Barranha e Ana Tostões declaram que:
a versatilidade espacial deve contemplar a pluralidade de
escalas e suportes plásticos inerentes à arte do século XX, bem
como propiciar a contínua revisão dos conteúdos expositivos
ou novas perspectivas sobre os acervos, tal como privilegiar a
capacidade de adaptação a novas solicitações
programáticas, associadas à realização regular de exposições
temporárias e atividades complementares. (BARRANHA;
TOSTÕES, 2005 p. 03).
As características formais, as restrições de área e a rigidez de
compartimentação e percursos associados a determinados imóveis históricos
podem dificultar a adequação do edifício ao programa museográfico.
Para melhor explicar os sentidos e significados dos espaços dos
edifícios históricos destinados ao uso cultural, apresentaremos no capítulo
seguinte as formas de análise da arquitetura estudadas e que serviram de
base para as abordagens aqui elaboradas.
S
S
O
O
B
B
R
R
E
E
A
A
A
A
N
N
Á
Á
L
L
I
I
S
S
E
E
D
D
A
A
F
F
O
O
R
R
M
M
A
A
A
A
R
R
Q
Q
U
U
I
I
T
T
E
E
T
T
Ô
Ô
N
N
I
I
C
C
A
A
CAPÍTULO
II
4
4
3
3
O primeiro capítulo tratou dos aspectos conceituais que fundamentam
as mudanças de uso do patrimônio arquitetônico. Assim, na seqüência do
trabalho, neste segundo capítulo, abordaremos a forma, constituindo
finalmente o binário “forma-função”.
Para tanto, iniciamos discorrendo sobre os conceitos de arquitetura e a
definição do conceito de forma. Em seguida, apresentamos as principais
teorias de análise e compreensão da forma arquitetônica, destacando
aquelas relacionadas com os aspectos morfológicos e tipológicos para os
edifícios com finalidade cultural.
Estes temas relacionados à forma foram aqui organizados em duas
partes. A primeira parte, com base nos textos de Roger Clark e Michael
Pause, Francis Ching e Baker Geoffrey, refere-se aos aspectos exteriores da
arquitetura dos edifícios; e a segunda, fundamentada em textos de Josep
Maria Montaner, refere-se aos aspectos dos espaços internos da arquitetura
de museus.
Com o objetivo de estabelecer o processo comparativo da
adequação do patrimônio arquitetônico com finalidade cultural, as
metodologias de análise da forma arquitetônica apresentadas neste
capítulo serão utilizadas nos capítulos correspondentes às análises dos
edifícios do Paço e do Centro Cultural da Justiça Federal.
4
4
4
4
SOBRE O CONCEITO DE ARQUITETURA
Segundo Geoffrey Baker (1991), a arquitetura diferencia-se da pintura,
música e escultura, por abrigar as atividades humanas fazendo parte da sua
existência.
Por meio da arquitetura se compreende uma civilização, uma vez que
os edifícios revelam os centros de interesse da sociedade, a riqueza e
indigência, o clima e a posição entre as técnicas e as artes.
Sendo assim, Baker condiciona a compreensão da arquitetura a três
fatores básicos: “condições do lugar” (clima, topografia); “requisitos
funcionais” (organização) e “cultura” (influenciando o tipo de estrutura e
materiais empregados). Para melhor entendimento desses fatores, Baker
apresenta os significados do que denomina de princípios analíticos:
FORÇAS As três forças que atuam na arquitetura provêm do lugar, do
programa e da cultura dominante;
GENIUS LOCI – este termo refere-se ao espírito do lugar. A arquitetura deve
captar este espírito e abrigar as qualidades intrínsecas da paisagem e da
cultura;
A NATUREZA E A ARTE – Referem-se à tentativa de tornar permanente a
fugacidade das experiências estéticas;
A POESIA – A dimensão poética da arquitetura transforma o comum em
singular, sendo um espaço de trabalho e vivência, a obra arquitetônica deve
enriquecer e não só nutrir a vida;
O SIGNIFICADO E O USO – A arquitetura deve ter uma finalidade útil para a
cultura e deve prestar este serviço com eficácia. Os edifícios devem
explicitar sua finalidade de forma “inteligível”, devem informar claramente
seus desígnios;
A CULTURA E O SIGNIFICADO – Para que exista uma cultura é preciso que o
homem se integre em um mundo ordenado com base em interações
significativas. Em particular, a arquitetura é capaz de identificar as camadas
sociais, desde a igreja até o governo, desde o
papel das artes, lazer e
técnica, até a posição do indivíduo na sociedade;
4
4
5
5
O PROGRAMA E O LUGAR – O lugar, o programa e a cultura dominante são
as três forças que influem na arquitetura;
A ORIENTAÇÃO E A IDENTIDADE – Segundo Lynch, a imagem do entorno
consta de identidade, contexto espacial e significado;
MOVIMENTO – é um componente da arquitetura que permite que os
espectadores desfrutem de uma boa visibilidade e garantia de acessos e
saídas rápidas;
AS VISTAS – Também constituem uma força que usa a arquitetura para
organizar edifícios e cidades;
A ESTRUTURA E A GEOMETRIA - Entende-se por um modo de expressão
arquitetônica, podendo transmitir significados, como a força.
Para Baker as forças do lugar podem ser identificadas na Piazza San
Marco (Fig. 2.01), onde a presença da água exerce grande influência no
primeiro fator das “condições do lugar”.
Fig.2. 01 – Desenhos e foto da Piazza San Marco, Veneza, 1991.
A praça ocupa uma posição central em relação à boca do canal e se
conecta com a zona comercial e com o Rialto por meio de uma via direta.
Assim, os requisitos funcionais são caracterizados pelas vias e vistas.
4
4
6
6
O lugar é cercado por um labirinto de edifícios e ruas, com um encaixe
intrincado que contrasta com a ordem e definição da Piazza. Segundo
Baker, o conjunto se beneficia pelo enfrentamento dramático entre os
“mundos” antagônicos.
Quando trabalhamos com a reutilização de edifícios históricos para
finalidade cultural, a definição da força do lugar é fundamental para a
implantação da nova função, definindo acessos e a organização das
atividades a serem desenvolvidas.
Em alguns casos, pelo fato de o antigo uso do edifício não ser
compatível com a nova função, ou em virtude das transformações urbanas
ocorridas no entorno do edifício, se faz necessária a completa
reestruturação dos acessos, possibilitando assim o melhor desenvolvimento
das atividades.
Podemos citar a restauração da Pinacoteca
18
de São Paulo como um
exemplo deste tipo de intervenção. Um dos focos centrais do partido
elaborado por Mendes da Rocha, foi a inversão do eixo principal do edifício,
um exemplar eclético, e a mudança da entrada pela avenida Tiradentes,
atravessando transversalmente o bloco edificado. A entrada do público
passa a se fazer pela antiga lateral do edifício, pela praça da Luz, e o eixo
principal passa a atravessar o bloco edificado longitudinalmente (Fig. 2.02).
Neste sentido, Haroldo Gallo afirma que:
através da inversão do eixo principal, estabelece-se uma mais
forte relação e um mais intenso diálogo com o lado fronteiriço
da Estação da Luz. Prepara-se assim a futura relação dos
edifícios com outra estação do Metropolitano que deverá
ampliar enormemente a então existente nas imediações,
devendo todo o conjunto convergir para um espaço de praça.
(GALLO, 1999)
Devido a essa transformação, a leitura do espaço eclético original do
edifício foi destituída em função da valorização do novo uso.
18
O edifício, projetado para o Liceu de Artes e Ofícios de São Paulo, foi construído entre 1897 e 1900,
com autoria de Ramos de Azevedo e Domiciano Rossi. O projeto de restauro foi desenvolvido pelo
arquiteto Paulo Mendes da Rocha.
4
4
7
7
Fig. 2.02 – Pinacoteca São Paulo, entrada principal, 2005.
Alguns teóricos criticam esse tipo de intervenção, por acreditarem que
esta alteração pode anular o valor determinado para o edifício, substituindo-
o por um novo valor. Ainda com base no exemplo da Pinacoteca São Paulo,
Haroldo Gallo declara que:
Há inegável valor arquitetônico no resultado da solução
implantada, mas valor por si, que independeu da solução
anterior, que não se agregou ao edifício existente enquanto
produto intelectual, mas a ele se sobrepôs e nele se incorporou
apenas por meio de sua materialidade.
No que diz respeito à forma propriamente dita, Baker demonstra
analiticamente os aspectos que relacionam a arquitetura e a cultura, a
tensão e a harmonia, a permanência e a harmonia, e a harmonia através
da geometria.
A harmonia e a unidade, símbolos característicos do templo grego
(Fig. 2.03), são fruto do equilíbrio inerente à simetria da planta. Na unidade
convivem tensões antagônicas, ou seja, a coluna que representa a
verticalidade e a disposição espacial que ocorre horizontalmente.
A composição, por sua vez, adquire como base, um componente
rítmico muito forte: o ritmo principal que marca as colunas e os ritmos
secundários de métopas e triglifos.
4
4
8
8
Fig.2. 03 – Pathernon – 447/37, fachada ocidental, 2005.
O aspecto referente à permanência atribui à arquitetura a tarefa de
recolher “os modelos funcionais de cadência características, que constituem
uma cultura”
19
. Por sua vez, exige do arquiteto a segurança para que a obra
simbolize a essência desse encargo durante certo tempo.
A harmonia geométrica é apresentada por Le Corbusier por meio de
uma série de regras de desenho: volume, plano, geometria, traçados
regulares, superfície, ritmo e harmonia.
Baker (1991) apresenta outros aspectos da forma, utilizados para
compreensão e análises do edifício. A qualidade estável, por ele
determinada, significa a possibilidade do edifício ser visitado várias vezes e a
cada nova contemplação, possibilitar o descobrimento de novos aspectos
ou o reconhecimento daqueles anteriormente percebidos.
Essa qualidade é apresentada pela complexidade ou simplicidade da
obra, indistintamente. A arquitetura é sempre compreendida em sua
totalidade, se compondo de várias partes conexas que se convertem em
uma seqüência de experiências quando o observador se movimenta pelo
edifício.
Esta qualidade estável é percebida na maioria dos edifícios históricos
reutilizados para finalidade cultural, pois os espaços internos, constitdos
pelas salas de exposição, pátios (quando existem), escadas e espaços
destinados ao lazer, surpreendem o visitante na medida em que, durante o
percurso pelo edifício, surgem aspectos arquitetônicos alternados com as
19
“La permanência atribuye a la arquitectura el espacie cometido de recoger los modelos
funcionales, de cadencia característica, que constituyem uma cultura. A su vez, reclama del
arquitecto que assegure que la obra simbolice la essência de esse cometido durante cierto tiempo.”
(BAKER, 1991, p. 42)
4
4
9
9
obras expostas, favorecendo um leque diversificado de observações para
um mesmo objeto.
Outro aspecto refere-se à autoridade, para tanto, a obra precisa
inspirar confiança em virtude do domínio que o autor exerce sobre o meio. A
arquitetura apresenta esta característica quando a estrutura, a forma, as
proporções, o tratamento decorativo, e a iluminação estão interligados com
uma única idéia de transmitir uma sensação de espiritualidade de acordo
com o âmbito arquitetônico.
A autoridade nos projetos de adequação de uso dos edifícios
históricos ocorre quando a nova função a que se destinou o edifício é
compatibilizada com os aspectos arquitetônicos, sem que sejam
prejudicados, tanto o desenvolvimento das atividades, como a leitura dos
espaços internos.
A referência abstrata ou explícita da experiência vital constitui o
último aspecto apresentado por Baker. Como marco existencial, a
arquitetura participa diretamente da vida, e como forma artística, se mostra
como um elemento sublime e enriquecedor da vida. A arquitetura
proporciona teto, comodidade e ordem, se orientando pelas exigências
vitais.
Forma, espaço e ordem
O trabalho desenvolvido por Francis D. K. Ching (1998), “Arquitetura:
forma, espaço e ordem”, ilustra as maneiras como os elementos
fundamentais e os princípios do projeto arquitetônico se manifestam no
decorrer da história humana.
Utilizado para a análise gráfica da forma, estes desenhos visam
decompor exemplos significativos de objetos arquitetônicos tendo como
interesse principal a compreensão de suas qualidades formais
20
.
20
Por qualidades formais entende-se não somente suas características externas, mas principalmente
aquelas relações funcionais e estruturais que convertem um sistema em uma unidade coerente, seja
do ponto de vista do produtor, seja do ponto de vista do usuário.
.
5
5
0
0
Usualmente uma análise gráfica irá revelar aqueles aspectos
fundamentais de uma edificação. Para Ching os sistemas arquitetônicos são
constituídos pela própria arquitetura - do espaço, estrutura e delimitação -,
vivenciada através do movimento no espaço-tempo, realizada por
intermédio da tecnologia, acomodando um programa
5
5
1
1
respondendo aos significados que evocam. Constituem-se pelas imagens,
padrões, sinais e símbolos. Ching afirma que “a ordem arquitetônica é criada
quando a organização das partes torna visível seu relacionamento com
cada uma delas e com a estrutura como um todo.” (CHING, 2005, p. 10)
Outras definições de “Arquitetura”
No texto “Considerações sobre Arte Contemporânea” (2005), o
arquiteto Lúcio Costa apresenta a definição de arquitetura que pode ser a
mais adequada aos objetos deste estudo. Ao discorrer sobre os atributos
forma, função, espaço arquitetônico, técnica e objetivo social da
arquitetura, Lúcio Costa declara que:
pode-se definir arquitetura como construção concebida com a
intenção de ordenar e organizar plasticamente o espaço, em
função de uma determinada época, de um determinado meio,
de uma determinada técnica e de um determinado programa.
(COSTA, 2005, p. 246)
A arquitetura também deve ser definida por sua essencial matéria-
prima: o espaço. Para J. Netto, a “arquitetura é espaço interior e exterior,
configurado por materiais, necessidade e beleza.” (NETTO, 2002, p. 30).
Para complementar, observa-se que Ching afirma:
a forma e o espaço são apresentados não como fins em si
mesmos, mas como meios para solucionar um problema em
resposta à condições de função, propósito e contexto – isto é,
arquitetonicamente. (CHING, 2005, p. 09).
Assim, o autor quer dizer que a forma e o espaço constituem meios
cruciais para a arquitetura, compreendendo um vocabulário de projeto que
é tanto elementar quanto atemporal.
Sendo assim, a arquitetura é idealizada, projetada e materializada em
resposta às condições existentes, de natureza funcional e de ordem social,
política e econômica. Define-se ainda como a arte ou técnica de projetar e
edificar o ambiente habitado pelo ser humano.
Desta forma, quando se fala em arquitetura fala-se, entre muitas outras
coisas, da organização do espaço, pois como ressaltou Bruno Zevi, “a
5
5
2
2
edificação do espaço, como exercício essencial do arquiteto, precede a da
construção de edifícios”. (ZEVI, 2000, p. 28).
Segundo Scruton, a arquitetura enquanto arte vai além das
contemplações das exigências funcionais de um programa, porque os traços
de distinção da arquitetura frente às outras artes são:
a utilidade ou a função, a identificação com o local em que se
encontra ou o meio ambiente, a técnica, o caráter do objeto
público e finalmente, como traço mais importante, sua
condição de arte vernácula. (SCRUTON apud LYRA, 2005, p. 19)
Resumidamente, estes traços se apresentam como: forma, função –
técnica e espaço, como podemos perceber no diagrama (Fig. 2.04)
apresentado por Ching.
Fig. 2.04 – Diagrama dos elementos que constituem a Arquitetura, CHING, 1998.
No entanto, os elementos físicos da arquitetura decorrem em grande
parte da função do edifício e se constituem em componentes iniciais na
caracterização da obra arquitetônica.
Com base nesta consideração, a definição da arquitetura foi
simplificada pelo binário “forma-função” pelos modernistas que adotaram o
slogan “a forma segue a função.” Porém, quando tratamos de projetos de
restauração, a forma já foi concebida, e é a função que deverá seguir a
forma. Assim, a função determinada para a adequação de uso do edifício,
quando diferente do uso original - o que acontece na maioria dos casos de
restauração arquitetônica - deverá, sempre que possível, ser compatível
com a forma pré-existente, agregando valores ao edifício.
5
5
3
3
Portanto, deve-se verificar se a nova função é condizente com as
vocações da tipologia arquitetônica do edifício, pois, segundo Cyro Lyra,
“cada tipo arquitetônico possui um leque finito de vocações de uso.” (LYRA,
2005, p.61). Sobre esta posição, Andrade Junior afirma que “mesmo com
estas limitações (a respeito dos possíveis usos) as possibilidades projetuais são
ainda infinitas.” (ANDRADE JUNIOR, 2005).
Dessa maneira, concordamos com Andrade Junior quando este
afirma que:
as intervenções de adaptação ou reciclagem de monumentos
históricos podem sempre variar entre intervenções mais
conservadoras e que tentam compreender a lógica espacial e
distributiva do edifício e entre aquelas mais radicais, que
desprezam a organização espacial interna do edifício em que
intervêm, esvaziando-o ou modificando a sua espacialidade de
maneira radical. (ANDRADE JUNIOR, 2005)
5
5
4
4
SOBRE A ANÁLISE
A forma
Segundo Montaner (2002), no século XX, a maneira de afrontar a
forma arquitetônica foi modificada quando o sistema Clássico estético-
compositivo foi dissolvido, desaparecendo as leis compositivas universais.
Os repertórios formais tenderam a ser inventados por um único
artista e receberam somente um grau limitado de aceitação
geral. E o desenvolvimento aberto que já surgia com as
vanguardas artísticas não tendeu a diminuir, mas sim, aumentou
continuamente ao longo do século. (MONTANER, 2002, p. 08)
Assim, de acordo com Mahfuz,
o conceito de forma tem resultado em muita confusão, pois lhe
são atribuídos dois significados de sentido oposto. Enquanto
para muitos o termo forma se refere à aparência de um objeto,
ao seu aspecto ou conformação externa, tornando-se sinônimo
de figura (gestalt), na arquitetura moderna a forma se identifica
com o conceito moderno de estrutura. (MAHFUZ, 2003, p. 73)
Em consequência, a arquitetura pode ser abordada de várias
formas
21
: a morfológica, que procura compreender a “forma” do objeto
arquitetônico; a historicista ou determinista, que enquadra a arquitetura
como objeto produzido dentro de uma sociedade e contexto histórico
específico o qual solicita, promove e valoriza a obra; a psicológica, que
procura explicar a obra a partir da biografia, da psicologia ou de um estado
de alma do autor.
Apresentam-se ainda a forma prospectiva ou modelar, que se refere à
adequação ao contexto presente e futuro e estabelece as discussões das
tradições formais passadas ou mesmo presentes; a semiótica ou
estruturalista, onde os elementos da arquitetura são pensados como signos,
compostos de significantes e significados denotados e conotados; e a
21
Essas “classificações” referentes às abordagens da arquitetura foram abordadas por Carlos Antônio
Leite Brandão no texto “Os modos do discurso da teoria da arquitetura”, publicado no Cadernos de
Arquitetura Ritter dos Reis. Crítica na Arquitetura. Porto Alegre: Ritter dos Reis, v. 3, jun. 2001.
5
5
5
5
hermenêutica, que se concentra na interpretação dos sentidos
arquitetônicos.
Abordaremos aqui apenas a metodologia formalista que se propõe a
enfatizar os termos do fazer artístico, tratando dos problemas da forma
entendidos como totalidade orgânica e sua dinâmica de formação. Os
aspectos formais importam para identificar o modo como o autor
compreendeu a arquitetura e traduziu em forma sua uma concepção de
espaço e de mundo.
Segundo Brandão, “as mais antigas concepções formais da arte
remontam aos gregos, como na concepção pitagórica das harmonias
musicais.” (BRANDÃO, 2001, p. 55) Na arquitetura, as encontramos nas
relações numéricas simples documentadas por Vitrúvio.
No período do movimento moderno o conceito de forma, segundo
Montaner, “sempre implicou em um julgamento negativo do ‘formalismo’, de
obras baseadas na aparência e não no conteúdo.”
(MONTANER, 2002, p. 10).
Neste sentido, observamos que os primeiros arquitetos restauradores
brasileiros, os quais faziam parte do movimento moderno, priorizavam a
forma e deixavam a questão da reutilização, isto é da função, para um
segundo plano. Sobre esse respeito Cyro Lyra afirma que:
São raros os registros que mostrem a definição do uso ao mesmo
tempo em que se equacionava a restauração dos
monumentos. Compreendia-se a importância da utilização
como instrumento para a preservação, mas a prática de um
modo geral, em edifícios destituídos de função, foi sempre
começar pela restauração e depois definir seu uso. (LYRA, 2005,
p.166)
Na atualidade, a maioria dos arquitetos reconhece que a forma
resolve e sintetiza a complexidade da arquitetura. De acordo com esta
afirmação, Rafael Moneo declara que “a presença da forma é necessária
para qualquer construção, [...] é a garantia da liberdade do arquiteto.”
(MONEO apud MONTANER, 2002, p.10)
Porém, conforme dito aqui exaustivamente, na adequação de uso de
um edifício histórico para um uso diverso do original, a avaliação da
pertinência da função pretendida é uma das primeiras questões a ser
5
5
6
6
levantada. Portanto, com relação a esse problema, Lyra afirma que “deve-
se verificar se a nova função é condizente com as vocações daquela
tipologia arquitetônica”. (LYRA, 2005, p.189)
Com relação à adequação de uso, Cyro Lyra afirma que:
verificou-se que em edifícios de grande expressividade plástica
(palácios e igrejas, por exemplo) as adaptações tendem a
seguir a linha da conservação reverente no sentido da
valorização do existente. (...) Nos edifícios destituídos de função
estética (fábricas, ...)o uso vai conduzir a intervenção,
frequentemente em detrimento do edifício. (LYRA, 2005, p. 63)
Os métodos
A seguir estão expostos trechos escritos por analistas reconhecidos que
construíram metodologia apropriada nesta dissertação.
O modo formalista surge da teoria da visualidade pura, que privilegia a
forma e o processo, formulada no século passado por Konrad Fielder e Aloïs
Riegl. Esta teoria também norteou os conceitos principais da história da arte
formuladas por Henrich Wölfflin.
A discussão proposta por Wölfflin (1989) tem a dupla importância de
buscar uma metodologia do estudo da arte e arquitetura que se configura
numa gramática de conceitos visibilistas, que requerem o uso da percepção
e do corpo. Além disso, identifica dois arquétipos presentes na história da
arquitetura, que se referem às fontes de unidade encontradas na
antigüidade greco-romana ou na modernidade, ou seja o clássico e o anti-
clássico.
Desse modo, Heinrich Wölfflin, no livro “Conceitos Fundamentais da
História da Arte” (1989), reduz os sistemas de signos representativos às formas
universais de representação. Designa 5 pares de conceitos opostos, que se
propõem a representar aquelas que considera as duas grandes direções da
arte do mundo ocidental: a representação e a expressão, respectivamente,
clássico e anti-clássico.
5
5
7
7
Wölfflin não considera o aspecto espacial ao aplicar suas categorias
no campo da arquitetura, enquanto que Bruno Zevi (1996) trata o espaço
como forma objetiva cujo percurso histórico se resume na substituição da
matéria pelo vazio.
Na década de 1960, Peter Einsenman realizou uma pesquisa formal
sobre os elementos da arquitetura moderna, utilizando diagramas
topológicos, pois este tipo de modelagem permite que as relações
topológicas sejam representadas por continuidade ou por descontinuidade
de superfícies, facilitando as observações dos volumes arquitetônicos. (Fig.
2.05).
Fig. 2.05 - Cidade da Cultura, Santiago de Compostela, análise volumétrica, 2000.
Na década de 1980, Roger Clark e Michael Pause desenvolveram um
trabalho específico sobre análise gráfica, denominado “Arquitecture: temas
de composiciòn” (1997), centralizando as interpretações nas formas
construídas. Sem observar a necessidade de coincidir com as intenções do
arquiteto nem com qualquer outra explicação, o estudo enfocou a análise
das peculiaridades formais e espaciais com a utilização de ferramentas que
auxiliam na compreensão do parti.
22
Na década seguinte, Francis D.K. Ching elaborou o trabalho
denominado “Arquitetura: forma, espaço e ordem” (1998), onde apresenta
ilustrações dos elementos componentes da arquitetura e os princípios
fundamentais do projeto arquitetônico.
22
Para Roger Clark e Michael Pause, parti se refere ao partido arquitetônico.
5
5
8
8
Outro livro, nesta mesma década, é o “Analisis de la forma” de
Geoffrey Baker (1991), que propõe metodologia de análise da arquitetura
abordando os fatores organizadores fundamentais para o edifício e o
projeto.
Conforme antes mencionado, esta compilação de textos teórico-
metodológicos e análises da forma arquitetônica fundamentou a
comparação da adequação de edifícios considerados patrimônio
arquitetônico para a finalidade cultural, assunto tratado nos capítulos
correspondentes ao estudo do Paço Imperial e do Centro Cultural da Justiça
Federal, adiante apresentados.
5
5
9
9
A FORMA EXTERIOR E O ESPAÇO INTERNO
Nesta parte do trabalho estão comentados os temas que foram
definidos com base em leituras de análises sobre o espaço interior e a forma
exterior dos edifícios, elaborados por conhecidos críticos de arquitetura.
Dentre esses temas está a idéia de forma que para Josep Maria
Montaner “é a de forma entendida como estrutura essencial e interna, como
construção do espaço e da matéria.” (MONTANER, 2002, p. 08).
Assim, para a análise da forma exterior, seguimos as diretrizes definidas
por Roger Clark (1997), em “Arquitectura: Temas de Composiciòn”, Geoffrey
Baker (1991), em “
6
6
0
0
A forma exterior, a composição e o partido
Neste capítulo, procuramos também verificar as soluções de diferentes
arquitetos na resolução de temas e problemas de representação gráfica,
independente do tempo e do estilo dos projetos de arquitetura, portanto
apresenta-se a seguir o estudo de autores que tratam do conhecimento
histórico e das semelhanças fundamentais que permaneceram na produção
arquitetônica de reconhecidos arquitetos.
Roger Clark e Michael Pause, analisaram 88 edifícios projetados por 23
arquitetos, para o desenvolvimento do livro “Arquitetura: temas de
composição”, que se divide em duas partes. Na primeira intitulada “análise”
são apresentados os desenhos convencionais (bidimensionais) de projetos
de arquitetura onde a implantação, e outras informações estão
representadas em plantas, cortes e fachadas. Além disso, encontram-se
diagramas padrão, constituídos por onze diagramas analíticos e o diagrama
do esquema básico geral, ou seja, do parti.
23
Na segunda parte, os autores identificam e delimitam os modelos
formais arquetípicos – idéias geradoras – através de diagramas que
transmitem as relações e características essenciais do edifício.
O objetivo da análise de Clark e Pause é investigar as peculiaridades
formais e espaciais de cada obra através da comparação dos diagramas
analíticos, buscando identificar sua influência na determinação do partido
resultante. Assim, de acordo com os tópicos analíticos definidos pelos
autores, sublinha-se a interligação entre estes e o partido. (Diagrama 01).
23
Segundo Roger Clark e Michael Pause, parti é a idéia dominante de um edifício, sem o qual não
existiria a obra, essência do desenho, embrião gerador da Arquitetura, ou seja, o partido.
6
6
1
1
Diagrama 01 – Diagrama do partido arquitetônico elaborado com base nos elementos
definidos por Roger Clark e Michael Pause.
Os tópicos que Clark e Pause utilizam para a análise dos projetos são:
estrutura, iluminação natural, massa; além da geometria, adição e
subtração e hierarquia, os autores estudam as relações entre planta, corte e
fachada, entre circulação e espaço-uso, entre unidade e conjunto, entre o
repetitivo e o singular e a simetria e equilíbrio.
A estrutura é definida com o sinônimo “apoio”, e está presente em
todas as construções. A estrutura auxilia na definição dos espaços, na
criação de unidades, articula a circulação, sugere os fluxos e organiza a
composição. Logo, os pilares, as vigas e os fechamentos são considerados
como elementos definidores da idéia do arquiteto, o que é demonstrado
pelos autores na relação desta com os conceitos de freqüência, modelo,
simplicidade, regularidade e complexidade.
No tópico “iluminação natural”, o analisados o modo e o lugar onde
a iluminação penetra no edifício, a quantidade, a qualidade e a intensidade
da luz que influencia na forma de percepção da massa e do volume. Os
conceitos de tamanho, situação, forma de abertura, o material superficial, a
textura e a cor da iluminação natural influenciam sobremaneira nas decisões
do desenho, tanto nas fachadas quanto nos cortes.
A massa do edifício, que pode ser representada sob a forma de
configuração tridimensional, não consiste apenas na silhueta ou fachada,
mas no volume integral do edifício, embora mantenha alguma semelhança
com o perímetro ou mesmo com a soma de suas fachadas. Para esses
autores, a configuração ou massa está vinculada aos conceitos de
6
6
2
2
“contexto, agrupamento e modelos de unidade, singularidade,
multiplicidade, prioridade e secundariedade de elementos
24
. (PAUSE, 1997,
p. 04)
Ao relacionar planta, corte e fachada, Clark e Pause consideram a
planta como a geradora da forma, pois organiza as atividades em diferentes
áreas, reiterando a idéia ensinada por Le Corbusier
25
. O corte e a fachada
são representações mais relacionadas com a percepção da volumetria e
pressupõem a compreensão de que qualquer linha em qualquer dessas
representações gráficas incluem a terceira dimensão.
As considerações elaboradas a partir da planta, corte e fachada
influem nas configurações através dos conceitos de igualdade, semelhança,
proporção, diferença ou oposição.
A relação circulação versus espaço-uso representa o componente
mais relevante de todos os edifícios. O espaço-uso é o fator primário de
tomada de decisão na arquitetura e está relacionado à função. A
circulação é o elemento de ligação dos espaços. A relação entre espaço –
uso e circulação indica condições de privacidade e de conexões. A
importância atribuída ao uso ou à circulação exerce influência direta na
forma de um edifício.
Os edifícios podem compreender uma única unidade ou a agregação
delas. As unidades podem ser de natureza espacial ou formal, relacionadas
aos espaços-uso, à estrutura, à massa, ao volume ou à combinação desses
elementos. A natureza, identidade, expressão e relação das unidades com
as outras ou com o conjunto são primordiais no uso desta representação
gráfica.
24
Entendida como consecuencia del diseño, la masa puede proceder de decisiones ajenas a la
configuración tridimensional; vista como idea de diseño, admite que se la considere vinculada a los
conceptos de contexto, de agrupaciones y modelos de unidades, de singularidad y multiplicidad de
masa, y de prioridad y secundariedad de los elementos.” (PAUSE, pág. 4)
25
No livro Vers une architecture (Por uma arquitetura), Le Corbusier lançou as bases do movimento
moderno de características funcionalistas. A pesquisa que realizou envolvendo uma nova forma de
enxergar a forma arquitetônica baseada nas necessidades humanas revolucionou (juntamente com a
atuação da Bauhaus na Alemanha) a cultura arquitetônica do mundo inteiro. Entre as contribuições
de Le Corbusier à formulação de uma nova linguagem arquitetônica para o século XX se encontram
estes cinco pontos, formalizados no projeto da "Villa Savoye": Construção sobre pilotis, Terraço-jardim,
Planta livre da estrutura, Fachada livre da estrutura e Janela em fita.
6
6
3
3
A relação entre repetitivo e singular impõe aos elementos espaciais e
formais atributos que os traduzem em entidades múltiplas e únicas. O sentido
de “singular” é interpretado como sendo a diferenciação de elementos
segundo classe ou gênero e podemos identificar as características desses
atributos pela presença ou ausência de elementos diferenciadores no
edifício.
As distinções de repetição e singularidade são estabelecidas quando
se considera os conceitos de tamanho, orientação, localização, contorno,
configuração, cor, material e textura.
O tópico geometria engloba os conceitos de plano e de volume para
delimitar a forma construída. Segundo Pause, a geometria foi, ao longo da
história, uma ferramenta de representação gráfica de atuação muito vasta,
compreendendo níveis formais ou espaciais que incluem o uso do sistema de
proporções e de formas complexas geradas a partir de sua aplicação. A
geometria como forma geradora na arquitetura relaciona-se aos conceitos
de tamanho, localização, forma e proporção.
O uso dos conceitos de simetria e equilíbrio remonta às origens da
arquitetura. O equilíbrio é o estado da estabilidade perceptiva e/ou
conceitual. A simetria consiste numa forma específica de equilíbrio.
Para que exista equilíbrio é necessário que algum elemento do edifício
seja equivalente de modo reconhecido, na outra parte do mesmo. A
simetria e o equilíbrio se apresentam em três níveis: do edifício, do
componente ou da habitação. Esses níveis referem-se às escalas que, com
sua variação, formalizam a diferenciação entre equilíbrio e simetria. Outro
item refere-se à hierarquia, consistindo na manifestação física de uma
ordenação de categorias de um ou mais atributos. Compreende conhecer
as diferenças qualitativas e os valores relativos desses atributos e ordená-los
sob o domínio da forma, ou do espaço, ou de ambos.
Esta análise estuda a hierarquia em relação às propriedades de
predomínio e importância explícitas no edifício. Os indicativos de
importância considerados são: a qualidade, a riqueza, o detalhe, a
ornamentação e os materiais especiais.
6
6
4
4
O último item se refere à adição e subtração. Estes são aspectos que
se desenvolvem através do processo de anexação, agregação ou
segregação de formas construídas para criar a arquitetura. A utilização
simultânea de ambos possibilita congregar unidades que constituem um
conjunto do qual se segrega partes, ou ainda subtrair estas partes de um
conjunto identificado e reincorporá-las para criar o edifício.
O processo analítico outorga especial importância ao modo de
articular o edifício e de tratar a sua forma. Assim, após a análise da obra por
meio dos diagramas apresentados, retornaremos ao parti, (partido), que,
conforme apresentado no esquema básico geral (Fig. 2.06), constitui a idéia
predominante de um edifício e engloba as principais características deste.
O objetivo desta análise é investigar as peculiaridades formais e
espaciais de cada obra, por meio de critérios que remetam à compreensão
do partido. É uma análise realizada por meio de desenhos diagramáticos e
bidimensionais, decodificados graficamente conforme figura 2.07, proposta
pelos autores facilitar a compreensão da análise.
Fig.2. 06 – Diagramas com os tópicos utilizados na análise do centro cultural Wolfsburg,
segundo Clark e Pause,1997.
6
6
5
5
Fig. 2.07 – Legenda de padrões de representação gráfica para análise do parti,segundo
Clark e Pause, 1997.
Para desenvolver o nosso estudo, que diz respeito à análise da
adequação dos edifícios históricos em centros culturais de arte
contemporânea, utilizaremos os itens relativos à iluminação natural, relação
entre circulação e espaço uso e adição e subtração por melhor facilitarem,
em nossos casos, a compreensão das relações espaciais e formais.
Conforme se pôde observar na legenda de padrões para análise do
parti (Fig. 2.07), as representações gráficas que poderão ser aplicadas neste
estudo são:
Iluminação natural – são indicadas por meio de setas, direcionando a
luz solar em direção às aberturas de um espaço. Dessa forma, viabiliza
a análise do modo e lugar por onde penetra a iluminação natural do
edifício.
Com essa ferramenta podemos analisar a adequação dos
edifícios históricos, uma vez que a iluminação é um fator primordial
para a exposição das obras de arte;
Relação entre circulação e espaço uso – A circulação principal,
referente à museográfica, é indicada por setas grossas.
6
6
6
6
O uso dos espaços é representado pela cor cinza aplicada, no
caso dos edifícios em estudo, nos espaços referentes às áreas
expositivas. Não serão consideradas as atividades administrativas. Essa
convenção nos auxiliará na análise da circulação dos edifícios;
Adição e subtração – Podem representar a volumetria do edifício,
positivo e negativo, assim como as alterações realizadas nas plantas,
construído e demolido. São representados em branco as unidades
adicionadas e em cinza as unidades subtraídas.
Em nosso caso, essa convenção será utilizada para representar as inclusões
contemporâneas realizadas nos edifícios para adequá-los à nova função.
Para melhor visualização, o lugar onde as inclusões aconteceram serão
marcadas com o símbolo “X”, especificamente referente à localização dos
elevadores, escadas e rampas.
A Arquitetura de Museus
A definição a seguir é representativa do entendimento do conceito de
espaço aqui aplicado. Assim, o espaço é:
O espaço interno, aquele espaço que não pode ser
representado por completo sob forma alguma, que somente
pode ser apreendido e sentido por meio da experiência direta,
é o protagonista da arquitetura. Apreender o espaço, saber
como percebê-lo, é a chave para o entendimento do edifício.
(ZEVI apud CHING, 2000, p. 08)
Para melhor compreender os espaços estudados neste trabalho,
utilizamos o texto “Museu contemporâneo: lugar e discurso” de Josep Maria
Montaner onde o autor discorre sobre os “temas de projeto que abrangem a
questão da confrontação entre o lugar definido pela arquitetura -... – e as
obras que se exibem de acordo com um discurso expositivo.” (MONTANER,
1991, p. 34). Desse modo, Montaner elabora a análise dos espaços internos
dos edifícios destinados a museus, que fundamenta parte considerável desta
dissertação.
6
6
7
7
Os temas de projeto da arquitetura dos espaços museológicos
apresentados por Montaner são: o repertório tipológico, a hierarquia de
espaços (ordenação espacial), a relação forma-discurso, a iluminação
natural e artificial, os materiais de fundo e os sistemas de comunicação e
conforto ambiental, o que inclui ainda observações sobre as vitrines e os
suportes. Estes últimos, ou seja, as vitrines e os suportes não serão analisados
por entendermos que o se relacionam com os objetivos aqui propostos.
Repertório tipológico
O conceito de tipologia arquitetônica remonta à arquitetura
acadêmica francesa entre o final do século XVIII e início do século XIX, onde
Durand definia como tipo
tanto a estrutura interna da forma arquitetônica quanto o
processo metodológico do projeto baseado na articulação de
elementos e partes em planta e em fachada. (MONTANER,
2001, p. 110)
Para Montaner, “tipo seria a idéia genérica, platônica, arquetípica, a
forma básica comum da arquitetura.” (MONTANER, 2001, p. 148).
Na tetica “repertório tipológico”, este autor ressalta que a própria
tipologia do edifício sobre o qual se intervirá, estabelece limitações a
respeito de seus possíveis usos. Apesar das vastas possibilidades projetuais,
cabe à criatividade do arquiteto superar essas limitações face às exigências
do programa.
As decisões de intervenções para adaptação ou reciclagem de
monumentos históricos variam entre as mais conservadoras, nas quais se
compreende a lógica espacial e distributiva do edifício, e as mais radicais,
que desprezam a organização espacial interna do edifício.
A adoção dessas opções, ou entre as de posições intermediárias
dependerá, na maioria das vezes, dos objetivos do arquiteto relacionados às
questões de orçamento, interesses específicos do contratante, parâmetros
6
6
8
8
estabelecidos pela legislação e, principalmente, do ambiente cultural em
que ocorre a proposta de intervenção.
Montaner (1991), por sua vez, apresenta um repertório tipológico com
cinco possibilidades opostas entre si, estabelecidas em novos projetos de
edifícios contemporâneos destinados a museus atuais.
A primeira se refere aos modelos do movimento moderno, ressaltado
pela “planta livre e fluida”, como a idéia defendida por Norman Foster para
o museu Sainsbury Center (Fig. 2.08). Outro modelo, ainda no movimento
moderno, defendido por Le Corbusier, refere-se à idéia de museu de
crescimento ilimitado. O Endless Museum, refere-se a um projeto conceitual,
um museu suspenso de crescimento contínuo e ilimitado, baseado em uma
espiral que se desenvolvia a partir de um núcleo central, quadrangular,
sendo o interior definido por volumes infinitamente variáveis. (Fig. 2.09).
A segunda possibilidade, segundo Montaner, seria o sistema tradicional
de salas enfileiradas, tendendo ao sobredesenho e à abundância de
referências historicistas. (Fig. 2.10).
Outras possibilidades seriam: a “perversão tipológica”, onde a nova
proposta não consegue tirar proveito dos precedentes tipológicos para criar
uma estrutura de museu adequada (Fig. 2.11); e a referente às tentativas de
inovações tipológicas, resultando na criação de edifícios incrustados, semi-
enterrados, com percursos em diagonal, ou seja, a criação de novos
experimentos tipológicos. (Fig. 2.12)
Ainda segundo Montaner, há a possibilidade de reutilização
tipológica, que consiste na conversão de edifícios industriais, palácios,
armazéns, entre tantos, que se apresentam sem uso, em museus e centros
culturais. (Fig. 2.13).
6
6
9
9
Fig. 2.08 – Planta do Sainsbury Center na
Noruega (1974-77), concebida dentro do
modelo “planta livre e fluida”.
Fig.2. 09 – Museu do crescimento ilimitado,
Philippeville, Argélia, 1939, Le Corbusier.
Fig. 2.10 – Museu de arte de Dusseldorf,
projeto de James Stirling.
Fig. 2.11 - Museu de Arte Romana, Mérida.
A esquerda, vista externa do edifício e a
direita Salas laterais.
Fig. 2.12 - Volume incrustado no terreno
abriga áreas de exposição em dois veis
no Museu Municipal Abteiberg, de Hans
Hollein, na Alemanha.
Fig. 2.13 –Museu do Louvre, Paris. Acima,
vista externa do edifício, tendo em
primeiro plano a pirâmide em vidro, e
abaixo as galerias de exposição, 2005.
7
7
0
0
Ordenação espacial
A ordenação espacial se refere à clareza da forma da planta e à fácil
percepção da totalidade do edifício, pois segundo Montaner,
uma das mais importantes condições que se exigem de um
complexo cultural ou um museu é a clareza de sua ordenação
espacial. O visitante de um museu ou exposição precisa de uma
primeira informação sobre a globalidade do espaço e da
coleção para poder selecionar e distribuir seu tempo de visita.
(MONTANER, 1991, p. 35)
Portanto, a visualização do conjunto arquitetônico e do espaço são
fundamentais para a clareza e racionalidade dos percursos.
Montaner destaca em dois museus a clareza da estrutura interna: o
Museu Van Gogh, em Amsterdã e a Nova Pinacoteca de Munique. (Fig. 2.14-
2.15). O primeiro apresenta-se organizado em cinco pavimentos, ao redor de
um grande espaço unitário, e o segundo, com uma estrutura de hall central
e dois itinerários ao redor de pátios.
Fig. 2.14 – Museu Van Gogh, em
Amsterdã (1973), projeto de G.
Rietveld. Vista externa.
Fig. 2.15 – Pinacoteca de Munique,
vista do interior (1981), projeto de
Alexander F. Von Branca.
Em relação a intervenções em grandes museus, Montaner cita o caso
da inclusão da pirâmide de Pei no Louvre e afirma que o objetivo dessas
intervenções é “realizar uma total reestruturação e ordenação das
circulações para ganhar clareza e racionalidade nos percursos.”
(MONTANER, 1991, p. 35).
7
7
1
1
Relação forma-discurso
Para Montaner, o repertório tipológico dos museus atuais tende para
quatro modelos: espaços únicos de grande flexibilidade; aqueles que
adotam um percurso linear; os que se organizam ao redor de um pátio ou
espaço unitário que serve como referência visual; e museus de percurso
labiríntico (seja por uma organização complexa dos espaços ou porque se
trata de intervenção em um edifício de estrutura espacial interior
compartimentada, representada pela categoria de edifícios tombados).
Neste sentido, Montaner observa que “o interior do museu constitui,
portanto, um exemplo precioso de relação entre forma arquitetônica e
discurso interno”; assim, cada tipologia espacial estabelece diferentes
relações formais com o discurso expositivo.
A confrontação entre tipologia arquitetônica e conteúdo expositivo
gera várias considerações, como por exemplo, a necessária relação
existente entre as características formais do espaço das salas e as
características dos objetos a serem ali instalados.
Montaner apresenta como exemplo de perfeita harmonia, a relação
entre a Clore Gallery (fig. 2.16-2.17), onde há relação agradável entre o
clássico sistema de salas iluminadas zenitalmente e a obra pictórica de J.F.C
Turner.
Fig. 2.16-2.17 – Clore Gallery, interior, 2004.
7
7
2
2
Em relação a edifícios históricos adaptados para uso de museu e
centro cultural, que corresponde ao tema deste trabalho, a relação
forma/discurso se refere à adequabilidade da intervenção para o novo uso.
Caracterizando-se, em sua maioria, por monumentos arquitetônicos, os
projetos para reutilização têm como objetivo principal encontrar o equilíbrio
entre o edifício e o tratamento da exposição.
Na grande maioria dos casos, a integridade da arquitetura e do
conjunto é preservada, porém, há casos em que o espaço arquitetônico é
totalmente neutralizado em detrimento da exposição.
Materialidade de fundo
A materialidade de fundo é constituída pelos materiais que revestem
pisos, tetos e paredes do interior de um museu.
No caso dos edifícios históricos, o edifício e o espaço arquitetônico
são, na maioria dos casos, também considerados a “obra exposta”. Dessa
forma, a reutilização desses edifícios faz com que sua integração com a
exposição seja outro fator a ser considerado.
Há ainda, segundo Montaner “casos de museus recentes cujo
continente arquitetônico empobrece o discurso expositivo.” (MONTANER,
1991, p. 40); e há casos onde arquitetos, de tendência racionalista, utilizam
materiais neutros, e outros casos onde os materiais de fundo “participam” da
exposição. O dilema para Montaner consiste em “não tirar da arquitetura
atrativo e caráter, mas também não renunciar à adequada apresentação
da obra”. Montaner complementa afirmando que:
em poucas ocasiões chega-se a uma síntese ousada entre
arquitetura e obra a ser exposta, entre continente e conteúdo,
na tentativa de outorgar a ambos uma igualdade de
tratamento: não tirar da arquitetura atrativo e caráter, mas
também não renunciar à adequada apresentação da obra.
(MONTANER, 1991, p. 40)
Devemos ressaltar que, em se tratando dos edifícios históricos, tal
igualdade de tratamento pode se tornar complexa e de difícil realização.
7
7
3
3
Iluminação
Segundo Montaner “os sistemas de iluminação possuem tanto a missão
de realçar os objetos expostos como a de delimitar e qualificar o espaço
arquitetônico.” (MONTANER, 1991, p.37)
Assim, o tratamento da luz, natural ou artificial, constitui um elemento
primordial tanto para a exposição quanto para o museu.
Ainda segundo esse mesmo autor,
ao manipular a luz, não manipulamos algo que possa ser
determinado exclusivamente de maneira racional e funcional,
senão que também intervêm fatores da intuição e da
sensibilidade, elementos simbólicos culturais e perceptivos. A
utilização da luz natural e da artificial sempre inclui uma
margem para o imprevisível. (MONTANER, 2002, p. 220)
Por outro lado, Montaner declara:
Ao longo dos anos 60, uma parte importante dos museus norte-
americanos, em estreita relação com os limites de iluminação
natural mínima exigidos nos estudos realizados em 1961 por
Garry Thompson (...), mostra uma tendência para as formas
brutalistas, de grandes volumes escalonados e cegos, com
iluminação zenital limitada, complementada com luz artificial.”
(MONTANER, 1991, p. 37)
Verifica-se, portanto que os museus com iluminação zenital, como o
caso da Dulwich Gallery, utilizam as clarabóias como recurso formal
predominante da arquitetura. (Fig. 2.18) Outro recurso tradicional de
iluminação natural, também utilizados em edifícios de museus, é o pátio.
Fig. 2.18 – Dulwich Gallery. Detalha para a iluminação natural do espaço
interior, através da clarabóia, 2005.
7
7
4
4
Observa-se ainda que, de acordo com a tendência apresentada
pelos projetos de museus norte-americanos da década de 1960, os
arquitetos italianos afirmam que “a iluminação zenital reduz o volume das
esculturas e elimina as variações cromáticas das pinturas.” (MONTANER, 1999,
p. 38)
Os edifícios históricos transformados em museus e galerias de
exposição recorrem à iluminação artificial para suprir as deficiências do
iluminamento
26
decorrentes da adaptação, pois, às vezes, possuem número
elevado de aberturas, que prejudicam a exposição, ou apresentam estrutura
interna labiríntica, na qual não existem janelas.
Em relação à utilização da luz artificial, Montaner afirma ainda que
“deve ser pontual e dirigida para enfatizar contrastes dinâmicos entre
sombras e pontos intensamente iluminados, evitar a monotonia espacial e o
cansaço dos visitantes.” (MONTANER, 1999, p. 38)
Esses conceitos e metodologias de análise da forma arquitetônica
fundamentam o estudo dos edifícios do Paço Imperial e do Centro Cultural
da Justiça Federal, estabelecendo o processo comparativo da adequação
do patrimônio arquitetônico para a finalidade cultural.
26
Iluminamento é a “densidade do fluxo luminoso na superfície sobre a qual incide.” (NISKIER, 1996,
p.230)
O
O
E
E
S
S
T
T
U
U
D
D
O
O
S
S
O
O
B
B
R
R
E
E
O
O
P
P
A
A
Ç
Ç
O
O
E
E
O
O
T
T
R
R
I
I
B
B
U
U
N
N
A
A
L
L
CAPÍTULO
III
7
7
6
6
No capítulo I apresentamos o embasamento teórico e as questões
relacionadas à reutilização de edifícios históricos.
No capítulo II, o tema se referiu à forma da arquitetura, onde
apresentamos metodologia e ferramentas para a análise arquitetônica dos
edifícios.
No capítulo a seguir mostraremos os estudos de caso com os quais
aplicaremos a análise comparativa.
Este material se constitui de livros e revistas especializadas no tema
restauração e em especial nos edifícios em estudo.
Serão apresentadas separadamente, para cada um dos edifícios, a
cronologia referente às transformações físicas e acontecimentos históricos, o
projeto de restauração, as principais intervenções realizadas e o programa
atual.
Dessa forma procuramos compreender os edifícios e as devidas
intervenções para, no capítulo seguinte, discorrer sobre a análise
arquitetônica.
7
7
7
7
A CULTURA E A CIDADE DO RIO DE JANEIRO
A cidade do Rio de Janeiro tem uma história que a torna o mais
importante pólo cultural de nosso país. O Centro carioca apresenta sinais
evidentes de revitalização, aliando cultura e arte na condição de fatores de
desenvolvimento.
Segundo Augusto Ivan,
O início dos anos 80 foi marcado por uma intensa reflexão sobre
o patrimônio cultural do Rio de Janeiro e seu possível papel na
dinâmica urbana e na construção da identidade da metrópole.
A presença de tantos e tão significativos marcos da memória da
cidade e do país, principalmente no Centro do Rio, chamou a
atenção de técnicos, intelectuais e governantes, contagiando
também a população e a mídia, culminando com a
preservação de inúmeros conjuntos arquitetônicos
representativos da história urbana e com a criação de estímulos
para sua conservação. A movimentação foi muito intensa em
torno do tema, atraindo também discussões não apenas sobre
o valor histórico e arquitetônico do acervo preservado, mas,
principalmente, sobre o seu papel no processo de revalorização
e reabilitação da área central da cidade. (PINHEIRO, 1999, p.
135)
O enfoque da reabilitação neste período se tornou mais amplo,
deixando de se constituir apenas pela recuperação arquitetônica para o
contexto mais amplo, referente ao urbano.
Participando como ator principal nesta revitalização urbana, o edifício
do Paço Imperial se constituiu como o primeiro edifício a ser reutilizado,
promovendo a reabilitação de uma área, a praça XV. A partir da
reabilitação do Paço (1985) seguiram-se várias outras tais como a Casa
França-Brasil (1990), Centro Cultural Hélio Oiticica (1982) e o Centro Cultural
Banco do Brasil (1989).
O conjunto urbanístico da praça, espaço de valor histórico,
compreende parte da rua Primeiro de Março, o Paço Imperial, o Arco do
Teles, a Bolsa de Valores e a Estação das Barcas.
7
7
8
8
Pertencendo a outro momento histórico da cidade do Rio de Janeiro,
da abertura da avenida Central, atual avenida Rio Branco, o edifício do
Centro Cultural da Justiça Federal, destinado inicialmente para ser o Palácio
Arquiepiscopal, construído juntamente com a abertura da avenida Central,
representa o estilo eclético que marcou a reurbanização da cidade
procedida no início do século XX, proposta por Pereira Passos para conferir à
cidade as características adequadas à capital da República que então se
consolidava.
Como podemos observar, o centro do Rio de Janeiro possui áreas e
edifícios históricos remanescentes de diversos períodos político-
administrativos pelos quais passou a cidade.
Dentre esses, alguns se destacam pela tipologia urbanística e
arquitetônica, pelo uso a que se destinaram, e pela revitalização e restauro a
que foram submetidos.
Os edifícios do Paço Imperial e do Centro Cultural de Justiça Federal se
enquadram neste último caso. (Fig. 3.01/3.02)
Fig.3. 01 – Paço Imperial, fachada voltada para a Praça Quinze, 2006.
7
7
9
9
Fig. 3.02 – Centro Cultural da Justiça Federal, fachada principal, voltada para avenida
Rio Branco, 2001.
O projeto de restauração do Paço caracteriza-se por ser um dos mais
polêmicos e o do Centro Cultural da Justiça Federal constituiu-se em um dos
mais complexos e originais processos de restauração-adaptação da
América Latina. A evidência desses projetos de restauro referem-se ao
volume e profundidade da intervenção arquitetônica a que foram
submetidos.
Quase duas décadas separam estes projetos, pois o primeiro ocorreu
em 1985 e o segundo em 2001.
Os dois edifícios possuem história, características arquitetônicas, estilos
e período de restauração distintos, porém ambos os projetos foram
coordenados pelo arquiteto Glauco Campello
27
.
A escolha destes edifícios para a análise, se justifica em razão de
ambos terem a finalidade de centro cultural. Conforme antes mencionado,
a função do Paço foi definida ao término das obras de restauração, ao
contrário do edifício do Centro Cultural, que teve sua destinação
determinada nos estudos preliminares às obras de restauração.
27
Glauco Campello é arquiteto formado pela Faculdade Nacional de Arquitetura. Afastou-se da vida
acadêmica por imposição do regime militar e, anistiado, aposenta-se na condição de professor titular
da Universidade de Brasília. Realizou projetos para Milão, Cless e Ascoli, na Itália e para Saint Florent, na
Córsega. Foi responsável pelo desenvolvimento do Projeto da Sede da Editora Mondadori, em Milão,
da autoria de Oscar Niemeyer. Foi presidente do IPHAN, instituição vinculada ao MinC. Dirige o próprio
escritório de arquitetura há mais de 15 anos e realiza projetos de restauro em todo o Brasil. (CAMPELLO,
1998, p. 130)
8
8
0
0
A função do Paço e do CCJF
Para pertencer à mesma época em que vivemos, o edifício dito
“contemporâneo” não deve apenas possuir elementos de alta tecnologia
que atendam às necessidades de trabalho e vida, mas sim, deve estar
integrado à sociedade, ou seja, exercer uma função útil, atual.
A inclusão dos equipamentos para a adequação do edifício à nova
função pode ser indicadora desta “identidade” contemporânea.
A transformação de uso de edifícios históricos em centros culturais,
conforme discutimos no capítulo I, tem sido bastante discutida pelos
inúmeros fatores favoráveis e desfavoráveis à tal prática.
A conclusão principal a que chegamos desta discussão se refere à
integração do edifício à vida da sociedade. Portanto, se, com a renovação
de uso, o edifício passa a ser um elemento integrado, com função, torna-se
um edifício histórico-contemporâneo.
Com relação aos edifícios com renovação de uso para centro cultural,
tal contemporaneidade se torna ainda mais forte, pois o direito de todos à
cultura é fato atual, dinâmico e presente na sociedade.
O edifício do Paço Imperial conseguiu essa integração com a
sociedade e com o ambiente urbano de uma forma muito intensa, pois as
atividades ali realizadas o tornam parte “viva” da cidade.
A restauração obteve um resultado muito positivo, uma vez que a
adequação de uso do edifício do Paço Imperial estava diretamente ligada
à revitalização da Praça XV. Assim, o Paço garantiu a contemporaneidade e
a permanência da história, o que, definido por Baker, exige do arquiteto a
certeza de que a nova função manterá o edifício “vivo” durante um bom
tempo.
No caso do C.C.J.F., a integração com o entorno e com a cidade se
manifesta de uma forma tão intensa como na descrita para o edifício do
Paço Imperial, pois o edifício se encontra localizado na Cinelândia, a área
de cultura e lazer do centro do Rio com grande concentração de pedestres,
8
8
1
1
além do conjunto arquitetônico constituído pelos edifícios da Biblioteca
Nacional, Teatro Municipal, Museu Nacional de Belas Artes.
Segundo Izabela Fraga, os visitantes são, em maioria, estudantes de
artes plásticas e cênicas e advogados. Este fato se deve pela imponência
do edifício.
A função de centro cultural, com exposições de arte contemporânea,
no caso do Paço Imperial, e, com ênfase na fotografia no edifício do
C.C.J.F., favorece a inclusão destes na categoria de edifícios
contemporâneos.
8
8
2
2
PAÇO IMPERIAL
Localizado na atual Praça XV de Novembro, centro histórico do Rio de
Janeiro, o Paço Imperial é o mais importante dos edifícios civis coloniais do
Brasil, devido aos valores histórico e artístico que lhe são atribuídos. (Fig. 3.03)
Construído no século XVIII para residência dos Governadores da
Capitania do Rio de Janeiro, passou a ser a casa de despachos,
sucessivamente, do Vice-Rei do Brasil, do Rei de Portugal D. João VI e dos
Imperadores do Brasil.
Após a restauração do edifício, realizada na década de 1980,
coordenada pelo arquiteto Glauco Campello, e após várias adaptações e
funções, apresenta-se hoje como um centro cultural de arte
contemporânea, o primeiro do centro da cidade do Rio de Janeiro. A
adequação de uso deste edifício foi um dos pontos de partida para a
revalorização da área central do Rio de Janeiro.
O edifício do Paço Imperial dispõe de espaços para vários tipos de
atividades voltadas para a cultura e o lazer, tais como: a biblioteca de arte e
arquitetura (biblioteca Paulo Santos), um cinema, galerias de exposição,
livraria e restaurantes.
Fig.3.03 - Paço Imperial 2006 – vista da Praça XV, 2006
8
8
3
3
A cronologia das transformações arquitetônicas
Gilberto Ferrez era historiador e foi autor de mais de 35 livros sobre arte,
fotografia, história, arquitetura e urbanismo; escreveu sobre a história do
edifício do Paço no livro O Paço da cidade do Rio de Janeiro (1985),
reunindo material documental sobre a evolução do edifício.
Este material tornou possível e legítima a restauração do Paço porque
forneceu as informações necessárias para a restituição da imagem do
edifício.
De acordo com as informações contidas neste mesmo livro de Gilberto
Ferrez (FERREZ, 1985), o edifício do Paço Imperial, após sua construção em
1743, sofreu sucessivas ampliações ou reformas que foram modificando suas
características originais. Em 1982, “houve necessidade de recuperá-lo, dada
a deterioração que ameaçava sua imagem como testemunho de uma
época.” (CAMPELLO in O GLOBO, p. 02, 1985)
Para a compreensão das principais transformações ocorridas,
apresenta-se a seguir um quadro cronológico onde registramos os diferentes
dados que coletamos sobre a arquitetura e história do Paço Imperial.
Início do Século XVIII – Os documentos cartográficos assinalavam a existência de
um edifício com as mesmas proporções do Paço, indicado como Casa da
Moeda e Armazéns del Rey. (Fig. 3.04)
Fig. 3.04 – A primeira planta conhecida da cidade do Rio de Janeiro em escala correta, da
autoria de João Massé, 1713, assinala: “H e G – Casa da Moeda e Almazens del Rey”, local
onde mais tarde seria construído o Paço; “I – Convento do Carmo. Trata-se de um bico-de-
pena aquarelado. Coleção do Arquivo Histórico Ultramarino Lisboa.
8
8
4
4
1743 – Convidado pelo Governador Gomes Freire de Andrade , o engenheiro
José Fernandes Alpoim realizou o projeto original do Paço, a sede do governo;
aproveitando parte daquelas construções existentes criou um prédio de grande
massa (Fig. 3.05), linhas sóbrias, despojado, em dois pavimentos com pequena
água-furtada com três janelas voltadas para a praça .
De frente para o mar, nove portas e janelas e, para os lados, vinte e quatro
janelas com grade de ferro, apresentando pela primeira vez , a verga – curva ou
em arco batido, em lugar de retas, como era de costume.
Fig. 3.05 – Fachada voltada para Praça XV, Paço.
1763 - Com a transferência da sede do Governo Geral da Bahia para o Rio de
Janeiro em 1763, a Casa dos Governadores torna-se o Palácio dos Vice-Reis.
1808 – Ao abrigar a família real que vinha de Lisboa, o Paço torna-se sede
administrativa do Reino Unido do Brasil, Portugal e Algarves, recebendo a
denominação de Paço Real.
Para a nova ocupação do prédio foram realizadas reformas e modificações
no uso dos espaços.
1817 - Construído um terceiro pavimento com três vãos e sacada corridas, na
fachada voltada para o mar, destinado a servir de aposento para rei e
imperadores, emprestando ao Paço a fisionomia palaciana guardada até os
dias atuais. (Fig. 3.06)
Fig. 3.06 – Fachada voltada para Praça XV, Paço.
8
8
5
5
1822 - Com a declaração da Independência, em 7 de setembro de 1822, o
Paço Real transformou-se em Paço Imperial, foi pintado de amarelo, a cor do
império, e as janelas passaram a ter balcões de ferro dourados. (Fig. 3.07)
Fig. 3.07 – Fachada voltada para Praça XV, Paço.
1890 - As fachadas principais voltadas para o mar e o largo, recebem
platibandas ocultando o telhado, a fim de adaptá-lo ao neoclassicismo em alta
na época. (Fig. 3.08)
Com o comunicado da Proclamação da República, o ex-imperador, a sua
família e auxiliares deixaram o edifício em direção ao exílio no dia 17 de
novembro de 1889. Em seguida, o Paço passou a ser utilizado como sede do
Departamento de Correios e Telégrafos.
Fig. 3.08 – Fachada voltada para Praça XV, Paço.
1920 – Ainda como sede do Departamento dos Correios e Telégrafos, o edifício
passou por diversas reformas para melhor abrigar tais atividades. Dentre as quais
podemos destacar a construção de um prédio com três pavimentos no interior
do pátio maior; a ampliação do terceiro pavimento por todo o perímetro da
construção, a retirada das platibandas e a inclusão de um frontão de estilo
neocolonial na fachada principal. (Fig. 3.09)
8
8
6
6
A preocupação de harmonização fez com que fossem reproduzidas, nos
acréscimos, em alvenaria de tijolo e massa, as paredes de pedra e requadros de
cantaria dos andares inferiores.
Fig. 3.09 – Fachada voltada para Praça XV, Paçol.
1938 - O edifício é tombado pelo Patrimônio Histórico, sendo inscrito nos livros do
Tombo Histórico e das Belas-Artes.
1982 – O edifício deixa de abrigar o Departamento dos Correios e Telégrafos e
Iniciam os trabalhos de restauração, orientados para a revalorização das
marcas deixadas pelas diversas fases históricas e intervenções, além de sua
readaptação para um novo uso, ainda não definido.
1985 – Término das obras de restauração e início das atividades culturais.
Suetônio Valença assume a coordenação de atividades culturais do Paço.
(Fig. 3.10)
Fig. 3.10 – Fachada voltada para Praça XV, Paço Imperial.
1986 – O Paço assume a condição de unidade autônoma pela Fundação Pró-
memória e Paulo Sérgio Duarte assume sua diretoria.
1990 – 1992 – Obras de conservação realizadas pela diretora Solange Pamplona.
8
8
7
7
1992 – Lauro Cavalcanti assume a diretoria do Paço e as atividades culturais são
retomadas.
1993 – Inaugurado um Centro Cultural, constituindo-se por, no pavimento Térreo,
serviços: livraria, loja de CD’s, restaurante, cinema, bistrô, bar das artes e a loja
do Paço, e, no pavimento superior, salas de exposição e a biblioteca Paulo
Santos.
2006 – O edifício do Paço ainda possui marcas dos diferentes usos aos quais foi
adaptado, o que o torna um espaço singular de divulgação e programação
cultural. Hoje, o Paço Imperial é um centro cultural vinculado ao Instituto do
Patrimônio Histórico e Artístico Nacional - IPHAN. Administrativamente, possui um
diretor e duas divisões: Divisão Cultural e Divisão Técnica.
Conforme observamos na cronologia, entre a função de casa dos
governadores até a de sede da Empresa de Correios e Telégrafos, o edifício
do Paço viveu 240 anos de transformações, uma vez que, a cada uso que
desempenhava, a fachada do edifício era modificada, com elementos de
estilos diferenciados.
Devido a este fato, a adequação de uso do edifício exigiu estudos
cuidadosos sobre a iconografia passada, dentre as quais, as aquarelas de
Thomas Ender e Richard Bate, que mostravam o Paço no início do século XIX
e fotos de Marc Ferrez, de 1880, entre outros documentos e a inevitável
discussão dos critérios que deveriam nortear a obra.
A seguir apresentaremos a compilação de textos sobre algumas
dessas discussões que fizeram parte do projeto de restauração do edifício do
Paço Imperial.
8
8
8
8
Discursos sobre o restauro do Paço Imperial
Para melhor entendimento do processo de restauração do edifício do
Paço Imperial, consultamos alguns textos sobre o restauro, onde estudamos
os principais temas e os critérios estabelecidos para o projeto e as obras
28
.
Além dessa bibliografia específica, consultamos também trabalhos
mais abrangentes, tais comoEvolução Urbana de Maurício de Abreu
(1997) e “O patrimônio em processo” de Maria Cecília Londres Fonseca
(2005), os quais, apesar de não tratarem especificamente do edifício nem do
projeto de restauro do Paço Imperial, foram fundamentais para a
compreensão dos temas aqui desenvolvidos.
Dentre as fontes consultadas, podemos ressaltar a Revista do
Patrimônio nº. 20 e o livro “Paço Imperial”, organizado por Lauro Cavalcanti,
publicado em 1999, do qual constam cinco textos relativos ao edifício.
A edição nº. 20 da Revista do Patrimônio, publicação que começou a
ser editada em 1937, no início da criação do IPHAN, contém textos que
compõem uma série de estudos sobre o Paço Imperial e a Praça XV. Nessa
edição, do ano de 1984 - fase final da execução da restauração do Paço -
foram publicados o testemunho dos integrantes da equipe multidisciplinar
responsável pela recuperação da imagem barroca do edifício, bem como
os registros textuais de arquitetos e intelectuais engajados na recuperação
do centro da cidade do Rio de Janeiro.
A revista se divide em duas partes: a primeira discorre sobre a “Praça
XV: problemas e propostas”, com textos de Dora Alcântara, Augusto Ivan e
João Antônio; e a segunda sobre “A restauração do Paço Imperial” com
textos de Pedro Calmon, Glauco Campello, Cyro Corrêa Lyra, José de Souza
Reis, Regina Pinheiro da Silva, Edna Morley e Catarina Ferreira da Silva.
Nesta edição, no artigo “A restauração do Paço”, o arquiteto Glauco
Campello, na condição de coordenador do projeto de restauração do
28
Texto desenvolvido para a disciplina “Historiografia da Arquitetura”, ministrada pelo prof. Gustavo
Rocha Peixoto, no segundo semestre de 2005. A prof. Cêça Guimarães fez revisão do texto e da
estrutura deste material para utilização nesta dissertação.
8
8
9
9
Paço e de então diretor da 6ª Diretoria Regional da SPHAN, relata, com
alguns detalhes, o processo completo da restauração do edifício; e a
definição dos critérios e das linhas da restauração foi apresentada pelo
arquiteto Cyro Lyra que participou de todo o processo.
O texto de Dora Alcântara, arquiteta na Divisão de Tombamento e
Conservação da SPHAN, que coordenou os trabalhos de levantamento e
análise do conjunto arquitetônico da praça XV, relaciona esta aos arredores
do Paço.
Outro texto relacionado ao centro do Rio de Janeiro é do arquiteto
Augusto Ivan, autor do projeto original do Corredor Cultural, além do
depoimento do jornalista e escritor João Antônio, que tristemente relata a
decadência da praça XV.
O texto do historiador Pedro Calmon sobre a restauração do edifício
rememora a fase de esplendor do palácio, como centro de irradiação do
poder.
O arquiteto José de Souza Reis elaborou os estudos e pesquisas iniciais
para a restauração do Paço Imperial, juntamente com o historiador Gilberto
Ferrez (cujo livro “O Paço da cidade do Rio de Janeiro” também contribuiu
para a análise aqui representada). No texto “Estudos preliminares” Reis relata
sua participação no projeto.
O último texto, das arqueólogas Regina Pinheiro da Silva, Edna Morley
e Catarina Ferreira da Silva, apresenta as primeiras notas da pesquisa
arqueológica realizada no edifício do Paço Imperial. Essas pesquisas
revelaram informações e achados relevantes que influenciaram o projeto de
restauro.
O livro, antes referido, de Lauro Cavalcanti, atual diretor do Paço
Imperial, descreve o período de 1982 e 1992, que engloba a restauração do
edifício e os primeiros anos de atividades do centro cultural.
Neste livro, Heloísa Buarque de Holanda descreve a ação cultural dos
museus contemporâneos e entrevista Lauro Cavalcanti sobre sua gestão à
frente do Paço.
9
9
0
0
Ainda nesta edição, o texto de Afonso Carlos Marques dos Santos se
refere à trajetória histórica do Paço, e o texto de Augusto Ivan relata o papel
pioneiro do Paço na revitalização do Centro do Rio de Janeiro.
No conjunto desses textos, a maioria dos autores aqui apresentados
esteve de alguma forma envolvida com a restauração do edifício, o que
poderia induzir a conclusão de que esta análise enfocaria somente os
pontos de vista positivos de atores atuantes do processo. Porém, conforme
veremos no desenvolvimento do trabalho, os diversos aspectos e
contradições referentes à restauração são apresentados de forma clara, e,
portanto, passível de compreensão.
Neste sentido, apresentaremos a seguir cada item ou aspecto
referente ao projeto de restauro do edifício isoladamente. Os itens foram
escolhidos conforme maior significância estética e histórica para o edifício,
ou seja, a metodologia utilizada no projeto, a diretriz adotada (a
reconstituição da imagem barroca), o pórtico da fachada, a intervenção no
pátio de serviço, a sala central, o salão da clarabóia e as questões da
reconstituição de elementos arquitetônicos e a definição do uso.
O projeto de restauração
Desde a construção do Paço Imperial, em 1743, sucessivas ampliações
e reformas foram modificando as características originais. Em 1938, o prédio
foi tombado pelo Patrimônio Histórico; e, em 1982, demonstrava necessidade
de recuperação. A deterioração do Paço era, à época, entendida como
uma ameaça para a imagem de um edifício testemunho da fase colonial da
nação brasileira.
O Paço foi restaurado sob a “inspiração” dessa feição colonial,
adquirida particularmente no período de ocupação pela família real
portuguesa, e no edifício permanecem as marcas e formas de outros
momentos históricos, inclusive as da atualidade.
As obras promoveram, entre controvérsias e concordâncias técnicas, a
discussão de conceitos e métodos de restauração, pois, segundo José de
9
9
1
1
Souza Reis (1984, p.157), a restauração do edifício do Paço Imperial significou
a recuperação de um dos mais importantes monumentos histórico-
arquitetônicos brasileiros, verdadeiro marco, em terra carioca, da memória
nacional”.
Esta restauração envolveu não somente a recuperação do edifício, e
a devida modernização das instalações, bem como a revitalização da área
urbana. Conforme declarou Glauco Campello, a restauração atingiria a
área urbana sobre a qual passa a influir o monumento, com a força de seus
valores autênticos postos agora em evidência.” (1984, p. 142).
O projeto de restauração do Paço não se limitava apenas à
restauração do edifício isolado, conforme a explicação de Campello:
o escopo do projeto de sua restauração não se esgota na
recuperação do monumento, dos seus espaços internos e de
sua fisionomia externa. A restauração do Paço envolve também
sua adaptação às exigências modernas de conforto, nos limites
impostos pelo ‘caráter próprio’ de sua construção. (CAMPELLO,
1984, p.142).
O centro da cidade, na década de 1980, conforme explicou Maurício
de Abreu, no livro “Evolução Urbana do Rio de Janeiro”, encontrava-se em
deterioração. Esse autor ainda ressalta a constante “luta” das autoridades
para afastar os pobres do centro da cidade, a fim de manter a grande
vocação econômica do local, pois se tratava de uma das áreas mais nobres
da cidade.
Sendo assim, não é nenhuma surpresa o fato da escolha da
restauração do Paço como projeto-piloto das políticas de revitalização do
Centro. Por outro lado, observamos que, na mesma época, inicia-se a
renovação e alargamento do conceito de patrimônio, pelo IPHAN, visando a
consolidação da identidade nacional.
Ainda sobre o projeto de restauração, Glauco Campello comenta que
“a ação do arquiteto terá de se restringir à interpretação desse caráter
[próprio da construção] e se mover nos limites por ele determinados.
(CAMPELLO, 1984, p.142).
9
9
2
2
Mais adiante complementa sua idéia escrevendo que a interação
tem de ser resolvida no nível estético, no nível meramente prático, mas
também no nível social e urbano”. (CAMPELLO, 1984, p. 142).
Essa explicação sobre o objetivo da obra de restauração do edifício
do Paço foi também confirmada por Lauro Cavalcanti:
era uma ato revestido de grande significado restaurar o antigo
palácio. Significava dar-lhe uma função pública que servisse de
projeto-piloto para outros monumentos brasileiros e contribuísse
para a revitalização do centro carioca. Além de recuperar um
dos mais importantes monumentos nacionais, o ato afirmava a
crença no potencial futuro do uso correto dos monumentos
históricos. (CAVALCANTI,
1999, p. 18).
Sobre o método
Dos registros textuais de Glauco Campello transparece o método
utilizado no projeto de restauração do edifício do Paço Imperial. Este projeto
adotou a noção de monumento, mencionada e defendida por teóricos
como Viollet-le-Duc e Brandi, de forma objetiva e coerente na prática.
Esse método, segundo a explicação de Glauco Campello, não
funcionaria como um método tradicional, pela própria multiplicidade de
usos registrados ao longo da existência do edifício.
Segundo Glauco Campello, a própria forma do Paço, “resultante de
processo não ortodoxo de restauração, será definida pela aglutinação de
valores persistentes e a captação de significados especiais relacionados
com a sua vocação histórica e importância cultural”. (CAMPELLO, 1984, p.
139).
As alterações sobrepostas de diversos períodos imprimiram, cada qual,
a devida importância. Dessa forma, o processo de recuperação se
desenvolveu “numa espécie de corpo-a-corpo entre a equipe técnica e o
objeto de restauração,” segundo Campello, que prossegue explicando, “os
trabalhos tiveram de desenvolver-se segundo um método gradual de
aproximação,..., num cotejo permanente entre o escasso material
9
9
3
3
iconográfico disponível e as investigações no canteiro de obras”. (1984,
p.140).
O “método de aproximações sucessivas se tornou mais consistente
após a transferência da 6ª Diretoria Regional da SPHAN para o canteiro de
obras, conforme descreve Campello:
ainda que embasado em princípios modernos de restauração e
na experiência profissional dos técnicos da SPHAN, ele se
estruturou a partir daquela vivência prática já referida.
Trata-se pois de um método capaz de aliar uma ação
empírica a uma pesquisa histórico-iconográfica. De um sistema
duplo de aproximação do objeto para melhor conhecê-lo. Pela
via dos sentidos e pela via da análise racional. Uma corrigindo a
outra. O conceito, amplamente admitido, de que o próprio
monumento é o mestre de sua restauração, adquire assim uma
dimensão mais rica. (CAMPELLO, 1984, p. 142).
A definição da identidade: “a imagem barroca”
Para Maria Cecília Fonseca,
foram os modernistas os mentores da idéia de preservação e da
organização do SPHAN, em 1936, acrescentando que isto só se
deu porque eles entenderam que havia a necessidade da
construção de uma tradição nacional para que o Modernismo
pudesse ter sentido. (FONSECA, 2005, p. 94).
Essa tradição nacional foi construída nos primeiros trinta anos de
atuação da conhecida “fase heróica” do IPHAN, na qual predominou o
tombamento da arquitetura religiosa produzida nos séculos XVI, XVII e XVIII.
Nessa fase também se determinou o Barroco como o principal estilo
nacional.
Com base nessa afirmativa, analisaremos os textos sobre o Paço
Imperial que reafirmam ter o estilo barroco força e justificativa teórica e
cultural para prevalecer na identificação dos bens culturais brasileiros.
Para Lauro Cavalcanti, “a primeira séria questão que se colocava era
a inexistência de um prédio original que a restauração deveria resgatar”
(CAVALCANTI, 1999, p. 21), conforme demonstram as próprias imagens do
Paço ao longo do tempo. (Fig. 3.11)
9
9
4
4
1763-1808 – Palácio dos Vice-Reis 1830 – Paço Imperial 1940 - Correio e Telégrafos.
Fig. 3.11 – Paço Imperial - diferentes imagens do edifício.
A feição neocolonial do Paço, no período entre 1929 e 1980,
sobreviveu segundo Afonso Carlos dos Santos, pois “correspondeu aos
princípios adotados na Exposição de 1922, especialmente no Pavilhão das
Grandes Indústrias, obra de Arquimedes Memória e F. Couchet, depois
destinado a sediar o Museu Histórico Nacional.” (CAVALCANTI , 1999, p. 114).
No caso do Paço, originariamente sede do governo, as reformas
deram lugar à recriação do edifício numa forma inventada livremente,
destituída das características da arquitetura do século XVII na América
portuguesa.
Além de sublinhar a dificuldade das escolhas, o arquiteto Cyro Corrêa
Lyra, da equipe do Patrimônio, que participou de todo processo de
restauração do Paço, ressaltou “a eliminação dos acréscimos
descaracterizadores construídos neste século, em benefício da liberação e
revelação da expressão arquitetônica de maior valor, não foi evidentemente
um caminho fácil”. (CAVALCANTI, 1984, p. 114).
Em relação à restauração do Paço, havia dúvidas quanto ao
procedimento de conservar, ou seja, manter as híbridas intervenções
neocoloniais; ou restaurar retornando o estilo Barroco original. Esta foi uma
difícil decisão, sobretudo pela inexistência de um projeto inicial, pois o
edifício resultou da adaptação de duas edificações conjugadas (a Casa da
Moeda e o Armazém Del Rey). Até onde se deveria recuperar a forma
original? E os acréscimos, historicamente importantes para o país, deveriam
ser demolidos, apesar de existirem há longo tempo?
9
9
5
5
Essa discussão ultrapassou a fronteira decisória técnica, conforme
menciona Cyro Lyra sobre a adesão à restauração do Paço também por um
grupo da sociedade:
já no início dos trabalhos, alguns pronunciamentos de pessoas
representativas da comunidade refletiram uma posição
apriorística em favor da conservação da fisionomia
arquitetônica neocolonial, resultante da reforma levada a
efeito, no final da década dos vinte, pelos Correios e Telégrafos,
em nome da tese de incorporação ao monumento de todas as
etapas de sua história. (LYRA, 1984, p. 152).
A tendência desse grupo pela preservação do neocolonial foi, por
outro lado, explicada por Glauco Campello, sublinhando as conseqüências
arquitetônicas da permanência de um estilo em detrimento do outro:
preservar, no caso, seria manter a intervenção neocolonial. Ela
não se limitara à uniformização do volume, mas alterara os
espaços, recobrira os adornos de pedra, substituíra o telhado e
a estrutura de piso. O arcabouço de pedra e cal do período
colonial fora, no entanto, resguardado. Portanto, estavam ali os
muitos edifícios que o Paço já fora, ou pelo menos grande parte
deles, escondidos, impedidos de se expressar. Preservar, aí, seria
privilegiar uma única intervenção. E não era aquela justamente
a mais enganosa? (CAMPELLO, 1984, p. 143).
Nessa explicação, Glauco Campello claramente registra sua
preferência pela permanência da imagem barroca, representada na
iconografia da primeira metade do século XIX, assumindo-a como aquela
que, segundo os modernos, caracterizaria a tradição nacional e de interesse
cultural:
Os trabalhos preliminares de limpeza, compreendendo a
remoção de materiais em mau estado, a realização de
prospecções nas paredes, pisos e tetos, bem como a análise da
documentação iconográfica puseram em xeque a tese inicial
de uma simples conservação. À medida que se aprofundava o
conhecimento a respeito do monumento, a presença do antigo
Paço se impunha. Comparando as descobertas dos
testemunhos construtivos das obras executadas, do século XVIII
ao XX, com as referências iconográficas, chegou-se à
conclusão que, sob a vestimenta neocolonial de 29, sobrevivia,
ainda que totalmente camuflada, uma arquitetura monumental
de maior interesse cultural. (CAMPELLO,1984, p. 153). (Fig. 3.12)
9
9
6
6
Fig. 3.12 - Fachadas neocolonial e barroca Desenhos Glauco Campello.
A concepção de Campello influenciou sobremaneira toda a equipe
que desenvolvia a restauração, conforme se constata nas afirmações de
Cyro Lyra:
a restauração do monumento, de tão grande significado na
história política do país, exigiria a demolição de grande parte
do terceiro pavimento – [...] – porque, removendo as
ampliações, poderia a população admirar novamente o ‘jogo’
barroco de volumes e telhados que compuseram, outrora, um
dos aspectos mais atraentes do Paço. (LYRA, 1984, p. 153-154).
Mas esta opção também foi compartilhada por José de Souza Reis e
pelo historiador Gilberto Ferrez que opinaram pela recomposição
volumétrica correspondente ao período colonial, representante do
“momento mais importante da trajetória do edifício”. Na figura anterior, da
aparência colonial, a que perdurou por mais tempo no edifício, propuseram
“a eliminação dos acréscimos que escondiam aquela imagem sem, no
entanto, reconstruir trechos já desaparecidos”. (CAMPELLO, 1984, p. 143-144).
Desnudar o antigo palácio dos efeitos que ocultavam as reformas do
século XX, tratava-se de resignificá-lo historicamente para ocupar, depois de
“revelado, especial lugar no acervo da arquitetura barroca luso-brasileira,
representada quase exclusivamente pela arte religiosa”, como defendeu
Cyro Lyra. (LYRA, 1984, p. 153).
Embora o citadino já estivesse habituado à feição neocolonial do
edifício, como explicou Glauco Campello, toda a equipe estava
9
9
7
7
magnetizada pela imagem Barroca, e do ponto de vista da restauração, a
operação contava com sólidos argumentos para se apoiar. Campello
complementa ainda que “faltava-lhe, no entanto uma justificativa de
caráter sociológico, aderente à linha de evolução da cidade. A
argumentação cultural não se contemplava.” (CAMPELLO, 1984, p. 143).
Quanto a essa questão sociológica, Glauco Campello justifica que um
dos motivos de voltar à imagem barroca seria a tentativa de mudar,
intervindo no processo de degradação dessa área, pois o aspecto
neocolonial integrava um espaço urbano degradado pelo tráfego de
ônibus, passarela e viaduto, e a nova imagem espelharia a restauração do
prédio e do entorno. Campello ainda afirma que:
a decisão de restabelecer a imagem barroca que por tanto
tempo caracterizou o edifício eliminando os revestimentos que
recobriam as guarnições de pedra, removendo trechos do 2º
Pavimento, recompondo os telhados não está apenas
embasada em dados técnicos, ou na imanência daquela
imagem. Ela se constitui também numa ação intuitiva, em
decorrência da qual o monumento estabelece uma nova
relação com o espaço urbano que o envolve, impondo o
desdobramento da ação de restauração, ampliando assim o
espaço da intervenção. (CAMPELLO, 1984, p. 144).
Em relação à idéia da amplitude da intervenção, Augusto Ivan
observa que:
a área [a área da Praça XV] oferece um expressivo potencial
de utilização, não só por seu constante movimento de
pedestres, como também por envolver os transeuntes numa
atmosfera muito especial de espaços diversificados: praças
amplas, becos, vielas, sobrados antigos e monumentos fazem
parte deste acervo muitas vezes surpreendente e cheio de
significados. (FREITAS, 1984, p. 132).
Prosseguindo, complementa ainda Augusto Ivan que se as instalações
do Paço forem “bem utilizadas e programadas para atividades de contato
permanente com o público, permitirão a existência de um espaço dinâmico
e democrático no centro da cidade”. (FREITAS, 1984, p. 132).
Entretanto, nas palavras de Afonso Carlos Marques dos Santos,
esboçam-se as nuances dessas transformações:
9
9
8
8
será sempre possível afirmar que as escolhas feitas pelo
Patrimônio favoreceram um apagamento do passado, com a
eliminação da maior parte dos acréscimos dos séculos XIX e XX,
fazendo com que o palácio retornasse à fachada e volumetria
do Paço Real ao tempo de Dom João VI – na feição
contemporânea à época do Reino Unido e de onde surgiram as
definições políticas que conduziram, em 1822, à Indepenncia.
(CAVALCANTI, 1999, p. 114). (Fig. 54)
A decisão de restabelecer a imagem barroca que por tanto tempo
caracterizava o edifício, eliminando os revestimentos que encobriam as
guarnições de pedra, removendo trechos do terceiro pavimento e
recompondo os telhados, não se baseia apenas em dados técnicos, ou na
imanência daquela imagem. Ela foi conseqüência, segundo Campello, “de
um relacionamento vivo com esta matéria da arquitetura que é intraduzível,
a não ser pela própria arquitetura, que é a questão do espaço
arquitetônico. (CAMPELLO apud FERREIRA, 1985, p. 2)
O pórtico da Fachada
As características estéticas do pórtico e pelo período no qual foi
executado, indicam que, provavelmente, o original é de autoria do arquiteto
militar Fernando Pinto de Alpoim, que no mesmo período realizou, por
9
9
9
9
Fig.3.13 - “Croquis” de Glauco Campelo do que seria o pórtico original. Planta em “T”
definindo dois percursos
.
Ao longo do tempo, as modificações realizadas, com objetivos
práticos e estéticos, foram, segundo Glauco Campello, “confundindo e
amesquinhando seu espaço arquitetônico”, como ele próprio ainda explica:
O espaço livre ao longo da fachada foi interrompido com o
fechamento dos arcos menores para a obtenção de salas
isoladas. Entre os dois arcos maiores que dão passagem ao
pátio interno, introduziram-se quatro colunas de alvenaria com
acabamento marmorizado.
(CAMPELLO, 1984, p. 144).
A definição do critério a ser utilizado para a recuperação deste trecho
do edifício, constituiu-se numa difícil tarefa após a observação da defesa de
diferentes pontos de vista, como explica Glauco Campello sobre as colunas
que:
estavam presentes no mesmo edifício duas linguagens
diferentes assinalando o mesmo percurso de acesso às áreas
nobres: a linguagem setecentista e a outra de 1850. Mas não
conviviam bem, uma contrariava a outra. No entanto a
presença de ambas era um dado culturalmente importante.
(CAMPELLO, 1984, p. 145).
1
1
0
0
0
0
Essa presença havia sido declarada no parecer
29
, de 16 de Janeiro de
1984, no qual José de Souza Reis transcreve, para confirmar a importância
histórica desses elementos, um trecho do “Rio de Janeiro”, da segunda
edição do “Pequeno Panorama”, do historiador Moreira de Azevedo, que
esclarece:
é extenso o vestíbulo do Palácio e apresenta duas ordens de
colunas, que conduzem à escadaria, dividida em dois lanços,
um fronteiro ao outro, e dois laterais; o segundo da frente foi
feito por ocasião da coroação de D. Pedro II, e vai ter ao salão
dos archeiros, que abre comunicações para as diversas salas.
(REIS,1984, p. 156).
Embora no relato de Moreira de Azevedo não constasse da data de
construção dessas duas colunas, José de Souza Reis, supunha, que teriam
sido realizadas à mesma época da coroação de D. Pedro II, explicando:
Mas de qualquer forma acreditamos que se essas colunas, já
citadas pelo historiados há 120 anos, marquem provavelmente
um evento histórico importante, pelo menos o da coroação de
1840, ainda que o aspecto resultante de sua superposição visual
às arcarias originais do vestíbulo pareça-nos um erro artístico-
arquitetônico, não deveríamos permitir às nossas veleidades
estéticas uma total prevalência sobre a história válida do
prédio, isto é, de sua época palaciana.
(REIS,1984, p. 157).
Entretanto, a justificativa histórica para a manutenção das colunas não
convenceu a Cyro Lyra, que se contrapõe da seguinte maneira:
esteticamente tal incorporação (histórica) não ocorria pois as
colunas – introduzidas , provavelmente, para reforço à estrutura
– eliminaram o sentido dos arcos de cantaria à entrada do
Paço, ‘desmoralizando’ sua função estrutural e interrompendo a
visão da entrada. Neste local, à entrada, um dos “momentos”
principais do monumento e um dos espaços com melhores
condições, pela sua pouca descaracterização, de ser
reconstituído em termos de arquitetura, o critério estético
prevaleceu, optando-se pela eliminação das colunas.
(Cyro,
1984, p. 154). (Fig. 3.14)
29
Parecer elaborado durante o período que desenvolvia os estudos preliminares.
1
1
0
0
1
1
Fig.3.14 – Perspectivas do pórtico antes e depois da restauração.
Problemas semelhantes ao do vestíbulo aconteceram em outros
pontos da restauração: a definição do pórtico, por exemplo, ocorreu no
desenvolvimento dos trabalhos, quando foi
retirado o pavimento de ladrilho que recobria o antigo piso de
pedra ainda intacto, removidas as paredes que fechavam os
arcos e demolidos outros elementos acessórios, a construção
antiga surgiu em toda a sua força. Em sua feição cenográfica e
no apuro de seu sistema estrutural. A remoção das colunas
pareceu então inevitável. (CAMPELLO, 1984, p. 145).
Após esta intervenção o “espaço setecentista se restabeleceu em sua
plenitude e as colunas foram mandadas embora”, de acordo com Glauco
Campello. (1984, p. 145).
A intervenção no pátio de serviço
O antigo pátio de serviços do Paço Real foi implantado no lado da
fachada voltada para a lateral da Assembléia Legislativa, e indicava os
fundos do edifício e as estrebarias. Esta fachada não está registrada na
iconografia mais antiga.
1
1
0
0
2
2
No lugar deste pátio interno, a céu aberto, fora executada, no período
em que o Paço funcionou como sede dos Correios e Telégrafos, uma
construção de quatro pavimentos onde se localizavam: banheiros, casas de
força, cantina, casa forte, laboratórios e escritórios.
Na realização dessa construção foram destruídos muitos dos elementos
decorativos dessas fachadas internas, como as sacadas e sobrevergas das
janelas. A demolição deste volume de quatro pavimentos ocorreu antes dos
levantamentos e projeto.
Este procedimento, como afirmou Glauco Campello, não se constituiu
de um gesto impulsivo, “simplesmente porque impedia a compreensão das
linhas básicas do corpo do edifício, e por ser, além do mais, uma remoção
indispensável à salubridade da construção”. (1984, p. 148).
Concordando com esta afirmação, Cyro Lyra completa que:
foi necessário pôr abaixo o prédio de quatro pavimentos
erguido no interior do edifício para que se reconstruísse o
espaço aberto que, outrora, compunha o tio interno de
serviços.Desobstruído esse pátio (Fig. 3.15), se impunha a
necessidade de restabelecer os demais para que fosse possível
novamente usufruir a sucessão de espaços fechados e abertos
que foi, um dia, com certeza, um dos mais interessantes
aspectos do edifício. (LYRA, 1984, p. 153).
Com essas transformações, segundo Glauco Campello, “o antigo
pátio de serviço assim reconstituído terá um importante papel na integração
entre o edifício restaurado e sei espaço exterior”. (1984, p. 148).
Fig.3.15 - Vistas do pátio interno antes e depois da restauração.
1
1
0
0
3
3
A sala central
A sala central constituía-se originalmente de um pátio, a céu aberto
que, nas alterações que foram antes realizadas, recebeu uma cobertura
com clarabóia e teve o nível do piso elevado, referente a um lance de
escadas, conforme explica Cyro Lyra:
pensou-se inicialmente em restabelecer o pátio, principalmente
depois da descoberta no primeiro pavimento de três arcadas –
uma ainda integral, as outras parcialmente destruídas.
Entretanto, as prospecções no pavimento superior não
revelaram sinais dos vãos anteriores. Optou-se então por manter
toda a ‘roupagem eclética’ revelando, porém as três arcadas
como testemunho de uma época anterior. (LYRA, 1984, p. 154).
Na defesa da permanência desta sala, José de Souza Reis, com
justificativas históricas, emitiu um parecer em 16 de Janeiro de 1984, onde
dizia que:
o chamado Salão dos Archeiros que se comunicava com as
demais salas à volta e era alcançado através do 2º lanço de
escadas fronteiro ao 1º , a partir de 1841 (coroação de D. Pedro
II), marca uma disposição arquitetônica funcional existente há
quase um século e meio e que teve origem numa fase histórica
importante, ou seja, o início do 2º Reinado brasileiro. E se, por um
lado, essa disposição alterou a outra, original, foi ela que
encontramos e, não obstante as alterações decorativas do
salão, está incorporada à história do Paço desde uma época
em que ele ainda estava em pleno fastígio como sede do
governo imperial. (REIS, 1984, p. 157).
Mais adiante ele continua a mesma questão:
como fechar simplesmente este salão ao acesso do lanço de
escadas feito em 1841 se nada temos de época anterior para
substituí-lo fidedignamente?! Só para termos a caixa da
escadaria fechada, sem nada que interfira em seu gosto
barroco, se nem mesmo podemos afirmar que ela não
ostentasse originalmente quaisquer aberturas para o suposto
pátio?
E, finalmente, além do apoio histórico constatado,
devemos considerar as vantagens decorrentes da utilização
desse espaço central comunicando-se com todo o seu entorno,
como que prolongando a planta do prédio em toda a sua
extensão, a partir da nobre entrada principal. (REIS, 1984, p.
157).
1
1
0
0
4
4
Como explicado anteriormente, a sala permaneceu como fora
encontrada pela equipe, pois, apesar de toda fundamentação teórica, não
havia registros suficientes para a recomposição da feição barroca, neste
trecho do edifício.
O salão da clarabóia
Entre todos os pontos envolvidos no processo de restauração do
edifício do Paço Imperial, o salão da clarabóia foi o mais controverso.
Este salão encontra-se localizado no centro da edificação, e alguns
indícios em documentos e nas prospecções demonstram que neste ponto
existia um pátio aberto. A alteração, que transformou o pátio em salão,
aconteceu a partir do início do Segundo Império, com a construção do
terceiro lance da escada nobre.
A partir das alterações realizadas dois percursos foram definidos por
Glauco Campello:
superpostos e contraditórios (Fig. 3.16-3.17). No primeiro a
expressividade da construção mais antiga é respeitada:
partindo do pórtico formado pelos arcos e seguindo pelo pátio
ganha-se o primeiro trecho da escada;no patamar há uma
pausa; depois, voltando-se sobre os dois lanços laterais,
alcança-se o plano do andar superior; daí, através das sacadas,
pode-se apreciar de outro ângulo o pátio e o pórtico. No
segundo caso a ala formada pelas quatro colunas não chega a
valorizar um percurso retilíneo, mas no patamar a escada segue
em frente, desdobrando-se na mesma direção, indo
desembocar no salão, em posição assimétrica. (1984, p. 146-
147).
Fig. 3.16 – Corte da escada nobre –
Percurso barroco – das sacadas pode-
se apreciar o pátio e o pórtico.
Fig. 3.17 – Corte do salão da
clarabóia. Percurso neoclássico – a
escada segue em frente.
1
1
0
0
5
5
O salão da clarabóia, para Glauco Campello era “o elemento
emblemático onde se concentram as evidências de um amontoado de
reformas e onde está bem visível o processo evolutivo das intervenções”
(1984, p. 146-147).
Porém, como explicamos anteriormente, não existiam documentos
iconográficos suficientes do interior do edifício. Assim, ficou decidido que a
fisionomia do Salão permaneceria como testemunha da linguagem eclética.
E, como declarou ainda Campello (1984, p. 147), a partir dessa decisão “o
ecletismo também está presente na restauração do Paço”.
Definição de uso
José de Souza Reis
30
, após analisar os documentos e realizar a visita ao
edifício, definiu algumas das medidas necessárias para o desenvolvimento
dos trabalhos, como a “possível definição quanto à situação jurídica do
Paço, bem como de sua futura destinação de modo a possibilitar a
elaboração do anteprojeto respectivo”. (1984, p. 156).
Foi também criada a comissão que orientaria o projeto definitivo da
restauração do Paço Imperial, como explicou José de Souza Reis:
essa comissão técnica funcionou satisfatoriamente durante mais
de seis meses e finalmente atingiu seu objetivo ao estabelecer
um projeto geral de restauração interna e externa, atendida
também a necessária adaptabilidade para o funcionamento
de suas futuras finalidades de natureza cultural, conforme fora
determinado pelo secretário Aloísio Magalhães.
(REIS, 1984, p.
156).
Apesar da afirmativa de José de Souza Reis a propósito do projeto
geral, as obras iniciaram-se sem que o uso definitivo para o edifício houvesse
sido estabelecido.
30
Arquiteto responsável pelos estudos preliminares do edifício.
1
1
0
0
6
6
A definição do uso para o edifício se constituía na idéia, conforme
Suetônio Valença, de “que a utilização se defina de forma espontânea, com
um mínimo de intervenção de nossa parte.” (FERREIRA, 1985, p.53)
No entanto, a equipe de restauro definiu um programa inicial no qual
o edifício abrigaria os departamentos da Secretaria de Cultura do MEC no
Rio de Janeiro, espaços para uma série de atividades culturais no térreo,
com galerias de arte, livrarias, uma biblioteca popular e uma agência dos
Correios e Telégrafos.
Essa proposta tinha o objetivo principal de promover a revitalização da
Praça XV, apesar do “uso indefinido” sobre o qual declara Lauro Cavalcanti:
estando o restauro em fase de conclusão, importante e urgente
questão surgiu: que uso dar ao palácio renovado? A função
cultural era uma unanimidade. A obra inovadora parecia exigir
e sugerir uma função igualmente nova. (1999, p. 22).
Porém, a definição da finalidade cultural foi também determinada por
meio do mesmo “método de aproximações sucessivas” que foi realizado na
própria restauração do Paço, do depreende do que Lauro Cavalcanti
afirma:
era importante procurar a vocação do Paço em meio a mil
sugestões que surgiram nos momentos de redefinição de seu
uso nos anos 80. Não possuir coleção pareceu fundamental
para garantir a sua agilidade. Encarar o prédio como principal
acervo a ser explorado era outra evidência. (CAVALCANTI,
1999, p. 40).
Essa dinâmica do processo que envolve a restauração e a
adequação de uso concomitantes de um monumento arquitetônico, na
qual o edifício a cada parede retirada indica os passos seguintes, foi assim
apreendida por Heloísa Buarque de Holanda:
o Paço elabora sua própria vocação arquitetônica, atualizada
numa interessantíssima experiência político-institucional, que
enfrenta, com desenvoltura, o desafio de repensar a própria
noção de patrimônio cultural e seus usos sociais a partir de uma
visão complexa sobre as formas como a sociedade se apropria
de sua história. (HOLANDA, 1999, p. 36).
E essa determinação, baseada na apropriação social da história dos
monumentos com vistas ao fortalecimento do exercício da cidadania, se
1
1
0
0
7
7
definiu o Paço como centro cultural, cumprindo a meta impressa nesta
afirmação de Maria Cecília Londres Fonseca:
o sistema SPHAN/ FNpM promoveu, em sua rede de museus e
casas históricas, a utopia em que todo cidadão brasileiro, então
travestido em povo e não mais em elite, fixaria e exerceria a
cidadania por meio do exercício da cultura, com a qual
construiria e reconstruiria a própria história. (FONSECA, 2005, p.
153).
De acordo com Suetônio Soares Valença, “a idéia de centro cultural
só ‘vingará a partir do momento em que a população tiver uma relação
afetiva com o espaço.” (FERREIRA, 1985, p. 53) Sendo assim, o edifício do
Paço foi inicialmente aberto à visitação pública para “basicamente
aproximar o prédio do povo.” (O GLOBO, 1985)
A esse respeito, o artigo O bem tombado, para usar. Ou não?,
publicado no jornal O Globo, registra que:
o processo de realizar empreendimentos culturais começou
com a abertura do Paço à visitação pública. Inicialmente foram
estudantes de arquitetura, interessados em técnicas de
restauração, e grupos de turismo cultural a visitar o prédio.
Começou-se a divulgar a idéia de fazer do Paço um centro
cultural e os candidatos foram aparecendo.” (O GLOBO, 1985)
A
partir do interesse despertado na população pelo local e do
aumento da demanda dos produtores culturais, o edifício apresentou-se
inadequado para a realização de tantas atividades. Devido a esse fato,
houve a necessidade de adequar a infra-estrutura. Sobre essa situação,
Glauco Campello declara que “este primeiro ano de atividades nos deu
subsídios para estruturarmos o espaço, de forma a atender tanto às
demandas populares como às eruditas.” (O GLOBO, 1986)
Atualmente, os espaços do edifício são ocupados por exposições de
arte contemporânea, encenações teatrais, concertos musicais, seminários e
conferências sobre temas da atualidade; além disso, o edifício contém a
biblioteca Paulo Santos, cinema, loja, restaurante e bistrô.
Com a inclusão das atividades comerciais, como lojas, restaurante e
cinema, procurou-se atrair a população para o interior.
1
1
0
0
8
8
Para Cyro Lyra,
o Paço que os visitantes deste final de século vinte vão
conhecer não é a reconstituição de uma época determinada.
Na verdade, é um novo Paço que, liberto de seus acréscimos
espúrios, revela de forma inequívoca as fases significativas das
transformações de sua arquitetura, do início do século XVIII aos
dias de hoje.
(LYRA, 1984, p. 154)
Portanto, o edifício é um espaço singular de divulgação e
programação cultural e mantém algumas marcas dos diferentes usos aos
quais foi adaptado ao longo dos anos. Além disso, a localização estratégica
e a função de galeria de arte contemporânea e complexo cultural
permitem que exposições de importância no cenário nacional se realizem
nessa arquitetura única.
O projeto de restauração do Paço excluiu praticamente as diferentes
formas de organização espacial realizadas no período em que foi ocupado
pelo departamento dos Correios e Telégrafos, proporcionando amplos
ambientes, característicos de um palácio.
Assim, apenas mantiveram-se as principais paredes, nas quais, por
meio de prospecções, foi determinado o período Barroco da construção.
Esta decisão foi determinante para a adequação do Paço como centro
cultural, dotando-o de amplas salas para exposições que podem ser
reorganizadas com a utilização de painéis.
Considerações sobre a restauração
De acordo com a teoria da restauração de Brandi, a idéia diretriz para
a intervenção deve ser o juízo crítico de valor, a qual é reiterada também
por Aloïs Riegl e presente na Carta de Veneza (1964), complementada pela
seguinte ressalva: “O julgamento do valor dos elementos em causa e a
decisão quanto ao que pode ser eliminado não podem depender somente
do autor do projeto.” (in: CURY, 2005, p. 94).
Assim, a restauração deve ser consubstanciada por diferentes fatores
como, por exemplo, o próprio contexto no qual se insere a obra e o
1
1
0
0
9
9
conhecimento cuja abrangência e profundidade, seja do ponto de vista da
técnica a ser empregada, conforme defendido por Viollet-le-Duc, seja do
ponto de vista humanístico, estejam relacionados com o domínio da história,
estética e filosofia. Com a ausência deste conhecimento não é possível
assegurar a legitimidade das escolhas efetuadas nos procedimentos de
restauro. Portanto, a restauração é um processo extenso que independe do
gosto ou do arbítrio de um único profissional, conforme explica Beatriz Kühl:
o arquiteto só deve ficar completamente satisfeito e colocar
seus operários para trabalhar quando encontrar a combinação
que se adapta melhor e mais simplesmente aos traços que
ficaram aparentes; decidir sobre uma disposição a priori sem
ter-se certificado de todas as informações que a devem
comandar, é cair na hipótese, e nada é mais perigoso do que a
hipótese em trabalhos de restauração. (KÜHL, 1998, p. 189).
O processo de conhecimento do edifício, produzido e adquirido
durante a restauração do Paço, foi assim registrado por Cyro Lyra “à medida
que se aprofundava o conhecimento a respeito do monumento, a presença
do antigo Paço se impunha”. (LYRA, 1984, p.153). Assim, à medida que
aumentava o conhecimento do edifício, as decisões relacionadas à sua
restauração se esclareciam e se consolidavam.
A apreensão e a combinação pertinente dos traços e vestígios do
passado revertem-se justamente no processo metodológico que ainda Cyro
Lyra tão bem explicita:
numa obra historicamente tão modificada, os critérios de
intervenção não são rígidos, parecendo até, algumas vezes,
contraditórios. O que deve prevalecer na intervenção num
monumento é a busca de um resultado arquitetônico capaz de
revelar os testemunhos históricos, valorizar os momentos
arquitetônicos de maior expressão e finalmente garantir, por
meio de uma correta adequação à nova destinação, a
revitalização do uso. (LYRA, 1984, p. 154).
O que Afonso Carlos Marques dos Santos avalia como:
as escolhas feitas pelo Patrimônio Histórico e Artístico Nacional
foram equilibradas e coerentes, num quadro de muitas
contradições. Talvez outras opções pudessem ter sido feitas,
mas sempre se correria o risco do anacronismo, da incoerência
e da indefinição. (SANTOS, 1984, p. 115).
1
1
1
1
0
0
Portanto, sem anacronismo, incoerência e indefinição, a restauração
do edifício do Paço não se fundamentou em uma forma clássica de
restauração, tampouco numa teoria pré-fixada.
O procedimento referente à restauração do edifício foi
gradativamente realizado, de acordo com o que o próprio edifício se
revelava à equipe, ampliando o próprio conhecimento daquele “saber-
fazer”.
Por meio dessa forma particular de intervenção, o objetivo final foi
amplamente alcançado.
A restauração do Paço provocou não somente a revitalização do
entorno imediato, a praça XV, como estimulou a restauração/revitalização
das edificações “antigas e ociosas” no Centro da cidade; dentre as quais a
Casa França-Brasil (1990), o Centro Cultural Banco do Brasil (1989), Centro
Cultural Hélio Oiticica (1982) e o Centro Cultural da Marinha (1996).
Descrição do edifício do Paço Imperial
O edifício do Paço Imperial, representante da arquitetura colonial,
apresenta-se afastado de outras construções pela existência das ruas e da
praça que o contornam, resultando na composição de quatro fachadas de
igual importância para a relação entre o edifício e a cidade.
Apresenta na fachada principal, voltada para o mar, uma
composição simétrica, com o corpo central elevado, onde se destaca a
portada de pedra composta por colunas e porta e verga retas, gradeadas.
A fachada da rua Primeiro de Março contém, no térreo, três portas
centrais de vergas retas entre duas de vergas curvas e mais duas portas de
vergas retas em cada extremidade, todas com cimalha nas sobrevergas.
As fachadas laterais apresentam, no térreo, vinte e uma janelas e três
portas de vergas retas; no primeiro pavimento, vinte e quatro sacadas com
portas de vergas curvas e no segundo pavimento, quinze sacadas com
portas de vergas curvas.
1
1
1
1
1
1
Por meio destas sacadas, o edifício se relaciona com o exterior e, por
meio dos pátios internos, com o interior.
Internamente, pouco conserva da edificação primitiva, devido à
descaracterização ocorrida no período de ocupação do Departamento de
Correios e Telégrafos e da falta de material iconográfico que revelasse os
espaços internos para que fossem reconstituídos, conforme já apresentado
neste capítulo.
O percurso linear apresenta o modelo de salas enfileiradas e
diretamente interligadas, principalmente no segundo pavimento.
O sistema de proteção contra incêndio é composto por três tipos de
equipamentos: detectores iônicos de fumaça em todo o edifício, 77
extintores de incêndio e 8 hidrantes com 2 mangueiras cada.
A iluminação natural do edifício seria realizada por meio das
esquadrias, compreendidas por grandes vãos. Quanto às salas de
exposição, na maioria das vezes, as esquadrias são encobertas com painéis,
para adequar estes espaços às necessidades das exposições, e no que diz
respeito às exigências de iluminação e disposição do acervo.
A iluminação artificial nas salas de exposição é realizada por lâmpadas
halógenas e dicróicas em trilhos eletrificados que possibilitam o
deslocamento dos spots de acordo com o projeto museográfico, além da
possibilidade de colocação de trilhos transversais complementares. Nos
demais ambientes a iluminação é realizada por lâmpadas fluorescentes.
O sistema de segurança é realizado através de sistema interno de TV,
com 32 câmaras implantadas em todo o prédio (exceto na administração),
e sistema de infravermelho existente nas salas de exposições, fora o detector
de presença. Além disso, há firma de vigilância contratada, responsável pela
segurança do prédio durante 24hs, e mais 11 funcionários do quadro efetivo
do Paço, treinados em segurança, que dão suporte ao pessoal da firma.
A climatização das salas de exposição é realizada por meio de
equipamentos de ar condicionado com temperatura e umidade relativa
controladas dentro das exigências das normas internacionais de
conservação de obras de arte. Nas áreas de circulação e sanitários, a
1
1
1
1
2
2
ventilação é feita por meio das janelas voltadas para o exterior ou para os
pátios internos.
Apesar das diversas intervenções e adaptações, alguns espaços
necessários ainda não foram completamente solucionados, podemos citar a
questão do depósito para armazenamento de material museográfico,
constituído por divisórias de madeira e tapadeiras. Algumas destas peças,
quando não utilizadas nas exposições, ficam nas áreas de circulação,
próximas aos sanitários (Fig. 3.18).
Fig. 3.18 – Paço Imperial - Divisórias acumuladas na circulação de acesso aos sanitários,
2006.
1
1
1
1
3
3
Uso atual e programa
O Paço Imperial se transformou em um lugar aberto a exposições e
eventos culturais, caracterizando-se por um espaço histórico para
exposições de tipo variado, mas, sobretudo, de manifestações artísticas
contemporâneas.
No edifício há 15 salas distribuídas nos três pavimentos, destinadas a
exposições temporárias de artes plásticas, eventos teatrais, concertos
musicais, clássicos e populares, assim como para palestras e seminários
relacionados às temáticas das exposições realizadas.
No pavimento térreo se localizam as atividades comerciais – loja,
restaurante e bistrô – e as atividades culturais – o cinema.
No primeiro andar do edifício, localiza-se a biblioteca Paulo Santos,
com o acervo especializado em arte e arquitetura luso-brasileiras.
O programa e as plantas apresentadas a seguir ilustram a
configuração do edifício de acordo com o novo programa atual: centro
cultural.
1
1
1
1
6
6
Programa
Salas de exposição – No térreo, o edifício possui três galerias com piso de granito,
da época da restauração arquitetônica do edifício, paredes com pintura na cor
branca e teto em barrotes de madeira aparente.
No primeiro pavimento, existem oito galerias, com piso e teto de madeira,
paredes em pedra aparente e reboco pintado na cor branca.
No segundo pavimento, estão localizadas quatro galerias com piso e teto de
madeira, paredes pintadas na cor branca.
Auditório (sala dos Archeiros) – Espaço climatizado com capacidade para 100
pessoas. Equipada com projetores de slides, retro-projetor e vídeo. Possui
versatilidade para as atividades de teatro, música, seminários e palestras. O piso
é de réguas de madeira, original do edifício, as paredes são pintadas na cor
amarela e possuem elementos decorativos em massa. O teto possui forro de
madeira pintado de branco e uma clarabóia com estrutura em aço, coberta
com vidro fosco.
Cinema – Espaço climatizado com capacidade para 64 pessoas, destinado a
projeção de filmes e vídeo. O piso é de carpete, aplicado em estrutura de
madeira sobre a pedra, paredes com pintura na cor azul, forro com placas
acústicas e ripas de madeira. As janelas foram fechadas internamente, com
painéis acústicos pintados.
Biblioteca – Apresenta aproximadamente 7.000 volumes sobre arte e arquitetura,
disponíveis para a consulta do público. O espaço possui sistema de
climatização, realizado por dois equipamentos de ar condicionado. O piso é de
réguas de madeira, a parede com pintura na cor branca e o forro de madeira
com pintura na cor cinza.
Restaurante – Espaço climatizado por meio de três aparelhos de ar
condicionado, com capacidade para 80 pessoas. O piso é em granito, quase
1
1
1
1
7
7
todo original, paredes com pintura na cor branca e teto com barrote de
madeira aparente.
Bistrô – O espaço se apresenta aberto para o pátio interno, possuindo quatro
ventiladores de teto para a melhor ventilação da área, com capacidade para
60 pessoas. O piso é de granito, da época da restauração arquitetônica do
edifício, paredes com pintura na cor branca e teto com barrote de madeira
aparente.
Loja – Localiza-se no térreo, voltada para as ruas 1º de Março, Assembléia
epraça XV. Um misto de livraria e loja de CD’s. O espaço possui sistema de
climatização, equipamentos de ar condicionado e ventiladores de teto. O piso é
de granito, da época da restauração arquitetônica do edifício, paredes com
pintura na cor branca e teto com forro de madeira com pintura na cor cinza.
Sanitários para público – No pavimento Térreo, os sanitários feminino e masculino
possuem piso em cerâmica, paredes revestidas em cerâmica até a metade e o
restante com pintura na cor branca e tetos em réguas de madeira aparente.
No primeiro e segundo pavimentos, os sanitários feminino e masculino
possuem piso em réguas de madeira e placas de mármore nos locais das louças.
Paredes pintadas na cor branca e teto em réguas de madeira aparente.
Portarias – Localizadas nas fachadas laterais do edifício, voltadas para a rua da
Assembléia e Praça XV. O piso é de granito, da época da restauração
arquitetônica do edifício, paredes com pintura na cor branca e teto em réguas
de madeira.
Pátio interno – Não possui cobertura. O piso em granito e parede com paredes
com pintura na cor branca.
Área administrativa – O espaço possui sistema de climatização. O piso é de
réguas de madeira, a parede com pintura na cor branca e o forro de madeira.
1
1
1
1
8
8
Intervenções contemporâneas
Para adaptação do edifício ao programa referente a centro de arte
contemporânea, algumas intervenções foram necessárias; desse modo, foi
preciso enquadrar o edifício às normas da ABNT de acessibilidade e às
exigências modernas de conforto e segurança. Entretanto, em razão dos
limites impostos pelo caráter próprio do edifício, bem tombado como
patrimônio histórico e artístico, as intervenções precisam ser reversíveis, sendo
cláusula especial a não-interferência na estrutura do edifício, o que não
ocorreu em algumas intervenções realizadas no edifício do Paço.
Dentro deste panorama, os elementos inseridos mantiveram os critérios
da restauração, isto é, a utilização de materiais e detalhes contemporâneos,
mostrando a época da intervenção.
Dentre as intervenções realizadas, podemos citar a implantação de
alguns serviços: lojas, cafeteria e restaurante, biblioteca e cinema; e de
alguns equipamentos: a instalação do elevador, do ar condicionado na
biblioteca e ar condicionado central, e sistema contra roubo (TV e
infravermelho).
Em conseqüência da instalação desses novos equipamentos, foram
necessárias pequenas intervenções no edifício, dentre as quais, as
decorrentes da instalação do ar condicionado central. Para tal inserção,
várias paredes tiveram que ser cortadas de modo a permitir a passagem de
dutos de ar condicionado, a colocação dos dutos de ar condicionado
aparentes, e a colocação de portas de blindex para vedação de alguns
ambientes.
Em julho de 1989 realizou-se a instalação do elevador para o acesso
ao 1º e 2º pavimentos (Fig. 3.19), para adequar o edifício às normas da ABNT
para espaços públicos e facilitar o acesso de pessoas idosas e portadoras de
deficiência física, com exceção dos sanitários onde não houve tais
adequações. Para essa finalidade também foram colocadas pequenas
rampas nos acessos às salas de exposições e locais de circulação de
1
1
1
1
9
9
visitantes, ou seja, nos locais que possuíam diferença de nível entre os
ambientes. (FIg. 3.20)
Fig. 3.19 – Paço - Elevador para acesso ao
1º e 2º Pavimentos, 2006.
Fig. 3.20 – Paço - Rampa com faixas
antiderrapantes para circulação entre as
salas, 2006.
Desde a inauguração do Paço Imperial como um centro cultural de
arte contemporânea, diversas mudanças vêm acontecendo visando a
modernização dos serviços oferecidos e o aprimoramento da qualidade dos
mesmos. Estas mudanças são necessárias para incorporar as novas
tecnologias referentes a exposições de obras de arte.
Com relação às exposições, devemos ressaltar a flexibilidade das salas
de exposição, proporcionada pela decisão, durante o projeto de
restauração, de deixar os espaços amplos. A exposição Lucio Costa,
apresentada em 2002, pode ser utilizada como exemplo para demonstrar
esta flexibilidade. O acervo da fundação Lúcio Costa, distribuiu-se em parte
do primeiro pavimento do edifício, permitindo analisar dois percursos
distintos: o arquitetônico e o expositivo.
No tocante à arquitetura, conforma-se o sistema clássico de galeria
linear em torno de um pátio central.
1
1
2
2
0
0
A locação das escadas de acesso ao 2º pavimento
majoritariamente ao longo da ala da rua da Assembléia,
associada aos amplos vãos de acesso ao vestíbulo da sala 9
acabam por lhe imprimir um sentido principal de trajeto anti-
horário. A exposição trabalhou sobre essa preferência de
percurso como um dado de projeto de forma assertiva, ao
estabelecer um ponto focal com momentum emotivo de
impacto e painel histórico-panorâmico neste mesmo vestíbulo.
Em linhas gerais, os módulos da exposição seguiram o percurso
determinado pela arquitetura, com uma tentativa de romper a
linearidade do percurso através dos nichos expositivos que
obrigariam os visitantes a se deslocarem transversalmente ao
sentido principal. (D’Almeida, 2005). (Fig. 3.21).
Fig. 3.21 – Painéis verticais e disposição da exposição ao longo do salão, 2004.
Dentre as mostras realizadas neste espaço histórico, podemos citar as
que apresentaram as obras de Picasso, Aleijadinho, Guignard, Helio Oiticica
e Krajcberg; a música de Villa lobos, Ernesto Nazareth, Paulo Moura; o teatro
de Luiz Antonio Martinez Correia, de Maria Clara Machado; além de outros
1
1
2
2
1
1
CENTRO CULTURAL DA JUSTIÇA FEDERAL
O edifício onde hoje funciona o Centro Cultural da Justiça Federal foi
projetado pelo arquiteto sevilhano Adolpho Morales de los Rios
31
, teve sua
construção iniciada em 1905 e destinava-se à Mitra Arquiepiscopal do Rio de
Janeiro.
Tombado pelo município do Rio de Janeiro, recebeu, recentemente, o
tombamento provisório pelo INEPAC, representa um dos exemplares da
arquitetura eclética em voga no Brasil no final do século XIX e início do
século XX (Fig. 3.22), embora predominem nas fachadas do edifício os
elementos do neoclássico francês.
Fig. 3.22 – Vista externa fachada principal (avenida Rio Branco).
O edifício que também foi sede do Supremo Tribunal Federal passou a
constituir, junto com o Museu Nacional de Belas Artes, a Biblioteca Nacional,
o Palácio Pedro Ernesto (Câmara Municipal) e o Teatro Municipal, o conjunto
histórico da Cinelândia.
No Centro Cultural da Justiça Federal ocorre uma variedade de
atividades voltadas para a cultura e o lazer, pois o edifício contém
biblioteca, cinema, galerias de exposição, um banco de dados e
informações referentes à justiça, e cafeteria.
O edifício se constitui pelo primeiro espaço cultural do mundo a adotar
a Justiça como tema central.
31
O arquiteto espanhol Adolpho Morales de los Rios (1958-1928) chegou ao Rio de Janeiro em 1889,
realizando diversos projetos para a Avenida Central, dentre os quais podemos citar o Museu Nacional
de Belas Artes.
1
1
2
2
2
2
Breve histórico
Construído no início do século 20, como parte das comemorações da
abertura da então Avenida Central, o edifício do Centro Cultural da Justiça
Federal foi inteiramente reformado, passando por um “meticuloso e
carinhoso trabalho de restauração, promovido pelo TRF (Tribunal Regional
Federal) do Rio”, de acordo com a ministra Ellen Gracie. (STF notícias, 2006)
O processo de concepção e transformação do edifício seguiu a
ordem cronológica abaixo apresentada:
1905 – Início da construção do edifício, logo após a inauguração da Avenida
Central. (Fig. 3.23)
Fig. 3.23. Perspectiva do conjunto em construção, 1905.
1909 – Adquirido pelo Governo Federal, tornou-se sede do Supremo Tribunal
Federal. Ocorreram algumas alterações no projeto em função da alteração
da Mitra para STF. (Fig. 3.24)
Fig. 3.24. Perspectiva do conjunto, 1922.
1923 - Houve a substituição de toda instalação elétrica do edifício, com
projeto de autoria de Adolpho Morales de los Rios. Esta intervenção
ocasionou alterações nas pinturas decorativas.
1
1
2
2
3
3
1930 – Com a finalidade de adequar os espaços às necessidades dos
usuários e acompanhar a evolução do sistema judiciário no Brasil, foram
realizados acréscimos no 4° pavimento e alterações internas com a divisão
de salas e modificação de sanitários. (Fig. 3.25)
Fig. 3.25. Fachada principal, 1936.
1960 – O Supremo Tribunal Federal transfere-se para Brasília. O edifício foi
ocupado pelas Varas de Fazenda Pública e pela Justiça Federal.
1985 – São iniciadas as obras para construção do anexo de 14 pavimentos.
1988 – O edifício é tombado pelo município em 05 de maio.
1989– O edifício é interditado devido a problemas de segurança com
relação à infra-estrutura. São iniciadas as obras de restauração.
2001 – Iniciou o funcionamento do edifício com finalidade cultural.
2006 – Em 10 de Julho, o edifício é tombado provisoriamente pelo Instituto
Estadual do Patrimônio Cultural – INEPAC, por seu valor arquitetônico,
histórico e cultural.
1
1
2
2
4
4
O projeto de restauração
Compreendendo uma restrita bibliografia referente à restauração
arquitetônica do edifício da Justiça Federal, este trecho da dissertação foi
elaborado com base nas informações constantes no site da instituição da
Justiça Federal, onde se encontra disponibilizada a descrição de todo o
projeto de restauração arquitetônica do edifício; na revista ATRIUM, uma
publicação do centro cultural para a divulgação das atividades culturais; e
no testemunho de alguns profissionais envolvidos no processo de
preservação e restauração, ou seja, a arquiteta Marisa Assumpção e a
arquiteta Izabela Fraga
32
.
A restauração e adaptação do atual Centro Cultural da Justiça
Federal exigiram um plano de obras de infra-estrutura, orientado
principalmente para a manutenção dos espaços originais. Os conceitos
arquitetônicos que nortearam a concepção original do projeto, conforme a
declaração do advogado Sobral Pinto indicaram que “o prédio deveria ser
preservado não apenas pelo seu aspecto arquitetônico, mas também pelo
que a instituição representou na consolidação da República e na defesa dos
direitos da pessoa humana.” (O Estado de São Paulo – 29.12.86).
O processo de restauração respeitou as características históricas da
construção, conforme a orientação do IPHAN e foi precedido de um
levantamento arquitetônico e fotográfico.
O projeto arquitetônico de restauração e adaptação da antiga sede
do Supremo Tribunal Federal no Rio de Janeiro foi elaborado pela P/A
Arquitetura e Planejamento, com a participação dos arquitetos José Luiz
Pinho e Glauco Campello, responsável pelo projeto de ocupação do
edifício, e a coordenação dos arquitetos Hermano Montenegro, Marisa
Assunpção e do engenheiro José Carlos Barbosa.
32
Izabela Fraga Alvim é formada em Arquitetura e Urbanismo pela Universidade Gama Filho, com Pós
Graduação em Restauro e Reciclagem de Edificações pelo Instituto Bennett. Como representante do
TRF (Tribnal Regional Federal), acompanhou, fiscalizou e fez parte do Grupo de Trabalho da obra de
restauro do prédio do Antigo Supremo Tribunal Federal, atual Centro Cultural da Justiça Federal.
Atualmente coordena o Setor de Preservação do Patrimônio Histórico do CCJF.
1
1
2
2
5
5
Durante as obras, foi realizada parcialmente a restauração artística
das paredes, dos medalhões e de obras de arte como os três painéis do forro
da Sala de Sessões, de autoria de Rodolpho Amoedo; da estátua em bronze
da Justiça, encimando a fachada do edifício e das três portas de madeira
entalhadas da entrada principal.
Os acréscimos feitos no 4º pavimento, iniciados na década de 1930,
foram mantidos e utilizados para a Administração do C.C.J.F.
O fato de indícios indicarem que no projeto original do Palácio
Arquiepiscopal existiria um porão embaixo da escadaria principal, fez com
que fosse criado o subsolo técnico, liberando, assim, as áreas nobres originais
do uso para equipamentos de serviço e apoio ao teatro.
Outra mudança para adaptação do novo uso foi a criação de um
pequeno teatro, na antiga garagem. Assim, as instalações necessárias, tais
como camarins, áreas para os equipamentos técnicos e depósitos, foram
tamm dispostas no subsolo.
A seguir serão apresentados alguns aspectos e fatos do projeto de
restauração que achamos relevantes para a análise da compatibilização
arquitetônica do edifício histórico com o programa referente a centro
cultural, tema de que trata esta pesquisa. Poderemos observar que, devido
à definição da função ter ocorrido no início do projeto de restauração, ao
contrário do que aconteceu no Paço, foi possível delimitar diretrizes e ações
para melhor adequação do edifício do C.C.J.F. ao novo programa.
1
1
2
2
6
6
Diretrizes do projeto
Antes da definição de uso para o edifício da Justiça Federal, foram
apresentadas três propostas. A primeira se referia à venda do edifício; a
segunda à demolição do mesmo com a construção de um edifício
moderno; e a terceira consistia na restauração e implantação de um centro
cultural.
A idéia de fazer do edifício do STF um centro cultural vem desde a
gestão (1989-90) do então diretor do Foro do Rio, o juiz Federal Ricardo
Regueira, e chegou ao conhecimento do Desembargador Paulo Barata que
foi contra a proposta da demolição que daria lugar a um prédio moderno.
Conforme antes observado, o ponto de partida do projeto de
restauração e adaptação do edifício para abrigar o Centro Cultural foi a
preservação da configuração dos espaços originais para uso das atividades
culturais a que se destinava. Os acréscimos do 4º pavimento foram
destinados à administração do CCJF; e, para possibilitar a preservação dos
espaços originais, optou-se pela criação de áreas técnicas em um subsolo,
proporcionando um acesso restrito às dependências técnico-operacionais
do centro cultural.
O CCJF foi implantado com a intenção de
contribuir na construção de uma imagem mais moderna da
Instituição Justiça Federal e, ao se definir sua linha estética, a
fotografia foi adotada como linguagem de uma ação que
produza um nível de comunicação mais abrangente.
(SCHWAITZER, 2003, P. 10).
Sendo assim, ainda de acordo com Leonora Schtwaitzer, “descrita em
uma só palavra, a proposta do Centro Cultural da Justiça Federal resume-se
a um verbo: disponibilizar.” Isto é, colocar à disposição da sociedade todas
as informações sobre as decisões tomadas pela Justiça. Segundo o
Desembargador Alberto Nogueira, o edifício do CCJF tem uma vocação:
“divulgar sobretudo a Memória da Justiça, especialmente da Justiça Federal
e a Memória Nacional.” (in: ATRIUM, 2001, P. 5).
1
1
2
2
7
7
Para Leonora Schtwaitzer, a proposta do edifício vai além, pois esta
quer “promover a brasilidade, quer seja nas exposições temporárias, com
realce para fotografia, quer seja no teatro ou na sala de projeções.”
Mais
adiante Leonora conclui afirmando que “o centro cultural, portanto, não é
da Justiça Federal, é de toda a sociedade.” (SCHWAITZER, 2003, P. 11).
Este pensamento também pode ser observado na declaração do
Desembargador Alberto Nogueira, com relação ao edifício da Justa
Federal, ele afirma que:
foi o primeiro prédio da instituição da República. Instituição
republicana, e, bem entendido, quando se fala em República,
significa, a coisa do povo. Saímos de um império, de um
Imperador, para uma civilização voltada para o povo. E
coincidiu que ficou ali, num eixo que talvez, seja o mais popular
do Brasil: a Cinelândia.
(in: ATRIUM, 2001, P. 4).
Intervenções realizadas
A execução de várias prospecções estratigráficas visando identificar a
existência de pinturas decorativas, apagadas pelo tempo, recobertas por
diversas camadas de pintura, constituiu-se como item preliminar para o início
das obras de adaptação e modernização do edifício.
A preservação integral destas pinturas, mesmo sem o compromisso da
decapagem total da parede na qual se inseriam, norteou as adaptações
para a modernização do edifício. Desse modo, futuramente, sem que seja
prejudicado o funcionamento das atividades do edifício, a decapagem de
tais decorações parietais, raríssimos testemunhos do ecletismo ainda
presentes na antiga Av. Central, hoje Rio Branco, possa ser concluída.
A previsão inicial era que o restauro artístico seria executado somente
após a conclusão das obras de engenharia e instalações técnicas. Porém,
segundo Marisa Assumpção, “a sedução que o Salão Nobre e as
decorações reveladas pelas prospecções exerceram sobre o projeto
determinaram a execução simultânea do restauro artístico de alguns
elementos e das obras civis no prédio.” (in: ATRIUM, p.10)
1
1
2
2
8
8
Apesar das janelas de prospecção revelarem, ainda segundo Mariza
Assumpção, “até sete camadas superpostas de diferentes pinturas” (ATRIUM,
2001, P. 8), optou-se pela aplicação de uma cor neutra, para melhor
visualização das obras em exposição.
A recuperação do edifício compreendeu, além da restauração
artística, a restauração arquitetônica, o reforço estrutural e instalações
técnicas, como ar condicionado central, informatização e iluminação.
A consolidação das fundações e controle do lençol freático foi
executada mediante escavação manual e progressiva do subsolo, em área
correspondente a 1/3 da edificação. Foram realizadas ainda a construção
de uma rede de drenagem para controle do lençol freático e laje de
contrapressão e cortinas de estabilização ao longo dos alicerces antigos em
alvenaria e pedra. (Fig. 3.26-3.27)
As áreas criadas no subsolo foram destinadas aos compartimentos
referentes às instalações técnicas, vestiários e cantina para funcionários,
camarins, depósito e sala de administração para o teatro.
Fig.3. 26 – Escavação do Subsolo.
Fig. 3.27 – Confecção das fôrmas.
1
1
2
2
9
9
Em todos os pavimentos foram demolidas as lajes pré-moldadas, jiraus,
que descaracterizavam espaços nobres, e barroteamentos de piso em
madeiras de épocas recentes, e foram colocadas lajes especiais nervuradas,
utilizando moldes plásticos como fôrmas, sem o uso de madeiras, reduzindo
os riscos de reinfestação de cupins.
A estrutura da cobertura original em madeira foi toda refeita em
estrutura metálica, com desenho tradicional de tesouras e mãos-francesas,
recoberta com telha cerâmica tipo francesa. Foi introduzido, como garantia
de proteção pluvial e de redução térmica, um sistema de isolamento,
importado especialmente da Itália, o Isotec
33
.
Através da análise estratigráfica das camadas pictóricas e da
composição granulométrica do revestimento original, foi possível identificar
as camadas das pinturas e emassamentos realizados em intervenções
posteriores.
De acordo com as declarações de Marisa Assumpção, “a argamassa
texturizada original, na cor areia, devido aos danos irreversíveis e de difícil
solução estética, tais como o uso de cimento para alisamento da superfície,
em larga escala, tornou praticamente impossível o resgate da composição
original, resultando na aplicação de um revestimento mineral, texturizado e
pigmentado em tom próximo à cor original”.
A recomposição dos ornatos foi viabilizada por uma pequena oficina
de estucadores, que fabricaram moldes e formas das peças originais, para
execução de novos exemplares em substituição às lacunas existentes.
Para preservar e resgatar a configuração original dos espaços,
conforme documentação reunida pela pesquisa documental e
iconográfica, foram mantidos os elementos originais encontrados, tais como
forros em gesso estuque e pisos.
Os novos elementos e revestimentos introduzidos buscaram formas
simples e de fácil compreensão para a diferenciação entre o original e o
33
Isotec – Material
isolante térmico e resistente às infiltrões.
1
1
3
3
0
0
contemporâneo, objetivando uma composição harmônica, para que o
projeto de adaptação não se sobrepusesse e anulasse o projeto original.
Dentro da mesma concepção da fachada, foram produzidos moldes
em silicone de todos os ornamentos e forros, para a recomposição das
lacunas existentes, e, principalmente como garantia quanto a possíveis riscos
referentes à remoção provisória de alguns ornatos para modernização das
instalações.
Todos os pisos originais existentes que não foram removidos para
restauro em oficinas, foram devidamente protegidos para evitar danos nas
peças originais; além disso, as peças foram classificadas e fotografadas.
A maior parte destes pisos encontrava-se em áreas totalmente
descaracterizadas. Apresentavam-se desfalcados em grande número,
dificultando o reaproveitamento dos mesmos. As peças em maior número e
de qualidade significativa, quando da impossibilidade de mantê-las no local
original, devido a exigências técnicas de projeto, foram remanejadas para
áreas de igual importância e destaque.
Entre as peças mais significativas, destacam-se os ladrilhos hidráulicos
do hall de entrada e os da escadaria do 1º pavimento.
Os pisos em tábua corrida foram desenhados em planta, numerados
peça a peça, e restaurados, para a posterior recolocação no local de
origem.
Desta forma, foi possível a instalação de toda a rede elétrica para
alimentação das salas de exposição e demais salas administrativas.
Além de promover condições técnicas que garantem a preservação
do edifício a longo prazo, sem a necessidade de adaptações que possam
de alguma forma prejudicar a arquitetura ou os elementos decorativos do
edifício, o sistema de climatização foi aplicado em todo o edifício,
proporcionando as condições ideais para o funcionamento das salas
expositivas e conservação do acervo ali exposto.
A escolha da opção de sistemas com máquinas independentes, para
cada setor, am de economia no consumo, permitiu solões adequadas à
disponibilidade de espaço para passagens de dutos e posicionamento dos
1
1
3
3
1
1
equipamentos. A torre de refrigeração única, localizada no subsolo,
possibilitou eliminar da cobertura volumes que descaracterizavam a
configuração arquitetônica original.
A instalação de refrigeração na Sala de Sessões (atual Salão Nobre)
exigiu vários estudos de ordem estrutural, para viabilizar a instalação das
máquinas sobre o forro artístico, sem transmissão de vibração ou possíveis
condensações no estuque decorado.
Além disto, o posicionamento dos difusores foi definido de forma a não
prejudicar a integridade e a leitura dos elementos artísticos, ficando
imperceptíveis no conjunto.
Sobre essa queso, José Carlos Barbosa declara que “para a
refrigeração do salão, criou-se know-how próprio, de maneira que os
modernos aparelhos, completamente embutidos na laje são quase
imperceptíveis.” (in: ATRIUM, 2001)
O teatro
A implantação do teatro na antiga garagem sob o Salão Nobre,
primeiramente, exigiu algumas propostas para a criação da estrutura de
reforço e criação do subsolo, sem o qual seria impossível o total
aproveitamento da área nobre para uso como centro cultural.
Além disto, o deslocamento das colunas de aço, originais, ainda
cumprindo a função estrutural, possibilitou melhor distribuição e
aproveitamento das poltronas do auditório. (Fig. 3.28)
A estrutura portante da cabine de som e luz, piso da platéia e palco,
constituídos por perfis de aço, são totalmente independentes da arquitetura
original, mantendo a possibilidade de reversibilidade do espaço ou a
alteração do uso, respeitando a integridade da estrutura arquitetônica
original.
1
1
3
3
2
2
Fig.3. 28 – Colocação das colunas em aço.
A clarabóia
A opção da execução de uma moderna clarabóia, de grandes
dimensões sobre a escadaria principal, foi decorrente da decisão de manter
os espaços acrescidos na década de 30 e 40, no 4º pavimento, e
restabelecer a iluminação natural zenital ao grande prisma da escadaria
principal. (Fig. 3.29)
Desta forma, a circulação que, anteriormente, servia ao terraço
descoberto, em torno da original clarabóia central, de menores proporções,
sobre a escadaria foi preservada das intempéries.
A opção de uma solução estrutural em aço, desvinculada da
arquitetura original, permitindo através dos vidros laminados a visualização
dos torreões em cobre, aproximou o observador da cúpula em estilo francês,
anteriormente contemplada à distância.
1
1
3
3
3
3
Fig. 3.29 – Clarabóia sobre a escadaria principal.
A partir dos elementos expostos, referentes ao projeto de restauração
e reutilização do edifício do Centro Cultural da Justiça Federal, podemos
constatar que todas as intervenções foram realizadas com dois propósitos
bem claros: O primeiro de restituir a integridade do edifício, e o segundo de
adaptá-lo da melhor forma possível ao novo programa.
Nesse sentido, realizou-se a adequação total à nova função com
substituição integral e ampliação de capacidade das cargas técnicas, para
inclusão, nas diversas dependências, de sistema de ar-condicionado com
central de água gelada, elevadores hidráulicos especiais, que não
provocam vibrações, que poderiam prejudicar o edifício, sistema de
iluminação para exposições, câmeras de televisão, sensores de fumaça,
detectores de presença e sistema integrado de detecção e combate a
incêndios.
1
1
3
3
4
4
Descrição do edifício do Centro Cultural da Justiça Federal.
O edifício do Centro Cultural da Justiça Federal é disposto em centro
de terreno, afastado de outras construções e ao mesmo tempo criando,
junto com elas, dentre as quais podemos destacar a Biblioteca Nacional, O
teatro Municipal e a Câmara Municipal, o conjunto da Cinelândia.
Apresenta na fachada principal, voltada para a avenida Rio Branco,
de composição simétrica, dois torreões, além dos elementos decorativos em
argamassa, representando figuras da Justiça. Desta fachada, destacam-se
as três portas monumentais, talhadas em madeira, por onde se realiza o
acesso principal ao edifício.
Da mesma forma que na fachada, o hall de entrada, e todos os
espaços do edifício possuem auto-relevos, pinturas decorativas e outros
elementos decorativos que remetem sempre ao tema justiça.
O percurso linear apresenta o modelo de salas em forma “U”,
interligadas, nos três pavimentos do edifício.
O acesso às exposições é definido pela escada central do edifício, em
torno desta que se localizam as salas de exposição. Existem ainda dois
acessos laterais e um acesso de serviço pela fachada posterior do edifício.
As galerias para exposições se constituem por salões amplos e
interligados, com varandas voltadas para a Cinelândia.
Essas galerias possuem decoração mais simples que o Salão Nobre,
têm paredes com pintura em cor neutra, teto em gesso com sancas, piso em
peroba e pau-roxo, em trechos remanescentes do piso original, e em granito,
nas partes em que o original foi substituído. Essas substituições ocorreram em
função do projeto de restauração e também no período da ocupação pelo
Supremo. Além disso, as saídas de ar são aparentes e a iluminação é feita
com artefatos em trilhos e spots.
Localizado no primeiro andar, o Salão Nobre, ou Sala de Sessões, é o
espaço mais suntuoso do edifício, pois apresenta teto e paredes recobertos
de detalhes em estuque e pinturas decorativas, e possui 24 metros de
comprimento por 12 de largura. (Fig. 3.30)
1
1
3
3
5
5
Nas paredes laterais, há retratos pintados de juristas de vários períodos
históricos do Supremo realizadas por Rodolfo de Amoedo. O piso ainda
conserva o assoalho original de peroba e pau-roxo, e no teto, há dois painéis
pintados, além de elementos decorativos em estuque (Fig. 3.31).
Fig. 3.30- C.C.J.F. - Sala de Sessões, 2001.
Fig.3. 31- C.C.J.F. Detalhe do teto da Sala
de Sessões.
Os vitrais com a figura da Justiça são de autoria de Urban, assim como
o vitral da escada original. (Fig. 3.32).
Fig. 3.32- C.C.J.F. Vitral da escadaria principal.
A climatização de todo o edifício é realizada por meio de ar
condicionado com sistema central de água gelada.
Para adequação às normas da ABNT referentes à acessibilidade dos
portadores de deficiência física, foram instalados elevadores hidráulicos
especiais, de fabricação italiana.
A segurança do edifício é realizada por meio de um sistema de
monitoramento com câmeras de televisão, além dos seguranças localizados
nos pontos estratégicos do edifício.
O sistema de proteção contra incêndio constitui-se por sensores de
fumaça, detectores de presença nas diversas dependências e sistema
integrado de detecção e combate a incêndios.
1
1
3
3
8
8
Conforme observado anteriormente, o Centro Cultural da Justiça
Federal permanece no cenário de exposições contemporâneas
desenvolvendo mostras de fotografia, peças de teatro, seminário, entre
outras atividades.
A antiga garagem, no andar térreo, foi transformada num teatro com
instalações cenotécnicas para 144 espectadores, dos quais dois adaptados
aos portadores de deficiência física (Fig. 3.33). No subsolo encontram-se as
áreas para as instalações técnicas do teatro, dos sanitários e copa para os
funcionários e do equipamento de ar condicionado central.
Fig. 3.33Teatro.
No pavimento térreo estão situados a loja, o serviço de informações e
um café, além de galerias e do teatro. No primeiro pavimento existem
quatro galerias, além da Sala de Sessões. No segundo pavimento existem
cinco salas interligadas em forma de “u” destinada a exposições maiores e a
biblioteca, onde encontram-se as estantes originais em ferro, que
acompanham a altura e a forma do salão que as abriga. (Fig. 3.34)
Fig. 3.34 – Biblioteca – detalhe das estantes.
1
1
3
3
9
9
No terceiro pavimento, ao redor da clarabóia, localizam-se as salas de
representação das Cortes Superiores
34
e uma área destinada à
administração do centro cultural.
Programa
Salas de exposição – No térreo existem três salas com piso de granito, rodapés
em madeira, paredes com pintura na cor marfim e teto em gesso com pintura
na cor branca e saídas de ar condicionado embutidas.
No primeiro pavimento, existem quatro salas, além da Sala de Sessões, com
piso e rodapés de madeira, originais, paredes com pintura na cor marfim e teto
com sancas em gesso pintadas na cor branca.
A Sala de Sessões era, até 2006, um espaço flexível, para o desenvolvimento
de diversas atividades: concertos de música, seminários, debates e lançamento
de livros. No início do ano de 2007 foi recomposta pelo mobiliário original, que
estava exposto no museu da Justiça Federal, em Brasília, passando então a
representar em exposição permanente a ambiência de um tribunal de justiça.
No segundo e terceiro pavimentos se localizam cinco e três salas,
respectivamente. Estas salas apresentam piso e rodapé de madeira,
paredes
pintadas na cor marfim e teto com sancas em gesso pintados na cor branca.
Teatro – Espaço climatizado com capacidade para 144 pessoas. Possui com
modernos equipamentos de áudio e luz. O piso é de carpete, as paredes são
pintadas na cor marfim, teto em gesso com placas com tratamento acústico.
Café – Espaço com capacidade para 15 pessoas, com piso em granito e
rodapé em madeira, as paredes são pintadas na cor marfim, teto com sancas
em gesso pintados na cor branca.
Biblioteca – Apresenta capacidade para 30.000 volumes sobre artes plásticas,
fotografia, cinema, música e literatura.
34
Estas salas foram criadas para abrigar as Cortes superiores, que o edicio abrigaria. Esta é a
denominação dada aos tribunais superiores, representados pelos magistrados.
1
1
4
4
0
0
O piso é original, em madeira, paredes com pintura na cor marfim com
estantes de ferros com estrutura vazada e teto em com pintura na cor branca.
Loja – Principalmente de livros, com piso original em ladrilho hidráulico, paredes
e teto com auto-relevos em massa com pintura na cor branca.
Sanitários – Os sanitários feminino e masculino de todos os pavimentos possuem
piso e parede revestidos com granito.
Hall elevadores – Piso e parede revestidos com granito.
Administração – As salas possuem piso de granito, rodapés em madeira, paredes
com pintura na cor marfim e teto em gesso com pintura na cor branca e saídas
de ar condicionado embutidas.
O
O
P
P
A
A
Ç
Ç
O
O
E
E
O
O
T
T
R
R
I
I
B
B
U
U
N
N
A
A
L
L
:
:
A
A
N
N
Á
Á
L
L
I
I
S
S
E
E
C
C
O
O
M
M
P
P
A
A
R
R
A
A
T
T
I
I
V
V
A
A
CAPÍTULO
IV
1
1
4
4
2
2
Os edifícios do Paço Imperial e do Centro Cultural da Justiça Federal,
conforme observamos no capítulo anterior, possuem estilos arquitetônicos
distintos. O primeiro constitui um dos exemplos da arquitetura civil colonial
brasileira (Fig. 4.01) e o segundo da arquitetura eclética desenvolvida no
Brasil do final do século XIX ao início do XX (Fig. 4.02).
Apesar dos estilos distintos ambos os edifícios destinaram-se, após as
obras de restauração, à mesma função: Centro Cultural.
A análise comparativa entre os dois edifícios, elaborada nesta
dissertação, divide-se em duas partes. Na primeira parte, referente à análise
comparativa dos temas da teoria de Restauro, abordaremos a permanência
da identidade arquitetônica e a imagem contemporânea destes edifícios,
manifestada pela introdução dos novos elementos nas obras de adequação
à função cultural.
Na segunda parte, desenvolve-se a análise comparativa dos temas de
arquitetura de museus, consubstanciados no uso de “centro cultural”.
Fig. 4.01 – Paço Imperial, 2006. Fachada
voltada para a Praça XV.
Fig. 4.02 – Centro Cultural Justiça Federal,
2003. Fachada voltada para av. Rio
Branco.
1
1
4
4
3
3
ANÁLISE COMPARATIVA DOS TEMAS DA TEORIA DO RESTAURO
Segundo Riegl (1999), só o reconhecimento dos valores de um
patrimônio o credencia a ser preservado. Porém, quando nos referimos à
adequação de uso de edifícios históricos, além da identificação prévia dos
valores estabelecidos para o conjunto arquitetônico, devemos verificar se as
intervenções que propomos realizar, de alguma forma, poderão anular,
alterar ou agregar novos valores.
Sendo assim, iniciando com a descrição do Paço e do C.C.J.F.,
estabeleceremos nesta parte a análise comparativa com o objetivo de
identificar a permanência da identidade arquitetônica desses edifícios.
Outro aspecto considerado nesta primeira análise, se refere à inclusão
contemporânea de equipamentos técnicos com a finalidade de adequar os
edifícios ao funcionamento do novo programa.
A permanência da identidade
Os bens culturais de uma sociedade promovem a caracterização da
mesma, pois as manifestações arquitetônicas e paisagísticas são os
referenciais do indivíduo para sua identificação com a cidade em que vive.
Além de conferir identidade e legibilidade à cidade, porque a
representam e funcionam como marcos de orientação, os edifícios de
épocas sucessivas são capítulos de sua trajetória, contando, sua formação e
transformação.
Conforme visto no capítulo II desta dissertação, Geoffrey Baker (1991)
apresenta o aspecto referente à permanência como uma atribuição da
arquitetura para a organização de “modelos funcionais de cadência
características, que constituem uma cultura”. Essas características indicadas
por Baker definem a identidade da obra arquitetônica.
1
1
4
4
4
4
A permanência dos valores que conferem identidade e a agregação
de novos valores à arquitetura são obtidas pelas intervenções realizadas no
monumento, tanto estética quanto funcionalmente.
Neste capítulo analisamos e comparamos os edifícios do Paço Imperial
e do Centro cultural, com base nos elementos apresentados por Michael
Pause e Roger Clark, Geoffrey Baker e Francis Ching.
No caso do edifício do Paço Imperial, o propósito da restauração foi
reconstituir os valores que mais marcaram a história da cidade, na opinião
do autor do projeto.
Desta forma, todo um processo de demolição e construção, ou
conforme Roger Clarck e Michael Pause (1997), adição e subtração, foi
realizado com o objetivo de restabelecer a forma colonial do edifício
referente ao período em questão. Podemos dizer que houve uma
intervenção radical, pois não foi considerada a história da organização
espacial interna do edifício.
No caso do edifício do C.C.J.F., tais adições e subtrações tiveram outro
propósito. Como se fez necessário a escavação do subsolo para a
recuperação da estrutura, na opinião do autor do projeto, aproveitou-se
este espaço criado para a inclusão de atividades relacionadas ao novo uso
do edifício. Mas, ao contrário do edifício do Paço Imperial, onde a
volumetria foi bastante modificada, o C.C.J.F. permaneceu com a mesma
massa edificante, inclusive com o acréscimo do quarto andar, que já fazia
parte da identidade do edifício.
Porém, da mesma forma que no edifício do Paço, o objetivo da
restauração do C.C.J.F. foi resgatar os valores estéticos do edifício, pois
ambos se constituem de exemplares arquitetônicos de estilos passados.
Quando falamos de identidade, nos referimos às características
arquitetônicas, isto é, à volumetria, à função e aos materiais, dentre outros
elementos decorativos.
Sendo assim, para melhor compreensão da identidade arquitetônica
dos edifícios em estudo, apresentaremos algumas características dos
1
1
4
4
5
5
edifícios do Paço Imperial e do C.C.J.F., estabelecendo a relação entre os
edifícios e o exemplar arquitetônico a que se definem.
Análise da pemanência da identidade
Conforme as considerações estilísticas realizadas no capítulo III,
podemos apresentar os elementos que achamos mais significativos para
indicar a permanência da identidade dos edifícios em estudo.
A restauração do Paço restituiu-lhe a feição colonial, a qual lhe
conferia uma relação com o momento histórico mais marcante da
edificação: o período de sua ocupação pela Família Real portuguesa.
Mesmo assim, ainda de acordo com o mesmo capítulo, nos discursos sobre a
restauração, foram considerados e mantidos elementos das diversas fases
pela qual o edifício passou.
A intervenção realizada na fachada, para a feição Barroca (Fig. 4.03)
foi a principal decisão para recriar a identidade do “edifício”, uma vez que
estava completamente descaracterizado e a imagem neocolonial integrava
um espaço urbano degradado, logo, a restauração ampliaria o espaço de
intervenção para a cidade, constituindo uma nova identidade para todo o
entorno.
Fig. 4.03 – Paço Imperial – desenho da fachada de Glauco Campello.
1
1
4
4
6
6
Enquanto no edifício do Paço Imperial houve uma grande
transformação, e construção de uma identidade, no edifício do C.C.J.F., os
maiores questionamentos se referem à permanência do quarto pavimento,
que não fazia parte do projeto original.
Afora isto, todos os elementos, dentre os quais os ornamentos, a
composição da fachada, a simetria apresentada em planta e em vista, a
identificação da função a partir dos elementos do edifício, podem ser
diferenciados e servem para definir o edifício como um exemplar da
arquitetura eclética.
A grandiosidade do edifício traduzia os preceitos arquitetônicos da
construção de edifícios públicos no início do século XIX, onde a arquitetura
traduzia as suas funções.
Assim, nos elementos decorativos podemos identificar as diversas
referências à Justiça. Como exemplo podemos indicar a estátua da Justiça
localizada entre as duas cúpulas cuja simetria transmite a eqüidade e o
equilíbrio. (Fig. 4.04-4.05).
Fig. 4.04 – C.C.J.F. – Adorno: busto em alto-
relevo da Justiça
Fig. 4.05 – C.C.J.F. - simetria das cúpulas.
Observando com minúcia os capitéis das colunas, os alto-relevos, as
pinturas decorativas e os vitrais, percebe-se a constante presença da
representação da figura da Justiça.
Da mesma forma que os elementos arquitetônicos acima
relacionados, a volumetria e a concepção espacial interna do edifício
permanecem inalteradas, proporcionando a perfeita visualização do edifício
“original”.
1
1
4
4
7
7
De acordo com Riegl, em um projeto de restauração de um bem
cultural, o objetivo principal é a recuperação do valor deste bem. O valor
(histórico, artístico, arqueológico, etnográfico, paisagístico etc.) reconhecido
em um bem cultural imprime a este um papel importante para a história da
sociedade que o produziu e àquela que o reconheceu como merecedor de
destaque e de ações que permitam a sua preservação para as gerações
presente e futura.
No momento em que se decidiu realizar os projetos de restauração do
Paço Imperial, o objetivo principal era resgatar um edifício que foi
testemunho de vários e importantes acontecimentos históricos. Neste
momento, podemos dizer, de uma forma simplificada, que o edifício possuía
como maior atrativo o Valor histórico.
Com o início das obras de restauração, o enfoque ou a diretriz da
equipe responsável pela restauração mudou. À medida que as obras
corriam as alvenarias eram descascadas e demolidas, descobriu-se que por
trás de tantas alterações ainda encontrava-se “vivo” um edifício Barroco,
que se transformaria num único exemplar desse gênero no Rio de Janeiro,
uma vez que a maioria da arquitetura Barroca encontra-se representada
pela arte religiosa.
Dessa forma, o edifício se mostrou com um outro Valor, que para os
responsáveis pela restauração arquitetônica era maior que o Valor histórico
definido a priori.
Este novo valor referia-se à sua aparência física, seus elementos, seus
sistemas construtivos, o jogo de volumes, de cheios e vazios, o edifício
tornara-se então, um exemplar de um período muito importante para a
arquitetura brasileira, com isso o Valor que sobressaiu foi o valor estético.
Hoje o Paço, pela sua história, pela sua característica e por todas as
transformações definidas por ele próprio, possui grande importância junto à
área cultural da cidade, sendo procurado por vários produtores culturais e
1
1
4
4
8
8
artistas. O Paço passou de palco de acontecimentos históricos a palco de
mostras e performances espetaculares que atraem milhares de pessoas.
A introdução de elementos modernos como as escadas de ferro e
madeira de acesso ao 1º pavimento, trilhos para iluminação e divisórias em
blindex, entre outras, foram importantíssimas para a leitura e utilização do
novo espaço.
Devido a essas alterações físicas e a esse novo e diferenciado uso
determinado para o Paço, podemos dizer que, hoje, o edifício possui mais
que um valor histórico, e um valor estético que tinha a sua arquitetura e
história como elementos principais, de maior relevância. O Paço possui um
Valor contemporâneo, quando foi determinado como centro cultural do
IPHAN, e além da sua importância cultural, o edifício se transformou num
marco para a história da revitalização do centro do Rio.
No que diz respeito à forma estilística, a conclusão que chegamos é
que o edifício do Centro Cultural da Justiça Federal manteve a identidade
original, isto é, a de exemplar do Ecletismo enquanto que, conforme
constatamos nas análises realizadas, o edifício do Paço Imperial teve sua
identidade recriada a partir da sua restauração e mudança de uso.
De certa forma, o novo programa valorizou muito mais a arquitetura
dos edifícios em estudo do que a função que os ocupou por tantos anos e
que, no caso do edifício do Paço Imperial, desfigurou-o completamente. E,
no caso do C.C.J.F., o novo uso pôde mostrar à sociedade toda a beleza do
edifício que até então ficava limitada aos magistrados.
1
1
4
4
9
9
Inclusão contemporânea
O acréscimo de elementos contemporâneos em espaços históricos
provoca sempre muita polêmica. Para Jeudy, essa polêmica acontece “pois
há risco de desarmonia.” (JEUDY, 2005, p. 20).
Conforme vimos no capítulo I, muitos edifícios são “abandonados” por
terem o uso original obsoleto, não atendendo às necessidades atuais ou
simplesmente por deixar de existir a função original.
Mas a inclusão contemporânea não se refere apenas a elementos ou
objetos, e sim, diz respeito à função que o edifício oferece à sociedade de
hoje.
O “contemporâneo” significa algo “que é do mesmo tempo, que vive
na mesma época (particularmente a época em que vivemos).
(AURÉLIO,1989 , p.134) E, com esta definição procuramos evidenciar quais os
elementos que podem ser indicados na condição de “contemporâneo” nos
edifícios em estudo.
Os Elementos
A inclusão dos equipamentos e os ajustes da arquitetura para a
adequação do edifício à nova função podem conter os indicadores desta
nova “identidade”. Mas, outros elementos contemporâneos devem ser
identificados pela matéria com a qual se constituem, demonstrando o
avanço tecnológico na construção civil. Dentre esses materiais podemos
citar o alumínio e o aço inox utilizado em peças e acessórios, os grandes
panos de vidro, lâmpadas com novos feixes de luz e a utilização de
equipamentos de alta tecnologia que suprem as necessidades
contemporâneas de trabalho e vida.
De acordo com os modernos conceitos de restauro, essas adições
devem ser facilmente identificadas de maneira a não confundir o
observador e criar um falso fato histórico. Por esse motivo, as inclusões
contemporâneas são e devem ser, conforme as recomendações das teorias
1
1
5
5
0
0
de restauro e cartas patrimoniais, facilmente identificadas, criando contraste
com o material antigo.
Porém, esse tipo de intervenção é bastante questionado por teóricos e
profissionais de restauro, pois essa inclusão é muito perigosa uma vez que
pode, ao mesmo tempo, eliminar a identidade do bem arquitetônico e
agregar novos valores.
Na maioria das vezes essas inclues contemponeas se referem à
adequação técnica para a plena realização da nova função.
Dentre essas adequações podemos citar ainda a climatização dos
ambientes, a inclusão de uma iluminação apropriada, a informatização dos
sistemas de pesquisa, sistemas de segurança e os acessos mecanizados para
portadores de deficiência.
Climatização
A inserção de tubulações de ar condicionado não prejudicou o
ambiente interno do edifício do Paço Imperial. As tubulações metálicas
foram deixadas à vista, criando um contraste com as paredes caiadas, os
forros de madeira e pisos de pedra e madeira, na maioria das salas. (Fig.
4.06).
Fig. 4.06 – Paço Imperial - sala de exposição – detalhe para duto de ar condicionado, 2000.
Ao contrário desta configuração, no edifício do C.C.J.F. as tubulações
foram embutidas no gesso, pois alguns ambientes possuem tetos com forros
artisticamente trabalhados e em outros, dentre os quais as salas de
exposição, houve a necessidade de substituir os forros originais, devido ao
estado de deterioração em que se encontravam. (Fig. 4.07)
1
1
5
5
1
1
Fig. 4.07 – C.C.J.F. – Sala de Sessões – Detalhe da saída de ar condicionado.
Iluminação
O sistema de iluminação utilizado nos dois edifícios constitui-se por
lâmpadas halógenas e dicróicas em spots; no caso do Paço há trilhos
eletrificados com spots e, no C.C.J.F. fixados diretamente no teto. Os demais
ambientes dos dois edifícios contêm luminárias com lâmpadas fluorescentes,
instaladas após a restauração do prédio.
Acessibilidade
A acessibilidade de pessoas com necessidades especiais em espaços
públicos e centros culturais é um problema que, para ser resolvido, exige
muita criatividade por parte dos arquitetos. Geralmente, os níveis desses
espaços são acessados por meio de escadas e as estruturas podem estar
comprometidas, o que dificulta a inserção de equipamentos do tipo rampas
e elevadores.
No edifício do Paço Imperial foram criadas rampas ligando algumas
salas de exposição que se apresentavam desniveladas. (Fig. 4.08)
Outro elemento necessário para a acessibilidade ao edifício foi a
inclusão de um elevador. (Fig. 4.09) Este elevador é constituído por estrutura
metálica, todo aberto, para que não interfira na leitura do espaço.
1
1
5
5
2
2
Fig. 4.08 – Paço Imperial – Rampa de
ligação entre ambientes internos, 2006.
Fig. 4.09 Paço Imperial – Elevador de
acesso ao pavimentos superiores, 2006.
No edifício do C.C.J.F. a inclusão destes elementos para a
acessibilidade dos portadores de necessidades especiais foi realizada na
fase de projeto, quando se destinou o acesso aos elevadores, localizado no
hall. (Fig. 4.10). Porém, o edifício contém, no pavimento térreo, dois níveis; e
este hall com os elevadores fica localizado no nível mais alto. Desta forma foi
preciso acrescentar uma rampa para o acesso aos elevadores que fica
localizada do lado externo da edificação.
Fig. 4.10 – C.C.J.F. - hall dos elevadores, 2006.
Nas plantas dos pavimentos térreos dos edifícios do Paço e do C.C.J.F.,
apresentadas a seguir, estão marcadas as escadas e elevadores, aqui
considerados na condição de inclusões contemporâneas. (Fig.4.11-4.12).
1
1
5
5
3
3
Fig. 4.11 – Paço Imperial - Planta do pavimento térreo.
Fig. 4.12 – C.C.J.F. – Planta do pavimento térreo
.
Legenda:
X – elevadores, rampas e escadas
1
1
5
5
4
4
ANÁLISE COMPARATIVA DOS TEMAS DE ARQUITETURA DE MUSEUS
Conforme observado anteriormente, Josep Maria Montaner no artigo
“Museu contemporâneo: lugar e discurso” discorre sobre os:
temas de projeto que abrangem a questão da confrontação
entre o lugar definido pela arquitetura –(...) – e as obras que se
exibem de acordo com um discurso expositivo, partindo da
premissa de que existem relações de maior ou menor
adequação entre cada tipologia arquitetônica adotada e
cada discurso museológico concreto.
(MONTANER, P. 34).
Os temas que definem a arquitetura dos edifícios de museus, aqui
considerados para a análise em acordo com o texto de Montaner, são: o
repertório tipológico, a hierarquia de espaços (ordenação espacial), a
relação forma-discurso, a iluminação natural e artificial e os materiais de
fundo. O autor desenvolve também observações sobre o papel das vitrines e
os suportes na “arquitetura” dos espaços expositivos, porém, como já
afirmado, não os consideramos aqui.
A partir desses temas apresentados por Montaner, e com base na
metodologia apresentada no capítulo II desta dissertação, estabeleceremos
as análises comparativas dos edifícios em estudo, procurando estabelecer a
relação entre a funcionalidade dos espaços expositivos e as atividades
referentes ao programa de centro cultural, inserindo-os, inicialmente, no
contexto físico-histórico da cidade do Rio de Janeiro.
1
1
5
5
5
5
Implantação
O edifício do Paço Imperial encontra-se localizado em uma das áreas
históricas mais importantes da cidade do Rio de Janeiro: a Praça XV de
Novembro. Esta praça é um dos espaços urbanísticos remanescentes da
ocupação colonial, e, apesar das modificações formais, permanece como
suporte para a articulação da estrutura do centro da cidade.
Ao redor da praça XV encontram-se edifícios históricos que,
juntamente com a praça, transformam esta área, constituinte do projeto do
Corredor Cultural, no “centro histórico”.
Dentre estes edifícios, podemos citar o convento do Carmo (1619), a
igreja do Carmo (1761), o Paço Imperial (1743), a igreja de São José (1842), o
palácio Tiradentes – atual Assembléia Legislativa (1926) e o arco do Telles
(1718), além do chafariz de Mestre Valentim (1789), a estátua do general
Manuel Luiz de Osório (1887).
Contrastando com esses edifícios históricos e, ao mesmo tempo,
estabelecendo uma relação direta com o espaço urbano, encontramos os
edifícios da faculdade Cândido Mendes e o edifício Rua do Mercado. (Fig.
4.13)
Fig. 4.13 – Praça XV - Mapa cadastral e planta perspectivada, 1998.
1
1
5
5
6
6
Devido ao papel de interligação da praça XV com a estação das
barcas e o Centro da cidade, há intenso fluxo de pessoas transitando pela
praça diariamente, contribuindo para reforçar as “condições do lugar”, que,
conforme Baker (1991), influenciam na percepção da arquitetura.
Nessa configuração urbana, entre edifícios históricos e modernos, o
edifício do Paço ocupa uma posição de destaque na paisagem, pois,
conforme Augusto Ivan, “trata-se de um prédio completamente envolvido,
por importantes eixos de deslocamento, ficando totalmente ‘solto’ no
espaço e com suas quatro fachadas expostas.” (PINHEIRO, 1999, p.140).
Ainda citando Augusto Ivan, verifica-se que
esta rara posição no tecido urbano do Centro da cidade faz
com que o Paço não tenha nenhuma outra construção colada
a ele e, mais ainda, estando no núcleo de um grande pólo de
circulação de pessoas, não possui o que se poderia classificar
como fundos. Todas as suas fachadas, serenas mas imponentes,
são portanto bastante valorizadas, o que, do ponto de vista de
inserção e intercomunicação urbanas, se configura como um
fator extremamente favorável. (PINHEIRO, 199, p.140)
Embora se constituindo um edifício de caráter monumental (Fig. 4.14),
o que poderia “afastar” os usuários, esta situação na praça XV proporciona
ao edifício do Paço uma excelente visibilidade e conseqüente
acessibilidade, favorecendo a utilização dos espaços.
Fig. 4.14 – Paço Imperial – fachadas rua 1º de Março e da Assembléia, 2006.
1
1
5
5
7
7
Em uma relação urbana semelhante, no sentido que o edifício se
relaciona com a praça, o Centro Cultural da Justiça Federal se apresenta
localizado à praça Marechal Floriano, mais conhecida como Cinelândia.
Segundo Guimaraens, “apesar de dividir [...] com o bairro do Catete, a
praça Quinze e a região da praça da República a condição espacial de
núcleo do poder republicano, a Floriano[cinelândia], diferentemente,
configurou-se monumental desde a origem.” (GUIMARAENS, 2002, p. 210).
A Cinelândia, palco de várias manifestações políticas do século XX,
também é reconhecida como uma área de manifestação cultural do centro
do Rio, devido ao fato de, na década de 1930, ter ocorrido a instalação de
vários cinemas nesta área.
Lima confirma esta idéia ao afirmar que “a vocação desse espaço
urbano foi definida após a Proclamação da República, pela cultura, pela
política e pelo lazer.” (LIMA, 2000, p. 185)
Concebida sob inspiração da arquitetura francesa, a Cinelândia
dispõe ao seu redor de edifícios construídos juntamente com a reformulação
urbana pela qual passou a cidade, durante o governo de Pereira Passos.
Espaço urbano de intenso fluxo de pessoas, possui, localizada na rua
Pedro Lessa, uma saída do Metrô, o que incrementa a passagem dos
pedestres por essa região.
Constituem o conjunto urbanístico da Cinelândia, os edifícios
remanescentes do período de abertura da atual avenida Rio Branco, o
Museu Nacional de Belas Artes (1908), o Teatro Municipal (1909), o edifício do
Centro Cultural da Justiça Federal (1906), a Biblioteca Nacional (1910) e o
palácio Pedro Ernesto - atual Câmara Municipal – (1923).
De acordo com Lima,esses prédios, símbolos de um novo tempo de
vida cultural e política do País, traziam espelhados em suas respectivas
arquiteturas, os princípios de ordem e de racionalidade das edificações
renascentistas.” (LIMA, 2000, p. 195).
Da mesma forma que no entorno do Paço, onde edifícios “modernos”,
constituídos por um número elevado de pavimentos e fachada em vidro,
foram implantados no contexto urbano histórico, no contexto urbano do
1
1
5
5
8
8
edifício da Justiça tal intervenção contemporânea também foi promovida
com a construção do edifício anexo ao próprio Centro Cultural e do edifício
Bokel. (Fig. 4.15)
Fig. 4.15 – Praça Marechal Floriano - Planta cadastral e mapa perspectivado, 1998.
Com relação à evolução desses espaços, com a inclusão de edifícios
“modernos”, Guimaraens declara que:
as praças do Centro do Rio são especialmente representativas
de várias temporalidades em movimento. E, pelo fato de
constituírem territórios em perene evolução, contêm em
algumas de suas molduras as marcas do sentido e da razão
modernizante. (GUIMARAENS, 2002, p. 209)
Na configuração urbanística, em que o contraste da linguagem
arquitetônica estabelece relação direta de edifícios ditos modernos com a
arquitetura eclética, o edifício da Justiça Federal tem posição destacada no
conjunto da Cinelândia.
Sendo originalmente um edifício de esquina, uma vez que a rua Pedro
Lessa, hoje apenas travessia de pedestres, encontrava-se aberta ao tráfego
1
1
5
5
9
9
de veículos, o C.C.J.F. possui as quatro fachadas destacadas dos edifícios
lindeiros. Porém, devido à construção de dois anexos, referentes à sede da
Justiça Federal e ao posto bancário, sendo o primeiro, constituído de um
edifício de 14 pavimentos e linguagem “moderna” que se localiza na
fachada oposta à fachada da rua Pedro Lessa, com acesso pela avenida
Rio Branco, e tendo o segundo sido construído na esquina da rua Pedro
Lessa com a rua México e que tem dois pavimentos, as fachadas do C.C.J.F.
estão mais contidas que as do Paço.
Além desses edifícios, que são barreiras visuais, devemos ressaltar que
todo o lote do C.C.J.F. se encontra cercado por muretas e grades em ferro.
Assim, apenas as duas fachadas do edifício, voltadas para a rua Pedro
Lessa e para a avenida Rio Branco, permitem a percepção da arquitetura
do edifício.
O acesso principal localiza-se na fachada voltada para a avenida Rio
Branco. O edifício, construído na testada do lote, possui a entrada localizada
no eixo da fachada frontal, o que poderia ser caracterizada segundo Ching,
pois mantém “a continuidade da superfície da parede”, que é visualmente
reforçada por, “articular a abertura com ornamentação”. (CHING, 2005, p.
239) (Fig. 4.16)
Fig. 4.16 – Fachada principal, voltada para a avenida Rio Branco, 2006.
1
1
6
6
0
0
Na fachada lateral, voltada para a rua Pedro Lessa, localiza-se o outro
acesso, onde, com a implantação de uma rampa, possibilita-se a entrada
de portadores de necessidades especiais ao edifício; o acesso a essa rampa
é realizado pela avenida Rio Branco, onde existe um pórtico para acesso ao
estacionamento de veículos. (Fig. 4.17).
Fig. 4.17 – CCJFPortada localizada na avenida Rio Branco, 2006.
Com base nos aspectos e fatores relativos à percepção do edifício
aqui apresentados, podemos concluir que o edifício do Paço, por se
apresentar “livre” no terreno, estabelece maior atração com as pessoas que
o edifício do Centro Cultural da Justiça Federal.
Repertório tipológico
Segundo Montaner (1991) “o repertório de tipologias para o tema
museu é enorme” e dentre as tipologias que este autor analisa, ou seja, a dos
edifícios reabilitados, podemos encontrar relações com o Paço Imperial e o
Centro Cultural da Justiça Federal.
Montaner se refere a edifícios originalmente projetados para um
determinado uso - público, industrial, estações, galpões, vilas e palácios -
que foram convertidos em museus, afirmando que as características formais,
1
1
6
6
1
1
as restrições de área e a rigidez de compartimentação e percursos em
edifícios históricos podem dificultar a adequação destes ao programa
museográfico.
O edifício do Paço Imperial se apresenta como um Palácio Colonial,
pois é constituído por precedente tipológico residencial, em termos
funcionais, uma vez que ao longo dos anos serviu de residência para
governadores e Vice-Reis.
O edifício se relaciona ao padrão compositivo dos palácios e solares
portugueses, adotado no Brasil para as residências de maior importância, na
hierarquia social. Em outras tipologias, os lotes apresentavam a configuração
retangular, com frentes estreitas e grandes profundidades. Devido à
proporção do lote, a configuração espacial apresenta salas retangulares,
estreitas e compridas, com a presença de pelo menos um pátio interno, ao
redor do qual se desenvolvem os espaços. O volume arquitetônico
apresenta horizontalidade predominante, caracterizando-se por ser grande,
pesado, assentado no chão, com ângulos retos bem marcados.
Conforme afirmado antes, no caso do Paço Imperial, em virtude da
ocupação que lhe caracterizou tanto externa quanto internamente, e por
falta de documentação que descrevesse o interior do edifício, o projeto de
restauração arquitetônica restabeleceu apenas os espaços que puderam
ser comprovados, no decorrer das obras, como “originais” do período
colonial, configurando-se como o de maior importância para a leitura do
espaço colonial, a restituição do pátio interno.
Os demais espaços foram definidos pela estrutura portante do edifício;
desse modo, as paredes em pedra, que representavam a estrutura do
edifício, foram mantidas; as demais, quando não interferíam na volumetria
do edifício, foram demolidas. Com isso, os espaços internos ficaram amplos,
favorecendo a utilização do edifício para uso cultural.
Com relação à reutilização do Paço para galeria de arte
contemporânea, o edifício “concilia a arquitetura histórica e uma boa
intervenção interna. Trata-se de um lugar que soube mesclar a conservação
1
1
6
6
2
2
do antigo às necessidades contemporâneas.” (Entrevista de J. M. Montaner,
Jornal do Brasil, 30.09.2001).
Da mesma forma que o edifício do Paço Imperial, o Centro Cultural da
Justiça Federal apresenta a concepção de palácio como repertório
tipológico. Entretanto, o estilo arquitetônico do C.C.J.F. é de tendência
historicista eclética.
Apesar da grande diversidade de possibilidades da arquitetura
eclética, referentes às opções estilísticas e às alternativas de uso de materiais
e técnicas construtivas, algumas características comuns dessa arquitetura
permitem compreender o estilo do C.C.J.F.
Como regra básica, há a simetria da edificação, tanto em planta
quanto na fachada, que reflete-se no exato rebatimento de algo em pelo
menos um plano. Assim definida (simetria) é a:
correspondência, em grandeza, forma e posição relativa, de
partes situadas em lados opostos de uma linha ou plano médio,
ou, ainda que se acham distribuídas em volta de um centro ou
eixo. (AURÉLIO, 1998, p.469)
Outra característica do ecletismo se refere à composição, isto é, à
composição de partes, aplicada nas fachadas e na distribuição dos espaços
internos, que devem conferir hierarquia, funcionalidade, conforto e luxo.
Com relação ao edifício da Justiça Federal, a composição interna se
desenvolve a partir da implantação da escada no centro do volume, o que
favorecia a melhor distribuição dos espaços relacionados à atividade
original e que estavam destinados a receber grande número de pessoas.
Esta formação espacial das plantas dos diferentes pavimentos foi
considerada pelo projeto de ocupação realizado por Glauco Campello
para o edifício. Desse modo, os espaços distribuídos ao redor da escadaria
principal, que originalmente pertenciam aos magistrados, foram
transformados em salas de exposição, cujo acesso se utiliza da circulação
gerada a partir da escada, o que é necessário para a visitação das
exposições.
Os espaços localizados ats da escadaria principal, na parte posterior
da edificação, originalmente relacionados à garagem, tribunal de justiça e
1
1
6
6
3
3
sala do ministro, no térreo, 1°, 2° e 3° pavimentos respectivamente, foram
ocupados pelo teatro, a própria Sala de Sessões, e biblioteca. Com esta
organização, os espaços localizados na parte posterior do edifício estão
separados da circulação das exposições.
Conseqüente das características anteriores, (simetria e composição), a
proporção concede o “ajuste geométrico das partes entre si e em relação
ao todo” (CZAJKOWSKI, 2000, p.11). Outra característica peculiar do
ecletismo é a chamada pela academia de “arquitetura falante”, ou seja, a
função a que se destina o edifício deve ser expressa através do estilo, do
aspecto externo.
Esta característica da arquitetura eclética pode ser constatada nos
elementos decorativos do edifício da Justiça Federal, onde, em auto-relevos,
vitrais, pinturas parietais e ornatos em argamassa estão representados os
temas relacionados à Justiça.
Sendo assim, a definição para adequação de uso do edifício para
centro cultural da Justiça Federal foi a mais coerente, uma vez que esses
elementos da “arquitetura falante” do edifício expõem, de maneira explícita,
a função.
A presença de ornamentação objetiva prover a arquitetura com o
conforto e a decoração condizentes co2.5( e )-1-10.6io4.9(ortcie e )-1- e si7.4(o)-qu a q.2(íci.6(do)-17.5( ]TJT*-179404 TDi)-10)1.ã J[(A cio). N.1(r)0.63rne 9jaoanqstã J[6.5(e1)-10.12qaã o.ã .mais Joi a 6(o d)9 ciojaos
1
1
6
6
4
4
Ordenação espacial e relação forma-discurso
Montaner considera que “uma das mais importantes condições que se
exigem de um complexo cultural ou um museu seja a clareza de sua
ordenação espacial”, atribuída à distribuição formal da planta, facilitando a
percepção total do edifício. (MONTANER, 1991, p. 03). Assim, para Montaner,
a boa ordenação é “a relação entre a forma arquitetônica e o discurso
interno”. Neste sentido, a adequabilidade da intervenção realizada no
edifício, no que diz respeito ao novo uso, deveria observar esta integração
formal e simbólica.
Outra questão apontada por Montaner se refere ao público que visita
museus, constituído, na grande maioria, por pessoas em viagem. “Portanto,
esse público totalmente heterogêneo e que visita um local desconhecido
precisa, por razões de segurança e compreensão, orientar-se facilmente
dentro dele.” (MONTANER, 1999, p. 35)
Nos projetos de reutilização de edifícios históricos para finalidade
museal, Montaner afirma que o objetivo é “realizar uma total reestruturação
e ordenação das circulações para ganhar clareza e racionalidade aos
percursos.” (MONTANER, 1999, p.35)
Nesta perspectiva, o edifício do Paço Imperial, apesar de
adequadamente adaptado para desenvolver as atividades relacionadas a
um centro cultural, não possui, pelo arranjo espacial da planta, a clareza
espacial sublinhada por Montaner, que permitiria ao visitante ter sempre
“noção de sua situação em relação ao percurso global da exposição.”
(MONTANER, 1999, p.35)
Para analisar o percurso expositivo do Paço Imperial, consideramos o
primeiro pavimento, pois este contém a maior superfície e quantidade de
salas de exposição. (Fig. 4.18)
Essas salas de exposição se apresentam em salas enfileiradas e
interligadas, o que pode configurar um percurso linear. Caso utilizada a
concepção de Montaner, a visualização deste percurso não seria clara, pois
1
1
6
6
5
5
o visitante não consegue perceber a totalidade do espaço do edifício, ou
da exposição.
Apesar de o edifício possuir dois pátios internos, que proporcionariam
melhor visualização do conjunto, as salas de exposição não apresentam
aberturas voltadas para os mesmos; logo, a função destes pátios se restringe
à distribuição dos visitantes pelo edifício, em especial o pátio de maior
dimensão.
Legenda:
- possibilidades de percurso
- acessos verticais (escadas e elevador)
Fig. 4.18 – Paço Imperial - planta 1º Pavto. - indicação do percurso expositivo.
Ao contrário do Paço Imperial, onde a percepção da totalidade
espacial do percurso museográfico não ocorre, no edifício da Justiça
Federal o visitante encontra uma fácil orientação dentro do edifício, pois a
conformação do eixo vertical único do C.C.J.F. facilita a apreensão da
espacialidade.
Utilizamos o segundo pavimento para a análise do percurso expositivo
do edifício, porque este apresenta o maior número dentro do mesmo
pavimento. (Fig. 4.19)
1
1
6
6
6
6
A configuração formal da planta mostra que a escadaria central ao
corpo do edifício, exerce duas funções claras, a distribuição dos visitantes e
a orientação dos mesmos em relação ao percurso expositivo e ao edifício.
Além disso, proporciona a visibilidade, tanto horizontal quanto verticalmente,
uma vez que as salas de exposição se abrem para este “vazio”, que
estabelece a função de grande hall, o que não acontece no pátio do Paço
Imperial.
As exposições podem ser configuradas de pequeno porte, ocupando
apenas as salas de exposições de um andar; assim, cada pavimento pode
apresentar u5-21idpoe sa5.6(i)1.4(rt oc9.1(épan)4.6(e,)]0.7(dpo u)ma ú)3.9(tic9.1(éaexpo))16.62ibão
1
1
6
6
7
7
Outro aspecto relativo à circulação dos edifícios em estudo refere-se à
questão da circulação de serviço, que, para o melhor desenvolvimento das
atividades, deve ser separada da circulação de visitantes.
O que podemos observar é que, no edifício do Paço imperial, tal
separação de circulação não acontece. O edifício não apresenta uma
circulação para os funcionários de limpeza, manutenção e administração
independente daquelas destinadas aos visitantes.
Em contrapartida, no edifício do C.C.J.F. as circulaçõeso separadas,
mas, de uma forma bem sutil. A circulação de visitantes acontece,
principalmente pela escadaria principal, localizada no centro do edifício,
além da possibilidade de utilização dos elevadores. A circulação dos
funcionários ocorre por meio de escada independente, localizada atrás dos
elevadores.
1
1
6
6
8
8
Materialidade de fundo
Conforme antes observado, a materialidade de fundo é constituída
pelo piso, tetos e paredes do interior de um museu. Além disso, verificou-se
que, no Paço Imperial e no Centro Cultural da Justiça Federal, o edifício e o
espaço arquitetônico são considerados como “obra exposta”.
No caso do espaço expositivo do edifício do Paço Imperial este se
apresenta neutro com as paredes de todas as salas de exposição pintadas
na cor branca. As galerias localizadas no pavimento térreo possuem piso de
pedra e teto em barrotes de madeira, e as localizadas no primeiro e
segundo pavimentos, possuem piso e teto em madeira aparente. (Fig. 4.20).
Fig. 4.20 – Paço Imperial - Sala de exposição 2º Pavto.
O caráter contemporâneo das obras expostas no Paço Imperial -
esculturas, pinturas e gravuras, entre outras - constituídas de materiais
diversos, estabelecem uma relação algumas vezes harmônicas e outras de
extremo contraste com o espaço arquitetônico do edifício.
O volume arquitetônico do edifício e em especial os elementos –
arcos, pátios e fachadas – se constituem por si próprios, fortes atrativos para
os visitantes.
O fato de o Paço ser um representante da arquitetura colonial, onde
podemos ressaltar a simplicidade das formas como característica principal,
além de apresentar as paredes externas caiadas e painéis-tapadeiras em
pintura branca, facilitou a adequação dos espaços internos do edifício às
1
1
6
6
9
9
exposições, contudo, essas tapadeiras tiraram a visibilidade da arquitetura
do edifício.
Com isto, o ambiente alcança o difícil equilíbrio, mencionado por
Montaner, que “não tira(r) da arquitetura atrativo e caráter, mas também
não renuncia(r) à adequada apresentação da obra.” (MONTANER, 1999, p.
40)
Considerando que o Centro Cultural da Justiça Federal é um exemplar
da arquitetura eclética, devemos ressaltar que o edifício possui uma grande
quantidade e variedade de ornamentação: auto-relevos, vitrais, pinturas
decorativas, entre outras, definindo-se, também, como o próprio objeto em
exposição. Desse modo, por constituir-se, por natureza, um monumento
arquitetônico, a integração do edifício com a exposição se torna uma tarefa
difícil, porém necessária. (Fig. 4.21)
Fig. 4.21 – C.C.J.F. - Sala de exposição 2º pavto e 3º pavto respectivamente.
Dentro dessa perspectiva, no caso do edifício da Justiça Federal,
poderia haver um empobrecimento do discurso expositivo devido ao
continente arquitetônico, pois, para Montaner, “as melhores soluções seriam
(...) aquelas que outorgam caráter ao ambiente arquitetônico sem interferir
na apreciação da obra.” (MONTANER, 1999, p. 38).
No entanto, durante as obras de restauração arquitetônica do
C.C.J.F., os forros existentes se apresentavam muito degradados, tornando
praticamente impossível a recuperação. Portanto, esses elementos foram
substituídos por forros em gesso, com um desenho mais simples,
1
1
7
7
0
0
permanecendo apenas as sancas no contorno dos tetos, o que configurou o
caráter “despojado” desses espaços.
Somado a este fato, as pinturas decorativas das salas de exposição,
descobertas através das janelas de prospecção, não foram restauradas. Em
virtude de problemas financeiros, optou-se, então, pela pintura em um tom
neutro e uniforme das paredes.
O piso dessas salas de exposição se apresenta em madeira, além do
piso das salas de exposição localizadas no térreo, que são de granito.
Assim, com o tratamento dado a esses elementos, cuja substituição ou
restauração era premente, concedeu-se aos espaços expositivos a
neutralidade necessária para a adequada museografia das exposições do
C.C.J.F.
Iluminação
A iluminação natural na reutilização dos edifícios históricos é quase
sempre proveniente das janelas que, em número excessivo, resultam num
inconveniente para o programa museu. Portanto, na maioria das vezes opta-
se pelo fechamento desses vãos e adota-se a iluminação artificial.
Esta postura de fechamento dos vãos pode ser percebida no Paço e
no Centro Cultural da Justiça Federal; porém, este fechamento ocorre de
formas distintas.
O edifício do Paço Imperial possui um número elevado de sacadas
com aberturas, que, a princípio, proporcionariam uma grande incidência de
iluminação natural. Esta, porém, comprometeria a função desse espaço
expositivo, pois, segundo especialistas na área, os raios ultravioletas
danificam as obras de arte, além de interferir na percepção do objeto
exposto. Para evitar esta situação, no Paço são utilizados painéis de madeira
pintados de branco para o fechamento dos vãos dessas sacadas. (Fig. 4.22-
4.23)
1
1
7
7
1
1
Fig. 4.22 – Paço Imperial - Fachada lateral
– Número excessivo de janelas para a
realização de exposições, 2006.
Fig. 4.23 – Paço Imperial -
Tapadeiras utilizadas para o fechamento
dos vãos das esquadrias, 2000.
No edifício da Justiça Federal, que possui um número menor de
aberturas para o exterior nas salas de exposição, para atender as
necessidades de iluminação adequada, foi adotado o simples fechamento
das janelas existentes que possuem folhas maciças internas em madeira.
Assim, os visitantes podem “ver” todas as esquadrias, o que não ocorre no
Paço Imperial. (Fig. 4.24)
Fig. 4.24 – C.C.J.F. - salas de exposição. Detalhe da janela fechada e da luminária, 2002.
Outra fonte de iluminação natural das salas de exposição, de uma
forma indireta é a clarabóia existente sobre a escadaria principal. O fato de
as salas abrirem para o hall desta escada, permite uma pequena incidência
de luz natural, sem grandes interferências para o espaço museográfico. (Fig.
4.25)
1
1
7
7
2
2
Fig. 4.25 – C.C.J.F. – clarabóia sobre a escadaria principal, 2006.
A iluminação artificial das salas de exposição dos edifícios em estudo é
realizada por lâmpadas halógenas e dicróicas em spots. No Paço os
artefatos estão colocados em trilhos eletrificados e, na Justiça Federal, há
apenas spots com braços metálicos fixados diretamente no teto. Assim,
adapta-se melhor a iluminação aos diversos tipos de trabalhos expostos.
Sendo pontual e dirigida, segundo Montaner, esse tipo de iluminação
“enfatiza contrastes dinâmicos entre sombras e pontos intensamente
iluminados”, além de “evitar a monotonia espacial e o cansaço dos
visitantes.” (MONTANER, 1999, p. 38)
Nos demais ambientes dos edifícios em estudo, a iluminação ocorre
com a utilização de luminárias com lâmpadas fluorescentes, instaladas após
a restauração do prédio.
A seguir apresentamos, conforme o diagrama do Clark e Pause, o
diagrama referente à existência de aberturas nas salas de exposição do
Paço e do C.C.J.F, onde confirmamos a grande incidência de luz natural,
caso não fossem utilizados painéis-tapadeiras contínuos ou simplesmente,
mantendo-se os vãos fechados.
CONCLUSÃO
Verificar a compatibilização da preservação da identidade
arquitetônica dos edifícios históricos com a complexidade
programática dos centros culturais é o objetivo principal desta pesquisa.
Portanto, com base nos elementos apresentados, cabe fazer algumas
considerações, no sentido de concluir a dissertação.
Quanto à questão da utilização do patrimônio, observa-se
inicialmente que, apesar das divergentes opiniões dos teóricos da área
da restauração, esta permanece como um fator essencial para a
preservação física do edifício; porém, esta não deve ser um uso
qualquer, uma vez que, um uso “inadequado” pode ocasionar a
degradação do edifício, e desagregar valores. Desse modo, pode-se
aqui afirmar que a forma de dar uso aos bens preservados sem lhes
retirar o significado, ou valor, se consolida como a grande questão da
restauração do patrimônio histórico edificado.
Com a utilização dos conceitos e dos elementos que identificam
os fatores referentes ao desenvolvimento das atividades museográficas
e de ferramentas que auxiliam a análise formal arquitetônica,
apresentados no segundo capítulo, foi possível identificar e analisar a
relação entre a forma e a função dos edifícios estudados.
Por outro lado, outra consideração objetiva que aqui se faz, se
refere à prévia definição da função a ser destinada para o edifício,
favorecendo a inclusão das novas atividades, uma vez que os
problemas de adequação podem ser identificados e solucionados na
fase projetual, diminuindo outras intervenções.
No caso do edifício da Justiça Federal, cuja função foi
previamente definida como centro cultural, com o tema da Justiça, a
restauração favoreceu a adaptação dos espaços referentes ao novo
programa. Muitos problemas foram resolvidos na fase projetual, dentre
1
1
7
7
5
5
os quais podemos citar o referente à decisão de utilizar a área no
subsolo para a instalação e localização dos equipamentos de ar
condicionado, dos camarins e do espaço cênico.
No entanto, no que diz respeito ao uso destas áreas e do teatro
demonstrase claramente nossa opinião, pois o teatro se encontra
localizado embaixo da Sala de Sessões, um espaço com muitos
ornamentos e pinturas originais. Assim, não houve a possibilidade de se
projetar uma “boca de cena” adequada, ou seja, com a altura
necessária para a realização das atividades. A solução encontrada foi
a utilização do subsolo para suprir tal necessidade, oferecendo um
espaço localizado sob o palco para as peças teatrais. Ainda sobre o
teatro, observa-se que o subsolo serve de ligação entre o palco e a
cabine de som, o que favorece a funcionalidade deste.
Em contrapartida, a restauração do edifício do Paço Imperial,
onde não havia uma função pré-estabelecida, teve como objetivo
inicial apenas a restituição física do edifício, o que agregou valor
estético ao monumento.
Devido a este fato, para a implantação do novo programa,
foram realizadas algumas adaptações em conformidade aos limites
históricos do edifício, o que ocasionou alguns problemas para o pleno
desenvolvimento das atividades. Um deles se refere à questão da
circulação “mista”, onde funcionários e visitantes utilizariam o mesmo
percurso onde seriam desenvolvidas as atividades de serviços e
visitação.
Outro problema diz respeito à falta de depósitos adequados para
a guarda do material museográfico, entre estes se encontram,
principalmente, as divisórias e painéis utilizados para a organização das
salas, que, às vezes ficam armazenados na circulação do edifício.
Tais problemas poderiam ter sido melhor resolvidos durante as
obras de restauração, caso já fosse conhecido o uso a que se destinaria
o edifício; nota-se porém, que estes problemas não interferem no
desenvolvimento das atividades.
1
1
7
7
6
6
Apesar da complexidade programática dos centros de arte
contemporânea, devido à variedade das atividades, esta
diversificação faz com que o programa museal se torne dinâmico e
flexível. Portanto, em relação à compatibilização e à permanência das
identidades dos edifícios históricos com a mudança da função para
centros de arte contemporânea, no que diz respeito aos casos aqui
apresentados, podemos reafirmar que as novas atividades não
ressaltaram os valores atribuídos a estes, do ponto de vista histórico e
estético, como lhes atribuíram o valor de contemporaneidade.
Devemos ressaltar que tal resultado satisfatório foi obtido devido
às características essenciais da arquitetura dos edifícios estudados e
que, de certa forma, o novo programa valorizou muito mais essa
arquitetura do que as funções que os ocuparam por tantos anos e que
lhes desfiguraram em muitos aspectos.
Em relação ao Paço, a tipologia arquitetônica “palácio colonial”,
cujas características são definidas pela simplicidade das formas e
espaços, favoreceu a implantação das atividades do centro cultural.
Outro fator favorável à adequada intervenção se refere à postura
adotada para a clara identificação das inclusões contemporâneas,
que se apresentam expostas nos ambientes. Assim, o contraste
estabelecido entre o antigo e o contemporâneo ressaltou as
características estéticas e históricas do edifício. A revitalização do
entorno também foi essencial para a consolidação do programa, uma
vez que ampliou as possibilidades de percepção e acesso dos visitantes
ao edifício.
No caso do Centro Cultural da Justiça Federal, considera-se aqui
acertada a definição do uso do edifício relacionado à Justiça. A
função simbólica dos elementos representantes do ecletismo, presentes
no edifício, representa uma “arquitetura falante” e torna o tema
facilmente percebido pelos visitantes.
A prévia definição do uso do C.C.J.F., conforme já foi dito,
possibilitou adequada adaptação à nova função, pois durante as obras
1
1
7
7
7
7
de restauração, ao mesmo tempo em que eram feitas as
reconstituições para recuperar a integridade física dos elementos e dos
adornos existentes, houve a implantação de toda a infra-estrutura
necessária para o desenvolvimento das atividades do centro cultural.
Destacam-se entre essas complementações, a substituição de toda
rede elétrica e a instalação dos equipamentos e dutos de ar
condicionado.
A leitura das inserções contemporâneas também foi bem definida
devido à utilização de materiais metálicos, estabelecendo, da mesma
forma que no Paço, o contraste entre o antigo e o contemporâneo.
Com base nesses fatos, podemos concluir que, com ou sem a
prévia definição do uso, e independente do estilo arquitetônico, a
adaptação ao programa de centro de arte contemporânea se
apresenta de uma forma adequada e completamente viável, cabendo
aos arquitetos, além da criatividade, o bom senso na elaboração das
propostas de mudanças de uso em edifícios históricos.
BIBLIOGRAFIA
A seguir apresenta-se as fontes bibliográficas utilizadas na pesquisa,
abrangendo os principais campos e respectivos assuntos e aspectos que
1
1
7
7
9
9
CARRAZONI, Maria Elisa (coord.). Guia dos bens tombados. 2 ed. Rio de
Janeiro: Expressão e cultura, 1987.
CARVALHO, Antônio F. de B.; CARLINI, Amaltéa M.; CRUZ, José M. D.; CRUZ,
Maria Cecília D. O Rio de Janeiro do Bota-abaixo. Rio de Janeiro: Sextante,
1997.
CAVALCANTI, Lauro. Paço Imperial. Rio de Janeiro: GMT Editores Ltda., 1999.
CAVALCANTI, Lauro (org.). Quando o Brasil era moderno – guia de
arquitetura 1928-1960. Rio de Janeiro: Aeroplano, 2001.
CERVER, Francisco Asensio. The world of contemporary architecture. New
York: Könemann, 2005.
CHIAVARI, Maria Pace. Rio de Janeiro: preservação e modernidade. Rio de
Janeiro: Sextante, 1998.
CHING, Francis D. K. Arquitetura: forma, espaço e ordem. Tradução Alvamar
Helena Lamparelli. São Paulo: Martins Fontes, 1998.
CHOAY, Françoise. A Alegoria do Patrimônio. trad. Luciano Vieira Machado.
São Paulo: UNESP, 2001.
CLARK, Roger H. & PAUSE, Michael . Arquitectura: temas de composición. 2
ed. México: Gustavo Gili, 1997.
COARACY, Vivaldo. Memórias da Cidade do Rio de Janeiro. 3.ed. São Paulo:
Editora da Universidade de São Paulo, 1988.
COHEN, Alberto A. Rio de Janeiro Ontem e Hoje. Rio de Janeiro: Editora
Sergio Abram Fridman, 1999.
COLQUHOUN, Alan. Modernidade e tradição clássica – ensaios sobre
arquitetura 1980-87. Rio de Janeiro: Cosac & Naify.
COSTA, Lucio. Documentos de trabalho. Org. José Pessoa. 2 ed. Rio de
Janeiro: IPHAN, 2004.
_________. Considerações sobre arte contemporânea (1940). In: COSTA, Lúcio,
Registro de uma vivência. São Paulo: Empresa das artes, 2005.
COUTINHO, Evaldo. O espaço da arquitetura. 2 ed. São Paulo: Perspectiva,
1998.
1
1
8
8
0
0
CURY, Isabelle (org.). Cartas Patrimoniais. 3 ed. ver. Aum. Rio de Janeiro:
IPHAN, 2004.
CZAJKOWSKI, Jorge (org.). Guia da arquitetura colonial, neoclássica e
romântica no Rio de Janeiro. Rio de Janeiro: Casa da Palavra: Prefeitura da
cidade do Rio de Janeiro, 2000.
FERREZ, Gilberto. O Paço da Cidade do Rio de Janeiro. Rio de Janeiro:
Fundação Nacional Pró-Memória, 1985.
FONSECA, Maria Cecília Londres. O patrimônio em processo: trajetória da
política federal de preservação no Brasil. 2 ed. – ver. ampl. Rio de Janeiro:
UFRJ; MinC – Iphan, 2005.
GIOVANNONI, Gustavo. Velha cidade e edilícia nova. Tradução Elizabete
Rodrigues de C. Martins. Rio de Janeiro, 2006.
GUIMARAENS, Ceça. Paradoxos Entrelaçados – As torres para o futuro e a
tradição Nacional. 1.ed. Rio de Janeiro: Editora UFRJ, 2002.
_________; IWATA, Nara; POLLY, Vânia; KESSEL, Carlos (org.). Museografia e
arquitetura de museus. Rio de Janeiro: PROARQ-FAU/UFRJ, 2005.
GUTIÉRREZ, Ramón. Arquitetura latino-americana. SãoPaulo: Nobel, 1989.
HOLANDA, Aurélio Buarque. Mini dicionário Aurélio. Rio de Janeiro: Nova
Fronteiro, 1989, 2 ed.
JEUDY, Henri-Pierri. Espelho das cidades. Rio de Janeiro: Casa da palavra,
2005.
JOKILETHO, Jukka. A history of arqchitectural conservation. 1ed. Oxford:
Butterworth Heinemann, 1999.
KÜHL, Beatriz M. Arquitetura do ferro e arquitetura ferroviária em São Paulo:
Reflexões sobre a sua preservação. São Paulo: Ateliê Editorial. FAPESP. SEC.
Da Cultura, 1998.
LE GOFF, Jacques. História e Memória. Tradução Bernardo Leitão. 2ed.
Campinas, SP: Editora da UNICAMP, 1992.
LIMA, Evelyn F. W. Arquitetura do Espetáculo: teatros e cinemas na formação
da praça Tiradentes e da Cinelândia. Rio de janeiro: Editora UFRJ, 2000.
1
1
8
8
1
1
_________. Espaço e cidade : conceitos e leituras/ organização Evelyn
Furquim Werneck Lima, Miria Roseira Maleque. Rio de janeiro: 7 letras, 2004. (
Cidade, arquitetura e saber; v.1).
_________. Cultura Patrimônio e habitação: possibilidades e modelos/
organização Evelyn Furquim Werneck Lima, Miria Roseira Maleque. Rio de
janeiro: 7 letras, 2004. ( Cidade, arquitetura e saber; v.2).
MILLET, Vera. A teimosia das pedras: um estudo sobre a preservação do
Patrimônio Ambiental no Brasil. Olinda: Prefeitura de Olinda, 1988.
MONTANER, Josep Maria. As formas do século XX. Tradução Maria Luiza
Tristão de Araújo. Barcelona: Ed. Gustavo Gili, 2002.
NETTO, J. Teixeira Coelho. A construção do sentido na arquitetura. São Paulo:
Perspectiva, 2002.
NISKIER, Julio; MACINTYRE, A.J. Instalações elétricas. 3 ed. Rio de Janeiro: LTC,
1996.
PESSOA, José (org.). Lucio Costa: Documentos de trabalho. 2 ed. Rio de
Janeiro: Iphan, 2004.
PINHEIRO, Augusto Ivan de Freitas. O Paço e a cidade. In: CAVALCANTI,
Lauro. Paço Imperial. Rio de Janeiro: GMT Editores Ltda., 1999.
PREFEITURA DA CIDADE DO RIO DE JANEIRO. Guia da arquitetura colonial,
neoclássica e romântica no Rio de Janeiro. Rio de Janeiro: Casa da Palavra,
2000.
REIS FILHO, Nestor Goulart. Quadro da arquitetura no Brasil. 10 ed. São Paulo:
Perspectiva, 2004.
RIEGL, Alois. El culto moderno a los monumentos. 2ed. Madri: visror Dis., 1999.
SANTOS, Paulo F. Quatro séculos de arquitetura. Barra do Piraí, 1977.
SCHWAITZER; BONILHA, Kátia; LIMA, Luciana Pereira; COELHO, João.
Arquitetura do Palácio. Rio de Janeiro: CCJF, 2003.
TELLES, Augusto C. Silva. Guia dos bens tombados: cidade do Rio de janeiro.
Rio de Janeiro: Expressão e cultura, 2001.
1
1
8
8
2
2
VIOLLET-LE-DUC, Eugène Emmanuel. Restauração, São Paulo, Atelier Editorial,
2000.
ZEVI, Bruno. Saber ver a Arquitetura. trad. Maria Isabel Gaspar/Gaëtan
martins de Oliveira. 5.ed., São Paulo: Martins Fontes, 1996.
WÖLFFLIN. H. Conceitos Fundamentais da História da Arte. São Paulo: Martins
Fontes, 1989.
Artigos e comunicações
ALCANTARA, Dora. Praça XV e imediações: Estudo de uma área histórica no
Rio de Janeiro. In: Revista do Patrimônio Histórico e Artístico Nacional. Rio de
Janeiro, n. 20, 1984.
ANDRADE JUNIOR, Nivaldo Vieira de. Reciclagem de monumentos e
arquitetura de museus: a adaptação de edifícios históricos em espaços
museográficos. Comunicação apresentada no seminário internacional
museografia e arquitetura de museus. Rio de Janeiro, 2005.
BALABAN, Maria Delith. Os indicadores quantitativos da cultura. In: Um olhar
sobre a cultura brasileira. Rio de Janeiro: Associação de amigos da FUNARTE,
1998.
BARRANHA, Helena; TOSTÕES, Ana. Museus e centros de arte contemporânea
em edifícios históricos: alguns casos em Portugal. Comunicação
apresentada no seminário internacional museografia e arquitetura de
museus. Rio de Janeiro, 2005.
BLASI, Laura Di. Reabilitação de sítios históricos: as experiências das cidades
de Madri e Rio de Janeiro. In: Cultura, Patrimônio e Habitação: Possibilidades
e modelos. Rio de Janeiro: 7 letras, 2004.
BOGÉA, Marta Vieira. Deslocamentos acerca do cubo branco.
Comunicação apresentada no seminário internacional museografia e
arquitetura de museus. Rio de Janeiro, 2005.
BRANDÃO, Carlos Antônio Leite. Os modos do discurso da teoria da
arquitetura. In: Cadernos de arquitetura Ritter dos Reis. Critica na arquitetura.
Porto Alegre: Ritter dos Reis, v.3, 2001.
1
1
8
8
3
3
BRANCO, Maria do Socorro; COELHO, João. CCJF inaugura teatro. In: Revista
Atrium. Rio de Janeiro: CCJF, n. 02, 2001.
CALMON, Pedro. O Paço Imperial: História e ressurreição de um palácio. In:
Revista do Patrimônio Histórico e Artístico Nacional. Rio de Janeiro, n. 20,
1984.
CAMPELLO, Glauco. O A Restauração do Paço: revendo 240 anos de
transformações. In: Revista do Patrimônio Histórico e Artístico Nacional. Rio de
Janeiro, n. 20, 1984.
__________. Ações pelo patrimônio. In: Um olhar sobre a cultura brasileira. Rio
de Janeiro: Associação de amigos da FUNARTE, 1998.
CAMPOFIORITO, Ítalo. Muda o mundo do Patrimônio. In Revista do Brasil, Ano
2. n.4, 1985. Rio de Janeiro. Governo do Estado do Rio de Janeiro/ SESC,
Prefeitura da cidade do Rio de Janeiro.
CCJF. A avenida Central e a Cinelândia. In: Revista Atrium. Rio de Janeiro:
CCJF, n. 01, 2001.
CCJF. Adolfo Morales de Los Rios. In: Revista Atrium. Rio de Janeiro: CCJF, n.
01, 2001.
CCJF. Desembargador Alberto Nogueira. In: Revista Atrium. Rio de Janeiro:
CCJF, n. 01, 2001.
CCJF. História de uma restauração. In: Revista Atrium. Rio de Janeiro: CCJF, n.
01, 2001.
CHIAVARI, Maria Pace. Rio de Janeiro: preservação e modernidade. Rio de
Janeiro: Sextante, 1998.
D'ALMEIDA, Andréa Alvarenga; CABREIRA, Cristiane Vieira; SOUSA, Maria
Fernanda Pop; MAGALHÃES, Mário Luis Carneiro; ALMEIDA, Rafael Pessanha.
Paço Imperial – Análise qualitativa de uma exposição. Disponível em:
<http://www.arquimuseus.fau.ufrj.br/site/index.php?option=content&task=vie
w&id=91>. Acesso em 31 Abr. 2005, 9:25:00.
FERREIRA, Ricardo. O paço Imperial. In: Revista Módulo. Rio de Janeiro:
SPHAN/ Pró-Memória, n. 87, 1985, p. 50-55.
GALLO, Haroldo; MAGALHÃES, Fernanda. São Paulo: três experiências de
intervenção e preservação e um paradoxo. Comunicação apresentada no
1
1
8
8
4
4
seminário: La cultura arquitectonica hacia 1900: revalorizacion critica y
preservación patrimonial, realizada em Buenos Aires de 1 a 3 de Setembro de
1999.
GONZÁLEZ, Erika Marion Robrahn. Arqueologia em perspectiva: 150 anos de
prática e reflexão no estudo do nosso passado. In Revista USP.São Paulo:
1999/2000.
GUIMARAENS, Cêça. Os museus do sistema Iphan/ FNpM. Comunicação
apresentada no XI Encontro Nacional da ANPUR. Rio de Janeiro, 2004.
________;
CHOKYU, Margaret Lica; JORGE, A.L.M.; PEREIRA, Simone Guerra; POLLY,
Vânia
. A arquitetura de museus de arte moderna no Movimento Moderno.
Comunicação apresentada no I DOCOMOMO Norte Nordeste. Recife, 2006.
________ ; IWATA, Nara. Construindo a Cultura na Idéia de Centro. Disponível
em:http://www.arquimuseus.fau.ufrj.br/site/index.php?option=content&task=
view&id=127&Itemid=112. Acesso em 27 de Maio de 2006 às 17:50h.
________. 1985: o ano em que o Paço imperial renasceu. Disponível em:
<http://www.arquimuseus.fau.ufrj.br/site/index.php?option=content&task=vie
w&id=160. Acesso em 27 de Maio de 2006 às 13:50h.
HORTA, Gloria. Do CCJF para o mundo. Rio de Janeiro: CCJF, n. 07, 2001.
KIEFER, Flávio. Adaptação de edifícios históricos para museus: o caso do
Centro Cultural Cee Érico Veríssimo. Comunicação apresentada no
seminário internacional museografia e arquitetura de museus. Rio de Janeiro,
2005.
LIMA, Tânia Andrade; FONSECA, Marta Pereira R. da; SAMPAIO, Ana Cristina
de O.; FENZL-NEOPOMUCENO, Andréa; MARTINS, Antonio H. Damasio. A
Tralha doméstica em meados do Século XIX: Reflexos da emergência da
pequena burguesia do Rio de janeiro. Dédalo, São Paulo, pub. avulsa,1:205-
230, 1989.
LYRA, Cyro Corrêa. O novo Paço: uma obra para debates. Revista do
Patrimônio Histórico e Artístico Nacional. Rio de Janeiro, n. 20, 1984.
________. O Paço da Liberdade: Limitações à reciclagem de um monumento
eclético. In: Anais do XXIII Colóquio do comitê Brasileiro de história da arte.
Rio de Janeiro: CBHA/ UERJ/ UFRJ, 2004.
1
1
8
8
5
5
MAHFUZ, Edson da Cunha. Reflexões sobre a construção da forma pertinente.
In: Projetar: desafios e conquistas da pesquisa e do ensino de projeto,
Fernando Lara e Sônia Marques, org. Rio de Janeiro: EVC, 2003, p. 64-80.
MARIANI, Alayde. Paço Imperial: roteiro para visita histórica. 3.ed. Rio de
Janeiro: Po Imperial, 2000.
MEDEIROS, Benício. O Paço sai do limbo. In: Revista Isto é, 24 de Março de
1982
MONTANER, Josep Maria. Museu contemporâneo: lugar e discurso. Tradução
Anita Regina Di Marco. Projeto, nº 144, São Paulo, 1991, p.34-41.
NAJJAR, Rosana. Arqueologia crítica e arqueologia histórica: um diálogo
fértil. Trabalho originalmente apresentado de Pós-Graduação em
Arqueologia do MAE/USP, 1999.
________. Arqueólogos e comunidade: Parceiros ou rivais? In Revista de
arqueologia americana. n. 20, 2002.
PEREIRA, Simone Guerra. Paço Imperial: valores e transformações.
Comunicação apresentada no Seminário Internacional Museografia e
Arquitetura de Museus. Rio de Janeiro, 2005.
PINHEIRO, Augusto Ivan da Freitas. A Permanência do espaço: Intervenções
urbanísticas na Praça XV. In: Revista do Patrimônio Histórico e Artístico
Nacional. Rio de Janeiro, n. 20, 1984.
REIS, José de Souza. Estudos preliminares para a restauração do Paço. Revista
do Patrimônio Histórico e Artístico Nacional. Rio de Janeiro, n. 20, 1984.
RIBEIRO, Rosina Trevisan M.; BREGA, Cláudia; PRUDÊNCIO, Walmor José;
SOUZA, Mariana Vaz de; FONTES, Ana Maria Berutti. Metodologia aplicada
para restauro: A importância da pesquisa histórica aplicada à Igreja de São
Lourenço dos Índios e ao Palácio Araribóia/ Niterói/RJ. Comunicação
apresentada nos Anais do XI congresso da ABRACOR. Rio de Janeiro, 202.
SALEIRO FILHO, Mário de Oliveira. Metodologias de análise e entendimento
do espaço construído: o caso dos apartamentos com quartos de empregado
reversível. Trabalho desenvolvido para a disciplina "Seminários de Pesquisa 2"
ministrada pelos professores Gustavo Rocha Peixoto e Guilherme Lassance.
PROARQ:Rio de Janeiro, 2005.
SANTOS, Afonso Carlos Marques dos. O Paço da cidade. In: CAVALCANTI,
Lauro. Paço Imperial. Rio de Janeiro: GMT Editores Ltda., 1999.
1
1
8
8
6
6
SANTOS, Carlos Nelson F. dos. Preservar não é tombar, renovar não é pôr tudo
abaixo. In: ensaio & pesquisa, Revista Projeto. São Paulo, n. 86, 1986.
SCHWAITZER, Lenora de Beaurepaire. A proposta do Centro Cultural da
Justiça Federal. In: Revista Atrium. Rio de Janeiro: CCJF, n. 01, 2001.
SILVA, Vânia Polly da. Entre a teoria e a prática: as intervenções do IPHAN em
monumentos arquitetônicos e as diretrizes teóricas correspondentes. Estudo
de caso – Paço Imperial. Trabalho enviado ao ANPUH, 2005.
SILVA, Regina Pinheiro da; MORLEY, Edna; SILVA, Catarina ferreira da. A
pesquisa Arqueológica: Primeiras notas. In: Revista do Patrimônio Histórico e
Artístico Nacional. Rio de Janeiro, n. 20, 1984.
SPHAN. Conselho Consultivo da SPHAN aprova projeto de restauração do
Paço (RJ). In: Revista SPHAN. Rio de Janeiro, n.26, 1983.
SPHAN. Conselho Rio de Janeiro: um balanço das obras de restauração. In:
Revista SPHAN. Rio de Janeiro, n.27, 1983.
ZEIN, Ruth Verde. Duas décadas de arquitetura para museus. In: Revista
Projeto n. 144, São Paulo, 1991.
________. Museus em sete versões. In: Revista Projeto n. 144, São Paulo, 1991.
Leis e manuais
BRASIL, Decreto-Lei nº 25, de 30 de novembro de 1937. Organiza a Proteção
de Patrimônio Histórico e Artístico Nacional. Diário Oficial ( da República
Federativa do Brasil), Rio de Janeiro.
IPHAN. Manual do IPHAN – Roteiro para apresentação de projeto básico de
restauração do patrimônio edificado (versão revisada). Rio de Janeiro:
DEPROT/ Divisão de Apoio Técnico, 2000.
Rio de Janeiro. Lei Complementar nº 40, de 20 de julho de 1999.
Pastas do arquivo central do IPHAN
Pasta nº. 1658/ 1659/ 1660/ 1663/ 1664 (casa: Quinze de Novembro)
Pasta nº. 16961697 (casa: Rio Branco)
1
1
8
8
7
7
Dissertações e teses
CASTRO, Claudia G. da Silva; COUTINHO, Claudia Marinho; LEITE, Ana Luisa
Dias; MELLO, Vicente Henriques Botelho de; SANTOS, Ana Gomes de. Olhares
sobre a Praça VX e seus monumentos. Monografia apresentada no curso de
especialização em História da Arte e da Arquitetura no Brasil. PUC. Rio de
Janeiro, 1992.
FILHO, José de Novais Santos. De Palácio arquiepiscopal a centro cultural da
Justiça federal. Trabalho de conclusão de curso apresentado à UFF, como
requisito para obtenção do título de bacharel em Biblioteconomia e
documentação. Niterói, 2004.
GIBELLI, Alessandra. As teorias de Restauração e suas aplicabilidades.
Dissertação apresentada ao Programa de Pós Graduação em Arquitetura e
Urbanismo, Universidade Federal do Rio de Janeiro. Rio de Janeiro, 1999.
LYRA, Cyro Corrêa. Casa vazia, ruína anuncia: a questão do uso na
preservação de monumentos. Tese apresentada ao Programa de Pós
Graduação em Artes Visuais da Escola de Belas Artes, Universidade Federal
do Rio de Janeiro. Rio de Janeiro, 2005.
POLLY DA SILVA, V. A arquitetura de museus no centro do Rio de Janeiro.
Dissertação de Mestrado; orientadora: Cêça Guimaraens, PROARQ-FAU-
UFRJ, 2000.
RIBEIRO, Rosina Trevisan Martins. Avaliação Pós-Ocupação Aplicada ao
Patrimônio Cultural Edificado: recomendações de projeto de restauro. Tese
(Doutorado em Engenharia de Produção) - COPPE/ Universidade Federal do
Rio de Janeiro, 2000.
SOUZA, Mariana Vaz de. Sistematização para projetos de restauro no Brasil.
Estudo de caso- Hospital São Francisco de Assis. Dissertação apresentada ao
Programa de Pós Graduação em Arquitetura e Urbanismo, Universidade
Federal do Rio de Janeiro. Rio de Janeiro, 2004.
Jornais e folhetos
CCJF. Avenida Central: 1905-2005. Folheto da exposição: Avenida Central:
1905-2005. Rio de Janeiro: CCJF, 2005.
CCJF. Da Justiça à arte: os caminhos de um palácio. Folheto da exposição:
da Justiça à arte: os caminhos de um palácio. Rio de Janeiro: CCJF, 2003.
1
1
8
8
8
8
O Globo, Rio de Janeiro, 30/07/2006. O Rio de todos os estilos.
O Globo, Rio de Janeiro, 05/11/2005. Passos que mudaram o Rio.
O Globo, Rio de Janeiro, 03/07/2005. Formas vivas em pedra e bronze.
O Globo, Rio de Janeiro, 20/09/1985. Paço Imperial, vale a visita. Pela história
e pela cultura.
O Globo, Rio de Janeiro, 08/06/1985. Artes no Paço da cidade: o público
comparece e curte.
O Globo, Rio de Janeiro, 29/05/1985. Exposição e concerto abrem atividades
no Paço Imperial.
O Globo, Rio de Janeiro, 25/03/1985. Paço Imperial, nova opção de lazer no
Rio.
O Globo, Rio de Janeiro, 07/03/1985. Restaurado, Paço é agora um novo
centro de cultura.
O Globo, Rio de Janeiro, 06/03/1985. De volta à velha forma, o Paço reabre
suas portas.
O Globo, Rio de Janeiro, 20/02/1985. Sphan conclui restauração do prédio
do Paço Imperial.
O Globo, Rio de Janeiro, 30/07/1984. Sob as lajes do Paço, uma bateria de
fornos da antiga casa da moeda.
O Globo, Rio de Janeiro, 04/06/1984. Paço volta às origens e revela história.
O Globo, Rio de Janeiro, 19/04/1984. Pouco a pouco, o Paço da Cidade
retoma seu traço original.
O Globo, Rio de Janeiro, 31/07/1983. Formas originais e um centro cultural
para a Praça 15.
O Globo, Rio de Janeiro, 23/11/1982. Restauração do Paço começa com
demolição.
O Globo, Rio de Janeiro, 29/09/1982. Refazer o prédio original ou manter o
atual, a dúvida nas obras do Paço.
1
1
8
8
9
9
O Globo, Rio de Janeiro, 19/03/1982. Ludwing recebe hoje o Paço da
Cidade, que será reformado junto com a Praça 15.
O Globo, Rio de Janeiro, 05/03/1982. Cerimônia marca a devolução do Paço
da Cidade.
O Globo, Rio de Janeiro, 15/01/1982. Dois anos de trabalho e Cr$ 100 milhões
para recuperar um valioso prédio histórico.
Folha de São Paulo, São Paulo, 06/03/1985. O Rio recebe hoje o novo Paço
Imperial.
Livros Grátis
( http://www.livrosgratis.com.br )
Milhares de Livros para Download:
Baixar livros de Administração
Baixar livros de Agronomia
Baixar livros de Arquitetura
Baixar livros de Artes
Baixar livros de Astronomia
Baixar livros de Biologia Geral
Baixar livros de Ciência da Computação
Baixar livros de Ciência da Informação
Baixar livros de Ciência Política
Baixar livros de Ciências da Saúde
Baixar livros de Comunicação
Baixar livros do Conselho Nacional de Educação - CNE
Baixar livros de Defesa civil
Baixar livros de Direito
Baixar livros de Direitos humanos
Baixar livros de Economia
Baixar livros de Economia Doméstica
Baixar livros de Educação
Baixar livros de Educação - Trânsito
Baixar livros de Educação Física
Baixar livros de Engenharia Aeroespacial
Baixar livros de Farmácia
Baixar livros de Filosofia
Baixar livros de Física
Baixar livros de Geociências
Baixar livros de Geografia
Baixar livros de História
Baixar livros de Línguas
Baixar livros de Literatura
Baixar livros de Literatura de Cordel
Baixar livros de Literatura Infantil
Baixar livros de Matemática
Baixar livros de Medicina
Baixar livros de Medicina Veterinária
Baixar livros de Meio Ambiente
Baixar livros de Meteorologia
Baixar Monografias e TCC
Baixar livros Multidisciplinar
Baixar livros de Música
Baixar livros de Psicologia
Baixar livros de Química
Baixar livros de Saúde Coletiva
Baixar livros de Serviço Social
Baixar livros de Sociologia
Baixar livros de Teologia
Baixar livros de Trabalho
Baixar livros de Turismo