
9
Lista de Figuras
Figura 1.1 Santos Dumont e o 14-bis - Acesso em 10/11/2008, disponível em: pt.wikipedia.org/wiki/Santos-Dumont_14-bis
Figura 1.2 Automóvel de Benz - Acesso em 10/11/2008, disponível em: www.loc.gov/rr/scitech/mysteries/auto.html
Figura 1.3 Ford modelo T 1914 - Acesso em 10/11/2008, disponível em: thehenryford.org/exhibits/showroom/1908/model.t.html
Figura 1.4 ENIAC – Numerical Integrator and Computer 1946 - Acesso em 03/11/2008, disponível em: www.library.upenn.edu/exhibits/rbm/mauchly/jwmintro.html
Figura 1.5 Prof. John W. Mauchly - Acesso em 03/11/2008, disponível em: www.library.upenn.edu/exhibits/rbm/ma Figura 1.6
Figura 1.6 Insígnia da missão - Acesso em 10/11/2008, disponível em:history.nasa.gov/ap11ann/kippsphotos/apollo.html
Figura 1.7 Aldrin descendo do Módulo Lunar - Acesso em 10/11/2008, disponível em:history.nasa.gov/ap11ann/kippsphotos/apollo.html
Figura 2.1 Estação CATIA - Acesso em 10/11/2008, disponível em: design.osu.edu
Figura 2.2 Estação CALMA - Acesso em 10/11/2008, disponível em: design.osu.edu
Figura 2.3 Estação Computervision - Acesso em 10/11/2008, disponível em: design.osu.edu
Figura 2.4 Estação Apollo - Acesso em 10/11/2008, disponível em: design.osu.edu
Figura 2.5 Estação Computervision Cadds – Acesso em 03/11/2008, disponível em:
Figura 2.6 Estação de trabalho Interpro da Intergraph-Acesso em 03/11/2008,disponível em:design.osu.edu/carlson/history/images/small/ipro32c.jpg
Figura 2.7 IBM 370 Mainframe – anos 70-80 - Acesso em 10/11/2008, disponível em: www.computersciencelab.com
Figura 2.8 IBM PC – final dos anos 80 - Acesso em 10/11/2008, disponível em: www.computersciencelab.com
Figura 2.9 Macintosh 128 – Apple 1984 - Acesso em 8/12/2008, disponível em: http://lowendmac.com/compact/art/mac128k.jpg
Figura 3.1 Rogers Stirk Harbour Partners- Leadenhall Building 1º prêmio em BIM for Architecture category, Cityscape/British Land. AEC Web Magazine Julho 2007
Figura 3.2 BIM – Projeto Colaborativo
Figura 3.3 AutoCAD 2008 – Projeto 2D
Figura 3.4 AutoCAD 2008 – Projeto 3D
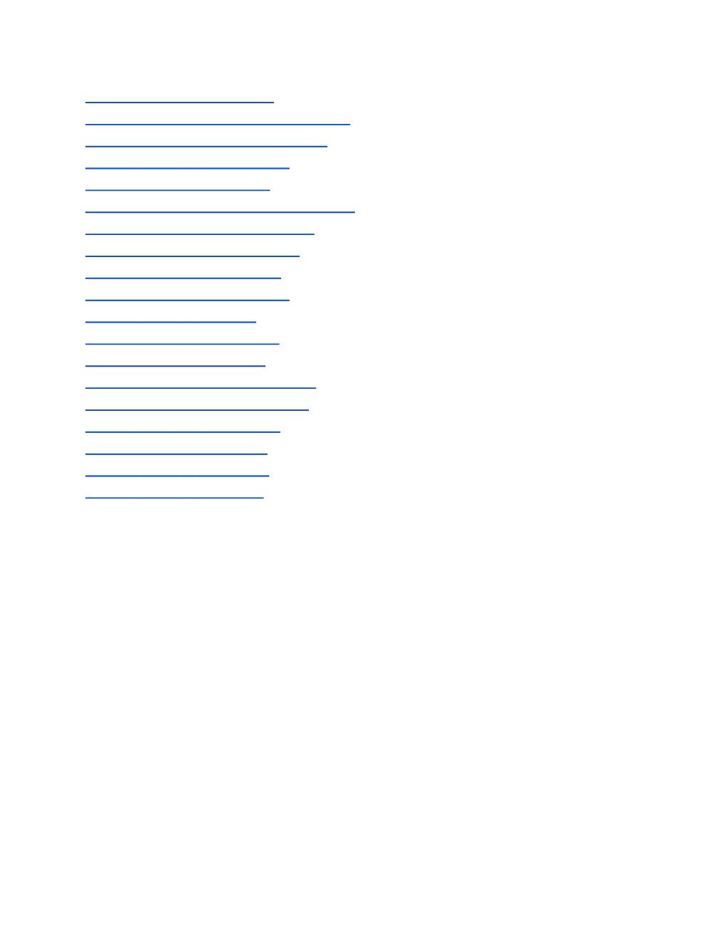
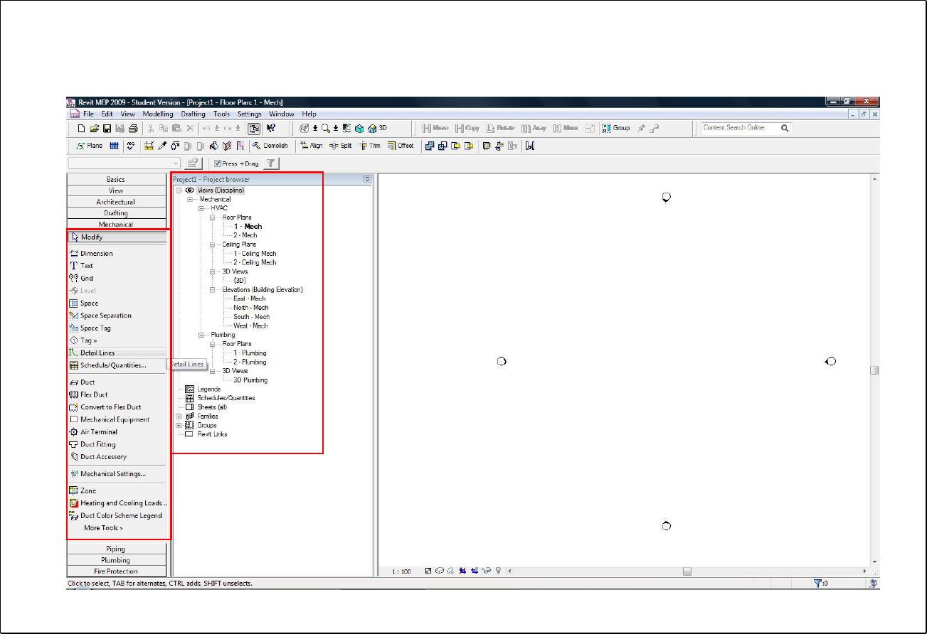
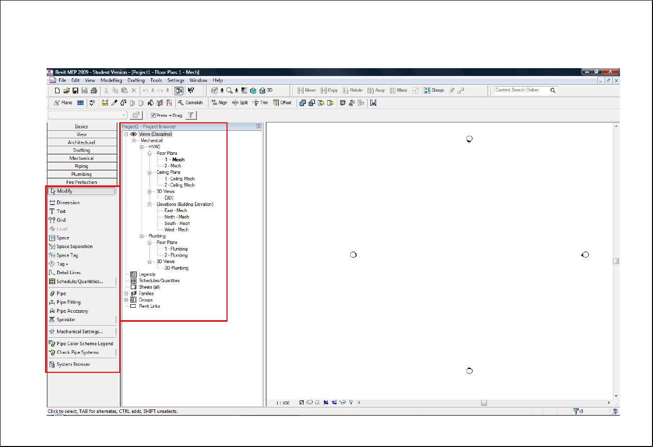
Figura 3.5 Revit Architecture 2009
Figura 3.6 Revit Architecture 2009 - Famílias
Figura 3.7 Revit Architecture 2009 – Projeto Arquitetônico
Figura 3.8 Revit Architecture 2009 - Documentação
Figura 3.9 Material Desetec - Acesso em 1/12/2008, disponível em http://www.trident.com.br/index.html
Figura 3.10 Estação de trabalho HP Acesso em 2/12/2008, disponível em: http://www.hp.com/latam/br/pyme/productos/desktops_workstations/autodesk.html
Figura 3.11 Plotter HP - Acesso em 2/12/2008, disponível em: http://www.hp.com/latam/catalogo/img/c00743850.jpg
Figura 3.12 Edifício Vitality comercializado pela Lopes.Acesso em 2/12/2008, disponível em; http://www.lopes.com.br Ed. Vitality
Figura 3.13 Realidade virtual. Acesso em 2/12/2008, disponível em:http://www.barco.com/VirtualReality/en/stereoscopic/passive.asp
Figura 3.14 Metrô Vila Sônia, ensaios de estanqueidade da caixilharia. Acesso em 3/12/2008, disponível em:http://www.arcoweb.com.br/tecnologia/tecnologia84.asp
Figura 3.15 Modelo de canteiro de obras feito no SketchUp Google armazém 3D.
Figura 3.16 Acesso em 3/12/2008, disponível em:HTTP://www.veja.abril.com.br
Figura 3.17 Nova geração de pré-fabricados. Acesso em 3/12/2008, disponível em:http://www.arcoweb.com.br/tecnologia/tecnologia11.asp
Figura 3.18 Nova geração de pré-fabricados. Acesso em 3/12/2008, disponível em:http://www.arcoweb.com.br/tecnologia/tecnologia11.asp